Mẫu biệt thự phố cổ điển 8m mặt tiền tại Thái Bình thể hiện được cảm xúc dạt dào và phong cách sống tao nhã, tinh tế của gia chủ qua hình thức và bố cục đầy tính nghệ thuật. Nó gây dựng được ấn tượng mạnh mẽ bằng những đường nét mỹ cảm quyến rũ, có ý nghĩa tượng trưng phong phú và thâm thúy trí tuệ. Đồng thời, các điểm nhấn lan tỏa nhẹ nhàng trên khắp các bề mặt trong sự hòa âm của màu sắc êm dịu để bất cứ ai khi ngắm nhìn cũng phải đánh thức mọi giác quan.

Điểm tạo nên sự khác lạ cho công trình với các công trình biệt thự cổ điển khác chính là hai mái vòm hình vỏ sò tại tầng 2 và 3 của công trình. Mái vỏ sò trở dịu dàng nhờ các rãnh xẻ mềm mại. Để có được mái vỏ sò này đòi hỏi người thi công tỉ mỉ và gia chủ chịu chơi. Để tôn lên vẻ bề thế cho công trình các kiến trúc sư đã dùng thủ pháp đưa thẳng cột từ tầng 1 đến tầng 3 kết hợp với đầu cột cầu kì và đế cột vuông tạo nên sự vững chắc cho hệ cột. Hai đầu cột chính được trang trí cách điệu bởi cột Corinth là loại cột cầu kì nhất trong 3 thước cột chính của Hi Lạp.

Để tạo nên vẻ mạnh mẽ cho biệt thự phố cổ điển 8m mặt tiền, đá granite được ốp chân tường tầng 1 và chân cột tầng 3. Trên phông nền trắng của tường được nhấn thêm màu hồng tro dịu dàng đằm thắm, màu hồng của vỏ đỗ. Càng làm nên vẻ khác lạ cho công trình. Không những thế còn thể hiện sự yêu thương ấm áp của gia đình gia chủ. Mọi cửa sổ và cửa đi đều có các phào chỉ lớn vừa có tác dụng trang trí vừa thay thế cho ô văng chắn nước. Sự tinh tế đó còn thể hiện ở căn biệt thự mặc dù nằm trên phố diện tích có hạn như kiến trúc sư đã không xây hết đất, chừa lại một khoảng để mở cửa sổ lấy sáng từ bên ngoài vào. Nó giảiquyết mọi vấn đề thông gió chiếu sáng cho biệt thự nhà phố.
Cổng trước của bản thiết kế biệt thự này là một phần không thể thiếu. Nó không chỉ có tác dụng bảo vệ mà còn trang trí. Công của mẫu biệt thự nổi lên với phần cột vuông vức gọn gàng và không quên xẻ rãnh cho thân cột. Bên cạnh đó là phần hàng rào làm từ gang mềm mại với nhiều họa tiết.

Phối cảnh từ góc này ta có thể nhìn thấy rõ hơn sân vườn bên trong và cả ban công. Phần garage được lùi lại phía sau để oto lui vào tránh được mưa nắng. Sân trước được chừa một khoảng rộng, phần đệm để đón khách vào nhà. Mái thái cũng được sử dụng với tính năng ưu việt về thoát nước, chắn nắng và làm mát cho công trình.
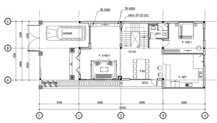
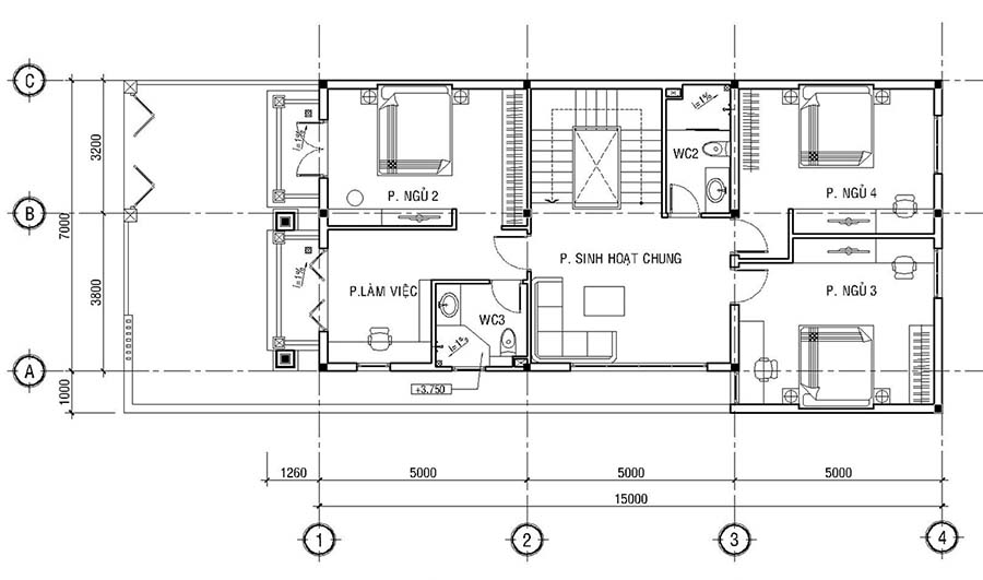
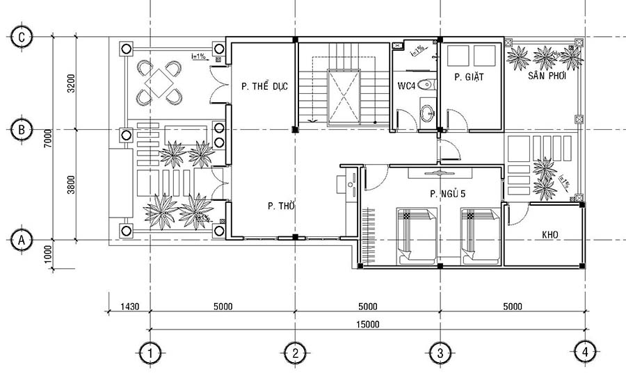
Mặt bằng công năng các tầng

Không gian nội thất tầng 1: phòng khách được ưu tiên hàng đầu với diện tích rộng nhất. Nội thất phòng khách lấy tủ rượu làm điểm nhấn cho thấy đam mê của gia chủ với sưu tầm rượu. Cầu thang được kết hợp với hồ cá chính là trục lưu thông gió cho toàn bộ căn nhà. Từ phòng khách đến phòng ăn và phòng bếp đều có thể nhìn ra không gian sinh động này. Không gian bếp rộng thoải mái cho chị em thỏa sức trổ tài nấu nướng. Bố trí phòng ngủ ông bà đầy tiện lợi ở tầng 1 tránh được việc đi lại lên các tầng và con cái dễ dàng chăm sóc.

Không gian nội thất tầng 2 : Tầng 2 được bố trí 3 phòng ngủ đều có cửa sổ lấy sáng và gió. Không gian phòng master được bố trí thêm phòng làm việc là hướng thiết kế mới ngày nay. Tách riêng không gian làm việc với không gian ngủ tạo ra không gian yên tĩnh cho người nghỉ ngơi và người làm việc. Không gian sinh hoạt chung được đặt ở giữa, nơi giao kết giữa các phòng, Đây là nơi gắn kết các thành viên lại với nhau, hay gia đình cần không gian riêng để trò chuyện tâm sự.

Không gian nội thất tầng 3: Được bố trí thêm 1 phòng ngủ cho khách, cho thấy căn biệt thự này rất nhiều phòng ngủ. Phòng ngủ cũng được bố trí ở đây, nơi có không gian yên tĩnh. Kho cũng là một phần rất quan trọng trong một căn nhà nhưng không gian này thường bị bỏ quên trong khâu thiết kế. Những vật dụng chúng ta không sử dụng đến hay chỉ dùng theo mùa, đây chính là nơi để cất giữ chúng làm cho căn nhà bạn luôn gọn gàng. Không gian tiểu cảnh được bố trí rất nhiều ở tầng 3, cùng với nhiều tiểu cảnh. Rất phù hợp với các hoạt động ngoài trời hay các bữa ăn cuối tuần cả nhà nước BBQ đây chính là không gian lí tưởng nhất.









