Cách tính diện tích xây dựng nhà ở chi tiết, dễ hiểu nhất theo m2 cho chủ đầu tư chuẩn bị xây nhà năm 2021.
Không ít người khi có ý định xây nhà sẽ tìm hiểu các nhà thầu xây dựng hiện nay sẽ nhận thầu với mức giá trên m2 là bao nhiêu và tự ước tính cho nhà mình. Nhiều người lầm tưởng rằng xây nhà 1 trệt 1 lầu 50m2/sàn thì tổng diện tích xây dựng chỉ có 100m2.

Nhưng thực tế cách tính diện tích xây dựng nhà trong lĩnh vực xây dựng rất khác so với việc tính diện tích đất. Vậy trong xây dựng nhà ở, diện tích xây dựng nhà ở sẽ được tính như thế nào? Bài viết này KIẾN TRÚC & NỘI THẤT SMALLHOME sẽ hướng dẫn chủ đầu tư cách tính diện tích xây dựng chính xác, dễ hiểu nhất. Từ tổng diện tích xây dựng chủ đầu tư có thể tính ra chi phí thiết kế, giá xây nhà thô và giá xây nhà trọn gói.

Cách tính diện tích xây dựng cho nhà phố năm 2021.
Diện Tích Xây Dựng Là Gì?
Diện tích xây dựng là diện tích có hao phí chi phí xây dựng, diện tích này bao gồm những diện tích được thể hiện trong giấy phép xây dựng và những phần diện tích không được thể hiện trong giấy phép xây dựng, nhưng tại đó có hao phí chi phí xây dựng.

Cách tính diện tích xây dựng nhà ở.
Diện Tích Sàn Là Gì?
Diện tích sàn là diện tích được tính từ phạm vi mép ngoài của các tường bao, thuộc tầng đó( bao gồm cả hành lang,thông tầng, lô gia…). Ví dụ cách tính diện tích sàn tầng trệt 4 x 12m, thì diện tích sàn là 48m2. Nhà có bấy nhiêu tầng thì có bấy nhiêu sàn.
Theo quy chuẩn kỹ thuật quốc gia QCVN03:200/BXD về phân loại, phân cấp công trình xây dựng và hạ tầng kỹ thuật đô thị, diện tích sàn xây dựng trong giấy phép xây dựng được quy định như sau :
- Diện tích sàn của một tầng là diện tích sàn trong phạm vi mép ngoài của tường bao thuộc tầng, bao gồm phần diện tích hành lang, ban công,…
- Tổng diện tích sàn xây dựng là tổng diện tích của tất cả các tầng, bao gồm tầng hầm, tầng nửa tầng hầm, tầng kỹ thuật và tầng mái.

Cách Tính Diện Tích Xây Dựng Nhà Ở (DTXD) Thông Dụng.
Cách tính diện tích xây dựng nhà ở là phương pháp nhà thầu tính tổng diện tích sàn sử dụng mỗi tầng cộng với các diện tích khác như móng, mái, sân, ban công, lô gia, thông tầng, sê nô và tầng hầm( nếu có) nhân với hệ số sau đó nhân với đơn giá từng hạng mục để ra chi phí xây nhà.

Bảng báo giá khái toán nhà trệt lửng 3 lầu sân thượng diện tích 14.47 x 3m8 tổng diện tích 332,55m2. Chủ đầu tư xem kĩ phần báo giá này có các hệ số rồi mới xem chi tiết cách tính bên dưới nhé.
Số liệu chiều dài, chiều rộng sẽ được lấy từ Bản vẽ xin phép xây dựng hoặc diện tích đất trong sổ hồng theo nhu cầu xây dựng.

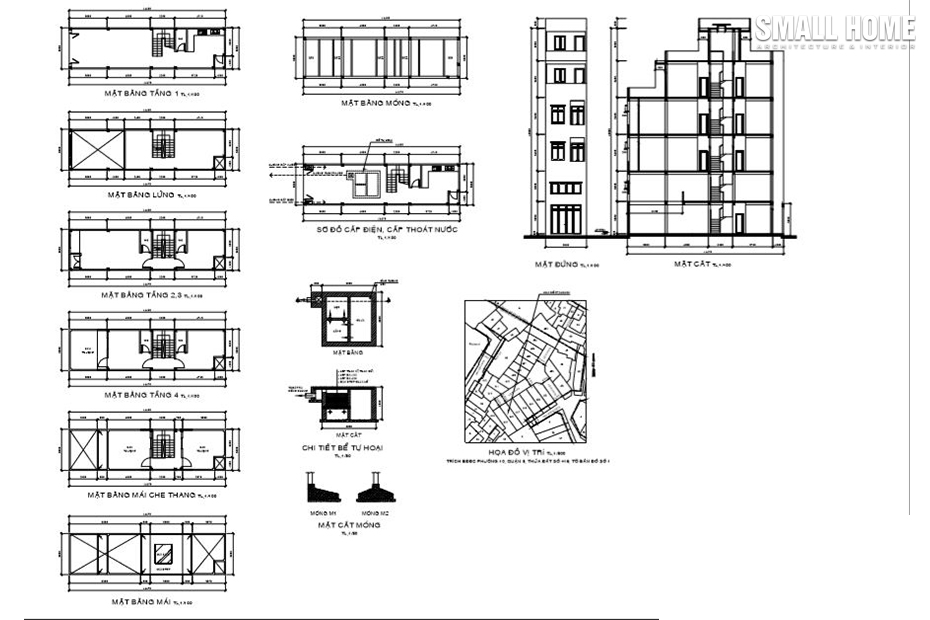
Bản vẽ giấy xin phép xây dựng hoàn chỉnh nhà anh Nam.
Phần Gia Cố Nền Đất Yếu.
Tùy vào điều kiện đất, điều kiện thi công mà sẽ quyết định sử dụng loại hình gia cố khác nhau như sử dụng gỗ hoặc cốt thép. Nếu sử dụng phương pháp đổ bê tông cốt thép thì sẽ tính 20% diện tích.
Phần Móng :
Nếu phần sân trước và sau có đổ cột xây tường rào, lát gạch làm cổng bắt buộc phải đổ móng để đảm bảo tính kiên cố cho công trình. Ví dụ diện tích đất 5x20m, xây 5x15m, sân 5x5m thì phải làm móng cả diện tích 5x20m.

Nhà này xây hết diện tích nên không có sân trước và sau. Chiều dài, chiều rộng sẽ được lấy với số liệu lớn hơn nên chiều dài ở mặt bằng móng này là 14.47 m, chiều rộng 3,8m.

Phần diện tích xây dựng cho móng nhà.
Diện tích theo hệ số được tính: Chiều dài x Chiều rộng x Hệ Số(14.47 x 3.8 x 0.5 = 27.49). Vì là móng băng nên hệ số: 0.5 tức 50% diện tích.
Hệ số ở đây chủ đầu tư có thể hiểu đơn giản là hao phí xây dựng cho từng phần ứng với chi phí m2. Có nghĩa rằng làm móng băng cho nhà có diện tích 14.47 x 3.8 sẽ là 27.49m2 x đơn giá xây thô 3tr3/m2 khoảng 90 triệu cho phần móng.
Tùy vào nhà bạn sử dụng loại móng nào mà sẽ có hệ số móng được tính dựa theo tiêu chuẩn sau:
- Móng đơn tính 20% diện tích.
- Nếu diện tích sàn nhỏ hơn 150m2 thì đài móng trên nền cọc bê tông cốt thép ép tải tính 40% diện tích, diện tích sàn lớn hơn 150m2 tính 30% diện tích, dưới 50m2 sẽ tính 50% diện tích.
- Đài móng trên nền cọc khoan nhồi, cọc bê tông cốt thép ép neo tính 40% diện tích.
- Móng băng tính 50% diện tích.
- Móng bè tính 100% diện tích.
Nhà phố sẽ có 2 loại móng phổ biến nhất là móng cọc và móng băng, bạn có thể tham khảo về 2 loại móng này ở link màu xanh trên.

Móng băng của Smallhome với thép D12.
Phần Nhà

Diện tích tầng trệt 3m8 x 14.4m.

Diện tích theo hệ số tầng một: 14.47 x 3.8 x 1 = 54.99m. Nhà này xây hết diện tích nên không có chừa sân trước và sau.
Hệ số phần nhà được tính dựa theo tiêu chuẩn sau:
- Phần diện tích có mái che phía trên tính 100% diện tích.
- Phần diện tích không có mái che nhưng có lát gạch nền tính 70% diện tích.(Phần ban công).
- Phần diện tích lô gia tính 100% diện tích.

Đây là bảng tính chi phí cho nhà ở có phần sân trước và sân sau.
Phần móng sẽ tính cả chi phí sân như đã nói ở trên, tầng trệt sẽ có hao phí làm sân như lát gạch xây tường bao…Cách tính chi phí phần sân SMALLHOME giới thiệu bên dưới.
Phần Sân Tầng 1 ( Tầng Trệt ).

Phần sân bắt buộc làm móng và có hao phí xây dựng khi lát gạch, xây tường rào.
- Dưới 15m2 có đổ cột, đổ đà kiềng, xây tường rào, lát gạch nền tính 100%.
- Dưới 30m2 có đổ cột, đổ đà kiềng, xây tường rào, lát gạch nền tính 70%.
- Trên 30m2 có đổ cột, đổ đà kiềng, xây tường rào, lát gạch nền tính 50%.

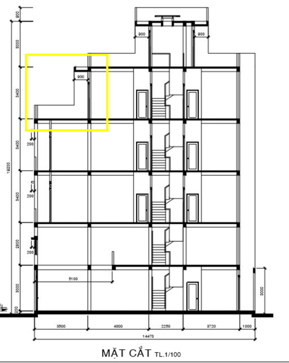
Mặt bằng tầng lửng chia thành diện tích sàn và diện tích thông tầng.
Chiều dài sàn tầng lửng: 2.4 + 2.25 + 3.72 + 1.0 = 9.37. Tính 100% diện tích.
Chiều dài thông tầng: 3.5 + 1.6 = 5.1. Tính 50% diện tích.

Diện tích tầng lửng chủ đầu tư có thể tự tính như sau: Diện tích sàn lửng là chiếm 65% diện tích sàn tầng trệt, còn thông tầng chiếm 35%. Đây là quy định chung, còn tùy khu vực có thể diện tích sàn tầng lửng có thể xây hơn 65%.
Đây là cách tính đơn giản khi chưa có thiết kế hoàn chỉnh, trong báo giá chính xác để thi công sẽ tính chi tiết hơn toàn bộ diện tích sàn rồi trừ diện tích thông tầng có thêm phần dầm đã được bôi vàng ở trên.

Dầm có độ dày 0.2m hai bên là 0.4 của bề ngang thông tầng 3m8 – 0.4 sẽ còn 3m4. Chiều dài thông tầng 5m1 – 0.2 còn 4m9. Sự chênh lệch này sẽ không nhiều để đơn giản chủ đầu tư cứ tính theo cách ở trên còn phần thi công SMALLHOME sẽ giải thích rõ cho chủ đầu tư hiểu về sau này.
Ô Trống Trong Nhà (Thông Tầng):
Bao gồm cả giếng trời và thông tầng của tầng lửng.
- Có diện tích dưới 8m2 tính như sàn bình thường 100% diện tích. Giếng trời thường diện tích không lớn hơn 8m2.
- Có diện tích lớn hơn 8m2 tính 50% diện tích. Thông tầng lửng thường lớn hơn 8m2.

Thông tầng của lửng rộng nên tính 50% diện tích do cũng phải xây tường và hệ kết cấu riêng.

Mặt bằng tầng 2, 3 thì bao gồm diện tích sàn nhà và lô gia.
Diện tích sàn tầng 2, tầng 3 được chia làm 3 phần. Phần màu vàng, xanh là phần nhà, phần màu đỏ là lô gia. Vì lô gia được xây tường cao kín hai bên có mái che nên diện tích tính 100%. Nếu nhà đưa ra ban công chỉ xây tường cao khoảng 900mm thì chỉ tính 70% diện tích.

Vì là lô gia nên tính 100% diện tích.
Phần Ban Công:
- Ban công có mái che không xây tường bao hai bên tính 70% diện tích.
- Ban công không có mái che 50% diện tích.
- Lô gia tính 100% diện tích.

Tầng 4 có diện tích sàn nhà và sân trước.
Chiều dài tầng 4: 4.0 + 2.25 + 4.72 + 0.9 = 11.87m. Phần diện tích 0.9 ở đây là mái che phía trên khi bước nhà ra sân được tính như phần nhà. Chiều rộng 3.8m.
Diện tích sân 3m5 – 0.9 chỉ còn 2m6. Hệ số phần sân thượng phía trước là 70% diện tích.


Ta có thể dựa vào mặt cắt ngôi nhà để biết ban công hay phần sân có mái che hay là không.

SMALLHOME luôn sử dụng thép sàn D10 với cục kê bê tông để tránh cháy thép.
Phần Sân Thượng Trước Và Sau Của Mái Che Thang, Tum, Chuồng Cu.

Mái che thang chính là sân thượng gồm diện tích sàn trong nhà, sân trước và sân sau.
Mặt bằng mái che thang hay còn là sân thượng , tum, chuồng cu: Chiều dài sàn: 2.25 + 0.75 + 0.9 + 0.9 = 4.8. Diện tích 0.9 ở đây là diện tích mái che ở trên phía bên ngoài nhà hay còn được gọi là seno thoát nước của mái. Hệ số tính 100% diện tích đây được coi phần nhà.
- Chiều dài sân thượng trước: 4m – 0.9m = 3m1.
- Chiều dài sân thượng sau: 3.97 – 0.9m = 3.07m.

Phần sân được tính hệ số như sau:
- Dưới 30m2 có đổ cột, đổ đà kiềng, xây tường bao hai bên, lát gạch nền, có seno trang trí mặt tiền tính 70%. Không có seno trang trí mặt tiền, dầm cột tính 50% thường là phần sân thượng phía sau nhà.
- Trên 30m2 có đổ cột, đổ đà kiềng, xây tường rào, lát gạch nền tính 50%.

Khoanh màu đỏ là seno trang trí mặt tiền được tính 50% diện tích xây dựng.

Sân thượng trước thi công dầm, tường bao hai bên, có lát gạch nền tính 70% diện tích.

Sân thượng phía sau không có cột, dầm tính 50% diện tích.

Seno mái thoát nước.
Phần Mái:

Chiều dài mái: Mặt bằng mái này bao gồm cả seno mái thoát nước có độ rộng 0,9m. Chiều dài mái 0.9 + 3.0 + 0.9 = 4.8m. Chiều rộng 3.8m Hệ số với mái bê tông cốt thép, không lát gạch là: 0.5. Diện tích xây dựng mái: 4.8 x 3.8 x 0.5 = 9.12m.
Diện tích sàn mái thường cộng thêm diện tích seno thoát nước mái thông thường được ra khoảng 0.9m hai bên là 1m8.

Seno trang trí mặt tiền thường có độ dài từ 0.8 đến 1m4 tùy thiết kế.
- Mái bê tông cốt thép, không lát gạch tính 50% diện tích của mái, có lát gạch tính 60% diện tích của mái.
- Mái ngói vì kèo sắt tính 70% diện tích của mái, tính chiều dài rộng của mái theo phương xéo áp dụng cho mái thái.
- Mái bê tông dán ngói tính 100% diện tích của mái.
- Mái tôn tính 30% diện tích của mái.
Trong báo giá chính xác để thi công xây thô, phần diện tích mái sẽ tính tổng toàn bộ diện tích mái trừ đi ô trống của sân thượng trước và sau bao gồm cả dầm hai bên sân thượng, seno trang trí mặt tiền giống như tầng lửng và cả mái kính lấy sáng cho phần mái. Do trong giấy phép xây dựng của nhà này diện tích ô kính lấy sáng không có kích thước chính xác nên chưa được trừ.
Phần Tầng Hầm(Tính riêng so với móng):
- Hầm có độ sâu nhỏ hơn 1.5m so với cao độ đỉnh ram hầm tính 135% diện tích.
- Hầm có độ sâu nhỏ hơn 1.8m so với cao độ đỉnh ram hầm tính 170% diện tích.
- Hầm có độ sâu nhỏ hơn 2.0m so với cao độ đỉnh ram hầm tính 200% diện tích.
- Hầm có độ sâu lớn hơn 2.0m so với cao độ đỉnh ram hầm tính 250% diện tích.

Công trình bán hầm 8x24m SMALLHOME đang thi công.
Tính Diện Tích Cho Nhà Có Thang Máy Gia Đình:
Đối với nhà ống có thang máy gia đình tùy thuộc sử dụng loại thang máy nào có hố bít hay không, cabin bao nhiêu, thang máy kính… có hệ kết cấu riêng nên sẽ được báo giá trong báo giá dự toán chi tiết của SMALLHOME.
Cách Tính Giá Thiết Kế, Giá Xây Nhà Thô Và Trọn Gói Theo Tổng Diện Tích Xây Dựng.
- Giá thiết kế = Tổng diện tích xây dựng x đơn giá thiết kế theo m2.
- Giá phần thô = Tổng diện tích xây dựng x đơn giá phần thô theo m2.
- Giá phần hoàn thiện = Tổng diện tích xây dựng x đơn giá phần hoàn thiện theo m2.
- Giá trọn gói = Diện tích xây dựng x đơn giá trọn gói(cả phần thô và hoàn thiện).

Báo giá khái toán sẽ áp dụng bảng chủng loại vật tư tiêu chuẩn của SMALLHOME.
Tuy nhiên đối với các gói thầu khác nhau hay giữa các nhà thầu khác nhau thì sẽ có cách tính khác nhau nên giá trên m2 cũng sẽ khác nhau. Nên lời khuyên cho chủ đầu tư có ý định tìm nhà thầu là đừng quan tâm đến giá trên m2 của đơn vị thầu đó mà phải xem xét tổng giá trị hợp đồng và các hạng mục nhà thầu đó thực hiện trong gói thầu. Báo giá theo m2 rẻ mà chi phí phát sinh lên đến hàng trăm triệu thì người chịu thiệt thòi chính là chủ đầu tư.
Bảng báo giá khái toán xây dựng giúp cho chủ đầu tư có cái nhìn sơ bộ về chi phí cho công trình nhưng cơ sở để kí hợp đồng với SMALLHOME là bảng báo giá dự toán chi tiết cung cấp cho chủ đầu tư cái nhìn toàn diện về công đoạn làm việc, hạng mục thi công, nhãn hiệu, giá vật tư, nhân công với chi phí phát sinh là con số 0.






