Mẫu biệt thự 2.5 tầng hiện đại tại Trực Ninh - Nam Định
Anh Hiền, Trực Ninh - Nam Định. Kích thước 8x14,2m. Chi phí 1 tỷ 2
Thấu hiểu được tầm quan trọng của một mẫu thiết kế nhà đẹp, tránh phát sinh rủi ro trong quá trình thi công. Vì vậy, chúng tôi không ngừng tìm tòi phát triển những ý tưởng mới có ý nghĩa, hợp thời để chia sẻ tới quý độc giả tham khảo. Sau đây quý độc giả hãy cùng tham khảo một thiết kế mẫu biệt thự 2.5 tầng hiện đại. Với lối kiến trúc trẻ trung, khỏe khoắn và đầy lôi cuốn. Mẫu thiết kế sau khi ra mắt đã nhận được sự hài lòng tuyệt đối từ chủ đầu tư.
Thông tin cơ bản về mẫu thiết kế:
- Chủ đầu tư: Anh Hiền
- Địa chỉ: Trực Ninh - Nam Định
- Kích thước xây dựng: 8×14,2m
I.Chiêm ngưỡng kiến trúc ngoại thất đẹp xuất sắc của mẫu biệt thự 2.5 tầng hiện đại tại Trực Ninh - Nam Định






II.Công năng sử dụng bên trong mẫu biệt thự 2.5 tầng tại Trực Ninh - Nam Định:

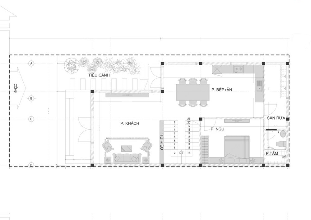
Mặt bằng bố trí công năng tầng 1
– Tầng 1: 1 phòng khách, 1 phòng bếp + ăn, 1 phòng ngủ, 1 phòng tắm, 1 sân rửa, 1 phòng tắm
– Tầng 2: 3 phòng ngủ, 1 phòng sinh hoạt chung, 1 phòng tắm
– Tầng 3: 1 phòng sinh hoạt chung, 1 sân giặt phơi
Cảm ơn quý độc giả đã quan tâm theo dõi mẫu thiết kế. Để có thêm sự lựa chọn ý tưởng cho ngôi nhà của mình, hãy thường xuyên ghé thăm chuyên mục nhà đẹp của chúng tôi.
Thiết kế Kiến trúc & Nội thất Smallhome
Smallhome chuyên trong lĩnh vực thiết kế kiến trúc, nội thất. Chúng tôi – KTS Smallhome bằng những kinh nghiệm dày dặn, khả năng sáng tạo không ngừng và kỹ năng nắm bắt xu hướng nhạy bén. Luôn luôn hướng tới sự hoàn hảo và cố gắng hết mình để tạo ra sản phẩm đáp ứng mong muốn khách hàng. Làm hài lòng đến cả những vị gia chủ khó tính nhất!
Liên hệ ngay với chúng tôi để được TƯ VẤN MIỀN PHÍ giải pháp Thiết Kế Không Gian và Nội Thất cho biệt thự của bạn.
Gọi ngay HOTLINE: 0962685939 (KTS. Trung Hiếu) hoặc để lại thông tin tại Form Đăng Ký bên dưới.









