MẪU THIẾT KẾ BIỆT THỰ 3 TẦNG HIỆN ĐẠI ĐẸP TẠI TUYÊN QUANG

MẪU THIẾT KẾ BIỆT THỰ 3 TẦNG HIỆN ĐẠI ĐẸP TẠI TUYÊN QUANG
QUY TRÌNH CHUẨN BỊ XÂY DỰNG BIỆT THỰ
- Chọn cho mình một mảnh đất phù hợp.
- Xây dựng ý tưởng ban đầu.
- Xem xét tài chính.
- Thời gian xây nhà hợp lý.
- Xem xét phong thủy.
- Liên hệ tư vấn thiết kế kiến trúc.
- Khảo sát địa chất công trình.
- Xin cấp phép xây dựng.( Thiết kế sơ bộ).
- Thiết kế kiến trúc.(Do công ty thiết kế nhà đẹp Smallhome thiết kế kiến trúc)
- Thiết kế kết cấu.(Do công ty thiết kế nhà đẹp Smallhome thiết kế kiến trúc)
- Thiết kế chi tiết điện, nước, nội thất.(Do công ty thiết kế nhà đẹp Smallhome thiết kế kiến trúc)
- Tìm đơn vị thi công chuyên nghiệp.
THÔNG TIN CHI TIẾT CÔNG TRÌNH .
TÊN CHỦ NHÀ: Anh Dũng – Chị Phương.
ĐỊA CHỈ: Tuyên Quang.
PHONG CÁCH: Biệt thự 3 tầng hiện đại tại Tuyên Quang.
KÍCH THƯỚC: 11m x 13m.
CÔNG NĂNG:
- TẦNG 1: Hiên + Phòng khách – Thờ + Gian hàng + Phòng bếp – ăn + Phòng ngủ.
- TẦNG 2: Phòng ngủ lớn – Thay đồ – wc + 2 Phòng ngủ + Phòng wc chung.
- TẦNG 3: Sân Giặt – Phơi + Kho.
MÔ TẢ CHI TIẾT CÔNG TRÌNH.
Mẫu biệt thự 3 tầng hiện đại đẹp tại Tuyên Quang thiết kế bởi các KTS Smallhome mang một phong cách vô cùng độc đáo, sáng tạo. Bố cục, không gian được sắp xếp vô cùng hợp lí tạo nên sự rộng rãi, thoải mái cho người sử dụng. Thêm vào đó, căn biệt thự còn thu hút người nhìn bởi nét vẻ sang trọng, hiện đại trong cách trang trí, phối màu.
MẪU THIẾT KẾ BIỆT THỰ 3 TẦNG
HIỆN ĐẠI ĐẸP TẠI TUYÊN QUANG
NÉT ĐẸP MẶT TIỀN MẪU THIẾT KẾ BIỆT THỰ 3 TẦNG HIỆN ĐẠI ĐẸP TẠI TUYÊN QUANG
Với gam màu trắng chủ đạo, thiết kế biệt thự nhà vườn đã toát lên vẻ đẹp thanh lịch, hiện đại, phóng khoáng nhưng không kém phần tinh tế, sang trọng. Đặc biệt, việc kết hợp giữa màu trắng chủ đạo với màu xanh của hệ mái càng làm tôn lên sự quý phái, sang trọng cho căn biệt thự. Điểm nhấn thêm ốp gạch thẻ màu vàng làm nổi bật sự sang trọng, hiện đại của biệt thự.

MẪU THIẾT KẾ BIỆT THỰ 3 TẦNG HIỆN ĐẠI ĐẸP TẠI TUYÊN QUANG
Biệt thự được lắp đặt hệ thống cửa kính nhằm tạo điều kiện hấp thụ lượng ánh sáng lớn giúp cho không gian sống trở nên thông thoáng hơn. Nét độc đáo trong phong cách thiết kế của các KTS Smallhome là thiết kế mái thái. Nó không chỉ giúp ta có cảm giác như sống ở “xứ sở chùa vàng” mà còn là điểm nhấn có 1-0-2 cho mẫu thiết kế biệt thự mái thái này trong hàng ngàn thiết kế tại Việt Nam.
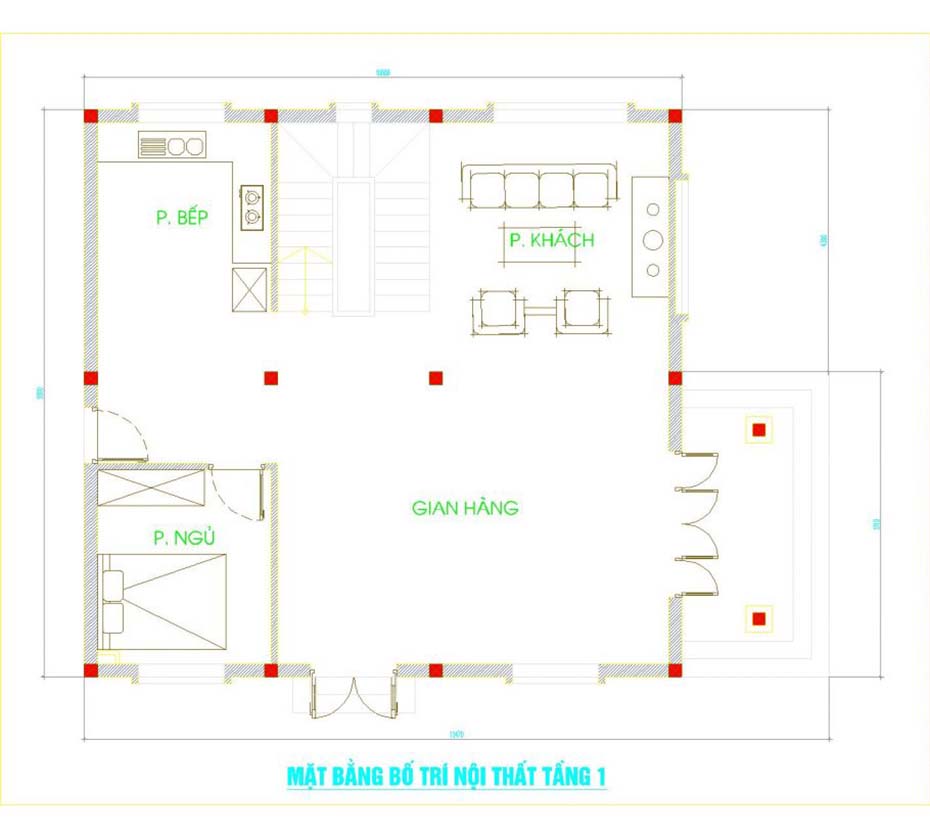
TẦNG 1.
Phía trước của mặt bằng tầng 1 được sử dụng làm không gian trưng bày sản phẩm kinh doanh của gia đình là vật tư hoàn thiện. Phòng khách được bố trí rộng thoáng, có tủ thờ hợp với phong thủy. Phòng khách được đặt ở trung tâm của ngôi nhà với thất kế độc lạ tạo không gian tiếp khách ấn tượng. Bên trong được bố trí khu vực bếp ăn nấu những món ăn ngon cho gia đình với thiết bị rất đầy đủ và hiện đại. Được ngăn cách với khu vực kinh doanh bởi một vách ngăn không làm ảnh hưởng đến nhau. Phòng ngủ nhỏ được thiết kế ở bên trong nhỏ gọn và đầy đủ đồ nội thất.

MẪU THIẾT KẾ BIỆT THỰ 3 TẦNG HIỆN ĐẠI ĐẸP TẠI TUYÊN QUANG
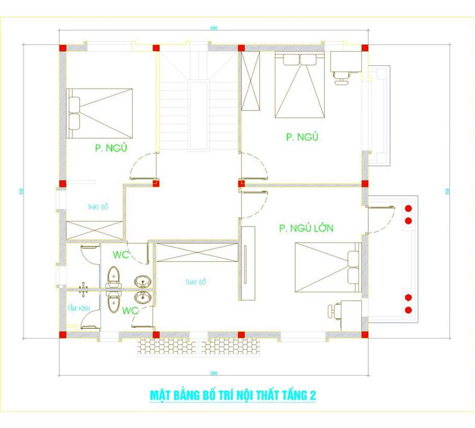
TẦNG 2.
Tầng 2 có 1 phòng ngủ master với WC khép kín cùng với các nội thất hiện đại được bài trí ở trong đó để thuận tiện cho nhu cầu sử dụng cá nhân. Tất cả các không gian đều được thiết kế có cửa sổ và vách kính để lấy ánh sáng và gió tự nhiên vào ngôi nhà giúp cho ngôi nhà luôn thoáng mát. Đồng thời, mỗi phòng còn được bố trí thêm ban công nó là nơi lưu thông không khí giữa bên trong và bên ngoài đồng thời là nơi giúp cho mọi người thư giãn và hít thở không khí trong lành vào mỗi sáng để thấy thêm yêu đời hơn.Có 2 phòng ngủ nhỏ với một vệ sinh chung, là nơi nghỉ ngơi của các thành viên trong gia đình.

MẪU THIẾT KẾ BIỆT THỰ 3 TẦNG HIỆN ĐẠI ĐẸP TẠI TUYÊN QUANG
TẦNG 3.
Tầng ba có thiết kế sân phơi giặt đồ cho thành viên trong gia đình. Các không gian kho được thiết kế rất cân đối, hợp lý khiến ta luôn cảm thấy thoải mái và thoáng mát chứ không bị có cảm giác chật chội.

MẪU THIẾT KẾ BIỆT THỰ 3 TẦNG HIỆN ĐẠI ĐẸP TẠI TUYÊN QUANG
Việc thiết kết biệt thự kết hợp với kinh doanh mẫu thiết kế biệt thự 3 tầng hiện đại đẹp tại Tuyên Quang này đã thu hút được sự chú ý của rất nhiều khách hàng bởi thiết kế hợp lý giữa không gian sinh hoạt lẫn không gian kinh doanh. Đó là điều mà khiến chủ nhà rất hài lòng và ưng ý.









