MẪU BIỆT THỰ TÂN CỔ ĐIỂN 3 TẦNG VỚI 130M2 ĐẸP TẠI HƯNG YÊN
I. THIẾT KẾ KIẾN TRÚC


II. BẢN VẼ MẶT BẰNG - BỐ TRÍ CÔNG NĂNG

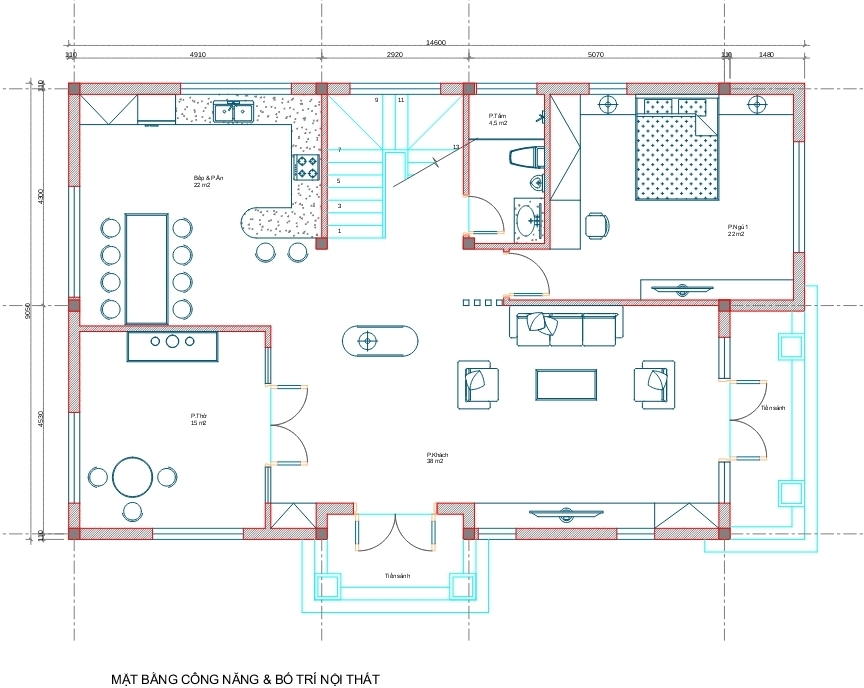
Mặt bằng tầng 1: Phòng khách, phòng thờ, bếp + phòng ăn, phòng ngủ, WC.
Từ cửa chính đi vào là khu vực phòng khách rộng rãi được bố trí nội thất khoa học, tiếp nối là khu vực sảnh gắn liền với cửa đi bên hông thông thoáng rộng rãi.
Thiết kế phòng thờ gần phòng khách, hướng cửa ra bên ngoài với không gian khép kín tạo sự yên tĩnh và thuận tiện cho việc thờ cúng thay vì bố trí trên lầu.
Bếp và phòng ăn được bố trí ở phân nửa kia của ngôi nhà với diện tích rộng rãi và hướng cửa ra phía sau giúp cho quá trình trao đổi không khí được dễ dàng
1 Phòng ngủ được bố trí ở dưới để thuận tiện cho việc nghỉ ngơi hạn chế việc leo cầu thang rất phù hợp cho việc nghỉ ngơi của người lớn tuổi.
Nhà vệ sinh chung được bố trí gần cầu thang nhằm tối ưu diện tích một cách hiệu quả

Mặt bằng tầng 2: 4 Phòng ngủ + WC
Tầng 2 thiết kế biệt thự 3 tầng 130m2 dành cho việc nghỉ ngơi riêng tư với 4 phòng ngủ. Mỗi phòng ngủ đều có WC bên trong đảm bảo cho sự riêng tư thoải mái.
Tùy thuộc vào kích thước, yếu tố phong thủy mà kiến trúc sư đưa ra những phương án bố trí nội thất, WC từng phòng sao cho phù hợp nhất đảm bảo sự thông thoáng và giúp cho việc ngủ, thư giãn được tốt nhất.

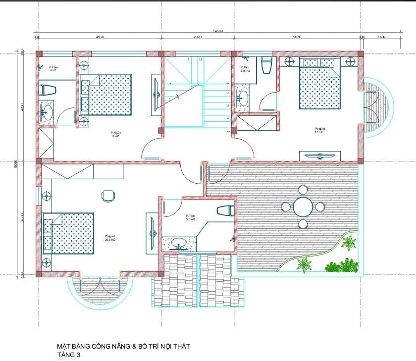
Mặt bằng tầng 3: 3 Phòng ngủ + WC, sân thượng
- Thiết kế tầng 3 gồm có 3 phòng ngủ có nhà vệ sinh khép kín bên trong rộng rãi đảm bảo tính riêng tư cũng như giúp quá trình sinh hoạt được dễ dàng.
- Một góc sân thượng ở trên lầu được bố trí nhiều cây xanh nhằm mang đến chỗ thư giãn lý tưởng, nơi đây mọi người có thể trò chuyện, nhâm nhi cafe và thưởng ngoạn phong cảnh từ trên cao.
III. THIẾT KẾ NỘI THẤT



Thiết kế kiến trúc & nội thất Smallhome
Smallhome chuyên trong lĩnh vực thiết kế kiến trúc, nội thất. Chúng tôi – KTS Smallhome bằng những kinh nghiệm dày dặn, khả năng sáng tạo không ngừng và kỹ năng nắm bắt xu hướng nhạy bén. Luôn luôn hướng tới sự hoàn hảo và cố gắng hết mình để tạo ra sản phẩm đáp ứng mong muốn khách hàng. Làm hài lòng đến cả những vị gia chủ khó tính nhất!
Liên hệ ngay với chúng tôi để được TƯ VẤN MIỀN PHÍ giải pháp Thiết Kế Không Gian và Nội Thất cho biệt thự của bạn.
Gọi ngay HOTLINE: 09626.859.39 (KTS. Trung Hiếu) hoặc để lại thông tin tại Form Đăng Ký bên dưới.









