MẪU BIỆT THỰ TÂN CỔ ĐIỂN 3 TẦNG ĐẸP HÚT HỒN TẠI THÁI BÌNH
I. THIẾT KẾ KIẾN TRÚC



II. BẢN VẼ MẶT BẰNG - BỐ TRÍ CÔNG NĂNG

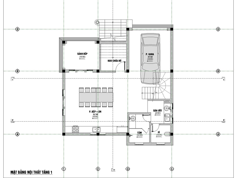
Mặt bằng tầng 1: Gara để xe, bếp + phòng ăn, sảnh bếp, kho chứa đồ, nhà vệ sinh
Khu vực tầng trệt được sử dụng làm gara ô tô thay vì xây dựng tầng hầm nhằm tiết kiệm chi phí xây dựng hiệu quả
Bếp và phòng ăn được bố trí ngăn nắp với một không gian rộng rãi thông thoáng
Nhà vệ sinh chung kết hợp với khu vực tắm được bố trí dưới tầng trệt khoa học hợp lý
Trong khi đó bên dưới cầu thang được tận dụng làm kho chứa đồ tối ưu diện tích hiệu quả

Mặt bằng tầng 2: Phòng khách + phòng thờ, 2 phòng ngủ, sân phơi
Thay vì bố trí ở tầng trệt thì phòng khách được bố trí ở lầu 1 kết hợp phòng thờ nhằm tăng cường rộng rãi thích hợp cho việc tiếp khách, sum họp gia đình cũng như thờ cúng.
2 Phòng ngủ tương đối gọn gàng, nội thất được sắp xếp khoa học, nhà vệ sinh được bố trí bên ngoài tiện cho việc sinh hoạt gia đình, khách nhằm tối ưu diện tích hiệu quả.

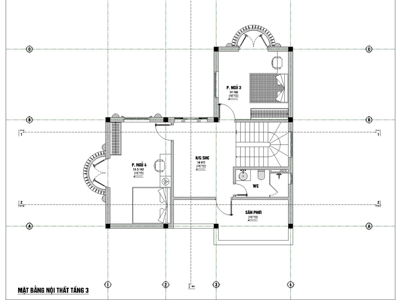
Mặt bằng tầng 3: 2 Phòng ngủ + WC, khu vực sinh hoạt chung
2 Phòng ngủ được bố trí ở trên tầng 3 đều có những ban công hướng cửa ra bên ngoài rất thích hợp để thư giãn và nghỉ ngơi.
Khu vực sảnh thang được tận dụng làm nơi sinh hoạt chung của các thành viên trong gia đình, nơi mọi người có thể sum họp, nghỉ ngơi thoải mái nhất.
Nhà vệ sinh được bố trí bên ngoài gần với sân phơi
III. THIẾT KẾ NỘI THẤT







-----------------------------------------------------------
Thiết kế kiến trúc & nội thất Smallhome
Smallhome chuyên trong lĩnh vực thiết kế kiến trúc, nội thất. Chúng tôi – KTS Smallhome bằng những kinh nghiệm dày dặn, khả năng sáng tạo không ngừng và kỹ năng nắm bắt xu hướng nhạy bén. Luôn luôn hướng tới sự hoàn hảo và cố gắng hết mình để tạo ra sản phẩm đáp ứng mong muốn khách hàng. Làm hài lòng đến cả những vị gia chủ khó tính nhất!
Liên hệ ngay với chúng tôi để được TƯ VẤN MIỀN PHÍ giải pháp Thiết Kế Không Gian và Nội Thất cho biệt thự của bạn.
Gọi ngay HOTLINE: 09626.859.39 (KTS. Trung Hiếu) hoặc để lại thông tin tại Form Đăng Ký bên dưới.









