BIỆT THỰ TÂN CỔ ĐIỂN MÁI THÁI ĐẸP
I. THIẾT KẾ KIẾN TRÚC


II. BẢN VẼ MẶT BẰNG - BỐ TRÍ CÔNG NĂNG

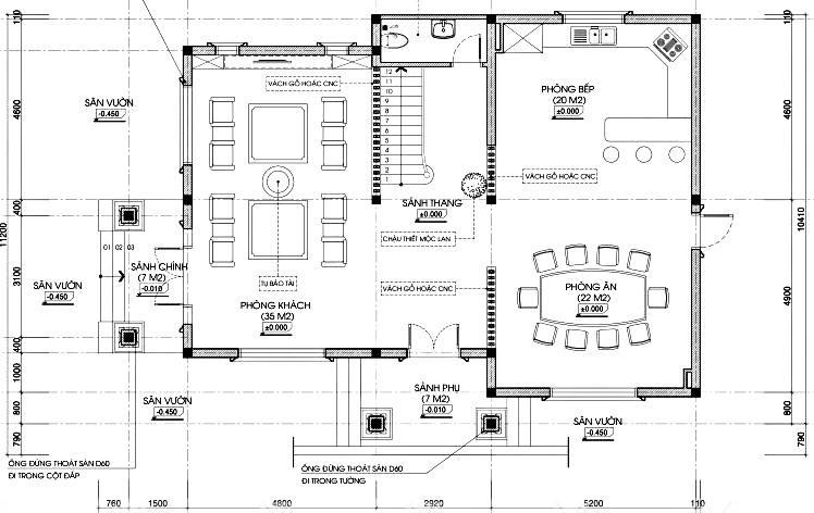
Bản vẽ chi tiết tầng 1 mẫu biệt thự 3 tầng mái thái đẹp
Mặt bằng công năng biệt thự tân cổ điển bố trí hài hòa giữa sân vườn với nội thất và giữa các tầng bên trong. Những khu vực sinh hoạt chung được đặt ở trung tâm và bố trí ngay tầng 1 để tiếp đãi khách khứa và bạn bè khi đến chơi.
Theo đó tại tầng 1 từ cổng bước vào đi qua một khoảng sân trước rộng rãi với cây cối xanh um tùm là phòng khách đặt ngay chính giữa. Không gian phòng khách kết nối với sảnh thang trung tâm và những khu vực khác thông qua vách ngăn gỗ hoặc hệ thống màn rèm sang trọng.
Đi qua phòng khách là không gian phòng ăn bố trí rộng rãi với nội thất sang trọng và ngăn nắp cảm giác như bạn đang dự một bữa tiệc tại khách sạn cao cấp.
Phòng bếp có một bàn bar để chủ nhà có nơi ngồi ăn sáng, uống cà phê hay thưởng thức ly rượu vang.

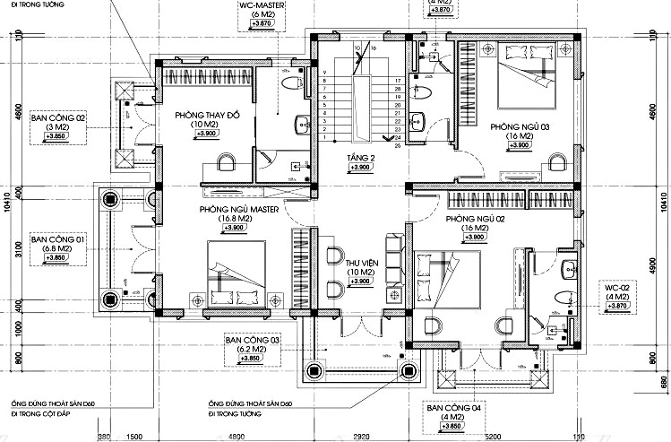
Bản vẽ mặt bằng tầng 2 biệt thự 3 tầng mái thái đẹp
Tầng hai là không gian sinh hoạt riêng tư của các thành viên với phòng ngủ chính, 2 phòng ngủ nhỏ, phòng thay đồ, ban công, thư viện đọc sách và sân phơi. Các phòng đều có ban công tạo sự thông thoáng và tiện nghi.
Thư viện bố trí đầy đủ các loại sách cũng như tác phẩm văn học trong và ngoài nước. Bên trong còn có những bộ bàn ghế dài để mọi người có không gian đọc sách yên tĩnh.
Các phòng ngủ trên tầng 2 đều có nhà vệ sinh và bồn tắm riêng thuận tiện trong sinh hoạt.

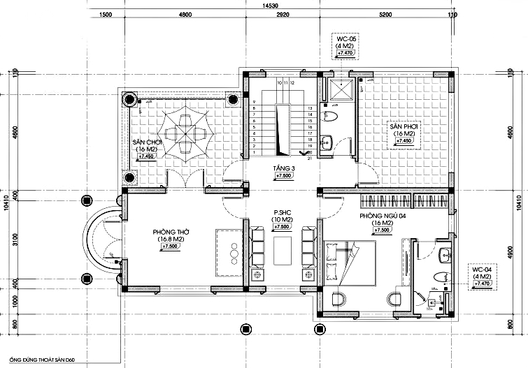
Bản vẽ mặt bằng tầng 3 biệt thự mái thái đẹp
Tầng 3 là không gian dành cho phòng thờ ông bà, sân phơi, phòng sinh hoạt chung và một phòng ngủ dành cho khách.
Phòng thờ bố trí nghiêm trang ngay cạnh sân thượng. Một mái vòm được trang trí ngay bên ngoài tăng vẻ trang nghiêm cho căn phòng.
Sân chơi bên cạnh có thêm bộ bàn ghế để các thành viên nơi thưởng thức tách cà phê hay ngồi ngắm nhìn thành phố từ trên cao.
III. THIẾT KẾ NỘI THẤT








-----------------------------------------------------------
Thiết kế kiến trúc & nội thất Smallhome
Smallhome chuyên trong lĩnh vực thiết kế kiến trúc, nội thất. Chúng tôi – KTS Smallhome bằng những kinh nghiệm dày dặn, khả năng sáng tạo không ngừng và kỹ năng nắm bắt xu hướng nhạy bén. Luôn luôn hướng tới sự hoàn hảo và cố gắng hết mình để tạo ra sản phẩm đáp ứng mong muốn khách hàng. Làm hài lòng đến cả những vị gia chủ khó tính nhất!
Liên hệ ngay với chúng tôi để được TƯ VẤN MIỀN PHÍ giải pháp Thiết Kế Không Gian và Nội Thất cho biệt thự của bạn.
Gọi ngay HOTLINE: 09626.859.39 (KTS. Trung Hiếu) hoặc để lại thông tin tại Form Đăng Ký bên dưới.









