NGẮM NHÌN KIẾN TRÚC BIỆT THỰ TÂN CỔ ĐIỂN ĐẸP TẠI NAM ĐỊNH
I. THIẾT KẾ KIẾN TRÚC BIỆT THỰ TÂN CỔ ĐIỂN ĐẸP TẠI NAM ĐỊNH


II. BẢN VẼ MẶT BẰNG - BỐ TRÍ CÔNG NĂNG BIỆT THỰ 3 TẦNG TÂN CỔ ĐIỂN TẠI NAM ĐỊNH

Mặt bằng tầng 1: Phòng khách, bếp + phòng ăn, WC, phòng ngủ + WC
- Từ cửa chính đi vào trong là khu vực sảnh thang chia không gian tầng trệt làm thành 2 khu vực. Bên phải là phòng khách rộng rãi tiếp nối là phòng ngủ nhằm đảm bảo sự yên tĩnh.
- Bên trái là khu vực ăn uống và nấu nướng được liên thông với nhau trong một không gian tương đối rộng rãi
- Nhà vệ sinh chung được thiết kế riêng gần khu vực cầu thang nơi mọi người có thể sinh hoạt chung thoải mái
- Các phòng được sắp xếp khoa học để vừa mang đến không gian sinh hoạt chung thông thoáng, rộng rãi nhưng vẫn đảm bảo sự yên tĩnh, riêng tư cho phòng ngủ.

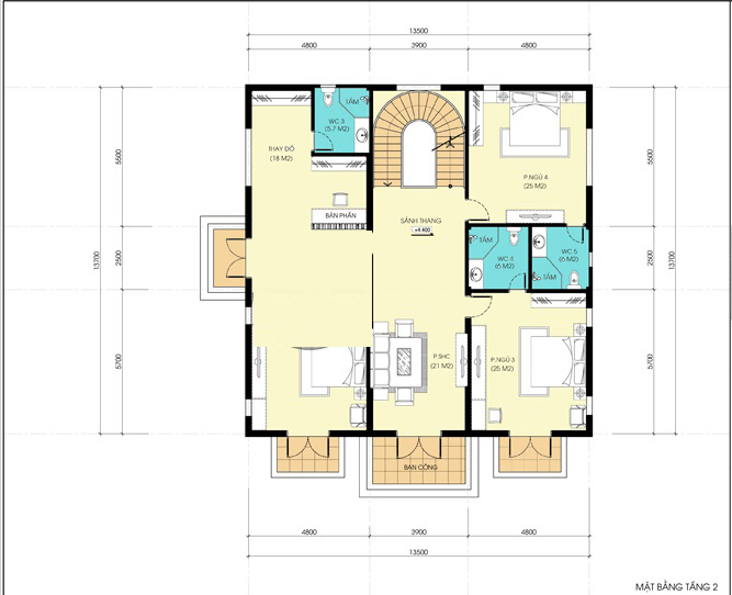
Mặt bằng tầng 2: 3 Phòng ngủ + WC, phòng sinh hoạt chung
- Thiết kế phòng ngủ master biệt thự mặt tiền 13m rộng rãi gồm có khu vực thay đồ, nhà vệ sinh bên trong tiện nghi. Các nội thất được bố trí gọn gàng giúp vợ chồng chị Hạnh có không gian nghỉ ngơi thư giãn tuyệt vời.
- 2 Phòng ngủ dành cho các con cũng có WC bên trong nhằm mang đến sự riêng tư thoải mái.
- Phòng sinh hoạt chung được bố trí ở khu vực cầu thang, nơi mọi ngời có thể sinh hoạt, đọc sách hay thư giãn
Công năng tầng 3 thiết kế biệt thự mặt tiền 13m
- Mặt bằng tầng 3 gồm có phòng thờ, phòng thể dục, Spa, kho và sân phơi
- Phòng thờ khép kín tạo sự yên tĩnh, trong khi đó các phòng nghỉ ngơi thư giãn được phân chia diện tích một cách hợp lý
III. THIẾT KẾ NỘI THẤT BIỆT THỰ 3 TẦNG TÂN CỔ ĐIỂN TẠI NAM ĐỊNH









-------------------------------------------------------------
Thiết kế kiến trúc & nội thất Smallhome
Smallhome chuyên trong lĩnh vực thiết kế kiến trúc, nội thất. Chúng tôi – KTS Smallhome bằng những kinh nghiệm dày dặn, khả năng sáng tạo không ngừng và kỹ năng nắm bắt xu hướng nhạy bén. Luôn luôn hướng tới sự hoàn hảo và cố gắng hết mình để tạo ra sản phẩm đáp ứng mong muốn khách hàng. Làm hài lòng đến cả những vị gia chủ khó tính nhất!
Liên hệ ngay với chúng tôi để được TƯ VẤN MIỀN PHÍ giải pháp Thiết Kế Không Gian và Nội Thất cho biệt thự của bạn.
Gọi ngay HOTLINE: 09626.859.39 (KTS. Trung Hiếu) hoặc để lại thông tin tại Form Đăng Ký bên dưới.









