Mẫu nhà phố có gara đẹp ngất ngây ai cũng nên xem qua một lần.
Sở hữu mảnh đất rộng 6m, dài 10m anh Hải muốn xây nhà phố có gara đẹp để làm nơi an cư lạc nghiệp cho mình và các thành viên trong gia đình.
Sau khi trò chuyện tiếp xúc, được biết anh là một người khá dễ chịu và thoải mái. Anh chỉ yêu cầu cho công trình đơn giản gồm một nhà để xe, phòng khách, 2 phòng ngủ, cùng khoảng sân thượng rộng rãi để anh thõa mãn đam mê trồng trọt và chăn nuôi.
Ngoại thất độc đáo của nhà phố có gara đẹp

Công trình nhà phố có sân thượng nằm cạnh một con đường lớn, thuận lợi cho việc di chuyển nên khi lên ý tưởng thiết kế các kiến trúc sư thoải mái sáng tạo, nhằm phô diễn trọn vẹn vẻ đẹp thẫm mỹ và gu thẫm mỹ tinh tế dành cho gia chủ.
Tường rào xây bằng bê tông kiên cố, đảm bảo độ an toàn cho các thành viên trong nhà. bên cạnh đó, nhà thiết kế còn sử dụng các loại đèn Led để tăng hiệu ứng thẫm mỹ cho công trình vào ban đêm.
Thiết kế mặt tiền thông thoáng có thể đón nhận được nhiều ánh sáng tự nhiên cũng như gió thoáng đảm bảo cho công trình luôn hài hòa với thiên nhiên.
Kiến trúc mẫu nhà phố đẹp với sự phá vỡ những nguyên tắc thiết kế cân đối và chuẩn mực của kiến trúc truyền thống, bằng những nét cắt, hình khối phá cách, mang đến sự mới lạ và độc đáo.

Mặt tiền phía trước nhà phố có gara đẹp được sơn màu trắng, đây là màu sắc dễ cho gia chủ thay đổi và làm nền để nổi bật những màu sắc khác bên trong.
Tầng tum bên trên nhà phố kiến trúc sư lắp đặt hệ lam gỗ dùng để trồng cây và tạo hiệu ứng thẫm mỹ cho công trình.
Qua đó có thể thấy mặt tiền nhà phố 4 tầng thiết kế sáng tạo, có điểm nhấn với chiều sâu và sức hút lớn. Đứng từ xa, mẫu công trình thể hiện sự tươi mới, điểm nhấn khác biệt hoàn toàn so với những công trình bên cạnh. Mẫu thiết kế kiến trúc được chủ đầu tư hoàn toàn đồng ý và hài lòng ngay sau khi có phương án thiết kế sơ bộ công trình.
Bố trí công năng nhà phố có gara đẹp
Để đáp ứng nhu cầu sử dụng cũng như sự thoải mái nhất cho các thành viên trong nhà, kiến trúc sư đã dành nhiều thời gian để tìm hiểu và nắm bắt thói quen sinh hoạt của từng người, từ đó cho ra bản vẽ bố trí công năng hợp lý và khoa học nhất.

Khu vực nhà xe được đặt ở tầng trệt. Vì gia chủ sử dụng gara để đựng 2 ô tô và 4 xe máy nên kiến trúc sư dành 26m2 dành cho gara.
Do các tác hại của khí thải việc thông gió cho gara là một việc hết sức quan trọng. Vậy nên kiến trúc sư cũng tìm hiểu và thiết kế cửa sổ mái và trên tường để thông gió cũng như lấy sáng tự nhiên, ngoài việc thông gió tự nhiên cần lấp quạt hút gió để hút khí xả, xăng dầu ra ngoài.

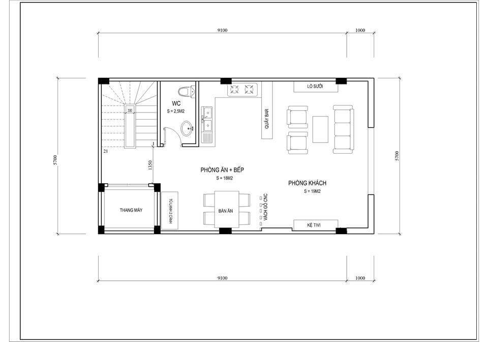
Khu vực lầu 1 nhà phố có gara đẹp có một phòng khách rộng 19m2, phòng ăn và nhà bếp cũng được bố trí ở đây để gia chủ tiếp khách. Do thiết kế nhà 4 tầng có chiều cao lớn nên ngoài cầu thang bộ, nhà thiết kế còn đặt thêm một thang máy bên cạnh để thuận tiện cho việc di chuyển.

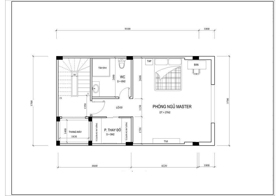
Lầu 2 là không gian dành cho phòng ngủ master, nhờ có diện tích rộng rãi mà kiến trúc sư còn bố trí thêm phòng thay đồ, nhà vệ sinh hai bên cho căn phòng.

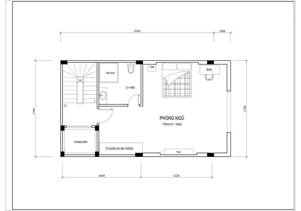
Phòng ngủ cô con gái rộng đến 35m2 có đầy đủ tiện nghi như phòng tắm đứng, phòng tắm ngồi để cô gái sinh hoạt.

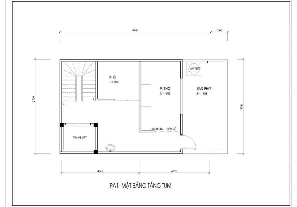
Không gian tầng tum được bố trí gồm phòng thờ, nhà kho, sân phơi.
Không gian nội thất nhà phố có gara đẹp

Nhà để xe sử ốp đá cùng với trần ốp gỗ giảm thiểu tiếng ồn và tăng độ thẫm mỹ cho công trình.

Bộ ghế sofa màu xám mềm mại, có độ đàn hồi cao tăng sự thoải mái cho cả khách lẫn chủ. Bề mặt ghế ngồi rộng cùng lưng tựa nghiêng để chủ nhà có thể tiếp khách hoặc nằm nghỉ ngơi.

Phòng bếp thiết kế với tông màu trung tính chủ đạo dễ dàng kết hợp với đồ nội thất hiện đại mang đến sự tiện nghi trong sinh hoạt.Với phong cách tối giản, phòng ngủ thiết kế đơn giản, tinh tế, nhẹ nhàng nhưng vẫn đảm bảo tính thẩm mỹ và công năng sử dụng. Khung cửa trượt bằng kính nhìn ra ban công bên ngoài giúp gia chủ cảm thấy thiên nhiên đang ở rất gần.


Kệ tivi đồng thời đóng vai trò như một chiếc bàn làm việc hay bàn đọc sách.

Màu sắc sử dụng trong phòng ngủ cô con gái mang phong cách tối giản đó là sự đơn giản nhưng tinh tế. Sàn, tủ quần áo và tủ đầu giường làm bằng gỗ công nghiệp vừa ấm áp và dễ dàng thay đổi về sau.

Không gian tầng thượng, các kiến trúc sư bố trí hệ thống tiểu cảnh và khu vực chăn nuôi để các thành viên trong gia đình có thể tự trồng rau sạch và ăn đồ ăn do mình nuôi, trồng.

Không gian bên ngoài của sân thượng được bổ sung thêm cây xanh và cỏ để ngăn mùi. Ngoài ra hệ thống nước tưới, nước thải cũng được kiến trúc sư xử lý kỹ để đảm bảo vệ sinh và chất lượng cho công trình.

Phòng tắm ốp đá hiện đại, sạch sẽ. Ô cửa thoáng bố trí bên trên để tránh ẩm mốc.
Dự trù chi phí xây nhà phố có gara đẹp hiện đại
Dựa trên đơn giá mà nhiều công ty xây dựng đang áp dụng hiện nay, công ty xây dựng nhà phố SMALLHOME sẽ giới thiệu đến bạn cách tính chi phí xây dựng cho ngôi nhà phố 4 tầng, 1 tum, phong cách hiện đại, xây trên ô đất rộng 6x10m này
1. Cách tính diện tích xây dựng nhà phố
- Móng: 6 x 10 x 50%= 30m2
- Tầng trệt: 6 x 10 x 100%= 60m2
- Lầu 1: 6 x 10 x 100%= 60m2
- Lầu 2:6 x 10 x 100%= 60m2
- Lầu 3:6 x 10 x 100%= 60m2
- Tum:6 x 10 x 100%= 60m2
- Mái: 6 x 10 x 50%= 30m2
===> Tổng diện tích sàn cần thi công sẽ là: 360m2
Lưu ý: Lưu ý 360m2 là diện tích sàn xây dựng nhà mà chúng tôi dự tính chưa phải là con số chính xác, bởi vì phần diện tích này chưa bao gồm phần sân thượng, giếng trời và các công trình phụ khác.
2. Đơn giá xây dựng chung
- Đơn giá xây dựng phần thô dao động từ 3, 4 – 3,7 triệu/m2
- Đơn giá xây trọn gói dao động từ 8.000.000 – 12.000.000 triệu/m2
3. Tổng dự trù chi phí xây nhà phố có gara đẹp
- Phần thô: 360m2 x 3.500.000 = Khoảng 1 tỷ 260 triệu: Bao gồm phần thô + nhân công hoàn thiện
- Trọn gói: 360m2 x 8.000.000 = Khoảng 2 tỷ 880 triệu: Bao gồm phần thô + vật liệu hoàn thiện (chỉ chưa có đồ rời như bàn, ghế, giường vv ….).
Như vậy qua đây bạn có thể dự trù khoảng 1,3 tỷ cho phần thô xây nhà phố và 2,9 tỷ cho phần hoàn thiện. Tuy nhiên đơn giá trên chỉ là con số tham khảo, bởi tùy vào diện tích, yêu cầu về đồ nội thất của từng gia chủ khác nhau mà sẽ có đơn giá khác nhau.
Ví như nếu chủ nhà yêu cầu nội thất bằng gỗ cao cấp hoặc nội thất nhập khẩu từ nước ngoài thì đơn giá hoàn thiện chắc chắn sẽ cao hơn.
Để biết được giá chính xác tốt nhất khi xây nhà phố hiện đại bạn nên liên hệ trực tiếp với kiến trúc sư nhờ họ đến đo đạc, bóc tách khối lượng và ra bản vẽ chi tiết thì lúc đó bạn sẽ biết được con số giá chính xác nhất.
Khi mà quỹ đất ngày càng eo hẹp thì nhu cầu thiết kế nhà phố có nhà để xe và sân thượng để nuôi trồng là một trong những phong cách phổ biến, được nhiều khách hàng lựa chọn.
Nếu bạn yêu thích mẫu nhà phố có gara đẹp trên hay có nhu cầu thiết kế thi công xây dựng nhà phố, biệt thự theo nhu cầu sử dụng hãy liên hệ với SMALLHOME qua hotline 0962.685.939 để được tư vấn miễn phí nhé!









