Công ty kiến trúc & nội thất Smallhome xin giới thiệu một mẫu kiến trúc thiết kế biệt thự 2 tầng kiểu Châu Âu phong cách cổ điển đẹp được thiết kế tại Hà Nam. Với chi phí thiết kế gần 70 triệu đồng mà Anh Mỹ bỏ ra để thiết kế mẫu nhà dạng mini sân vườn với kiến trúc bán cổ điển là điểm nhấn cho toàn bộ ngôi nhà. Tông màu chủ đạo trắng của tường kết hợp với màu xanh của ngói lộp chống thấm cách nhiệt. Màu gỗ của những cánh cửa được xưởng chúng tôi sản xuất thay cho lớp cửa nhôm kính vì anh hợp với phong thủy đồ gỗ và đó cũng chính là sở thích từ nhỏ.
Mẫu biệt thự 2 tầng bán cổ điển này là ước mơ của nhiều hộ gia đình, để có được một sản phẩm tuyệt vời thì công ty chúng tôi phải luôn tìm tòi và phát triển công nghệ cập nhật xu thế mẫu biệt thự đẹp trên thị trường. Với gia thành rẻ so với các công ty khác thì đó là một sự lựa chọn chính xác của Anh khi đặt hết niềm tin vào Kiến Trúc Sư. Qua làm việc với anh chúng tôi mới hiểu rõ ràng để có một mẫu sản phẩm ưng ý đòi hỏi phải có ý kiến nhiều mặt của khách hàng. Sau đây Smallhome xin giới thiệu một mẫu thiết kế biệt thự đẹp kiến trúc bán cổ điển ngoại thất – nội thất sang trọng.
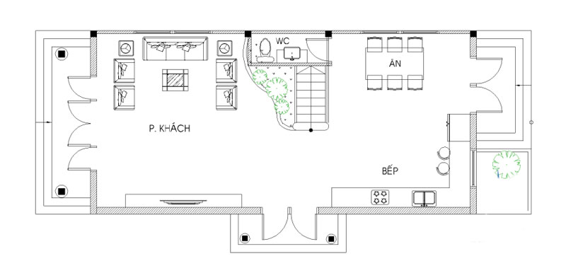
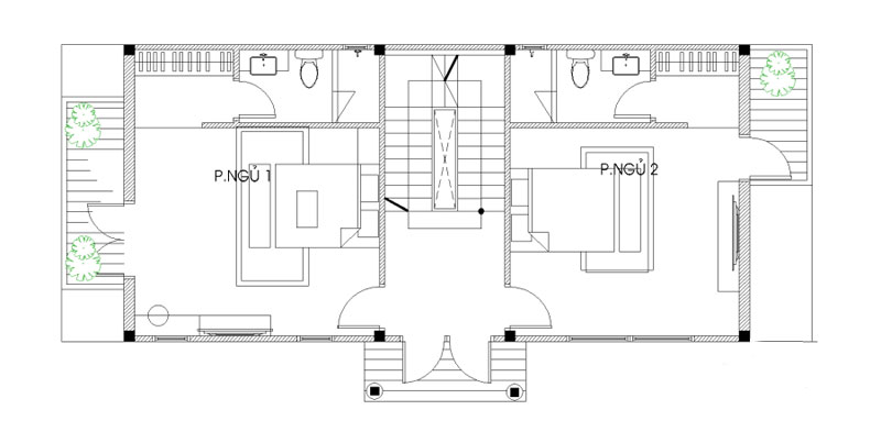
Ngày nay có rất nhiều mẫu biệt thự mini đẹp được các công ty xây dựng thiết kế trên nền 3D max và đây cũng chính là sản phẩm dành cho biệt thự vườn 2 tầng đẹp hay biệt thự mini 2 tầng. Diện tích xây dựng cho ngôi nhà là 10×25 m bao quanh là hệ thống sân vườn rộng thoáng mát. hiện tại mẫu đang lên kế hoạch thi công và sớm được hoàn thành trong vòng 4 tháng tính từ khi khởi công xây dựng. Chúng tôi luôn tự hào là một trong những công ty chuyên thiết kế biệt thự giá rẻ toàn quốc











