MẪU KIẾN TRÚC BIỆT THỰ TÂN CỔ ĐIỂN VỚI MẶT TIỀN 10M TẠI NAM ĐỊNH
I. THIẾT KẾ KIẾN TRÚC BIỆT THỰ TÂN CỔ ĐIỂN TẠI NAM ĐỊNH



II. BẢN VẼ MẶT BẰNG - BỐ TRÍ CÔNG NĂNG BIỆT THỰ TÂN CỔ ĐIỂN TẠI NAM ĐỊNH

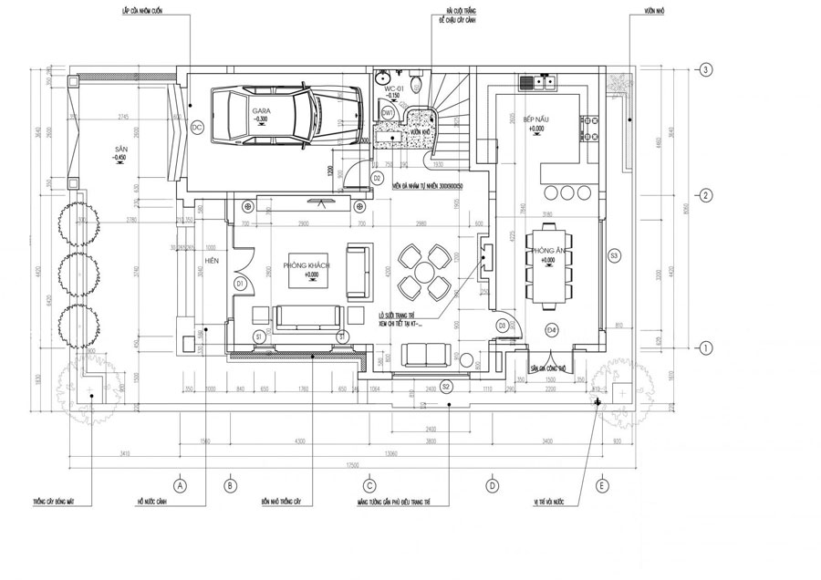
Mặt bằng công năng tầng 1 biệt thự tân cồ điển 3 tầng tại Nam Định
Tầng trệt của biệt thự tân cổ điển mặt tiền 10m được thiết kế với các không gian sinh hoạt chung dành cho gia đình và 1 gara để xe rộng thoáng và tiện nghi.
Phòng khách rộng thoáng được bố trí ngay cạnh cửa chính và liên thông với phòng ăn và nhà bếp, mở ra một không gian rộng thoáng đến không ngờ cho ngôi nhà.
Cầu thang thông tầng được bố trí ngay ở giữa ngôi nhà giúp cho việc di chuyển trở nên thuận tiện và dễ dàng hơn.

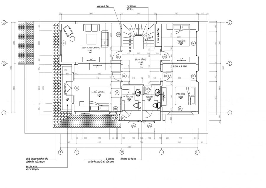
Mặt bằng công năng tầng 2
Tầng 2 của biệt thự tân cổ điển mặt tiền 10m này là nơi dành cho các không gian phòng ngủ và phòng sinh hoạt chung. Đây là cách sắp xếp phổ biến của nhiều mẫu biệt thự cổ điển, tân cổ điển hiện nay.
Tầng 2 được thiết kế với 3 phòng ngủ, trong đó có phòng ngủ chính có diện tích lớn hơn và hướng ra ban công trước để đón nắng và gió hiệu quả hơn. Tiếp giáp với phòng ngủ chính là phòng sinh hoạt chung.
Đối diện với sảnh thông tầng là khu vực phòng vệ sinh dùng chung cho 2 phòng ngủ nhỏ bên cạnh. Hai phòng ngủ được bố trí liền kề nhau và đều có cửa sổ kính để không gian luôn tràn ngập ánh sáng và gió tự nhiên.

Mặt bằng công năng tầng trệt
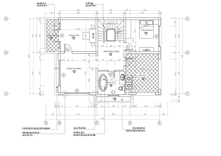
1 phòng ngủ nhỏ và phòng thờ trang nghiêm hướng ra ban công là những không gian chính của tầng 3 biệt thự tân cổ điển mặt tiền 10m này.
Ngoài ra, tầng 3 còn có 1 phòng đa năng và phòng tắm lớn để đáp ứng nhu cầu nghỉ ngơi, thư giãn của gia chủ sau những giờ làm việc căng thẳng.
III. THIẾT KẾ NỘI THẤT BIỆT THỰ 3 TẦNG TÂN CỔ ĐIỂN TẠI NAM ĐỊNH





Thiết kế Kiến trúc & Nội thất Smallhome
Smallhome chuyên trong lĩnh vực thiết kế kiến trúc, nội thất. Chúng tôi – KTS Smallhome bằng những kinh nghiệm dày dặn, khả năng sáng tạo không ngừng và kỹ năng nắm bắt xu hướng nhạy bén. Luôn luôn hướng tới sự hoàn hảo và cố gắng hết mình để tạo ra sản phẩm đáp ứng mong muốn khách hàng. Làm hài lòng đến cả những vị gia chủ khó tính nhất!
Liên hệ ngay với chúng tôi để được TƯ VẤN MIỀN PHÍ giải pháp Thiết Kế Không Gian và Nội Thất cho biệt thự của bạn.
Gọi ngay HOTLINE: 0962685939 (KTS. Trung Hiếu) hoặc để lại thông tin tại Form Đăng Ký bên dưới.









