MẪU THIẾT KẾ BIỆT THỰ ĐẸP VỚI 3 TẦNG TÂN CỔ ĐIỂN TẠI BẮC GIANG
Thông tin công trình nhà biệt thự 3 tầng
- Chủ đầu tư: Chị Tú
- Địa điểm: Bắc Giang
- Năm thiết kế: 2020
- Diện tích xây dựng: 150m2
- Mặt bằng công năng: 7 phòng ngủ, 1 phòng khách, 1 phòng bếp và 1 phòng thờ.
I. THIẾT KẾ KIẾN TRÚC
Hiểu và nắm bắt rõ được tâm lý khách hàng, cùng với những thông tin chi tiết về diện tích, ô đất, hướng và nguồn tài chính của gia đình. Kết hợp cùng với khảo sát hiện trạng thực tế, kiến trúc sư đã lên phương án thiết kế sơ bộ, họp bàn với chủ đầu tư để duyệt và chốt phương án thiết kế.

Mẫu thiết kế nhà biệt thự tân cổ điển 3 tầng đẹp
Kiến trúc tân cổ điển là sự kết hợp hoàn hảo giữa hai phong cách kiến trúc, kiến trúc hiện đại và kiến trúc cổ điển. Sự kết hợp của hình khối kiên cố và bề thế cùng với những mảng khối bố cục, hoạ tiết hoa văn tỉ mỉ và đẹp mắt, đã tạo nên một hiệu ứng tích cực cho những mẫu thiết kế nhà biệt thự tân cổ điển.
Là một người yêu thích sự sang trọng và tinh tế trong phong cách thiết kế, chị Tú và gia đình mong muốn sở hữu một mẫu biệt thự tân cổ điển 3 tầng đẹp mặt, để làm nơi an cư lạc nghiệp cho gia đình.
Có một yêu cầu đặc biệt trong mẫu thiết kế nhà của chị, đó là cả đại gia đình cùng sinh sống. Gia đình có 8 thành viên cùng sinh sống, cho bên anh chị muốn bố trí công năng 7 phòng ngủ, 1 phòng khách, 1 phòng bếp và 1 phòng thờ. Thiết kế chú trọng công năng và mặt bằng sinh hoạt chung, đảm bảo sự thống nhất nhưng vẫn có không gian riêng tư cho các thành viên.

Mặt tiền mẫu thiết kế nhà biệt thự tân cổ điển
Nhìn từ trên cao xuống, mẫu thiết kế nhà 3 tầng hiện lên với hình khối bề thế và kiên cố. Kiến trúc thể hiện sự vững chắc và sang trọng, hình khối với kỹ thuật thi công cầu kỳ, đảm bảo kết cấu bền vững với tuổi thọ công trình cao. Nhìn tổng quan trong khuôn viên, đi cùng với thiết kế sân vườn và tường rào, mẫu nhà toát lên sự mềm mại, uyển chuyển nhưng không kém phần tinh tế và thanh thoát, cùng với sự nhẹ nhàng và thơ mộng.
Với mặt tiền rộng, kiến trúc sư đã đưa ra ý tưởng thiết kế, tận dụng mặt tiền từ đó tạo nên một phối cảnh thông thoáng và tươi mới. Điểm nhấn đầu tiên gây ấn tượng cho người đối diện, đó chính là hệ thống tường rào, bao quanh kiên cố và hệ thống cửa cổng hiện đại và công phu. Những mảng tường được thiết kế chia ô, thiết kế với khung hoa sắt mĩ nghệ được phun sơn tĩnh điện công nghệ cao, kết hợp với màu sơn trắng và chân tường được ốp đá màu vàng nghệ, mang đến cảm giác sa hoa.

Phối cảnh thiết kế mẫu biệt thự 3 tầng đẹp
Bức tranh bằng đồng với hoạ tiết hoa văn và con vật, toạ lạc ngay tại cổng chính, phối hợp nhịp nhàng cùng với mái thái của cổng, giúp chinh phục thị giác với cảm quan ấn tượng cho mẫu biệt thự tân cổ điển đẹp.
Toàn bộ mặt tiền của công trình thiết kế hệ thống trụ cột Ionic, đường gờ chạy dọc, trang trí tỉ mỉ phần đầu và chân cột, đảm nhận vao trò kết cấu chịu lực và tăng hiệu ứng thẩm mĩ cho không gian thiết kế.
Mặt tiền mẫu biệt thự ngay tại tầng 1 được ốp đá Thạch Anh màu vàng nhạt hoa văn gấm, kế hợp vói những khối ban công hình vòm, hình thắng và toàn bộ hệ thống khuôn cửa nhựa lói thép kích thước lớn, đón nhận được nhiều ánh sáng, gió thoáng. Mặt khác, tính thẩm mĩ cao của hệ thống cửa nhựa lõi thép, kết hợp cùng với ngoại thất sáng màu, kiến trúc mái thái hình thang màu ghi ghi xanh đậm, giúp công trình phô diễn đầy đủ sự tinh tế, cuốn hút và mạnh mẽ.
Bức tranh phong thuỷ băng đồng trước cửa cổng được lặp lại trên tầng 3, khẳng định sự đồng bộ và thống nhất. Chủ đầu tư là người am hiểu phong thuỷ và quan trọng hướng và bản mệnh, do đó mọi chi tiết kiến trúc hay thi công xây dựng, đều tuân thủ nghiêm ngặt quy tắc “Nhất vị nhị hướng” cho mẫu biệt thự tân cổ điển.
II. BẢN VẼ MẶT BẰNG - BỐ TRÍ CÔNG NĂNG

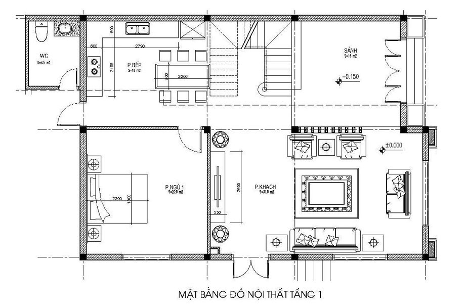
Mặt bằng tầng 1
Gia đình có đông thành viên sinh sống, do đó toàn bộ công năng tầng 1, chủ yếu thiết kế cho không gian sinh hoạt chung. Từ sảnh chính bước vào tạo một lối đi khá rộng, là không gian đệm trước khi bước vào trong. Thiết kế tiếp giáp với sảnh chính là phòng khách sang trọng với bộ bàn ghế bằng gỗ tự nhiên hoành tráng. Cầu thang thông tầng mẫu biệt thự được bố trí ở góc, tiếp giáp ngay cạnh sảnh chính và phòng khách, tạo không gian đệm thuận tiện cho việc di chuyển lên tầng. Phòng bếp được thiết kế chạy thẳng từ sảnh thang vào trong, thiết kế nhà vệ sinh chung được bố trí ở góc trong cùng gần sân sau của công trình. 1 phòng ngủ rộng 20m được thiết kế dành cho ông bà, thiết kế tầng 1 sẽ giúp người già ít phải di chuyển cầu thang.

Mặt bằng tầng 2
Tầng 2 mẫu biệt thự đẹp 3 tầng bố trí 4 phòng ngủ, đối xứng nhau qua sảnh thang thông tầng. Thiết kế 2 nhà vệ sinh chung cạnh nhau, đối diện cầu thang, chia đều không gian sử dụng cho 4 phòng ngủ. Việc này đảm bảo phục vụ đủ nhu cầu sử dụng của các phòng, giảm tải mật độ nội thất và tối ưu hoá công năng cũng như diện tích sử dụng trong phòng cho các thành viên.

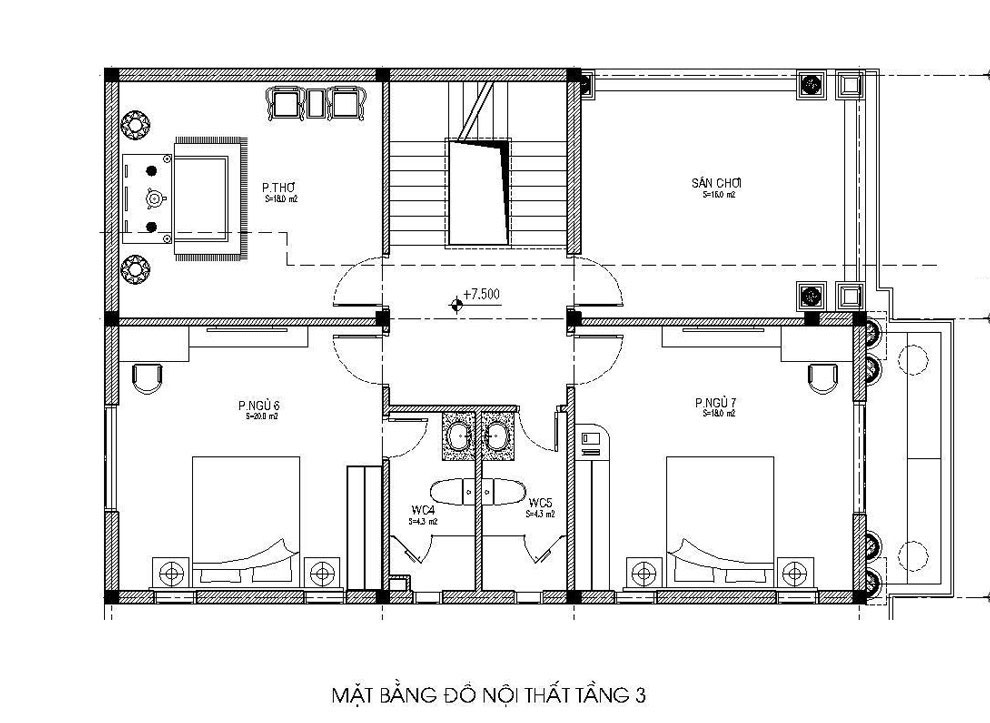
Mặt bằng tầng 3
Tầng 3 từ cầu thang, hướng về phía tay phải và sân phơi khá thoáng và rộng. Phía tay trái thiết kế phòng thờ rộng và thoáng. Đối diện sảnh thang thiết kế 2 phòng ngủ, chia đều qua không gian trung tâm sảnh thang thông tầng. 2 nhà vệ sinh chung được bố trí ở giữa, đáp ứng nhu cầu sử dụng chung của hai phòng và nhu cầu sử dụng chung của các thành viên các khi lên tầng thượng.
Mẫu thiết kế biệt thự 3 tầng hiện đại, thiết kế tân cổ điển với phong cách kiến trúc, đem đến những cảm quan tích cực tạo nên sức hút mới cho mẫu thiết kế nhà.
-------------------------------------------------------------
Thiết kế kiến trúc & nội thất Smallhome
Smallhome chuyên trong lĩnh vực thiết kế kiến trúc, nội thất. Chúng tôi – KTS Smallhome bằng những kinh nghiệm dày dặn, khả năng sáng tạo không ngừng và kỹ năng nắm bắt xu hướng nhạy bén. Luôn luôn hướng tới sự hoàn hảo và cố gắng hết mình để tạo ra sản phẩm đáp ứng mong muốn khách hàng. Làm hài lòng đến cả những vị gia chủ khó tính nhất!
Liên hệ ngay với chúng tôi để được TƯ VẤN MIỀN PHÍ giải pháp Thiết Kế Không Gian và Nội Thất cho biệt thự của bạn.
Gọi ngay HOTLINE: 09626.859.39 (KTS. Trung Hiếu) hoặc để lại thông tin tại Form Đăng Ký bên dưới.









