KIẾN TRÚC BIỆT THỰ TÂN CỔ ĐIỂN 5 TẦNG SIÊU ĐẸP TẠI NINH BÌNH
I. THIẾT KẾ KIẾN TRÚC BIỆT THỰ 5 TẦNG TÂN CỔ ĐIỂN TẠI NINH BÌNH

Căn biệt thự mang phong cách Pháp được thiết kế theo tỉ lệ vàng chuẩn chỉ mang đến sự sang trọng và tươi mới, giúp chủ nhà khẳng định vị thế trong xã hội cũng như gu thẫm mỹ tinh tế của mình.
Để có thể tạo nên một kiến trúc mặt tiền thanh thoát, sang trọng với sự hài hòa và mềm mại của những đường cong, kiến trúc sư đã sử dụng hệ phù điêu đắp nổi dọc theo mặt tiền, khiến ai đi qua cũng phải ngước nhìn và trầm trồ thán phục tài năng của người thiết kế.
Phần cửa cổng cùng ngoại thất tầng 1 được sơn màu vàng sang trọng, đây là màu sắc thường sử dụng cho các bậc vua chúa, tầng lớp quý tộc thời xưa. Trong khi khu vực tầng 2 cho đến tầng 5 của biệt thự 5 tầng kiểu Pháp kiến trúc sư lại quay về với tông màu trắng quen thuộc

Ban công khu vực tầng 2 đua rộng, kéo dài ra đến cổng vừa tạo sự bề thế và vững chắc đồng thời có thể tận dụng để làm mái che cho gara để xe bên dưới.
Hệ thống hệ thống trụ cột Ionic được triển khai thiết kế, chạy thẳng từ mặt tiền tầng 2 cho đến mặt tiền tầng 5 cùng với những đường chỉ kẻ dọc, con tiện ở hai đầu cột cho thấy sức sống bền bỉ của một công trình kiến trúc kiểu Pháp.
Hệ ban công hình vòm bán nguyệt cùng la can lục bình như một nốt nhạc nhẹ nhàng và du dương tô điểm thêm cho công trình biệt thự tân cổ điển 5 tầng thêm hoành tráng.
Kiến trúc mái vòm nhô cao cùng với họa tiết trang trí hình con sò, thanh sắt chống sét khiến công trình cứ vươn cao mãi, như gần chạm tới trời xanh.
II. BẢN VẼ MẶT BẰNG - BỐ TRÍ CÔNG NĂNG BIỆT THỰ 5 TẦNG TÂN CỔ ĐIỂN TẠI NINH BÌNH
Bản vẽ tầng 1 biệt thự phong cách Pháp

Tầng 1 gồm: Gara để xe, sảnh chờ, phòng khách, phòng ăn, phòng ngủ, phòng đọc
Từ cổng bước vào chúng ta sẽ gặp một gara đổ xe rộng rãi và lối đi phụ đặt sát bên hông.
Một sảnh chờ với bộ bàn ghế sofa và bình hoa trang trí được đặt ở ngay cạnh lối vào để chào đón khách khứa và bạn bè gần xa.
Để tương xứng với vẻ ngoài căn biệt thự 5 tầng kiểu Pháp, kiến trúc sư bố trí một bộ bàn ghế tiếp khách rộng và cân đối.
Một phòng ăn đặt ngay phía sau với không gian sang trọng và lộng lẫy không kém phòng khách.
Phía cuối nhà là một phòng ngủ dành cho ông bà có nhà vệ sinh riêng, đặt cạnh phòng vệ sinh chung của cả công trình lầu 1.
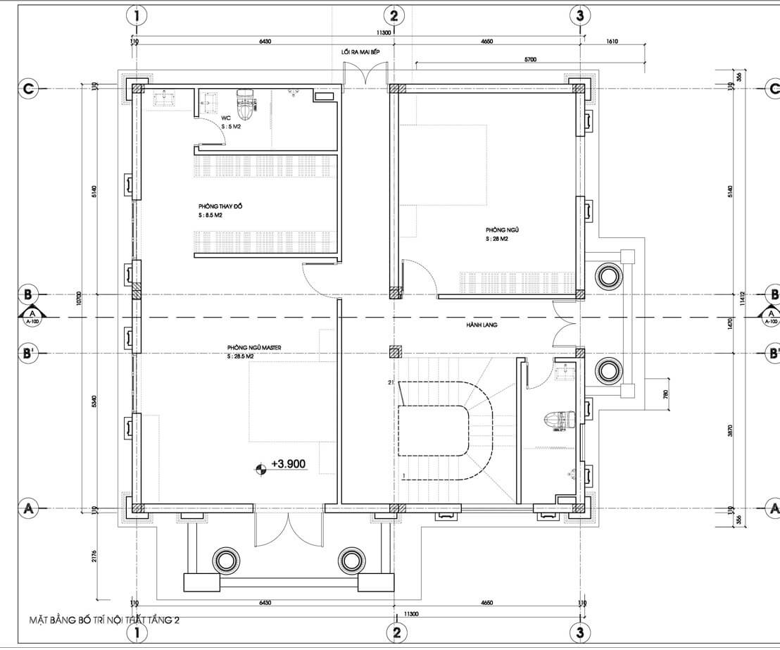
Bản vẽ tầng 2 biệt thự 5 tầng kiểu Pháp

Tầng 2 gồm: Phòng ngủ master, phòng ngủ 2, cầu thang
Phòng ngủ maser của vợ chồng gia chủ chiếm một không gian rộng lớn ở khu vực tầng 2 với phòng thay đồ riêng. Phòng tắm đứng, phòng tắm ngồi và phòng xông hơi đặt bên cạnh để thuận tiện cho việc sử dụng hàng ngày.
Phòng ngủ đẹp dành cho biệt thự rộng 26m2 tạo sự thoải mái đến tối đa. Để tránh mùi, phòng vệ sinh được đặt bên ngoài và cạnh cầu thang đi lên.
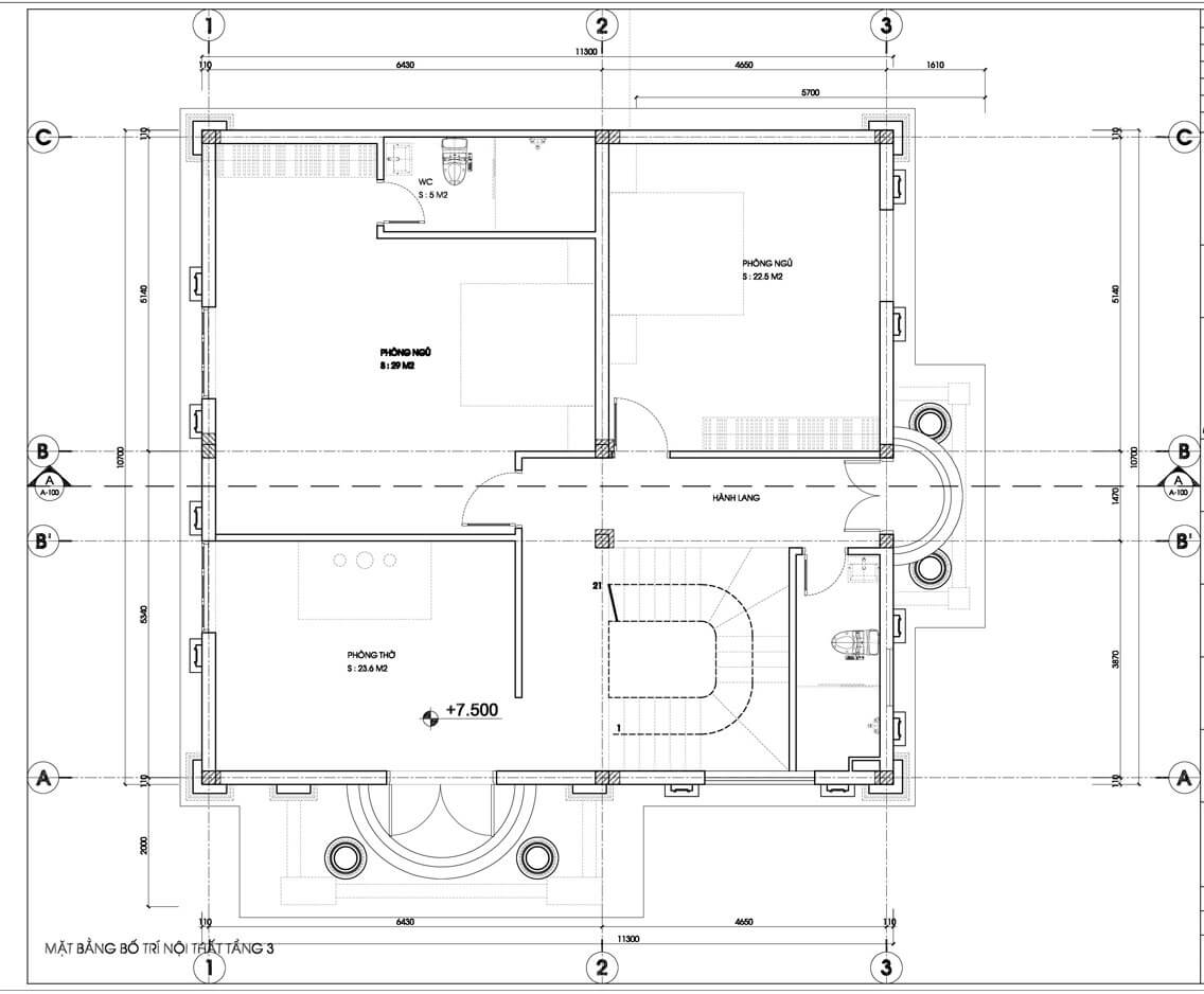
Tầng 3 gồm: Phòng ngủ 3, phòng ngủ 4, phòng thờ
Từ cầu thang đi lên là một phòng thờ rộng 23m2 với nội thất làm bằng gỗ giản tiện nhưng vẫn mang đậm chất thẩm mỹ và trang trọng.
Phòng ngủ 3 rộng 29m2 với đầy đủ công năng đảm bảo cho nhu cầu sinh hoạt hàng ngày của các thành viên trong gia đình.
Một phòng ngủ khác rộng 22m2 có nhà vệ sinh bên ngoài để tạo không gian thoáng đãng cho khu vực ngủ nghỉ.

Tầng 3 gồm: Phòng ngủ 3, phòng ngủ 4, phòng thờ
Từ cầu thang đi lên là một phòng thờ rộng 23m2 với nội thất làm bằng gỗ giản tiện nhưng vẫn mang đậm chất thẩm mỹ và trang trọng.
Phòng ngủ 3 rộng 29m2 với đầy đủ công năng đảm bảo cho nhu cầu sinh hoạt hàng ngày của các thành viên trong gia đình.
Một phòng ngủ khác rộng 22m2 có nhà vệ sinh bên ngoài để tạo không gian thoáng đãng cho khu vực ngủ nghỉ.
III. THIẾT KẾ NỘI THẤT BIỆT THỰ 5 TẦNG TÂN CỔ ĐIỂN TẠI NINH BÌNH










Thiết kế Kiến trúc & Nội thất Smallhome
Smallhome chuyên trong lĩnh vực thiết kế kiến trúc, nội thất. Chúng tôi – KTS Smallhome bằng những kinh nghiệm dày dặn, khả năng sáng tạo không ngừng và kỹ năng nắm bắt xu hướng nhạy bén. Luôn luôn hướng tới sự hoàn hảo và cố gắng hết mình để tạo ra sản phẩm đáp ứng mong muốn khách hàng. Làm hài lòng đến cả những vị gia chủ khó tính nhất!
Liên hệ ngay với chúng tôi để được TƯ VẤN MIỀN PHÍ giải pháp Thiết Kế Không Gian và Nội Thất cho biệt thự của bạn.
Gọi ngay HOTLINE: 0962685939 (KTS. Trung Hiếu) hoặc để lại thông tin tại Form Đăng Ký bên dưới.









