THIẾT KẾ BIỆT THỰ 3 TẦNG TẠI HÀ NỘI

THIẾT KẾ BIỆT THỰ 3 TẦNG TẠI HÀ NỘI-UY TÍN CHẤT LƯỢNG CUNG CẤP BỞI TỔNG CÔNG TY SMALLHOME
TẦM NHÌN CỦA SMALLHOME
Trở thành Công ty hàng đầu trong việc cung cấp dịch vụ thiết kế – thi công công trình dân dụng. Để được như vậy, Smallhome chuyên vẫn đang nỗ lực hàng ngày nhằm hướng đến sự phát triển toàn diện trang thiết bị và nâng cao năng lực lao động.
Chúng tôi tạo môi trường doanh nghiệp năng động sáng tạo góp phần mang đến sự bền vững và lợi ích tốt nhất cho Quý khách hàng. Cùng với đó Smallhome còn tích cực hỗ trợ, đóng góp vào các hoạt động phúc lợi xã hội và an sinh xã hội ở các khu vực còn nhiều khó khăn.
Chúng tôi đề cao tinh thần trách nhiệm do Giám đốc ban hành: luôn luôn thể hiện tinh thần trách nhiệm, tuân thủ quy trình hệ thống, kiên nhẫn theo đuổi mục tiêu Công ty đến cùng, phát triển các mối quan hệ khách hàng, tập chung vào chất lượng chuyên môn,( cởi mở, thân thiện, vui vẻ ), tích cực hỗ trợ mang nhiều lợi ích cho nhân viên, phát triển kinh doanh bền vững, tạo ra môi trường làm việc chuyên nghiệp, nghiêm túc.
Smallhome minh chứng cho những điều nói trên bằng một mẫu thiết kế biệt thự 3 tầng tại hà nội được gia chủ rất hoan hỉ và hài lòng. Xin mời quý vị và các bạn cùng chúng tôi tham quan không gian đẹp này ngay sau đây:
1. TÊN CHỦ NHÀ: Anh Môn
– ĐỊA CHỈ: Nà Nội
2. PHONG CÁCH: Nhà ở biệt thự hiện đại
3. KÍCH THƯỚC: 11,4m x 15,8m
4. CÔNG NĂNG:
TẦNG 1: 1 sảnh chính, 1 phòng khách, 1 phòng ngủ khép kín, 1 phòng bếp + ăn, 1 nhà vệ sinh, 1 sảnh phụ
TẦNG 2: 4 phòng ngủ ( 2 phòng ngủ khép kín, 1 nhà vệ sinh chung cho 2 phòng ngủ )
TẦNG TUM: 1 phòng thờ, 1 kho để đồ, 1 sân phơi, 1 sân thượng
MÔ TẢ THIẾT KẾ NHÀ BIỆT THỰ 3 TẦNG TẠI HÀ NỘI :
Smallhomexin trình làng tới các bạn đọc một mẫu nhà đẹp thiết kế biệt thự 3 tầng tại hà nội, nơi trú ngụ của gia đình anh môn mà do đội ngũ kts giầu kinh nghiệm ngày đêm phác thảo và xây dựng nên làm sao hợp với phong cách hiện đại mà không hề đánh mất đi sự yêu thích thiên nhiên của chủ đầu tư.
Đây chính là vấn đề thành công mà Công ty chúng tôi xin giới thiệu tới quý vị trong bài viết ngày hôm nay. Hi vọng sẽ giúp ích cho các bạn về vấn đề xây dựng nhà ở.

THIẾT KẾ BIỆT THỰ 3 TẦNG TẠI HÀ NỘI
THIẾT KẾ MẶT TIỀN:
Ngoại thất ngôi nhà được phối tone mầu rất nổi, có hiên và ban công xinh xắn, các phòng đều được bố trí cửa xổ kính rất đẹp để tận dụng tối đa nguồn năng lượng tự nhiên giúp gia chủ có một môi trường sống khỏe mạnh.

THIẾT KẾ BIỆT THỰ 3 TẦNG TẠI HÀ NỘI: THIẾT KẾ MẶT TIỀN
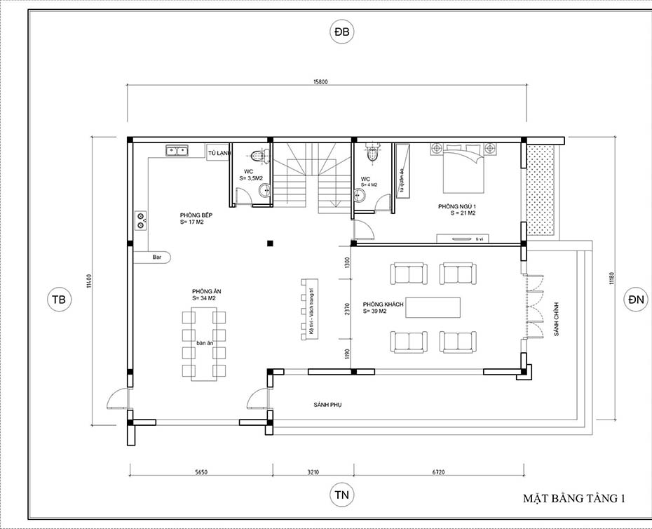
THIẾT KẾ TẦNG 1:
Biệt thự 3 tầng hiện đại. Tầng 1 là 1 sảnh chính, 1 phòng khách, 1 phòng bếp + ăn, 1 phòng ngủ khép kín, 1 sảnh phụ, 1 nhà vệ sinh dùng chung.

THIẾT KẾ BIỆT THỰ 3 TẦNG TẠI HÀ NỘI: THIẾT KẾ TẦNG 1
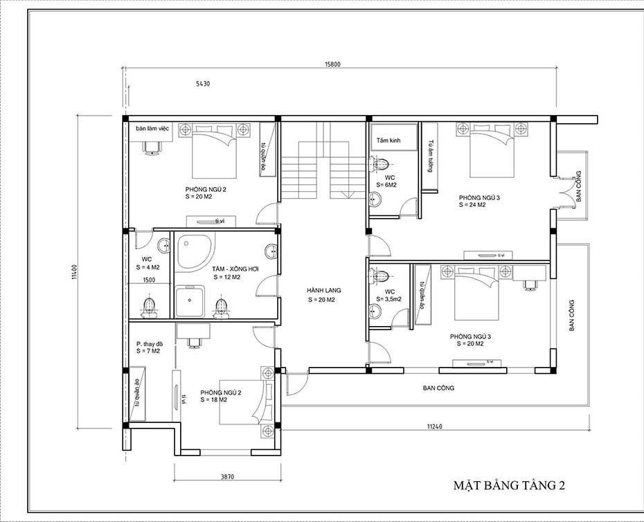
THIẾT KẾ TẦNG 2:
Công năng mặt bằng tầng 2 gồm 4 phòng ngủ dành cho từng thành viên trong gia đình ( 2 phòng ngủ khép kín, 1 nhà vệ sinh dùng chung cho 2 phòng ngủ ). Tất cả các phòng đều được nắp đặt đầy đủ thiết bị sinh hoạt.

THIẾT KẾ BIỆT THỰ 3 TẦNG TẠI HÀ NỘI: THIẾT KẾ TẦNG 2
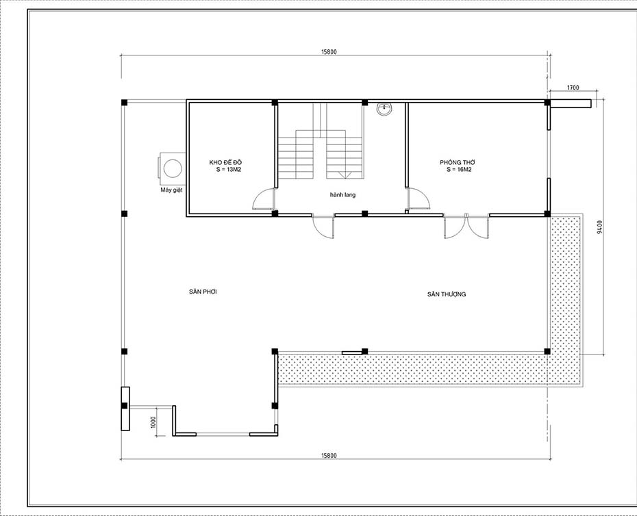
THIẾT KẾ TẦNG TUM:
Tầng tum được các kts thiết kế 1 phòng thờ là nơi thờ cúng của chủ nhà, 1 kho để đồ khá rộng đáp ứng yêu cầu chủ nhà. Với việc thiết kế như vậy đã tạo nên khoảng sân thượng và sân phơi vô cùng rộng rãi, thoáng mát.

THIẾT KẾ BIỆT THỰ 3 TẦNG TẠI HÀ NỘI: THIẾT KẾ TẦNG TUM
Mẫu thiết kế biệt thự 3 tầng tại hà nội của Smallhome giúp chúng ta tận hưởng cuộc sống thoải mái và hiện đại nhất. Hi vọng qua bài viết này các bạn sẽ có ý tưởng về ngôi nhà ưng ý nhất cho mình.









