Với không gian sống đẳng cấp tạo nên một sức hút mạnh mẽ với bất cứ ai đang ngắm nhìn. Bởi kiến trúc mặt tiền được xử lý vô cùng tinh tế và mặt bằng công năng được bố trí khoa học. Sau đây kiến trúc smallhome xin giới thiệu đến quý khách hàng mẫu nhà vườn 1 tầng hiện đại của gia đình anh Phương tại Hà Nam.
Nét cơ bản về mẫu nhà vườn 1 tầng hiện đại đại Hà Nam
Mẫu biệt thự nhà vườn của gia đình anh Phương tại Hà Nam được thiết kế thi công trên mảnh đất rộng 500m2. Sau buổi trò chuyện trực tiếp với kiến trúc smallhome với xu hướng xây dựng hiện nay thì ưa chuộng phong cách kiến trúc hiện đại kết hợp với hệ thống sân vườn. Do đó biệt thự mái Nhật 1 tầng được thiết kế với diện tích 250m2, số diện tích còn lại dùng làm không gian không gian sân vườn.

Hình ảnh: Mặt tiền của mẫu nhà vườn 1 tầng hiện đại thật thoáng rộng
Ngoại thất chi tiết của mẫu nhà vườn 1 tầng hiện đại tại Hà Nam
Biệt thự 1 tầng với 4 phòng ngủ lấy sự đơn giản làm nét đẹp cho toàn bộ thiết kế. Màu trắng chủ đạo, màu đỏ của hệ mái Nhật, màu nâu của hệ thống khung cửa, đặc biệt là các hoa văn phào chỉ được thiết kế tỉ mỉ….Tất cả đã tạo nên một công trình gần gũi ấm áp và để lại ấn tượng mạnh cho người xem. Thêm vào đó là gam màu nâu của hệ thống cửa chính là góp phần tạo nên một diện mạo hoàn hảo cho biệt thự.
Tất cả hệ thống cửa sổ đều được sử dụng chất liệu nhôm cao cấp và kính cường lực chắc chắn giúp mở rộng không gian sống. Hơn nữa, nó giúp mang ánh sáng và gió tự nhiên và bên trong nội thất. Phần chân móng được ốp đá tạo nên sự trẻ trung không kém phần trang trọng cho ngôi nhà.

Hình ảnh: Góc nhìn đẹp của biệt thự mái Nhật
Nổi bật là mái Nhật đỏ vừa hợp mệnh với gia chủ lại phù hợp với sở thích của chủ đầu tư. Mái được thiết kế tỉ lệ cân đối với chiều cao, chiều rộng của căn nhà, Từ đó giúp giảm hấp thụ nhiệt ở phần mái và làm thoáng mát không gian bên trong. Cũng vì lý do đó mà mái Nhật hiện đang là xu hướng của biệt thự nhà vườn hiện nay.
Tọa lạc trên một khu đất rộng nên cổng được thiết kế và dành cho ô tô di chuyển. Phần mái ở cổng cũng được thiết kế đồng nhất với mái của căn nhà cuốn hút người xem ngay từ cái nhìn đầu tiên. Biệt thự nhà vườn còn gây ấn tượng bởi hệ thống cây xanh được bố trí khoa học giúp mang đến một không khí trong lành, là nơi thư giãn cho gia đình chủ đầu tư.

Hình ảnh: Góc nhìn đẹp của biệt thự mái Nhật
Bên cạnh đó, chỉ với 1 tầng nhưng yêu cầu công năng sử dụng khá cao, mẫu nhà vườn 1 tầng 4 phòng ngủ tại Hà Nam được bố trí cực khéo léo để đảm bảo nhu cầu của gia đình. Theo đó, phòng khách được bố trí trung tâm và được thiết kế mở với không gian bếp ăn và không gian thờ giúp tạo cảm giác không gian sinh hoạt chung rộng; phòng ngủ người lớn tuổi được tách riêng với không gian sống 3 phòng ngủ của gia đình gia chủ. Tất cả kiến trúc từ nội thất, ngoại thất và sân vườn mẫu thiết kế biệt thự đẹp 1 tầng này đều được các kiến trúc sư tỉ mỉ thiết kế nhằm đáp ứng các yêu cầu, ý tưởng thiết kế của gia chủ, góp phần tạo nên một không gian sống trong mơ mà chủ đầu tư yêu thích.
Hồ sơ mẫu nhà vườn 1 tầng 4 phòng ngủ bao gồm:
- Bản vẽ chi tiết kiến trúc và phối cảnh ngoại thất 3D
- Bản vẽ chi tiết nội thất, phối cảnh nội thất 3D
- Bản vẽ kết cấu công trình
- Bản vẽ hệ thống ME (Điện – Nước – Điều hòa – Thông gió – An ninh…)
- Dự toán công trình: chi tiết chi phí xây dựng – Tổng mức đầu tư
- Toàn bộ hồ sơ thiết kế công năng các phòng và kiến trúc đều được tư vấn hợp theo Phong thủy và tuổi của chủ đầu tư. Kích thước các phòng, chiều cao nhà và kích thước cửa đều theo kích thước phong thủy.
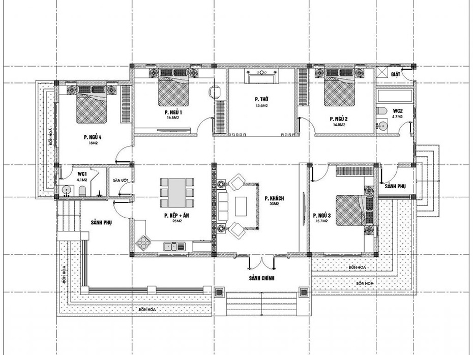
Công năng của biệt thự 1 tầng gồm : 1 Phòng khách, 1 phòng thờ, 4 phòng ngủ , 3 nhà vệ sinh, 1 phòng bếp + ăn.
Có thể nói rằng biệt thự nhà vườn dành cho những ai yêu thích cái đẹp thiên nhiên. Nếu bạn nằm trong số đó thì liên hệ với SMALLHOME nhé.
Video chi tiết về mẫu Biệt thự nhà vườn 1 tầng mái Nhật 4 phòng ngủ tại Hà Nam
Tổng hợp các mẫu thiết kế nhà biệt thự 1 tầng kèm công năng chi tiết :
Biệt thự 1 tầng 4 phòng ngủ
Cả gia chủ nhà và kiến trúc sư đều tìm được ý tưởng thiết kế chung, đó là xây dựng một ngôi nhà biệt thự 1 tầng đơn giản, sự kết hợp các khối kiến trúc cũng đơn giản, không quá sa đà vào các chi tiết rườm rà, phức tạp.

Hình ảnh : Biệt thự 1 tầng mái nhật 4 phòng ngủ
Như các bạn có thể thấy : các cột nhà và bậc thềm được ốp gạch đá vừa sang trọng lại trang nhã. Màu sắc cũng được chọn kỹ lưỡng theo mệnh của chủ nhà. Áp dụng đúng màu sắc trong phong thủy lại kết hợp tính thẩm mỹ cao sẽ càng giúp chủ nhân ngôi nhà gặp thuận lợi trong công việc cũng như tiền tài.

Hình ảnh : Biệt thự 1 tầng mái nhật 4 phòng ngủ

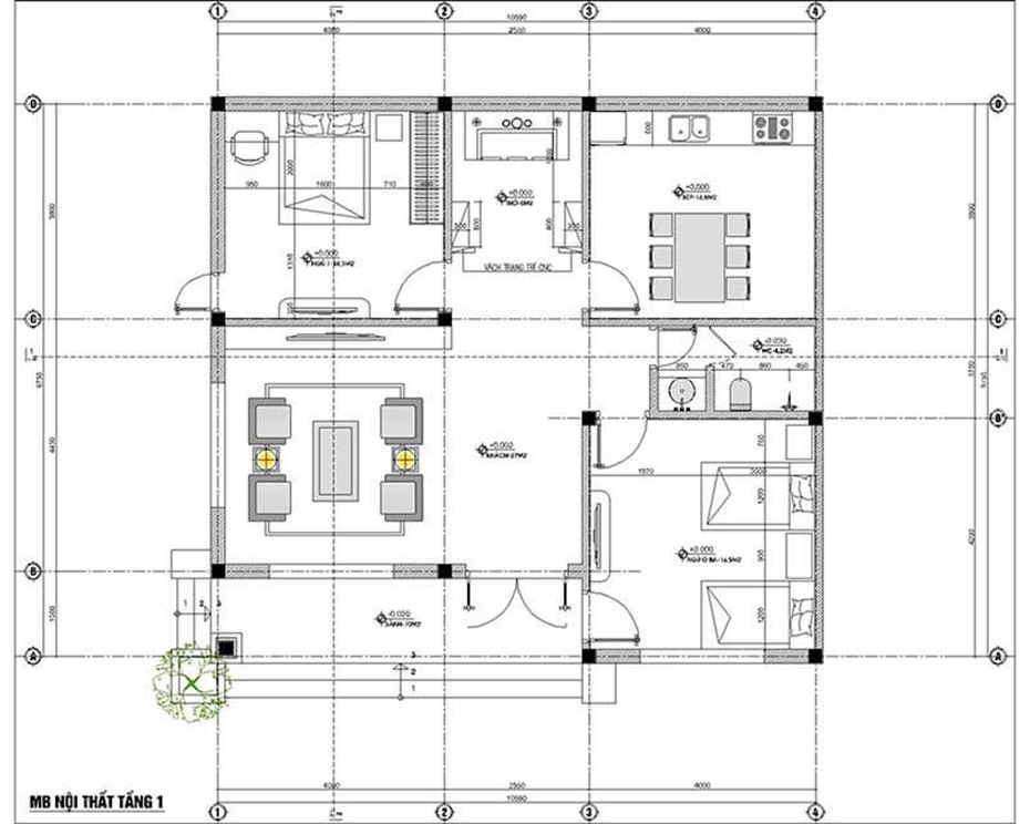
Hình ảnh : Công năng chi tiết Biệt thự 1 tầng mái nhật 4 phòng ngủ
Mẫu nhà cấp 4 2 phòng ngủ 1 phòng thờ 100m2 mái thái

Hình ảnh: Mặt tiền của mẫu nhà vườn 1 tầng mái thái
Dẫn đầu trong xu thế nhà vườn hiện đại hay biệt thự nhà vườn hiện nay chính là các mẫu nhà mái thái, mái nhật hiện đại và tân cổ điển. Hiện nay mọi người đã không còn mặn mà với cảnh sống chật chội trong nhà ống hay chung cư, vì thế người ta tìm đến không gian sống thoải mái, rộng rãi, hòa mình vào thiên nhiên.

Hình ảnh : Bản vẽ mặt bằng nhà cấp 4 2 phòng ngủ 1 phòng thờ 100m2
Mẫu thiết kế biệt thự vườn 1 tầng mái nhật xanh đẹp

Hình ảnh : Mặt tiền biệt thự vườn 1 tầng mái nhật xanh đẹp
Đây là mẫu biệt thự giúp tiết kiệm diện tích và chi phí xây dựng. Phong cách thiết kế hòa hợp với thiên nhiên xung quanh. Vườn kết hợp với ngôi nhà sẽ giải tỏa bớt căng thẳng cho chủ nhà , mang lại sự thư thái và sảng khoái tinh thần. Nếu nhu cầu công năng sử dụng không cao nhưng đầy đủ tiện nghi thì loại biệt thự 1 tầng này rất phù hợp với các gia đình ít thành viên

Hình ảnh : Góc nghiêng biệt thự vườn 1 tầng mái nhật xanh đẹp

Hình ảnh : Góc nghiêng biệt thự vườn 1 tầng mái nhật xanh đẹp

Hình ảnh : Công năng biệt thự vườn 1 tầng mái nhật xanh đẹp
Công năng căn biệt thự gồm có: 1 phòng khách, 1 phòng thờ, 1 bếp ăn, 4 phòng ngủ, 2 wc
Không gian thiết kế cực kì mạch lạc, khá thoáng đãng với hệ thống cửa chính và cửa sổ được phân bổ hợp lý. Mời quý vị và các bạn cùng tham khảo những phối cảnh kiến trúc, mặt bằng của mẫu biệt thự 1 tầng mang phong cách kiến trúc hiện đại
Mẫu thiết kế biệt thự nghỉ dưỡng 1 tầng mái thái đẹp

Hình ảnh : Góc nghiêng biệt thự nghỉ dưỡng 1 tầng mái thái đẹp
Không cần là một căn biệt thự xa hoa lộng lẫy, chủ nhà chỉ đơn giản là muốn một không gian tĩnh lặng và đầm ấm trong những lúc ở nhà. Thiết kế căn biệt thự nghỉ dưỡng này có kinh phí hơn 1,2 tỷ đồng. Căn biệt thự có đầy đủ công năng như sau:
Công năng : 3 phòng ngủ, 1 phòng khách, 1 bếp ăn, 1 gian thờ, 3 WC, sân vườn

Hình ảnh : Biệt thự nghỉ dưỡng 1 tầng mái thái đẹp

Hình ảnh : Biệt thự nghỉ dưỡng 1 tầng mái thái đẹp
Sân lớn kết hợp hồ nhỏ , lối vào được xây dựng đi qua cầu khá độc đáo. Hệ thống mái kiên cố và được thiết kế đặc biệt để bảo vệ căn nhà trước mưa gió lớn. Bể bơi nhỏ cạnh nhà cũng là nơi rèn luyện sức khỏe và thư giãn sau một ngày làm việc mệt mỏi.
Mẫu nhà vườn 1 tầng hiện đại với diện tích 170m2

Hình ảnh : Nhà vườn 1 tầng hiện đại với diện tích 170m2
Nhà với thiết kế mái màu xanh nước biển đậm trong rất bắt mắt trên nên sơn màu trắng tinh. Những màu tương phản nhau tạo nên sự nổi bật cho căn nhà. Hệ thống cửa kính tối màu với kích thước thiết kế cân đối không quá lớn cũng không quá bé. Tất cả tạo nên một tổng thể hài hòa mà lại khá bắt mắt.

Hình ảnh : Nhà vườn 1 tầng hiện đại với diện tích 170m2
Diện tích cũng khá rộng cho gia đình gồm 4 người. Căn nhà có đầy đủ các phòng và tính năng thiết
Công năng gồm có : 1 phòng khách, 1 phòng bếp, 3 phòng ngủ, 2 wc, 1 phòng thờ riêng.

Hình ảnh : Nhà vườn 1 tầng hiện đại với diện tích 170m2
Phần chân nhà và vách tường giữa được ốp đá tự nhiên tạo sự độc đáo và đặc trưng cho căn nhà. Những bồn hoa cây cảnh cũng được thiết kế để tạo vẻ tươi xanh cho khu nhà ở. Hệ thống vườn nhỏ xung quanh cũng được trồng những cây hợp phong thủy với chủ nhà.
Cùng xem căn Nhà vườn 1 tầng có gác lửng siêu đẹp

Hình ảnh : Nhà vườn 1 tầng có gác lửng siêu đẹp
Hôm nay Kiến Trúc & Nội Thất Smallhome sẽ giới thiệu đến cho các bạn mẫu nhà vườn 1 tầng có gác lửng. Cùng đi xem mẫu nhà vườn này có công năng như thế nào nhé.
Với diện tích 150m2 , chúng tôi đã thiết kế mẫu nhà với đầy đủ công năng theo yêu cầu của chủ nhà như sau:
- Tầng 1 : 1 phòng khách, 1 phòng bếp, 2 phòng ngủ, 2 wc
- Tầng lửng : 2 phòng ngủ, 1 wc, 1 phòng thờ, sân phơi

Hình ảnh : Nhà vườn 1 tầng có gác lửng siêu đẹp
Phần mái theo kiến trúc xếp nối mái, rất đẹp và độc đáo. Tạo nét kiến trúc đẹp mà ít thiết kế 1 mái nào khác mang lại. Nếu như ô cửa nhỏ và ống khói mà bạn hay xem hoặc nhìn thấy ở các nhà ở nước ngoài thì nay cũng được thấy ở thiết kế này. Nó mang hơi hướm của Châu Âu, nhưng nhẹ nhàng và vẫn mang nét thẩm mỹ của người Á Châu. Không gian cũng vừa phải , hợp lý cho một gia đình gồm 4 người.

Hình ảnh : Nhà vườn 1 tầng có gác lửng siêu đẹp
Sân vườn được thiết kế là cỏ tự nhiên và có xếp đá tảng bằng được cắt khéo léo sao cho tự nhiên nhất.Trước nhà có xếp đá nhỏ tạo bồn hoa có cây cảnh đẹp xung quanh. Ngoài ra có đá xếp non bộ và viền vườn tạo khung cảnh thật gần gũi với thiên nhiên. Sảnh nhỏ bên cạnh cửa ra vào làm nơi thư giãn cho gia đình như những bữa ăn nhẹ, trà chiều,... Hai bên cạnh nhà là lối đi nhỏ xếp bằng đá, đi lại từ trước ra sau nhà sao cho thuận tiện nhất. Đảm bảo sự lưu thông năng lượng, giống như sắp xếp giường ngủ cũng cần có khoảng trống với tường vậy. Đó chính là yếu tố giống như trong phong thủy phòng ngủ.
Màu sắc chủ đạo là trắng , xám nhạt , tường ốp đá trang trí cũng là maù xám nhạt. Ngoài ra , khung cửa, ngoại thất đều có màu vàng nâu, làm nổi bật lên trên nền màu trắng và xám tạo nên sự sắc nét cho căn nhà.
Biệt thự nhà vườn 1 tầng có gác lửng với kinh phí 1,4 tỷ

Hình ảnh : Nhà vườn 1 tầng có gác lửng với kinh phí 1,4 tỷ
Nếu bạn đã quen thuộc với những căn biệt thự nhà vườn 2 tầng mái thái đẹp hay biệt thự tân cổ điển. Hãy cùng chiêm ngưỡng thêm mẫu biệt thự nhà vườn 1 tầng sau đây.
Căn nhà với thiết kế nhà vườn một tầng vô cùng hiện đại. Với kiến trúc đơn giản mà tinh tế, nhẹ nhàng mà hiện đại. Các kiến trúc sư Nhà Việt mới đã và đang làm việc hết sức siêng năng để mang đến khách hàng sự hài lòng nhất. Cùng ngắm nhìn lối kiến trúc nhà 1 tầng đẹp có hành lang của căn nhà sau

Hình ảnh : Nhà vườn 1 tầng có gác lửng với kinh phí 1,4 tỷ
Nhìn căn nhà với cấu trúc đơn giản mà hiện đại, chúng tôi đã tư vấn cho chủ nhà những phương án tối ưu nhất. Phù hợp với sở thích và mong muốn của gia đình với căn nhà 1,5 tầng. Gồm tầng 1 và tầng lửng. Phong cách này mang đến một cảm giác mới lạ hơn so với những mẫu trước đó.
Ở tầng 1 với 2 phòng ngủ, 1 phòng khách, 2 wc và 1 sân vườn. Trên tầng lửng gồm 1 phòng ngủ, 1 sân phơi và 1 wc.

Hình ảnh : Nhà vườn 1 tầng có gác lửng với kinh phí 1,4 tỷ
Điểm nổi bật là sự vuông vức, gọn gàng của ngôi nhà được bao bọc bởi tường bao trắng. Sân vườn nhiều cây cối và có thảm cỏ xanh mượt. Điều này tạo nên sự gần gũi và vẻ đẹp đúng chất của một nhà vườn. Ngôi biệt thự mái thái đẹp xinh không chỉ để tiết kiệm được diện tích mà còn toát lên vẻ ấm cúng thuần túy của một tổ ấm gia đình.Phong cách 1 tầng không to lớn đồ sộ mà ngược lại đơn giản và nhẹ nhàng.
Từ trên xuống biệt thự nổi bật giữa thiên nhiên. Bên cạnh là sân vườn vừa có thể vui chơi vừa làm nơi đỗ xe đi lại thuận tiện. Ngoài ra còn có một sảnh nhỏ để làm nơi thư giãn , uống cà phê hay trà trong ngày.

Hình ảnh : Nhà vườn 1 tầng có gác lửng với kinh phí 1,4 tỷ
Các bậc lên xuống có độ cao thấp sẽ tinh tế và đẹp hơn. Dù không đồ sộ, bề thế, hoành tráng mà cực kì dễ chịu. Gia đình có trẻ em hay người già thì bậc tam cấp có vẻ rất thuận lợi và phù hợp. Ngoài ra còn tạo cảm giác gần gũi cho các vị khách khi đến chơi.
TOP 47 mẫu thiết kế biệt thự nhà vườn 1 tầng đẹp nhất mọi thời đại
Thiết kế nhà cấp 4 cũng giống như một số mẫu thiết kế nhà biệt thự vườn khác đều chứa đựng những nét đặc trưng từ kiến trúc thấp tầng. Phong cách và kiểu dáng đa dạng, cách phối màu sắc hài hoà trong kiến trúc, nhà cấp 4 luôn nhận được sự đánh giá cao về tính thẩm mỹ, công năng hữu dụng trong cuộc sống.

Hình ảnh mẫu 1 : Biệt thự nhà vườn 1 tầng đẹp nhất mọi thời đại

Hình ảnh mẫu 2 : Biệt thự nhà vườn 1 tầng đẹp nhất mọi thời đại

Hình ảnh mẫu 3 : Biệt thự nhà vườn 1 tầng đẹp nhất mọi thời đại

Hình ảnh mẫu 4 : Biệt thự nhà vườn 1 tầng đẹp nhất mọi thời đại

Hình ảnh mẫu 5 : Biệt thự nhà vườn 1 tầng đẹp nhất mọi thời đại

Hình ảnh mẫu 6: Biệt thự nhà vườn 1 tầng đẹp nhất mọi thời đại

Hình ảnh mẫu 7 : Biệt thự nhà vườn 1 tầng đẹp nhất mọi thời đại

Hình ảnh mẫu 8 : Biệt thự nhà vườn 1 tầng đẹp nhất mọi thời đại

Hình ảnh mẫu 9 : Biệt thự nhà vườn 1 tầng đẹp nhất mọi thời đại

Hình ảnh mẫu 10 : Biệt thự nhà vườn 1 tầng đẹp nhất mọi thời đại

Hình ảnh mẫu 11 : Biệt thự nhà vườn 1 tầng đẹp nhất mọi thời đại

Hình ảnh mẫu 12 : Biệt thự nhà vườn 1 tầng đẹp nhất mọi thời đại

Hình ảnh mẫu 13 : Biệt thự nhà vườn 1 tầng đẹp nhất mọi thời đại

Hình ảnh mẫu 14 : Biệt thự nhà vườn 1 tầng đẹp nhất mọi thời đại

Hình ảnh mẫu 15 : Biệt thự nhà vườn 1 tầng đẹp nhất mọi thời đại

Hình ảnh mẫu 16 : Biệt thự nhà vườn 1 tầng đẹp nhất mọi thời đại

Hình ảnh mẫu 17 : Biệt thự nhà vườn 1 tầng đẹp nhất mọi thời đại

Hình ảnh mẫu 18 : Biệt thự nhà vườn 1 tầng đẹp nhất mọi thời đại

Hình ảnh mẫu 19 : Biệt thự nhà vườn 1 tầng đẹp nhất mọi thời đại

Hình ảnh mẫu 20 : Biệt thự nhà vườn 1 tầng đẹp nhất mọi thời đại

Hình ảnh mẫu 21 : Biệt thự nhà vườn 1 tầng đẹp nhất mọi thời đại

Hình ảnh mẫu 22 : Biệt thự nhà vườn 1 tầng đẹp nhất mọi thời đại

Hình ảnh mẫu 23 : Biệt thự nhà vườn 1 tầng đẹp nhất mọi thời đại

Hình ảnh mẫu 24 : Biệt thự nhà vườn 1 tầng đẹp nhất mọi thời đại

Hình ảnh mẫu 25 : Biệt thự nhà vườn 1 tầng đẹp nhất mọi thời đại

Hình ảnh mẫu 26 : Biệt thự nhà vườn 1 tầng đẹp nhất mọi thời đại

Hình ảnh mẫu 27 : Biệt thự nhà vườn 1 tầng đẹp nhất mọi thời đại

Hình ảnh mẫu 28 : Biệt thự nhà vườn 1 tầng đẹp nhất mọi thời đại

Hình ảnh mẫu 29 : Biệt thự nhà vườn 1 tầng đẹp nhất mọi thời đại

Hình ảnh mẫu 30 : Biệt thự nhà vườn 1 tầng đẹp nhất mọi thời đại

Hình ảnh mẫu 31 : Biệt thự nhà vườn 1 tầng đẹp nhất mọi thời đại

Hình ảnh mẫu 32 : Biệt thự nhà vườn 1 tầng đẹp nhất mọi thời đại

Hình ảnh mẫu 33 : Biệt thự nhà vườn 1 tầng đẹp nhất mọi thời đại

Hình ảnh mẫu 34 : Biệt thự nhà vườn 1 tầng đẹp nhất mọi thời đại

Hình ảnh mẫu 35 : Biệt thự nhà vườn 1 tầng đẹp nhất mọi thời đại

Hình ảnh mẫu 36 : Biệt thự nhà vườn 1 tầng đẹp nhất mọi thời đại

Hình ảnh mẫu 37 : Biệt thự nhà vườn 1 tầng đẹp nhất mọi thời đại

Hình ảnh mẫu 38 : Biệt thự nhà vườn 1 tầng đẹp nhất mọi thời đại

Hình ảnh mẫu 39 : Biệt thự nhà vườn 1 tầng đẹp nhất mọi thời đại

Hình ảnh mẫu 40 : Biệt thự nhà vườn 1 tầng đẹp nhất mọi thời đại

Hình ảnh mẫu 41 : Biệt thự nhà vườn 1 tầng đẹp nhất mọi thời đại

Hình ảnh mẫu 42 : Biệt thự nhà vườn 1 tầng đẹp nhất mọi thời đại

Hình ảnh mẫu 43 : Biệt thự nhà vườn 1 tầng đẹp nhất mọi thời đại

Hình ảnh mẫu 44 : Biệt thự nhà vườn 1 tầng đẹp nhất mọi thời đại
Nếu bạn có nhu cầu cần tư vấn hoặc thiết kế một mẫu nhà cấp 4 đẹp hoặc những thiết kế nhà biệt thự 1 tầng, 2 tầng, 3 tầng, thậm chí là các mẫu dinh thự 1 tầng, liên hệ ngay với chúng tôi. Smallhome chắc chắn sẽ mang đến những thiết kế nhà cấp 4 đẹp nhất, hoàn hảo nhất, phù hợp nhất đối với yêu cầu của gia đình bạn.












