THIẾT KẾ KIẾN TRÚC BIỆT THỰ TÂN CỔ ĐIỂN TUYỆT ĐẸP TẠI HÀ NAM
I. THIẾT KẾ KIẾN TRÚC BIỆT THỰ TÂN CỔ ĐIỂN TẠI HÀ NAM


II. BẢN VẼ MẶT BẰNG - BỐ TRÍ CÔNG NĂNG

Mặt bằng tầng 1: Phòng khách, bếp + phòng ăn, WC, phòng ngủ + WC, phòng làm việc
Bếp và phòng ăn hướng về phía tay trái với không gian mở kết nối với phòng khách
Dưới chân cầu thang tận dụng thiết kế nhà vệ sinh nhỏ cùng với kho chứa đố đảm bảo sự gọn gàng ở tầng trệt.
Tầng trệt biệt thự 3 tầng tân cổ điển có một phòng ngủ rộng bao gồm không gian nghỉ ngơi, phòng thay đồ, nhà vệ sinh khép kín bên trong mang đến sự thư giãn riêng tư thoải mái.
Phòng làm việc với diện tích vừa đủ bố trí cạnh phòng khách có cửa sổ hướng ra sân trước giúp cho việc ngắm nhìn thiên nhiên được dễ dàng.

Mặt bằng tầng 2: 3 Phòng ngủ + WC, phòng sinh hoạt chung
- Thiết kế phòng ngủ master hướng ra ban công phía trước, phòng ngủ thông thoáng có nhà tắm xung quanh
- 2 Phòng ngủ dành cho các con nhỏ cũng có WC bên trong, hệ thống cửa sổ thông thoáng giúp cho việc đón sáng được tốt nhất.
- Phòng sinh hoạt chung được bố trí gần sảnh thang nhằm tối ưu được diện tích cung cấp không gian thư giãn nghỉ ngơi, sum họp cho các thành viên trong gia đình.

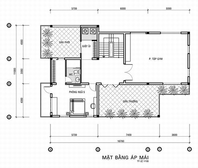
Mặt bằng tầng 3: Phòng tập gym, sân thượng, phòng ngủ + WC, sân phơi
- Thiết kế phòng ngủ dành cho người giúp việc ở trên lầu 2 với nội thất tiện nghi có WC bên trong
- Phòng tập gym gần với khoảng sân thượng khá rộng và thoáng cung cấp không gian thư giãn, giải trí tiện lợi
- Khu vực giặt ủi, phòng phơi đồ hướng đối lưu nên đón nắng và gió khá tốt đảm bảo sự thông thoáng.
-------------------------------------------------------------
Thiết kế kiến trúc & nội thất Smallhome
Smallhome chuyên trong lĩnh vực thiết kế kiến trúc, nội thất. Chúng tôi – KTS Smallhome bằng những kinh nghiệm dày dặn, khả năng sáng tạo không ngừng và kỹ năng nắm bắt xu hướng nhạy bén. Luôn luôn hướng tới sự hoàn hảo và cố gắng hết mình để tạo ra sản phẩm đáp ứng mong muốn khách hàng. Làm hài lòng đến cả những vị gia chủ khó tính nhất!
Liên hệ ngay với chúng tôi để được TƯ VẤN MIỀN PHÍ giải pháp Thiết Kế Không Gian và Nội Thất cho biệt thự của bạn.
Gọi ngay HOTLINE: 09626.859.39 (KTS. Trung Hiếu) hoặc để lại thông tin tại Form Đăng Ký bên dưới.









