BIỆT THỰ TÂN CỔ ĐIỂN KIẾN TRÚC CHỮ L SANG TRỌNG ĐỘC ĐÁO TẠI NINH BÌNH.
I. THIẾT KẾ KIẾN TRÚC BIỆT THỰ TÂN CỔ ĐIỂN KIẾN TRÚC CHỮ L TẠI NINH BÌNH




II. BẢN VẼ MẶT BẰNG - BỐ TRÍ CÔNG NĂNG BIỆT THỰ TÂN CỔ ĐIỂN KIẾN TRÚC CHỮ L TẠI NINH BÌNH

Mặt bằng tầng 1: Gara để xe, phòng khách, bếp + phòng ăn, phòng ngủ, WC
- Với thiết kế hình chữ L biệt thự có khoảng sân phía trước dành cho khu vực đậu xe hoặc sân chơi rất tiện lợi và thông thoáng.
- Từ cửa chính đi vào là phòng khách, bếp + phòng ăn được bố trí liền kề với nhau trong một không gian mở. Các phòng được phân chia diện tích, bố trí nội thất hợp lý đảm bảo công năng cũng như thẩm mỹ
- Phòng ngủ nhỏ dưới tầng trệt cung cấp chỗ nghỉ ngơi thoải mái
- Khu vực cầu thang kết hợp với WC sinh hoạt chung cho các thành viên trong gia đình một cách khéo léo nhằm tiết kiệm diện tích một cách tối đa.

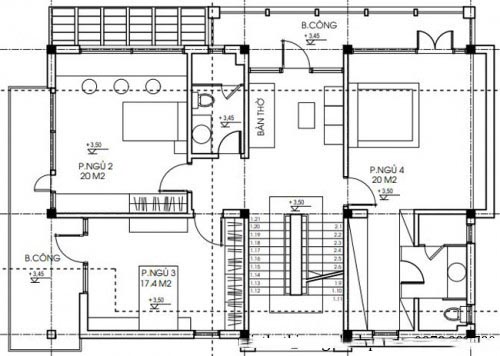
Mặt bằng tầng 2: 3 phòng ngủ, 2 WC
- Phòng ngủ master dành cho vợ chồng gia chủ sở hữu diện tích tương đối lớn. Căn phòng được bố trí nội thất tiện nghi với WC bên trong nhằm mang tới sự riêng tư nhất định
- Trong khi đó 2 phòng ngủ nhỏ dành cho các con được thiết kế nhà vệ sinh bên ngoài để có thể tối ưu diện tích đảm bảo sự thông thoáng bên trong tạo ra không gian nghỉ ngơi, vui chơi thoáng đãng.
- Khu vực sảnh thang được thiết kế là khu vực thờ nhằm đảm bảo sự yên tĩnh

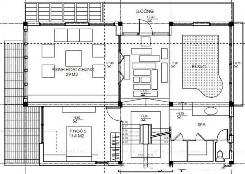
Mặt bằng tầng 3: Phòng sinh hoạt chung, phòng ngủ, Spa, Gym
- Tầng 3 dành cho khu vực thư giãn tại nhà với thiết kế khu vực Spa, Gym cùng với đó là không gian sinh hoạt chung rộng rãi thoải mái
- Phòng ngủ nhỏ được bố trí trên tầng 3 cung cấp cho việc nghỉ ngơi được thoải mái tiện lợi hơn
III. THIẾT KẾ NỘI THẤT BIỆT THỰ TÂN CỔ ĐIỂN KIẾN TRÚC CHỮ L TẠI NINH BÌNH
















