BIỆT THỰ TÂN CỔ ĐIỂN PHONG CÁCH PHÁP ĐẸP NGÂY NGẤT TẠI NAM ĐỊNH
I. THIẾT KẾ KIẾN TRÚC BIỆT THỰ TÂN CỔ ĐIỂN PHONG CÁCH PHÁP TẠI NAM ĐỊNH




II. BẢN VẼ MẶT BẰNG - BỐ TRÍ CÔNG NĂNG BIỆT THỰ TÂN CỔ ĐIỂN PHONG CÁCH PHÁP TẠI NAM ĐỊNH

Mặt bằng tầng 1: Phòng khách, phòng thờ, bếp + phòng ăn, phòng ngủ, WC
- Từ của chính đi vào là khu vực sảnh thông thoáng được trang trí những họa tiết bắt mắt tiếp đến là khu vực sảnh thang. Các phòng được phân tách ra làm 2 bên
- Khu vực phòng khách được bố trí bên trái của ngôi nhà gắn liền với không gian bếp, khu vực ăn uống rất tiện lợi, thoải mái trong quá trình sinh hoạt
- Phòng thờ được bố trí phía bên phải của ngôi nhà để thuận tiện cho việc thờ phụng, tiếp đến là phòng ngủ. Việc sắp xếp này góp phần mang đến sự yên tĩnh cho việc nghỉ ngơi.
- Nhà vệ sinh ở tầng trệt nhà biệt thự mái thái 3 tầng được dùng chung được bố trí rất khoa học

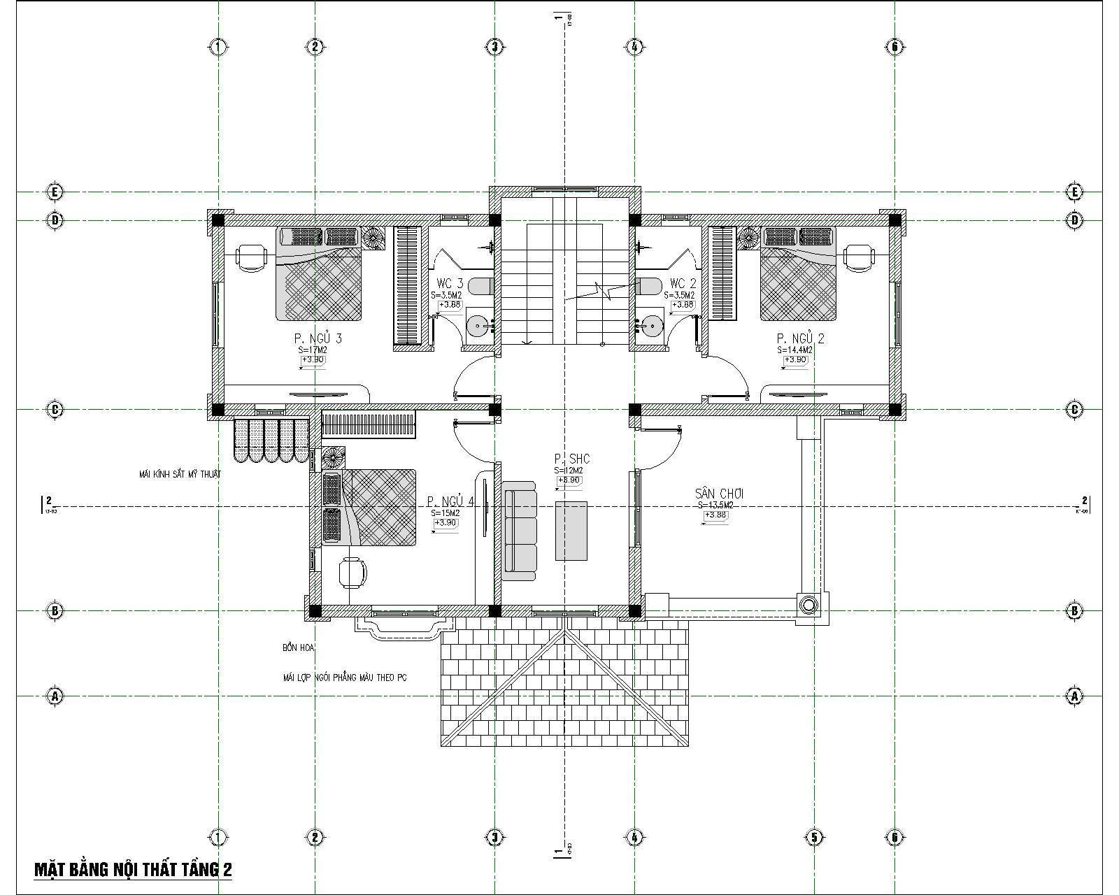
Mặt bằng tầng 2: 3 Phòng ngủ, 2 WC, sân phơi, khu vực sinh hoạt chung
- Tầng 2 nhà biệt thự mái thái 3 tầng gồm có 3 phòng ngủ, trong đó phòng ngủ master rộng rãi được bố trí nhà vệ sinh bên trong mang lại sự riêng tư thoải mái trong quá trình thư giãn nghỉ ngơi.
- Phòng ngủ các con được bố trí nhà vệ sinh bên ngoài nhằm tối ưu diện tích hiệu quả, tạo sự thông thoáng bên trong, mỗi phòng đều được sắp xếp nội thất khoa học.
- Khu vực sảnh thang được tận dụng làm khu vực sinh hoạt chung cho gia đình với bộ bàn ghế sofa như một phòng khách
- Sân phơi trên tầng lầu rộng thoáng

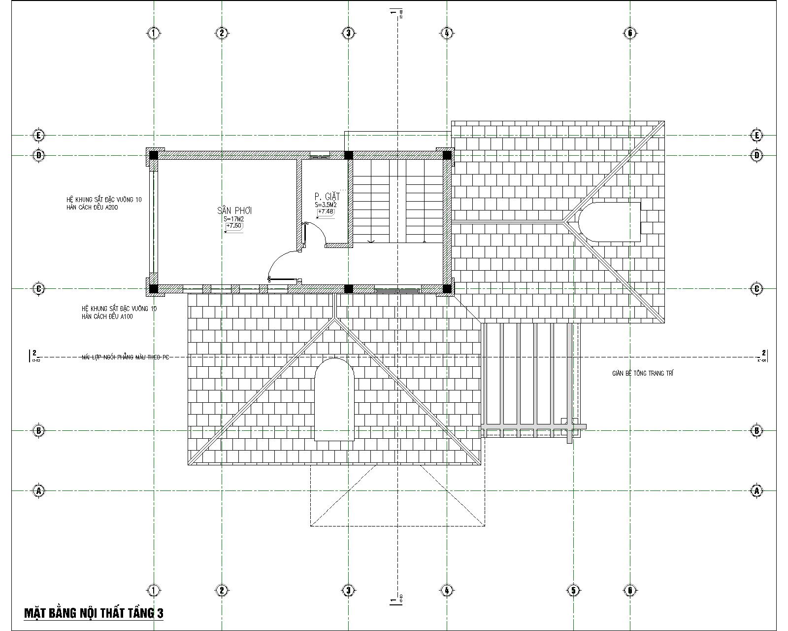
Mặt bằng tầng 3: Phòng giặt, sân phơi
III. THIẾT KẾ NỘI THẤT BIỆT THỰ TÂN CỔ ĐIỂN PHONG CÁCH PHÁP TẠI NAM ĐỊNH





_____________________________________
Thiết kế kiến trúc & nội thất Smallhome
Smallhome chuyên trong lĩnh vực thiết kế kiến trúc, nội thất. Chúng tôi – KTS Smallhome bằng những kinh nghiệm dày dặn, khả năng sáng tạo không ngừng và kỹ năng nắm bắt xu hướng nhạy bén. Luôn luôn hướng tới sự hoàn hảo và cố gắng hết mình để tạo ra sản phẩm đáp ứng mong muốn khách hàng. Làm hài lòng đến cả những vị gia chủ khó tính nhất!
Liên hệ ngay với chúng tôi để được TƯ VẤN MIỀN PHÍ giải pháp Thiết Kế Không Gian và Nội Thất cho biệt thự của bạn.
Gọi ngay HOTLINE: 09626.859.39 (KTS. Trung Hiếu) hoặc để lại thông tin tại Form Đăng Ký bên dưới.









