THIẾT KẾ BIỆT THỰ TÂN CỔ ĐIỂN 17X17M TỐI GIẢN TẠI HÀ NỘI
I. THIẾT KẾ KIẾN TRÚC BIỆT THỰ TÂN CỔ ĐIỂN TẠI HÀ NỘI


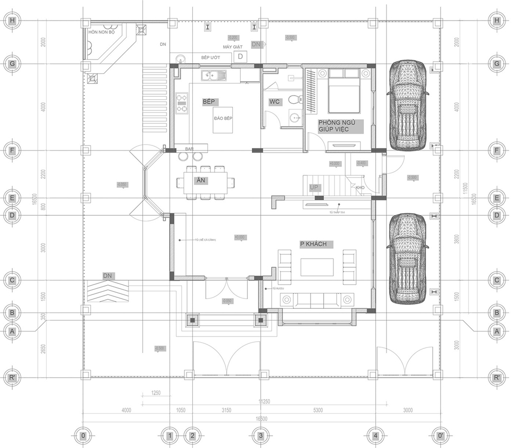
II. BẢN VẼ MẶT BẰNG - BỐ TRÍ CÔNG NĂNG BIỆT THỰ TÂN CỔ ĐIỂN TẠI HÀ NỘI.

Tầng 1 gồm: Sảnh, phòng khách, bếp, phòng ăn, phòng ngủ người giúp việc.
- Bước lên bậc tam cấp biệt thự tân cổ điển 17x17m được KTS bố trí một phòng tiếp khách rộng rãi nằm bên phải lối đi. Phía sau sảnh là phòng ăn và nhà bếp đặt trong cùng.
- Một cầu thang thông tầng đặt giữa phòng khách và phòng ngủ người giúp việc để kết nối không gian tầng 1 với các tầng còn lại.
- Ngoài khu vực bếp và đảo bếp chính KTS còn bố trí một khu vực bếp và phòng giặt ngoài trời để thuận tiện cho việc vệ sinh và làm sạch hàng ngày.
- Cạnh khu bếp ngoài trời là tiểu cảnh cây xanh và hòn non bộ được làm nơi thư giãn cho các thành viên trong nhà.

Tầng 2 gồm: Phòng sinh hoạt chung, phòng ngủ master, phòng ngủ các con
- Khu vực tầng 2 được tập trung bố trí dành cho các sinh hoạt cá nhân với một phòng sinh hoạt chung nằm đối diện cầu thang.
- Phòng ngủ master thiết kế rộng rãi với nhà vệ sinh và một phòng xông hơi đặt ngay bên trong.
- Phòng của hai đứa con anh Quy bố trí chung một nhà vệ sinh cạnh cầu thang để tiết kiệm diện tích.

Tầng 3 gồm: Phòng làm việc, phòng thờ, phòng giặt, phòng rượu, sân thượng, sân phơi
- Với cường độ làm việc cao lại thường xuyên phải làm thêm ở nhà vào buổi tối nên anh Quy đã gợi ý cho các KTS bố trí một phòng làm việc riêng ở tầng 3 để anh tập trung giải quyết công việc.
- Cạnh phòng làm việc là kho dùng để lưu trữ tài liệu cũng như những dụng cụ lặt vặt, ít khi sử dụng.
- Một phòng rượu đặt cạnh kho rộng rãi.
- Phòng thờ đặt cạnh sân thượng tạo không gian thoáng và rộng để thoát mùi nhang khói.
III. THIẾT KẾ NỘI THẤT BIỆT THỰ TÂN CỔ ĐIỂN TẠI HÀ NỘI

















-------------------------------------------------------------
Thiết kế kiến trúc & nội thất Smallhome
Smallhome chuyên trong lĩnh vực thiết kế kiến trúc, nội thất. Chúng tôi – KTS Smallhome bằng những kinh nghiệm dày dặn, khả năng sáng tạo không ngừng và kỹ năng nắm bắt xu hướng nhạy bén. Luôn luôn hướng tới sự hoàn hảo và cố gắng hết mình để tạo ra sản phẩm đáp ứng mong muốn khách hàng. Làm hài lòng đến cả những vị gia chủ khó tính nhất!
Liên hệ ngay với chúng tôi để được TƯ VẤN MIỀN PHÍ giải pháp Thiết Kế Không Gian và Nội Thất cho biệt thự của bạn.
Gọi ngay HOTLINE: 09626.859.39 (KTS. Trung Hiếu) hoặc để lại thông tin tại Form Đăng Ký bên dưới.









