THIẾT KẾ NHÀ ỐNG 2 TẦNG 1 TUM HIỆN ĐẠI TẠI NAM ĐỊNH

THIẾT KẾ NHÀ ỐNG 2 TẦNG 1 TUM HIỆN ĐẠI TẠI NAM ĐỊNH
THÔNG TIN CHI TIẾT CÔNG TRÌNH.
TÊN CHỦ NHÀ: Anh Kiện .
ĐỊA CHỈ: Nam Định.
PHONG CÁCH: Nhà ống 2 tầng 1 tum hiện đại
KÍCH THƯỚC: 5m x 13.5m.
CÔNG NĂNG:
- TẦNG 1: Sân trước + Phòng khách + Phòng ăn – Bếp + Phòng vệ sinh chung
- TẦNG 2: 2 Phòng ngủ + Phòng vệ sinh chung
- TẦNG TUM: Phòng thờ + sân phơi
MÔ TẢ CHI TIẾT CÔNG TRÌNH.
THIẾT KẾ MẶT TIỀN.
Mẫu thiết kế nhà ống hiện đại 2 tầng 1 tum được kiến trúc sư Smallhome chọn gam màu sáng kết hợp với điểm nhấn là gạch ốp inax màu nâu lên các mảng tường tạo nên sự đối lấp về màu sắc khiến ngôi nhà toát lên vẻ hiện đại và vô cùng nổi bật.

THIẾT KẾ NHÀ ỐNG 2 TẦNG 1 TUM HIỆN ĐẠI
Bên ngoài ngôi nhà là cổng tường rào kiên cố, với thiết kế cổng hiện đại sắt hộp được sơn tĩnh điện màu ghi càng làm cho ngôi nhà khoác lên mình vẻ đẹp sang trọng và nổi bật.
Mặt tiền tầng 2 và tầng tum đều có ban công đua ra , kiến trúc sư sử dụng lan can kính cường lực giúp cho ngôi nhà nhìn rất tối giản về chi tiết nhưng đậm chất phong cách hiện đại mà nhiều khách hàng ưa chuộng hiện nay. Ban công các tầng đều được trồng các cây xanh để tạo không gian tươi mát cho ngôi nhà của mình,
Bên ngoài tất cả các hệ cửa đều lựa chọn cửa nhôm xipha màu ghi vừa tận dụng cửa kính để lấy ánh sáng vào phòng vừa là sự kết hợp hài hòa với các chi tiết trang trí bên ngoài mặt tiền ngôi nhà.
THIẾT KẾ CÔNG NĂNG.
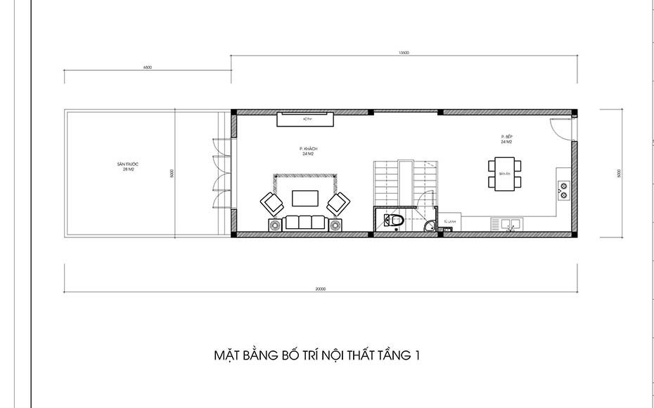
TẦNG 1.
Bước vào cổng ngôi nhà là khoảng sân rộng dãi để gia chủ có thể để xe cộ hay trẻ con trong nhà có 1 khoảng sân chơi nho nhỏ. tiếp đến từ sân bước vào trong ngôi nhà là phòng khách rộng với bộ sofa lớn ngồi tiếp khách và kệ tivi đối diện. Tiếp đến là cầu thang ở giữa, KTS khéo léo đặt nhà vệ sinh nhỏ dưới gầm cầu thang . Vừa tiết kiệm diện tích vừa khéo léo giấu nhà vệ sinh đi. Cuối cùng là khu vực bếp kết hợp với phòng ăn. Có 1 cửa phụ nhở mở ra để lại khu vực phía sau nhà.

THIẾT KẾ NHÀ ỐNG 2 TẦNG 1 TUM HIỆN ĐẠI
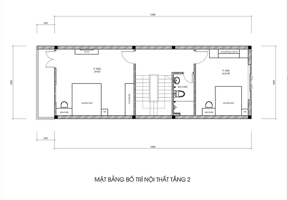
TẦNG 2.
Công năng tầng 2 là không gian nghỉ ngơi của các thành viên trong gia đình. Phòng ngủ phía trước lớn hơn phòng ngủ phía sau thích hợp cho bố mẹ sử dụng. Bên trong phòng kê đầy đủ các vận dụng cần thiết như Giường, tủ, táp, bàn trang điểm và kệ tivi. Phòng ngủ trước có khoảng ban công phí trước để có thể ra hóng gió mỗi khi mệt mỏi căng thẳng.
Kế tiếp phòng ngủ là cầu thang, cạnh cầu thang là nhà vệ sinh chung. Sau cùng là phòng ngủ nhỏ cho con. Phòng ngủ nhỏ có mở 1 cửa sổ lớn đằng sau để lấy anh sáng tự nhiên vào trong phòng. Sự tính toán thiết kế khéo léo mang lại cho ngôi nhà tràn ngập ánh sáng và luôn được trao đổi khí, xua đuổi những khí tồn đọng trong ngôi nhà.

THIẾT KẾ NHÀ ỐNG 2 TẦNG 1 TUM HIỆN ĐẠỊ
TẦNG TUM.
Tầng tum được thiết kế vô cùng đơn giản bao gồm 1 phòng thờ phía trước và phía sau là sân phơi. Phía trước phòng thờ là ban công rộng.

THIẾT KẾ NHÀ ỐNG 2 TẦNG 1 TUM HIỆN ĐẠỊ
Mẫu thiết kế nhà ống hiện đại 2 tầng 1 tum tại Nam Định là một trong những mẫu thiết kế điển hình của phong cách thiết kế nhà ống hiện đại hiện nay. Có thể nói điểm mạnh của những thiết kế này là sự tối giản trong phong cách thiết kế nhưng không thể thiếu trong đó là sự tính toán linh hoạt cuat KTS sao cho các thành viên trong ngôi nhà được sống một cách thoải mái nhất. Quý khách hàng nếu có nhu cầu về thiết kế nhà ống hiện đại các loại hay nhanh tay liên hệ với chung tôi để được tư vấn một cách nhanh nhất. Mọi phương thức tư vấn đều miễn phí.









