Chiêm ngưỡng mẫu nhà phố 3 tầng tại Hải Hậu - Nam Định
Anh Hiệp, Hải Hậu - Nam Định, diện tích: 4x16m, chi phí:1 tỷ
Những mẫu nhà phố hiện đại đang thu hút không ít chủ đầu tư. Không chỉ vì đẹp mà nó dành cho những nhà có diện tích đất mặt tiền hẹp. Vì diện tích hẹp nên khi lên thiết kế cần phải tối ưu hóa diện tích, bố trí như nào để không gian nhà thoáng mát nhưng vẫn đầy đủ tiện nghi và rộng rãi. Nếu bạn đang có dự định làm nhà với mặt tiền chỉ có 4m nhưng chưa tham khảo được mẫu nào phù hợp. Hãy đến với Tân Á chúng tôi, mẫu nhà phố 3 tầng tại TP Vinh- Nghệ An. Cùng chiêm ngưỡng mẫu nhà phố tại Hải Hậu - Nam Định để có thể đưa ra được ý tưởng cho ngôi nhà mơ ước của bạn ngay nào.
Thông tin về mẫu thiết kế:
- Chủ nhà: Anh Võ Sỹ Hiệp
- Địa chỉ: Hải Hậu - Nam Định
- Diện tích: 4x16m
- Chi phí đầu tư: 1 tỷ
Kiến trúc hiện đại thu hút của mẫu nhà phố 3 tầng tại Hải Hậu - Nam Định

Mẫu nhà phố 3 tầng

Góc nghiêng bên phải

Phối cảnh trên cao xuống

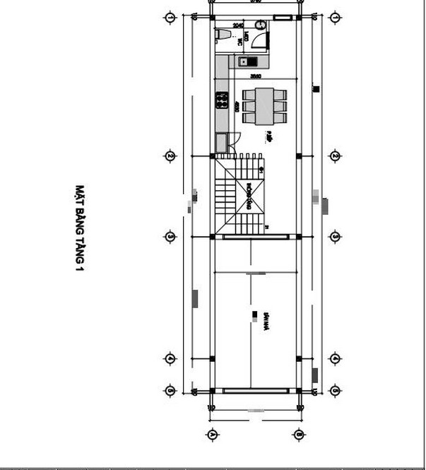
Mặt bằng công năng tầng 1
Tầng 1 vì nhu cầu sử dụng để đậu ô tô nên chủ nhà ưu tiên phần sân rộng. Còn lại để bố trí nhà bếp và nhà vệ sinh
Tầng 2 gồm 1 phòng khách, 1 phòng ngủ, 1 nhà vệ sinh, 1 sân phơi
Tầng 3 gồm 1 phòng thờ, 2 phòng ngủ, 1 nhà vệ sinh, 1 sân phơi









