Phối cảnh mẫu thiết kế nhà phố 5 tầng 40m2 ngoại thất
Thông thường trang trí kiến trúc ngoại cảnh nhà phố mà các chủ đầu tư thường lựa chọn là phong cách hiện đại, thứ nhất để tiết kiệm chi phí, thứ hai do mặt tiền mẫu thiết kế nhà phố đẹp nhỏ thường không quá phù hợp để xây dựng theo loại hình cổ điển, tân cổ điển.

Phối cảnh ngoại thất 3D của nhà phố 5 tầng hiện đại.
Nắm bắt nhu cầu của chủ đầu tư, xây nhà kết hợp ở với kinh doanh. Các kiến trúc sư CGH đã đưa ra phương án thiết kế kiến trúc hiện đại với mặt tiền chủ yếu là sự kết hợp hài hòa giữa cửa chính, cửa sổ và lan can bằng kính trong suốt tạo nên một không gian thoáng đãng phù hợp với nhà mặt tiền, mặt khác tiện cho việc kinh doanh, trưng bày sản phẩm. Ngoài ra điểm nhấn của mẫu nhà phố 5 tầng 40m2 hiện đại này là phần mái bên trên nhìn rất thanh thoát, là nơi gia chủ có thể trồng hoa, hít thở không khí trong lành vào mỗi tối.
Ngoại thất nhà phố 5 tầng 40m2 khá đơn giản nhưng độc đáo
Dễ nhận thấy, ngoại thất của căn nhà khá đơn giản từ cách tạo hình bố cục đến cách kết hợp màu sắc trang trí. Phương án xử lý cho mặt tiền 3,5m hiện đại được CGH lựa chọn là những khối hình và đường nét ngang, việc sắp đặt các mảng tường ngang dọc đan xen, lồi ra lõm vào thông minh vừa có tác dụng giảm bớt sự đơn điệu của loại hình nhà lô phố cao tầng lại mang đến cảm giác rộng rãi.

Góc nghiêng khác của ngôi nhà.
Tầng trệt và lầu 1 được thiết kế ốp gạch hoặc đá tự nhiên tối màu với hoa văn đơn giản nổi bật sự sang trọng, đồng thời ngăn ngừa những ảnh hưởng trực tiếp của thời tiết. Ban công tại các tầng được thiết kế nhô ra hơn so với tầng trệt nhằm tận dụng tối ưu những khoảng trống. Bên cạnh đó, kts còn khéo léo tạo điểm nhấn khi quyết định dùng gạch gốm 1 sọc tại ban công lầu 1 và mảng tường lầu 3 giúp mặt tiền ngôi nhà thêm phần độc đáo.
Sự kết hợp hài hòa giữa các gam màu sáng tối, hệ thống đèn chiếu sáng dày đặc, bố trí cây xanh xung quanh tạo mĩ quan xanh mát cho toàn bộ công trình.
Bản vẽ mặt bằng công năng nhà phố 5 tầng 40m2 tại Thủ Đức
Những ngôi nhà phố có kết hợp kinh doanh không còn là ý tưởng mới mẻ, tuy vậy cách bố trí mặt bằng chia làm hai không gian riêng biệt như mẫu thiết kế nhà phố này thì tương đối độc độc đáo. Mời các bạn độc giả chiêm ngưỡng và tham khảo:
Bản vẽ công năng tầng trệt

Tầng trệt được thiết kế riêng dành cho khu kinh doanh của gia đình. WC bố trí phía sau thuận tiện cho sinh hoạt.
Bản vẽ công năng tầng một

Lầu 1 của nhà phố 3,5mx11m đẹp hiện đại được dùng cho nhu cầu chính của gia đình. Mật độ sàn được thiết kế rộng rãi hơn so với tầng trệt. Vẫn là bộ ba quen thuộc: phòng khách, bếp – bàn ăn. Một giải pháp xử lí không gian mà kts CGH thường sử dụng đó là bố trí vật dụng theo chiều dọc, ưu ái sử dụng hệ thống tủ kệ âm tường nhằm tiết kiệm tối đa diện tích.
Bản vẽ công năng tầng hai và ba

Lầu 2, 3 dành cho không gian nghỉ ngơi riêng tư của các thành viên trong gia đình. Phòng ngủ bố mẹ, con cái được bố trí ở 2 bên cầu thang theo một tỉ lệ nhất định. Các phòng đều có WC riêng với cách sắp xếp nội thất khoa học đảm bảo công năng, phong thủy, tối ưu diện tích hiệu quả mang đến những không gian lí tưởng cho những giấc ngủ được trọn vẹn đong đầy.
Bản vẽ công năng tầng thượng

Ấn tượng của mẫu nhà phố 5 tầng chính là phòng thờ được thiết kế khá rộng, hướng ra ban công phía trước. Phòng giặt được bố trí phía sau nhằm tận dụng tối đa khoảng sân phơi vô cùng thông thoáng, rộng rãi.
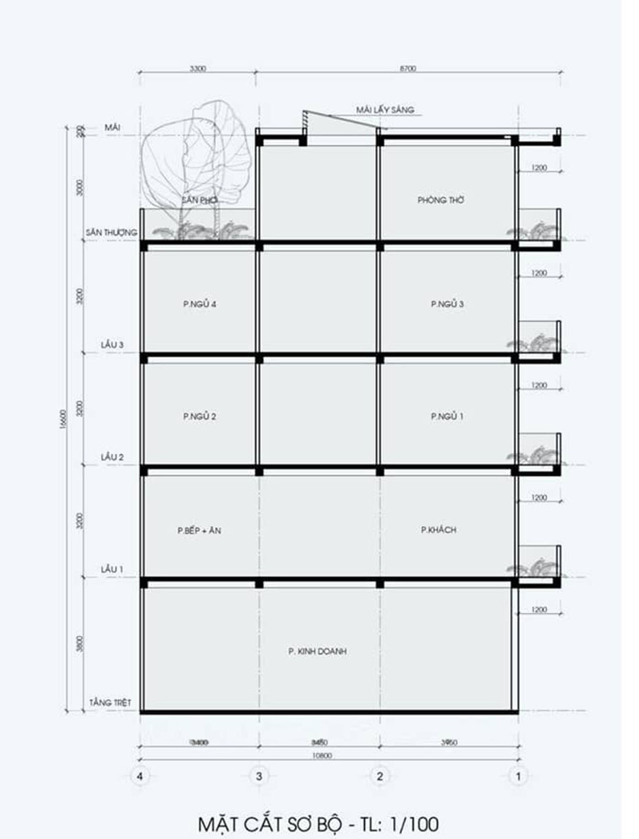
Bản vẽ mặt bằng mái và mặt cắt sơ bộ của nhà phố 5 tầng


Tham khảo thiết kế nội thất nhà phố 5 tầng 40m2 của anh hùng
Thiết kế nội thất đóng vai trò quan trọng và là linh hồn của toàn bộ ngôi nhà vì thế cần phải xem xét kỹ lưỡng. Dựa vào diện tích đất, yếu tố phong thủy, nhu cầu mà kiến trúc sư đưa ra những phương án phù hợp nhất nhằm mang đến không gian sống thoải mái, tiện nghi. Để tiết kiệm chi phí xây nhà nên thiết kế nội thất giản đơn, sử dụng chất liệu phù hợp, xác định những nội thất cần có, hạn chế sự rườm rà trong trang trí.
Thiết kế phòng khách vô cùng sang trọng bắt mắt

Phòng khách sang trọng với vật dụng nội thất hiện đại, gam màu nâu tối trầm ấm kết hợp với hệ thống cửa, vách ngăn bằng kính trong suốt.


Thiết kế gian bếp tiện nghi thuận tiện cho nấu nướng

Hệ thống tủ bếp được thiết kế ôm sát tường, phân thành nhiều ngăn đảm bảo vật dụng nấu nướng được cất giữ gọn gàng.

Thiết kế phòng ngủ rộng lớn dành riêng cho vợ chồng

Một trong những hình ảnh điển hình trong thiết kế phòng ngủ. Tủ quần áo, giường, bàn làm việc được sắp xếp một cách khoa học, hợp lí, sự kết hợp hài hòa giữa các gam màu khiến không gian phòng ngủ thêm đẳng cấp.

Cửa kính trong suốt giúp căn phòng luôn thông thoáng.
Thiết kế không gian giặt đồ

Không gian giặt phơi thông thoáng.


