Nhà vườn 1 tầng kiểu Pháp là một trong những mẫu nhà đang rất được ưa chuộng trong thời gian gần đây. Mẫu nhà này vô cùng sang trọng, mang đặc trưng phong cách thiết kế châu Âu, tôn lên đẳng cấp khác biệt của gia chủ. Ngay sau đây, hãy cùng điểm danh mẫu nhà vườn 1 tầng kiểu Pháp sang trọng nhất nhé!
ĐẶC TRƯNG KIẾN TRÚC PHÁP TRONG LỊCH SỬ
Nhận định chung : Kiến trúc Pháp mang định tinh thần văn hóa Châu Âu vừa năng động sáng tạo vừa kiêu sa diễm lệ theo kiến trúc cổ phương Tây truyền thống.

Các công trình hiện nay vẫn giữ được những nét đẹp truyền thống, song không thể thiếu được sự phát triển và thiết kế sao cho có tính ứng dụng cao nhất trong cuộc sống hiện đại. Triết lý sáng tạo này còn để lại dấu ấn mạnh mẽ trong các công trình ở Việt Nam, và rất nhiều các nước thuộc địa mà trong lịch sử Pháp đã từng. Trải qua nhiều năm, những công trình này vẫn luôn thể hiện được vẻ đẹp bền bỉ, sang trọng và mang hơi thở riêng của kiến trúc Pháp mà không ở đâu hòa trộn lẫn được.

Về đặc trưng kiến trúc: Trong kiến trúc pháp cổ điển, một số đặc trưng kiến trúc mà bạn dễ dàng nhìn thấy trong rất nhiều công trình bao gồm:
- Sử dụng nhiều kiểu hình dạng mái vòm, vòm cong trong các chi tiết mái, cửa,…
- Hệ thống cột lớn, cột nhỏ được sử dụng một cách linh hoạt, đan xen trong kiến trúc làm tăng lên cảm giác ấn tượng về chiều dài và chiều ngang của công trình. Kết hợp với các hình dạng vòm mái, làm tăng chiều cao cho công trình, tạo cảm giác đồ sộ, hoành tráng khi nhìn ngắm
- Đảm bảo sự hợp nhất về mặt không gian, màu sắc và ánh sáng trong công trình
- Ngoại thất được trang trí bằng nhiều chi tiết gờ, phào chỉ, phù điêu trang trí tỷ mỉ, công phu.
- Màu sắc ngoại thất thường được sử dụng là gam màu trắng và gam màu vàng , hay màu kem. Vật liệu trang trí, nội thất cũng đi theo form kiến trúc cổ điển, cong, uốn mềm mại cho ngoại thất ngôi nhà thêm ấn tượng và bề thế hơn bao giờ hết.
NHỮNG MẪU THIẾT KẾ NHÀ BIỆT THỰ 1 TẦNG KIỂU PHÁP ĐẸP
Dưới đây là những mẫu nhà vườn 1 tầng kiểu Pháp đẹp, sang trọng và hiện đại. Gia chủ có thể tham khảo và lựa chọn mẫu nhà ưng ý nhất cho ngôi nhà của mình:
Mẫu nhà vườn 1 tầng kiểu Pháp cổ điển
Tuy không phải kiểu nhà cao tầng nhưng mẫu nhà cổ điển này mang theo khí chất của một dinh thự nguy nga, đầy tráng lệ. Phối cảnh Kiến trúc sư đã kết hợp nét kiến trúc truyền thống xưa và những nét thiết kế hiện đại ngày nay để tô điểm cho ngôi nhà thêm phần độc đáo và ấn tượng. Mẫu nhà này sử dụng lối thiết kế đối xứng. Mang lại cảm giác vững chãi và kiên cố cho toàn ngôi nhà.

Phối cảnh nhà vườn kiểu Pháp tân cổ điển
Đầu tiên là phần mái đồ sộ với độ dốc lớn. Điều này đảm bảo cho việc thoát nước mưa được dễ dàng hơn. Mặt tiền được thiết kế theo đúng tinh thần tân cổ điển với những hoa văn, phào chỉ tinh tế. Kiến trúc Pháp cổ điển sử dụng khá nhiều hình dáng vòm trong các chi tiết; mái; cửa; mặt tiền,... 2 cột trụ vững chãi phía trước mặt tiền được liên kết với nhau bởi mái vòm mang đến cho ngôi nhà cảm giác đồ sộ và bề thế hơn. Bên cạnh đó, việc thiết kế nhà vườn mang đến tính thẩm mỹ cũng như không gian thoáng rộng cho cả ngôi nhà.

Nhà vườn 1 tầng kiểu Pháp tân cổ điển đẹp và sang trọng
Công năng : Căn nhà vườn 1 tầng kiểu Pháp cổ điển này có diện tích mặt sàn là 160m2. Từ sảnh chính đi vào là không gian phòng khách rộng rãi với bộ bàn ghế sofa sang trọng. Phòng thờ nằm ngay phía bên trong của phòng khách.

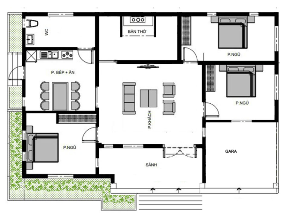
Mặt bằng công năng nhà 1 tầng kiểu Pháp
Phía bên phải của phòng khách được bố trí với 2 phòng ngủ. Phía tay trái của phòng khách là 1 phòng ngủ có cửa sổ hướng ra sân phía trước nhà. Cùng với đó là 1 phòng bếp + ăn. Cuối cùng là khu vệ sinh chung của cả gia đình.
Mẫu nhà vườn 1 tầng 4 phòng ngủ kiến trúc Pháp
Mẫu nhà vườn kiểu Pháp 4 phòng ngủ là mẫu nhà 2 mặt tiền được trang trí đồng đều về cả họa tiết và bố cục. Căn nhà như một công trình nguy nga tráng lệ nổi bật giữa khu đất rộng. Phối cảnh Mặt bằng sàn của mẫu nhà này có diện tích 14.7 x 13.2m. Căn nhà được thiết kế trẻ trung, hiện đại nhưng vẫn giữ được nét truyền thống của dạng nhà vườn 1 tầng của người Việt.

Nhà ống 1 tầng 4 phòng ngủ kiến trúc Pháp
Màu trắng chủ đạo của căn nhà làm nổi bật lên các chi tiết, phào chỉ được trang trí xung quanh căn nhà. Phần mái dốc ngói đỏ mang đến cho căn nhà sự thân thuộc, ấm áp. Bốn khối trụ tròn ở mặt tiền phía trước căn nhà khiến cho phần mái nhà trở nên cao ráo và đồ sộ. Bên cạnh đó, chính những cột trụ hình tròn cùng với mái vòm lối đi vào cửa chính mang đến cho căn nhà cảm giác mềm mại hơn.

Mẫu nhà vườn kiểu Pháp 4 phòng ngủ
Công năng : Công năng của mẫu biệt thự 1 tầng 4 phòng ngủ bao gồm 1 phòng khách + phòng thờ; 4 phòng ngủ; phòng bếp + phòng ăn; 3 phòng tắm + WC. Bên cạnh đó, căn nhà còn được thiết kế phần hiên bên ngoài để làm sân rửa và sân phơi quần áo.
Mẫu nhà vườn kiểu Pháp 1 tầng với 3 phòng ngủ
Mẫu nhà vườn kiểu Pháp 1 tầng 3 phòng ngủ là mẫu nhà khá phổ biến được rất nhiều gia chủ yêu thích. Phối cảnh Toàn bộ ngôi nhà được thiết kế theo kiến trúc Pháp đầy lôi cuốn. Với tông màu trắng chủ đạo, căn nhà toát lên nét thanh lịch và khí chất sang trọng, bề thế.

Nhà vườn 1 tầng kiểu Pháp 3 phòng ngủ
Các bức tường được trang trí những đường chỉ ngang, tạo sự độc đáo, khác biệt. Chân tường được ốp bằng đá tự nhiên. Điều này mang lại vẻ đẹp sang trọng cho căn nhà. Đồng thời lớp đá này cũng giúp bảo vệ lớp tường phía bên trong của căn nhà khỏi những tác động của thời tiết. Phần sân được lát bằng gạch chống trơn phong cách Pháp càng làm cho không gian sống trở nên sinh động và thoáng đãng hơn.

Mẫu nhà ống 1 tầng kiểu Pháp 3 phòng ngủ
Công năng : Không gian của mẫu biệt thự 1 tầng kiểu Pháp được bố trí hợp lý. Bao gồm 1 phòng khách rộng lớn; thông với phòng khách là phòng thờ gia tiên. Tiếp đến là 3 phòng ngủ; 2 WC và phòng bếp + ăn. Phía cuối nhà được bố trí khu giặt là và sân phơi.
Nhà vườn 1 tầng kiểu Pháp với sân vườn rộng
Nhà vườn một tầng kiểu Pháp với sân vườn rộng là loại nhà vườn rất được ưa chuộng bởi gia chủ hiện nay.

Gam màu sáng trong kiến trúc khiến ngôi nhà trở nên sang trọng và bề thế hơn. Nhìn từ góc độ này, có thể thấy được khoảng vườn rộng. Khoàng vườn này mang lại cho không gian căn nhà luôn tràn đầy sức sống.

Cảnh quan bên ngoài của ngôi nhà được trồng rất nhiều cây xanh
Công năng : Không gian nhà vườn 1 tầng kiểu Pháp với sân vườn rộng được bao gồm 1 phòng khách rộng rãi; phòng thờ được bố trí đối diện cửa ra vào. Tiếp đó, 3 phòng ngủ và phòng bếp + ăn được sắp đặt thông minh.

Bản vẽ nhà 1 tầng kiểu Pháp có vườn rộng
WC và phòng giặt được đặt phía cuối nhà nhằm tiết kiệm diện tích không gian. Cách bố trí này giúp căn nhà luôn thoáng rộng. Thuận tiện cho gia đình sinh hoạt và quây quần.
Mẫu nhà vườn kiểu Pháp 1 tầng hiện đại có bể bơi
Nhà vườn kiểu Pháp 1 tầng có bể bơi mang đến cho gia chủ không gian sống sang trọng và thượng lưu. Phối cảnh Lấy màu trắng làm gam màu chủ đạo, các mẫu nhà kiểu Pháp luôn mang theo sự nhẹ nhàng và thanh thoát, đẳng cấp nhưng không hề phô trương. Ngôi nhà còn được thiết kế ống khói - kiến trúc đặc trưng của nhà Pháp cổ. Hệ thống mái thái dốc màu đen đem đến cho căn nhà sự sang trọng và ấm cúng.

Mẫu nhà này được thiết kế với hệ thống khung cửa kính, nổi bật lên trên tông màu trắng chủ đạo. Phía trước nhà là khoảng sân vườn nhỏ và một bể bơi rộng để gia đình có thể nghỉ ngơi và thư giãn sau những giờ phút làm việc căng thẳng, mệt mỏi. Công năng Mẫu nhà vườn kiểu Pháp hiện đại có bể bơi có mặt bằng công năng được bố trí cực kỳ hợp lý. Bao gồm phòng khách; 3 phòng ngủ; phòng bếp + ăn và 2 WC. Trong đó phòng khách và phòng bếp + ăn được thiết kế thông nhau. 1 WC đặt trong phòng ngủ của bố mẹ và 1 WC đặt phía cuối nhà. Cách bố trí này mang đến sự thuận tiện trong sinh hoạt của các thành viên trong gia đình.
Mẫu biệt thự vườn 1 tầng kiểu Pháp mái thái hiện đại
Nhà vườn kiểu Pháp mái thái là mẫu nhà được nhiều gia chủ ưa chuộng trong thời gian gần đây.

Nhà vườn 1 tầng kiểu pháp phối cảnh
Hệ mái thái dốc màu đen làm cho ngôi nhà trở nên cổ kính và ấm cúng hơn. Đặc biệt, hệ cửa sổ được thiết kế bằng kính khiến cho ngôi nhà tràn đầy ánh sáng. Khu vườn trước nhà ngập tràn màu sắc của cỏ hoa mang đến cho chủ nhân không gian sống yên bình và thư giãn.

Ngắm mẫu nhà biệt thự 1 tầng kiểu pháp cổ điển sang tọng và xa hoa. Với những chi tiết trang trí, vật liệu sử dụng linh hoạt và sang trọng như thế này. Ngôi nhà thực sự như một tòa lâu đài và cung điện nguy nga tráng lệ, Màu sắc trắng và vàng kết hợp với nhau. Cùng với các chi tiết và vật liệu sáng, sống động và xa hoa. Chất liệu dát vàng cao cấp sử dụng ở cửa chính của ngôi nhà. Giúp cho mẫu thiết kế trở nên lung linh và ấn tượng hơn cả. Đặc biệt, cùng với giá trị thẩm mỹ, và các chi tiết kết hợp với nhau... từ đó đem lại giá trị cho ngôi nhà. Sự cân đối, đối xứng trong thiết kế cũng làm nên sức hấp dẫn của công trình này.

Ngắm mẫu nhà biệt thự 1 tầng kiểu pháp cổ điển sang trọng ở góc nhìn khác. Hệ thống sân vườn, tiểu cảnh... cũng đóng vai trò rất quan trọng đối với những mẫu nhà biệt thự cổ điển. Sự rộng lớn của không gian, cùng cách bố trí sân vườn xung quanh giúp tôn lên vẻ đẹp bề thế và hùng tráng cho căn biệt thự rất nhiều lần.

Ngắm mẫu nhà biệt thự 1 tầng kiểu pháp cổ điển sang trọng và ấn tượng. Từng chi tiết cột, tường, phào chỉ tạo nên được sự bề thế và chắc chắn cho công trình này. Mái thái được kết hợp sử dụng trong trường hợp này đem lại hiệu quả tối ưu cho kiến trúc.
Lưu ý để có thể sở hữu một mẫu biệt thự 1 tầng kiểu pháp cổ điển
Kiến trúc biệt thự cổ điển pháp đòi hỏi cao ở tính thẩm mỹ, độ quy mô và giá trị mang lại. Do đó, không hề dễ dàng cho việc thi công. Khi đó, bạn cần chuẩn bị thật tốt các yếu tố, từ kinh nghiệm chuyên môn, cho đến năng lực,… mọi sự chuẩn bị tốt nhất sẽ cho phép công trình được hoàn thiện một cách tối ưu nhất. Cùng chúng tôi lưu ý đến một số điều để bạn có thể sở hữu được các mẫu biệt thự 1 tầng kiểu pháp cổ điển đẹp.

Những lưu ý để sở hữu được mẫu nhà biệt thự 1 tầng cổ điển đẹp
Bao gồm : Tìm và thuê đơn vị thiết kế chuyên nghiệp. Yếu tố này vô cùng quan trọng, nó giúp bạn có thể sở hữu được những không gian kiến trúc thẩm mỹ tối ưu nhất. Chất lượng, cùng với năng lực của đội ngũ kiến trúc sư, kĩ sư sẽ giúp bạn hoàn thiện được phương án thiết kế tối ưu nhất. Khi có hồ sơ thiết kế chi tiết, bạn cũng sẽ dễ dàng hơn trong việc thi công sau này. Nó giúp bạn dự tính và chuẩn bị được những yêu cầu cần thiết khi tiến hành xây dựng.

+ Lựa chọn nhà thầu xây dựng uy tín và có năng lực. Khác với những công trình nhà ở dân dụng đơn giản, thì những mẫu thiết kế biệt thự 1 tầng kiểu pháp cổ điển đòi hỏi rất cao ở người thợ thi công. Đặc biệt là công đoạn hoàn thiện sau này. Việc thi công các công trình theo phong cách cổ điển cần có bàn tay của những người thợ có tay nghề, có tâm huyết.

+ Chuẩn bị vật liệu xây dựng biệt thự 1 tầng kiểu pháp cổ điển : Vật liệu xây dựng cần được sử dụng trong các thiết kế biệt thự cổ điển kiểu pháp thường được đầu tư ở mức rất cao cấp. Do đó, bạn cần tìm kiếm nguồn cung vật liệu ổn định, cùng với mức giá được tham khảo trước để tránh những hiện tượng không có nguồn cung khi cần. Đồng thời, hạn chế được những phát sinh trong quá trình xây dựng sau này.

Kiến trúc & Nội thất Smallhome – Địa chỉ tư vấn thiết kế và thi công biệt thự 1 tầng kiểu pháp cổ điển uy tín
Là một trong những đơn vị CHUYÊN NGHIỆP trong thiết kế và thi công nhà biệt thự theo phong cách cổ điển, tân cổ điển – Kiến Trúc & Nội Thất Smallhome sẽ khiến bạn hài lòng.
Bằng năng lực chuyên môn, cùng đội ngũ KTS, Kỹ sư giàu kinh nghiệm và tâm huyết với nghề. Bạn sẽ hoàn toàn yên tâm với chất lượng các thiết kế biệt thự 1 tầng kiểu pháp cổ điển mà SMALLHOME thực hiện:
+ Phương án thiết kế được đưa ra là phương án tối ưu nhất, đem lại hiệu quả cao nhất cho chủ đầu tư trên toàn diện các mặt như: Kiến trúc, công năng sử dụng, chi phí hay giá trị của công trình.
+ Hồ sơ thiết kế đầy đủ, chi tiết. Dễ dàng cho việc thi công và hoàn thiện công trình sau này.
+ Khách hàng được tư vấn giải đáp toàn bộ những thắc mắc, cũng như khó khăn trong quá trình thiết kế và xây dựng công trình sau này. Bạn sẽ hoàn toàn yên tâm hơn trong quá trình xây dựng nhà ở vì luôn có các kTS có chuyên môn và kĩ thuật đồng hành giải quyết.
+ Chất lượng hồ sơ thiết kế, chất lượng thi công của công trình luôn được đảm bảo.
+ Mức giá thiết kế hợp lý, đơn giá thi công phù hợp
+ Quy trình làm việc rõ ràng, minh bạch, thuận tiện cho cả 2 bên
Với những ưu điểm đó,SMALLHOME tự hào là địa chỉ uy tín, và giàu năng lực chuyên môn để bạn an tâm lựa chọn thiết kế, thi công trọn gói biệt thự 1 tầng kiểu pháp cổ điển cho gia đình mình.
Mọi yêu cầu tư vấn thiết kế liên hệ trực tiếp với KTS của chúng tôi tại: Hotline: 062.685.939









