THIẾT KẾ NHÀ VƯỜN CẤP 4 MÁI THÁI CÓ GARA TẠI QUẢNG NINH
Mẫu thiết kế nhà vườn cấp 4 mái thái có gara hiện đại và khoa học, với phối cảnh kiến trúc ấn tượng được kiến trúc sư lên ý tưởng triển khai hoàn thiện chỉ trong vòng 2 tháng. Nếu như gia đình các bạn đang tìm kiếm mẫu thiết kế nhà khoa học, tiết kiệm chi phí, hãy tham khảo để có thêm những ý tưởng thiết kế hoàn thiện hơn cho công trình của gia đình mình nhé.

Ý tưởng thiết kế mẫu nhà vườn cấp 4 mái thái hiện đại và khoa học của chủ đầu tư
Một trong những mẫu nhà lưu giữ nhiều nét kiến trúc xa xưa của cha ông chính là thiết kế nhà cấp 4. Cùng với những cách tân, tiếp biến thay đổi về hình khối, cách phối hợp màu sắc tạo nên một không gian kiến trúc khá hoàn hảo và đầy sức sống.
Sau nhiều lần tìm hiểu cũng như lựa chọn, bác Hải đã quyết định gửi gắm mong muốn cũng như niềm tin của gia đình vào kiến trúc sư của Wedo. Mẫu thiết kế nhà mà bác yêu thích là kiểu nhà vườn cấp 4 mái thái, diện tích thi công dự định là 120m2.
Do quỹ đất xây dựng rộng, cùng với việc yêu thích thiên nhiên cây cối xung quanh, cho nên bác khá quan tâm và chú ý đến những mẫu nhà cấp 4 có sân vườn hiện đại. Kiến trúc thiết kế không có yêu cầu gì nhiều, chỉ cần mặt tiền thông thoáng, công năng sử dụng khoa học và dễ di chuyển trong tổng thể mặt bằng. Ngoại thất sử dụng sơn màu trung tính, kiến trúc mái thái tối màu để tạo sự khác biệt.
Do gia đình có sử dụng ô tô con riêng, cho nên thiết kế gara là yêu cầu cần thiết trong bản vẽ mặt bằng. Gara ô tô thiết kế thoáng, gần với sân trước để tạo nên không gian kết nối chung.
Gia đình có ít thành viên, các con cũng đã lớn, công năng sử dụng đơn giản với 1 phòng ngủ master, 2 phòng ngủ nhỏ cho hai con và phòng khách kết hợp với phòng thờ. Phòng ăn và bếp sẽ thiết kế hướng thoáng và hướng trực tiếp ra khoảng sân vườn sau để đón nhận ánh nắng cũng như gió tự nhiên để không gian phân bổ đồng đều hơn cho mẫu nhà đẹp.

Mặt tiền mẫu nhà vườn cấp 4 mái thái mặt tiền 10m
Tổng kinh phí đầu tư cho mẫu nhà cấp 4 mái thái đẹp của gia đình không vượt quá 1 tỷ đồng, tiến độ thi công hoàn thiện công trình trong vòng 4 tháng, hoàn thiện trước Tết Nguyên Đán để gia đình có thể kịp đón tết cổ truyền của dân tộc trong ngôi nhà mới, khang trang hơn.
Chiêm ngưỡng và khám phá mẫu thiết kế nhà vườn cấp 4 mái thái hiện đại
Nắm bắt ý tưởng cũng như mong muốn của gia đình chủ đầu tư, kiến trúc sư nhanh chóng lên phương án thiết kế hoàn thiện dựa trên điều kiện mặt bằng thực tế của công trình. Để có thể đưa ra những concept khoa học, đáp ứng tối đa nhu cầu của gia đình, chúng tôi đã họp bàn trước khi đưa ra phương án tư vấn chốt cho bác Hải.
Diện tích thiết kế khá thoáng và rộng, kiến trúc sư thiết kế mẫu nhà cấp 4 mái thái trên mặt tiền rộng theo chiều ngang. Toàn bộ mặt tiền được xử lý thông minh và khoa học từng mảng bố cục nhỏ, từ thiết kế bậc tam cấp trước mặt tiền cho đến phân chân móng được sơn màu tối, cùng với hệ thống trụ cột trước phần gara và phần cửa chính, vừa đảm nhận vai trò kết cấu chung cho cả không gian, vừa giúp hiệu ứng thẩm mĩ chung của mẫu nhà vườn thêm phần tươi mới và hiện đại hơn bao giờ hết.
Hình khối mẫu nhà vườn cấp 4 vững chắc, màu sắc hài hòa, việc kết hợp kiến trúc mái thái chữ A với khối đua rộng, gam màu ghi đậm ăn nhập hoàn toàn với sơn tường màu be và màu nâu xám nhạt. Hệ thống cửa nhôm Xingfa màu nâu được lựa chọn lắp đặt kết hợp với cửa chính bằng gỗ, hệ thống bồn hoa tiểu cảnh nhỏ trước mặt tiền giúp không gian sống không những đẹp hơn, khoa học hơn mà còn tràn ngập sức sống tươi mới mạnh mẽ.
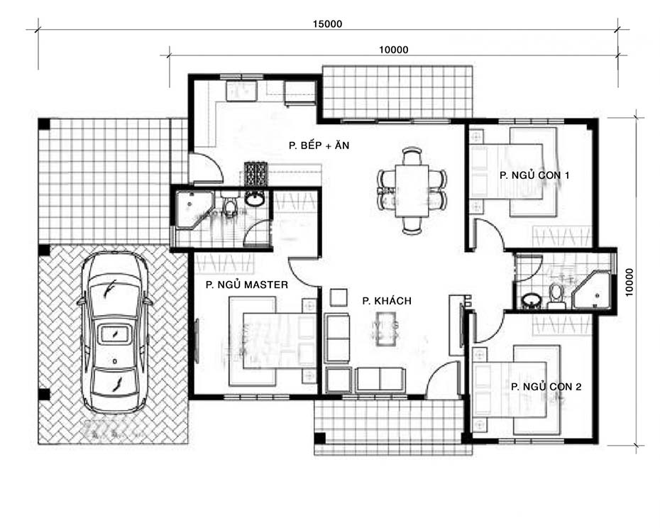
Mặt bằng công năng sử dụng mẫu nhà vườn cấp 4 mái thái hiện đại

Mặt bằng công năng sử dụng mẫu nhà vườn cấp 4 mái thái hiện đại
Mặt bằng công năng sử dụng mẫu nhà vườn cấp 4 mái thái hiện đại được kiến trúc sư cân nhắc khá kỹ càng. Căn cứ theo nhu cầu sử dụng, điều kiện đầu tư tài chính của gia đình, kiến trúc sư nhanh chóng triển khai phương án mặt bằng cho gia đình. Gara ô tô được bố trí khá thoáng và rộng, ngay cạnh phía ngoài, giáp với sân vườn phía trước và bên hông. Phòng khách được bố trí ngay cạnh cửa chính mặt tiền, phía trong là phòng ăn và bếp nấu. của gia đình, việc thiết kế phòng khách liên thông với phòng bếp không những tạo sự thuận tiện cho việc sử dụng, nó còn có thể giúp gia đình tối ưu hóa không gian và tiết kiệm diện tích cho mẫu nhà vườn cấp 4 mái thái có gara.
Từ phòng khách về phía tay trái, thiết kế phòng ngủ master, thiết kế khép kín tạo điều kiện thuận tiện cho việc sinh hoạt riêng tư. Phía tay phải bố trí 2 phòng ngủ, phòng ngủ số 1 và phòng ngủ số 2 cho hai con, giữa hai phòng có bố trí nhà vệ sinh chung, dễ dàng đáp ứng nhu cầu sinh hoạt của cả hai phòng.
Với cách bố trí mặt bằng công năng khoa học, cùng với phối cảnh kiến trúc ấn tượng và kiên cố, phối cảnh thiết kế thanh thoát và hài hòa, gia đình chủ đầu tư hoàn toàn hài lòng với phương án thiết kế của kiến trúc sư đưa ra.
Nếu như gia đình bạn đang có nhu cầu tư vấn thiết kế nhà, để sở hữu không gian sống tiện nghi, hiện đại và tiết kiệm chi phí, hãy liên hệ trực tiếp với kiến trúc sư để chúng tôi có thể khảo sát hiện trạng mặt bằng và đưa ra những phương án thiết kế tối ưu hóa nhất cho gia đình bạn nhé.






