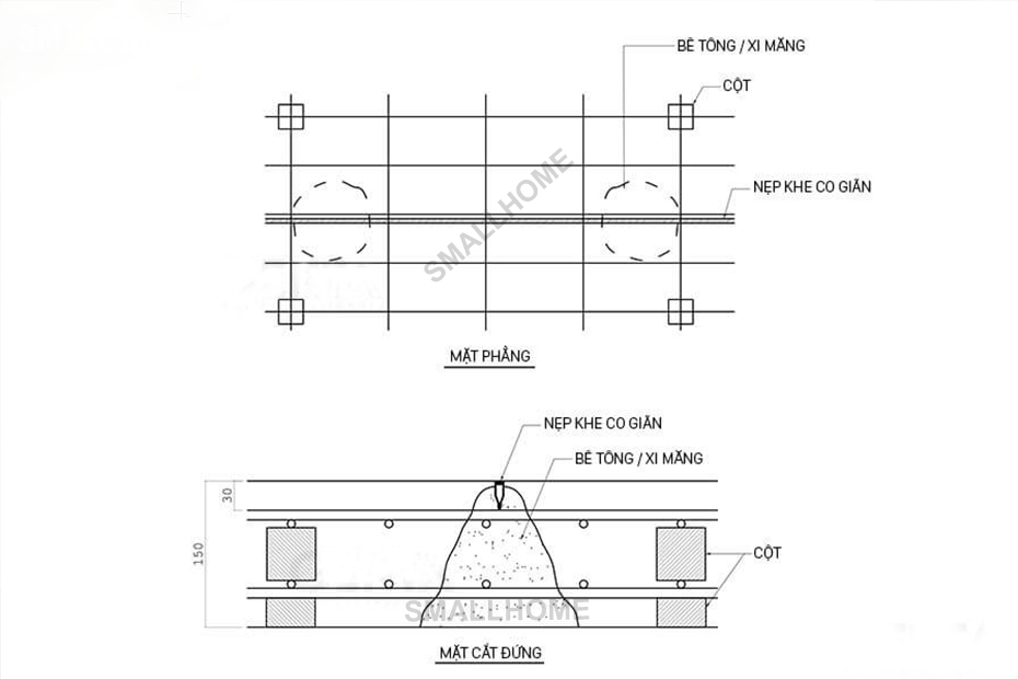
Nẹp khe co giãn sàn bê tông 30EXJ-9(s) được dùng để tránh nứt vỡ kết cấu sàn khi nhiệt độ thay đổi, tạo không gian giãn nở – co ngót cho sàn bê tông. Việc cố định vị trí nẹp trên sàn, tạo mốc khi thi công giúp bê tông được cán phẳng chính xác và nhanh hơn so với phương pháp truyền thống.

Giới thiệu về sản phẩm 30EXJ-9(s)
Nẹp khe co giãn bê tông 30EXJ-9(s) là nẹp dùng để tạo khe giãn nở cho sàn bê tông có diện tích rộng, giúp sàn không nứt vỡ kết cấu trong quá trình giãn nở, co ngót.
Loại nẹp này được làm từ chất liệu nhựa uPVC cao cấp có độ bền và đàn hồi cao, phù hợp với nhiều công trình công cộng lớn do giá thành rẻ hơn so với chất liệu kim loại.

Hình ảnh nẹp khe co giãn sàn bê tông 30EXJ-9(s)
Cấu tạo nẹp 30EXJ-9(s)
Nẹp khe co giãn sàn bê tông 30EXJ-9(s) có 2 cấu tạo chính là:
- Nhựa cứng: phần nhựa cứng bên ngoài nẹp cấu tạo bằng chất liệu nhựa uPVC dày và cứng cáp giúp bảo vệ sàn bê tông hiệu quả.
- Nhựa đàn hồi: nằm trong lõi nẹp dùng để hấp thu các chuyển động giãn nở, co ngót của kết cấu sàn.

Hình ảnh cấu tạo và mặt cắt của nẹp khe co giãn bê tông 30EXJ-9(s)
Tại sao cần sử dụng nẹp 30EXJ-9(s) cho khe co giãn sàn bê tông
Chuyển động qua lại, nhiệt độ thay đổi là các tác động lên mặt sàn khiến cho sàn bê tông thường bị co ngót, nứt vỡ. Nẹp 30EXJ-9(s) được sử dụng cho sàn bê tông giúp chúng ta:
- Tạo khe giãn nở, co ngót chống nứt vỡ kết cấu sàn bê tông.
- Định vị cốt cán, tạo mốc nền có tác dụng giúp cán phẳng sàn nhanh và chuẩn xác hơn.
- Thay thế phương pháp cắt ron truyền thống giúp tiết kiệm thời gian, công sức và tối ưu chi phí thi công.
- Tạo nét thẩm mỹ hoàn thiện bề mặt sàn bê tông phẳng đẹp, chống nứt vỡ theo thời gian.
Ứng dụng của nẹp khe co giãn sàn bê tông 30EXJ-9(s)
Nẹp 30EXJ-9(s) thường được sử dụng tại các khu vực như:
- Sàn khu công nghiệp: nhà xưởng, kho hàng bằng bê tông,…
- Sàn nhà có diện tích lớn: siêu thị, trung tâm thương mại, sân vận động,…
- Khu vực hầm để xe, gara: bãi để xe, hầm xe chung cư, TTTM,…
- Sân bê tông: sân trường học, bệnh viện, quảng trường,…

Hình ảnh sàn bê tông hoàn thiện có dùng nẹp khe co giãn bê tông
Các cách thi công nẹp khe co giãn sàn bê tông 30EXJ-9(s)
Nẹp 30EXJ-9(s) có các cách thi công giống với nẹp 30EXJ-9, nên có các cách thi công như sau:
Cách 1: Gắn nẹp trước rồi thực hiện đổ bê tông.
Dùng dây căng 1 đường thẳng định vị rồi gắn nẹp. Tiếp đến đổ bê tông lên toàn bộ bề mặt sàn rồi cán phẳng.

Bản vẽ thi công nẹp khe co giãn bê tông 30EXJ-9(s)
Cách 2: Gắn nẹp ngay sau khi đổ bê tông.
Sau khi đổ bê tông và cán phẳng nền, từ từ ấn nẹp xuống sao cho mặt nẹp bằng với mặt bê tông.
Rồi dùng cán xoa để lộ phần đầu nẹp ra ngoài.

Thi công nẹp khe co giãn bê tông 30EXJ-9(s) ngay sau khi đổ bê tông
Cách 3: Sau khi bề mặt bê tông đông mới thực hiện đóng nẹp xuống sàn.
Khi mặt bê tông đã đông cứng dùng máy cắt bê tông xẻ tạo các khe. Sau đó, đóng nẹp vào khe vừa tạo.

Dùng máy cắt bê tông tạo ron sau khi bê tông đã khô
Lưu ý: Cách thi công 3 chỉ phù hợp khi bê tông đã đông cứng mà phát sinh thêm khe co giãn muốn tạo. Tuy nhiên, không nên sử dụng cách này vì sẽ tốn thêm chi phí thuê máy cắt và nhân công. Khe co giãn tạo sau cũng không được thẩm mỹ bằng cách 1, 2.
Vệ sinh nẹp sau khi thi công
Khe co giãn bê tông không cần phải bảo quản trong quá trình sử dụng. Tuy nhiên, sau khi thi công bạn nên lưu ý về nẹp như sau:
- Nên sử dụng vải mềm, ẩm để vệ sinh nẹp sau thi công.
- Không dùng dao cạo, búi sắt,… hay các vật dụng có độ cứng sắc nhọn để cạo vết bẩn – vữa khô dính trên nẹp.
- Tránh dùng các chất có nồng độ axit quá cao ảnh hưởng tới tuổi thọ của nẹp.
Tại sao nên mua nẹp 30EXJ-9(s) tại SMALLHOME
SMALLHOME đã từng bước khẳng định được uy tín của sản phẩm qua 7 năm kinh nghiệm trong lĩnh vực phân phối nẹp và phụ kiện xây dựng:
- Tạo dựng được uy tín với nhiều nhà thầu lớn như: Hòa Bình, Conteccons, Vingroup, Sungroup,…
- SMALLHOME cung cấp nẹp cho các hệ thống công trình lớn như: hệ thống TTTM AEON Mall, Đại sứ quán Hàn Quốc, British University Vietnam BUV, Dewey School, Trường quốc tế UNIS, nhà máy Inter Việt Nam,…
- Tư vấn miễn phí 24/7, hỗ trợ tài liệu kỹ thuật và có chuyên viên hướng dẫn thi công trực tiếp tại công trình.
- Đổi trả sản phẩm ngay khi phát hiện sản phẩm có lỗi của nhà sản xuất.
Để nhận mẫu miễn phí và tư vấn thi công nẹp khe co giãn sàn bê tông 30EXJ-9(s), hãy liên hệ: 0902.101.000
NẸP NHỰA KHE CO GIÃN SÀN BÊ TÔNG MÀU XÁM PHÂN BỐ TOÀN VIỆT NAM
NẸP NHỰA KHE CO GIÃN SÀN BÊ TÔNG MÀU XÁM TẠI MIỀN BẮC
- Nẹp nhựa khe co giãn sàn bê tông màu ghi xám tại Hà Nội
- Nẹp nhựa khe co giãn sàn bê tông màu ghi xám tại Nam Định
- Nẹp nhựa khe co giãn sàn bê tông màu ghi xám tại Hải Phòng
- Nẹp nhựa khe co giãn sàn bê tông màu ghi xám tại Hưng Yên
- Nẹp nhựa khe co giãn sàn bê tông màu ghi xám tại Quảng Ninh
- Nẹp nhựa khe co giãn sàn bê tông màu ghi xám tại Bắc Ninh
- Nẹp nhựa khe co giãn sàn bê tông màu ghi xám tại Hà Nam
- Nẹp nhựa khe co giãn sàn bê tông màu ghi xám tại Hải Dương
- Nẹp nhựa khe co giãn sàn bê tông màu ghi xám tại Ninh Bình
- Nẹp nhựa khe co giãn sàn bê tông màu ghi xám tại Thái Bình
- Nẹp nhựa khe co giãn sàn bê tông màu ghi xám tại Vĩnh Phúc
- Nẹp nhựa khe co giãn sàn bê tông màu ghi xám tại Hòa Bình
- Nẹp nhựa khe co giãn sàn bê tông màu ghi xám tại Thanh Hóa
- Nẹp nhựa khe co giãn sàn bê tông màu ghi xám tại Thái Nguyên
- Nẹp nhựa khe co giãn sàn bê tông màu ghi xám tại Bắc Giang
- Nẹp nhựa khe co giãn sàn bê tông màu ghi xám tại Tuyên Quang
- Nẹp nhựa khe co giãn sàn bê tông màu ghi xám tại Sơn La
- Nẹp nhựa khe co giãn sàn bê tông màu ghi xám tại Lai Châu
- Nẹp nhựa khe co giãn sàn bê tông màu ghi xám tại Điện Biên
- Nẹp nhựa khe co giãn sàn bê tông màu ghi xám tại Hà Giang
- Nẹp nhựa khe co giãn sàn bê tông màu ghi xám tại Lào Cai
- Nẹp nhựa khe co giãn sàn bê tông màu ghi xám tại Yên Bái
- Nẹp nhựa khe co giãn sàn bê tông màu ghi xám tại Lạng Sơn
- Nẹp nhựa khe co giãn sàn bê tông màu ghi xám tại Bắc Kạn
- Nẹp nhựa khe co giãn sàn bê tông màu ghi xám tại Cao Bằng
NẸP NHỰA VÁT GÓC TẠI MIỀN TRUNG
- Nẹp nhựa khe co giãn sàn bê tông màu ghi xám tại Bình Thuận
- Nẹp nhựa khe co giãn sàn bê tông màu ghi xám tại Đăk Lăk
- Nẹp nhựa khe co giãn sàn bê tông màu ghi xám tại Gia Lai
- Nẹp nhựa khe co giãn sàn bê tông màu ghi xám tại Quảng Trị
- Nẹp nhựa khe co giãn sàn bê tông màu ghi xám tại Quảng Bình
- Nẹp nhựa khe co giãn sàn bê tông màu ghi xám tại Đà Nẵng
- Nẹp nhựa khe co giãn sàn bê tông màu ghi xám tại Khánh Hòa
- Nẹp nhựa khe co giãn sàn bê tông màu ghi xám tại Lâm Đồng
- Nẹp nhựa khe co giãn sàn bê tông màu ghi xám tại Huế
- Nẹp nhựa khe co giãn sàn bê tông màu ghi xám tại Ninh Thuận
- Nẹp nhựa khe co giãn sàn bê tông màu ghi xám tại Nghệ An
- Nẹp nhựa khe co giãn sàn bê tông màu ghi xám tại Phú Yên
- Nẹp nhựa khe co giãn sàn bê tông màu ghi xám tại Quảng Nam
- Nẹp nhựa khe co giãn sàn bê tông màu ghi xám tại Quảng Ngãi
- Nẹp nhựa khe co giãn sàn bê tông màu ghi xám tại Hà Tĩnh
- Nẹp nhựa khe co giãn sàn bê tông màu ghi xám tại Đà Lạt
- Nẹp nhựa khe co giãn sàn bê tông màu ghi xám tại Bình Định
- Nẹp nhựa khe co giãn sàn bê tông màu ghi xám tại Đắk Nông
- Nẹp nhựa khe co giãn sàn bê tông màu ghi xám tại Kon Tum
NẸP NHỰA VÁT GÓC MIỀN NAM
- Nẹp nhựa khe co giãn sàn bê tông màu ghi xám tại HCM
- Nẹp nhựa khe co giãn sàn bê tông màu ghi xám tại An Giang
- Nẹp nhựa khe co giãn sàn bê tông màu ghi xám tại Vĩnh Long
- Nẹp nhựa khe co giãn sàn bê tông màu ghi xám tại Đồng Tháp
- Nẹp nhựa khe co giãn sàn bê tông màu ghi xám tại Bến Tre
- Nẹp nhựa khe co giãn sàn bê tông màu ghi xám tại Bình Dương
- Nẹp nhựa khe co giãn sàn bê tông màu ghi xám tại Bạc Liêu
- Nẹp nhựa khe co giãn sàn bê tông màu ghi xám tại Cà Mau
- Nẹp nhựa khe co giãn sàn bê tông màu ghi xám tại Cần Thơ
- Nẹp nhựa khe co giãn sàn bê tông màu ghi xám tại Đồng Nai
- Nẹp nhựa khe co giãn sàn bê tông màu ghi xám tại Vũng Tàu
- Nẹp nhựa khe co giãn sàn bê tông màu ghi xám tại Kiên Giang
- Nẹp nhựa khe co giãn sàn bê tông màu ghi xám tại Long An
- Nẹp nhựa khe co giãn sàn bê tông màu ghi xám tại Sóc Trăng
- Nẹp nhựa khe co giãn sàn bê tông màu ghi xám tại Tây Ninh
- Nẹp nhựa khe co giãn sàn bê tông màu ghi xám tại Tiền Giang
- Nẹp nhựa khe co giãn sàn bê tông màu ghi xám tại Hậu Giang









