Mẫu Nhà 1 trệt 1 lửng 1 lầu 1 sân thượng thiết kế theo phong cách hiện đại sẽ đem lại cho bạn sự trải nghiệm mới. Không gian sống với sự tươi sáng, thông thoáng, tận dụng ánh sáng thiên nhiên; chắc chắn đây sẽ là chốn quay về bình yên và thư thái cho cả gia đình.

Nhà 1 trệt 1 lửng 1 lầu 1 sân thượng của anh Sơn được thiết kế năm 2016. Anh Sơn muốn thiết kế nhà đẹp theo phong cách nhà phố hiện đại, đơn giản với các công năng đáp ứng nhu cầu cho gia đình 3 thế hệ, vợ chồng, hai con và bố mẹ, do sở hữu được mảnh đất khá thoải mái về cả bề ngang lẫn bề sâu nên yêu cầu của anh Sơn là các không gian ngủ nghỉ phải rộng rãi, thuận tiện và phải có thang máy song song với cầu thang bộ. Sau khi làm việc và nắm rõ các nhu cầu cụ thể, phương án KTS đưa ra là thiết kế Nhà 1 trệt 1 lửng 1 lầu 1 sân thượng trong đó 3 tầng phục vụ cho nhu cầu sinh hoạt gia đình, phần tầng tum mái trên dùng làm sảnh trước trang trí cây cảnh và không gian phơi phóng …

Nhu cầu công năng: 1 phòng khách, 4 phòng ngủ rộng rãi, có gara xe bên trong, bếp ăn, không gian thờ, không gian làm việc.Do đặc điểm gia đình anh có ông bà sống cùng, hai con lớn đang đi học nên cần có phòng riêng và phải đảm bảo về tính riêng tư
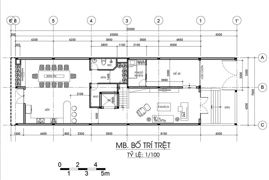
Mặt bằng công năng các tầng:

Mặt tiền của mẫu nhà phố là 7,5m khá thoải mái cho việc bố trí không gian trong nhà. Từ cổng vào tầng trệt của mẫu Nhà 1 trệt 1 lửng 1 lầu 1 sân thượng là không gian để xe của gia đình, cạnh đó là phòng ngủ cho người giúp việc. Đi tiếp về bên trái là phòng khách, không gian bếp và phòng ăn được đặt phía cuối khu đất thêm đó là khoảng sâu nhỏ phía sau tạo không gian lưu thông cho ngôi nhà. Khu vực thang bộ cùng thang máy được đặt ở vị trí giữa và còn có phòng kho, khoảng sân và wc.

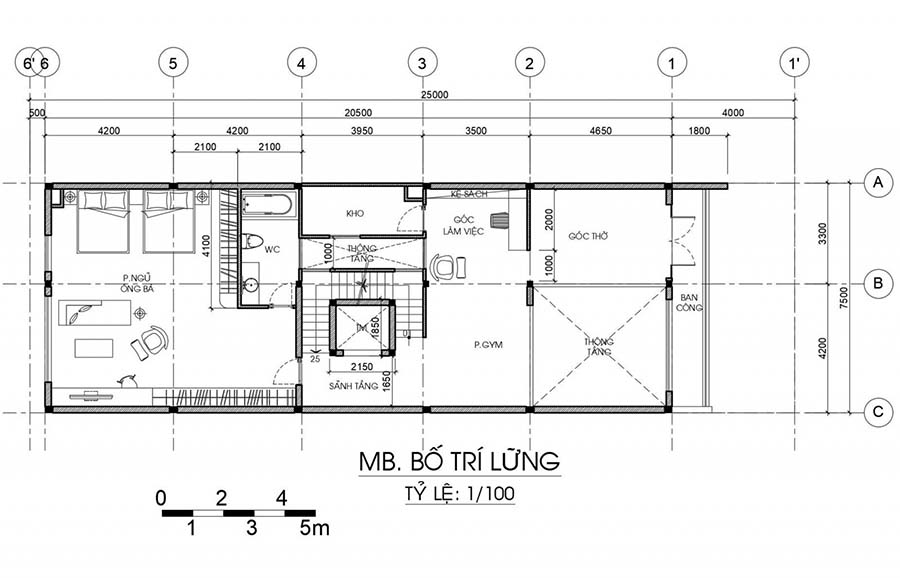
Tầng lửng: Bố trí phía trước là khoảng thông tầng từ phòng khách tầng trệt tạo không gian cao thoáng cho phòng khách, các không gian còn lại được bố trí là 01 phòng Thờ, Hành lang + Cầu thang, phòng Gym mở nối với góc làm việc , phòng ngủ ông bà có wc riêng và 01 phòng kho. Khoảng sân ở cạnh thang dưới tầng trệt thì lên tầng trên là khoảng thông tầng nhỏ.

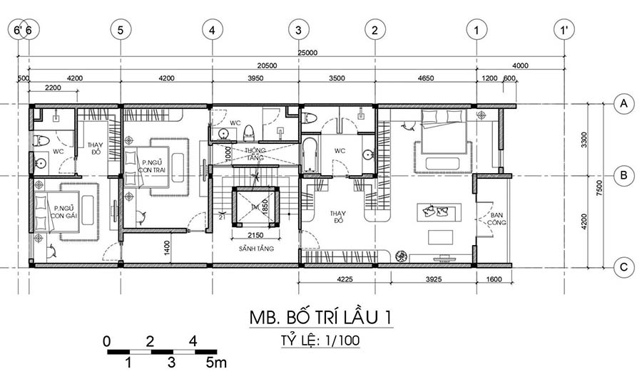
Tầng 3 là nơi chủ yếu bố trí cho không gian phòng ngủ. Với phòng ngủ Master chiếm hết 40% diện tích của tầng và được ưu tiên bố trí phía trước rất tiện nghi.Không gian giữa nhà là khu vực hành lang + Cầu thang, phía sau thang kết hợp thông tầng rộng giúp lấy sáng và thông gió toàn bộ nhà và cầu thang. Không gian phía sau là 02 phòng ngủ tương đối rộng cho các con với vệ sinh khép kín.

Sân thượng chủ yếu bố trí không gian sân trồng cây thư giãn, phía sau bố trí 02 phòng chức năng.

Mái Tum là không gian che ô cầu thang, mái tôn chống nóng và hệ thống sê nô thoát nước mái.









