Hiện nay những mẫu nhà mái thái ngày càng được nhiều gia đình yêu thích bởi nó không chỉ đẹp về tính thẩm mỹ mà còn tối ưu rất tốt mặt bằng công năng sử dụng. Kiến trúc mái thái không chỉ được sử dụng ở các mẫu nhà hiện đại, nhà mặt phố mà còn kết hợp với nhiều phong cách khác nhau tân cổ điển, cổ điển hay các xu hướng kiến trúc mới. Nhà mái thái là kiểu nhà theo kiến trúc thấp tầng, chủ yếu là 1 trệt 1 tầng. Các bộ phận trong thiết kế từ phần mái, cửa chính, cửa sổ, mái che đều thể hiện nét kiến trúc Thái đặc trưng.
Nhà mái thái có tính năng tản nhiệt chống nóng, do có độ dốc vừa phải nên khi có nước mưa rơi xuống nhanh chóng thoát nước tự nhiên, không bị ứ đọng trên mái. Đồng thời, nó cũng bảo vệ ngôi nhà khỏi thấm dột, ngấm nước.
Dễ dàng nhận thấy, kiến trúc nhà mái thái khéo léo tôn vinh lên vẻ đẹp thanh thoát, cao ráo của ngôi nhà. Từ những mẫu nhà phố hiện đại khoẻ khắn vuông vức, khi kết hợp với mái thái lại nhịp nhàng mềm mại, có vẻ như hai dáng vẻ đối ngược nhau nhưng khi kết hợp với nhau bổ sung cho nhau tạo nên khối kiến trúc hoàn hảo như mẫu nhà mặt phố mái thái 2 tầng chúng tôi sắp giới thiệu với bạn đọc sau đây.

Nhà mặt phố mái thái 2 tầng đẹp
Mặt tiền mẫu nhà mặt phố mái thái 2 tầng được thiết kế cân đối, hài hòa không hề đơn điệu mà vẫn toát lên vẻ đẹp sang trọng, thanh lịch bởi có sự kết hợp của hình khối mái thái xếp tầng bề thế và hệ cửa gỗ tự nhiên lớn ở sảnh chính cùng với sự linh hoạt khi thiết kế các khối đua khối lùi rất bắt mắt làm mờ đi cảm giác nhỏ hẹp của mặt tiền. Khối đua ra ở sảnh chính là trung tâm của mặt tiền có 2 cột vuông chắc khỏe đỡ mái sảnh tạo cảm giác vững chãi và cân đối, 2 bên khối đua là không gian để trang trí thiên nhiên và nơi để các phương tiện đi lại của gia chủ.

Vật liệu là một trong những yếu tố quan trọng nhất quyết định chi phí xây dựng của công trình và cũng là yếu tố mang lại vẻ đẹp cho ngôi nhà mặt phố mái thái hiện đại này.


Mặt bằng công năng của mẫu 2 tầng này được xây dựng dựa trên nhu cầu sử dụng của chủ đầu tư và cách tính toán của kts làm sao để đảm bảo được nhu cầu của gia chủ mà vẫn hài hòa, khoa học hợp lý.
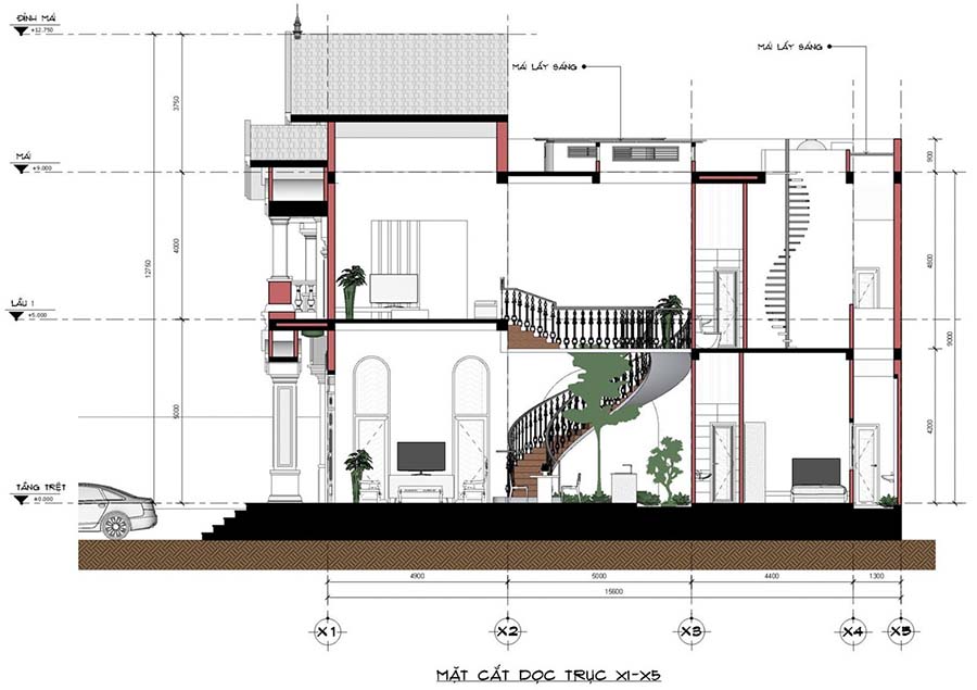
Với kích thước lô đất hình ống rộng 8.4m, chủ đầu tư muốn xây dựng một công trình nhà mặt phố mái thái 2 tầng đẹp. Kts đã quy hoạch tổng thể công trình nhà trong lô đất rất hài hòa hình khối cân đối, có không gian thiên nhiên trong nhà, không gian để xe, sân, cổng….
Diện tích sử dụng chỉ khoảng 130m2, tuy nhiên với khối nhà 2 tầng thì cũng được đánh giá là rất rộng rãi và tạo không gian sống thoải mái tiện nghi cho các thành viên trong gia đình. Phòng khách, bếp và phòng ăn tạo một không gian chung nối liền. Điểm nhấn trong ngôi nhà là cầu thang cong tròn mềm mại như một dải lụa nối tầng 1 với tầng 2 cùng với đó là các khoảng không gian tiểu cảnh bên cạnh làm ngôi nhà hòa hợp với thiên nhiên hơn. Ngoài ra tầng 1 còn được bố trí 2 phòng ngủ rất tiện nghi.


Nhìn qua mặt bằng tầng 2 được chia công năng rất hay với không gian bên ngoài được làm thành phòng sinh hoạt chung và phòng thờ. Không gian ở giữa là khoảng thông tầng cùng với phần cầu thang và lối đi xuống phòng sinh hoạt chung do sự chênh cao sàn tầng 2, điều này làm cho không gian thêm thú vị hơn. Bên trong cùng được bố trí một phòng ngủ và 1 wc cùng với đó là các thông tầng ở cuối nhà và một cầu thang phụ tròn dẫn lên sân thượng của ngôi nhà.
Phòng thờ diện tích rộng rãi đặt ở tầng 2 tạo sự tôn kính và không ảnh hưởng đến các hoạt động sinh hoạt khác trong gia đình, thường ở nhà phố thì phòng thờ được đặt ở tầng cao trong nhà sẽ tạo được không gian yên tĩnh hơn cho gian thờ nhà gia chủ.





Nội thất bên trong ngôi nhà mặt phố mái thái 2 tầng này chủ yếu được sử dụng gỗ vân màu sáng giúp cho không gian trong nhà thêm ấm cúng gần gũi mà vẫn mang lại sự sang trọng lộng lẫy.









