Hiện nay, nhu cầu tìm kiếm và xây dựng các mẫu biệt thự tân cổ điển 3 tầng 140m2 khá phổ biến. Ngoài việc sở hữu kiến trúc ngoại thất sang trọng thì loại hình này được chú ý nhờ diện tích xây dựng không quá lớn nhưng vẫn mang đến sự đồ sộ, đẳng cấp dành cho chủ đầu tư.

Trong bài viết này, Kiến Trúc & Nội Thất Smallhome giới thiệu đến bạn đọc mẫu biệt thự tân cổ điển, được kết hợp giữa nét đẹp của kiến trúc Ly Lạp và Pháp. Cùng đọc và tham khảo ngay nhé!
Yêu cầu của gia đình về biệt thự tân cổ điển 3 tầng 140m2
Ngôi nhà là thành quả của vợ chồng anh sau nhiều năm làm lụng. Vốn có hiểu biết về lĩnh vực xây dựng, vì thế nên yêu cầu của vợ chồng anh cũng tương đối khắt khe về các hạng mục của công trình.
Đối với ngôi biệt thự, anh mong muốn được thiết kế và theo phong cách tân cổ điển, bởi sự sang trọng cũng như tiết kiệm chi phí hơn các mẫu thiết kế biệt thự cổ điển.
Về quy mô thiết kế, vì gia đình có đông thành viên nên 3 tầng là con số hợp lí dành cho ngôi biệt thự. Công năng mà vợ chồng anh mong muốn bao gồm phòng khách, phòng bếp + ăn, 5 phòng ngủ và các phòng đa năng khác.
Phối cảnh ngôi biệt thự tân cổ điển 3 tầng 140m2 đầy thu hút

Công trình được các kiến trúc sư lên phương án thiết kế tỉ mỉ, nhấn mạnh vào nét đẹp của phối cảnh, từ cổng, hàng rào cho đến sân vườn đều được chăm chút kĩ lưỡng, chỉn chu.
Hàng rào của ngôi biệt thự được kết hợp hài hòa giữa bê tông và sắt mĩ nghệ, tạo nên một bức tường chắc chắn ngăn cách giữa không gian bên trong và bên ngoài. Cổng được làm từ sắt mĩ nghệ, sử dụng gam màu vàng – gam màu thường thấy trong các công trình cung đình xưa, vừa mang tính thẩm mĩ cao, vừa hạn chế tình trạng bị gỉ sắt hay chịu tác động từ điều kiện thời tiết.

Ngay tại sảnh chính vào nhà, các kiến trúc sư đã bố trí hệ thức cột iconic, làm tăng vẻ đồ sộ cho công trình. Chiếc mái được đắp hoa văn uốn lượn mềm mại, giúp ngôi biệt thự của gia đình trở nên uyển chuyển hơn.
Gam màu trắng được chọn làm màu chủ đạo, kết hợp cùng hệ mái Mansard xanh thẫm, giúp làm nổi bật các chi tiết phào chỉ trên các bức tường.
Hệ thống cửa kính trong suốt giúp cho ánh sáng từ bên ngoài dễ dàng chiếu vào bên trong ngôi nhà. Ban công các tầng đều được bố trí một không gian để thuận tiện cho việc trồng và chăm sóc cây cảnh, hoa cỏ.
Bên cạnh đó, ngoài hàng rào công trình sử dụng các bức tranh bằng đồng, thể hiện gu thẩm mĩ cũng như thể hiện đẳng cấp của gia chủ.
Bản vẽ mặt bằng công năng ngôi biệt thự tân cổ điển 3 tầng 140m2 chi tiết
Dựa vào yêu cầu của gia đình đối với công năng của công trình, các kiến trúc sư đã lên phương án thiết kế, đảm bảo không gian các phòng không bị chồng chéo.
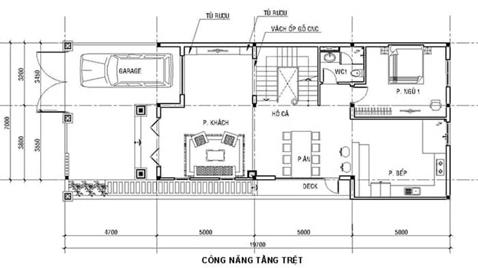
Bản vẽ mặt bằng công năng tầng trệt
Công năng tầng trệt bao gồm: Gara, phòng khách, phòng bếp + ăn, 1 phòng ngủ.

Phòng khách được sắp xếp ngay sảnh chính để dễ dàng cho việc tiếp khách của gia chủ, sử dụng nội thất sang trọng, tôn lên vẻ đẹp của ngôi nhà.
Kế phòng khách là phòng ăn nhìn ra hồ cá được xây dựng cạnh cầu thang đầy thú vị. Để phù hợp với phong thủy, nhà bếp được thiết kế tại phía sau. Đồng thời dụng ý này cũng giúp hạn chế mùi dầu ăn sang các phòng khác.
1 phòng ngủ được bố trí cạnh phòng bếp dành cho người giúp việc, giúp cho việc nấu nướng cũng cũng như việc di chuyển trở nên dễ dàng hơn.
Bản vẽ mặt bằng công năng tầng một
Công năng tầng 1 bao gồm: 3 phòng ngủ, 1 phòng làm việc, 1 phòng sinh hoạt chung.

Ngay tại vị trí trung tâm của tầng là phòng sinh hoạt chung, như một sợi dây vô hình để gắn kết các thành viên trong gia đình với nhau.
Phía bên phải cầu thang là 2 phòng ngủ, sử dụng nội thất tiện nghi, mang đến sự thoải mái trong từng giấc ngủ.
Phòng ngủ Master được thiết kế riêng, nối với phòng làm việc và phòng vệ sinh trong phòng, đảm bảo cho nhu cầu làm việc cũng như sinh hoạt của gia chủ.
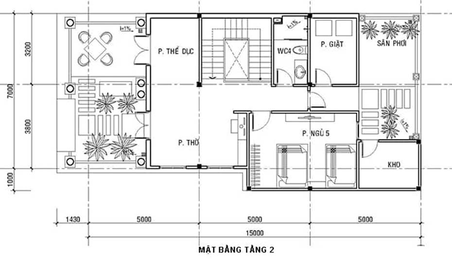
Bản vẽ mặt bằng công năng tầng hai
Công năng tầng 2 bao gồm: phòng thờ, 1 phòng ngủ, phòng thể dục, kho, phòng giặt + sân phơi.

Phòng thờ và phòng thể dục được thiết kế có cửa sổ hướng ra khu vực ban công, đầy thông thoáng và mát mẻ.
Phòng ngủ thứ 5 đối diện cầu thang lên xuống dành cho 2 cô con gái với 2 chiếc giường ngủ được sắp xếp song song, thuận tiện cho việc vui chơi và học tập.
Phòng giặt, sân phơi cũng như phòng kho được đặt cạnh nhau, đảm bảo cho quá trình cung cấp và thoát nước dễ dàng.
Thiết kế nội thất biệt thự tân cổ điển 3 tầng 140m2
Nhằm tạo ra một công trình mang tính thẩm mĩ cao, nội thất các phòng cũng được các kiến trúc sư lên phương án thiết kế vô cùng kĩ lưỡng.
Nội thất phòng khách sang trọng

Phòng khách đầy sang trọng với các chi tiết phào chỉ, đường gờ nổi bật trên nền trắng chủ đạo của căn phòng. Bộ sofa đơn giản nhưng đầy mềm mại với các đường cong uốn lượn đẹp mắt.
Đèn chùm trang trí cùng hệ thống đèn âm tường phần nào mang đến sự lung linh, ấn tượng cho không gian phòng khách.

Không gian phòng khách hoàn toàn rộng rãi, thể hiện đẳng cấp cùng gu thẩm mĩ của gia đình
Cây cảnh tại vị trí cầu thang hoàn toàn phù hợp cũng như tạo thêm điểm nhấn cho khu vực này.
Nội thất phòng bếp tinh tế

Phòng bếp nổi bật với 2 gam màu trắng – đen làm màu chủ đạo. Tủ tường hình chữ U ôm sát tường, giúp tối ưu hóa diện tích căn phòng đáng kể.
Tường tại khu vực nấu nướng được lát gạch tráng men, giúp cho việc vệ sinh khu bếp sau nấu ăn dễ dàng hơn.
Nội thất phòng ngủ ấn tượng

Căn phòng ngủ đầu tiên gây chú ý với gam màu trắng chủ đạo, kết hợp cùng với đèn chùm và đèn âm tường, giúp không gian căn phòng luôn sáng sủa.
Cách bố trí nội thất đơn giản, nhưng không kém phần tiện nghi.

Căn phòng ngủ thứ hai đầy màu sắc, ngộ nghĩnh với tranh treo tường phù hợp với sở thích của chủ phòng. Tủ đồ âm tường kết hợp cùng với các kệ để đồ trên tường được sử dụng giúp tiết kiệm diện tích phòng.

Phòng thay đồ được thiết kế trong phòng ngủ, đầy thuận tiện. Cách sắp xếp tại khu vực này vô cùng khoa học, không bị rối mắt.

Căn phòng ngủ thứ 3 đầy tinh tế, với tranh treo tường đầy tính nghệ thuật. Mỗi một chi tiết trong phòng đều thể hiện sự tỉ mỉ, chỉn chu trong từng thiết kế của kiến trúc sư.
Nội thất phòng thờ trang nghiêm

Phòng thờ của gia đình mang đậm phong cách của phương Đông với tượng Phật, bệ thờ và một bộ bàn ghế gỗ đầy êm ái để uống trà.
Cách thiết kế căn phòng thể hiện sự trang trọng, thành kính đối với ông bà, gia tiên của gia chủ.

Các bức tranh sơn thủy mang đến tính thẩm mĩ cao dành cho căn phòng thờ. Ngoài ra, một chậu cây xanh được đặt cạnh cửa sổ, tạo sự tinh tế cho căn phòng.
Tạm kết
Hi vọng ngôi biệt thự của gia đình sẽ là tư liệu tham khảo hữu ích dành cho bạn đọc muốn tham khảo.
Nếu bạn đọc đang tìm kiếm cho mình một đơn vị thiết kế và thi công uy tín tại khu vực miền Nam, hãy gọi ngay cho chúng tôi theo hotline 09626.859.39 để được tư vấn miễn phí về công trình nhé!



