Nằm trong xu hướng thiết kế kiến trúc hiện đại ngày nay, những mẫu nhà phố 3 tầng được xem là lựa chọn tối ưu hoàn hảo nhất, đáp ứng đầy đủ về công năng sử dụng, cùng một kiến trúc bề thế và khang trang. Thiết kế mặt tiền nhà phố 8m 3 tầng hiện đại với phối cảnh mặt tiền đơn giản, tinh tế và cuốn hút dưới đây, hy vọng sẽ đem đến cho các bạn những ý tưởng thiết kế để hoàn thiện cho công trình nhà ở của gia đình mình trong tương lai.
Yêu cầu hỗ trợ tư vấn thiết kế mặt tiền nhà phố 8m 3 tầng
Gia chị Nga hiện có 4 thành viên, hiện đang sinh sống và làm việc tại Vĩnh Phúc. Gia đình đang sở hữu một ô đất mặt tiền rộng 8m, chiều dài 15m. Dự định trong năm nay sẽ tiến hành thi công mẫu nhà phố 3 tầng hiện đại, thiết kế công năng 4 phòng ngủ, 1 phòng khách, 1 phòng bếp + ăn, phòng thờ, phòng karaoke.
Phối cảnh kiến trúc mang phong cách hiện đại, thiết kế hình khối đơn giản, kiên cố, ngoại thất mặt tiền ấn tượng và phải có điểm nhấn, cùng chi phí đầu tư hợp lý. Tổng kinh phí đầu tư hoàn thiện trọn gói cho công trình không vượt quá 2 tỷ, tiến độ thi công hoàn thiện công trình nhà phố không vượt quá 4 tháng.

Chị là một người khá chú trọng đến yếu tố phong thủy, do đó chị yêu cầu thiết kế nhà theo mệnh của gia chủ, thiết kế đúng hướng và chuẩn về mặt phong thủy, đặc biệt chú trọng đến phòng ngủ, bếp, phòng thờ. Điều này rất quan trọng đối với gia đình chị, nó ảnh hưởng đến dòng vượng khí, may mắn và tài lộc của gia đình.
Sau khi tiếp nhận những yêu cầu thiết kế nhà đẹp của gia đình chị Nga, kiến trúc sư đã có những cân nhắc và nhanh chóng tiến hành khảo sát hiện trạng trước khi lên phương án, ý tưởng thiết kế nhà hoàn hảo nhất.
Phối cảnh mặt tiền nhà phố 8m 3 tầng hiện đại
Tiếp nhận các yêu cầu thiết kế của gia đình chủ đầu tư, cùng với khảo sát hiện trạng thực tế, chúng tôi đã lên phương án phối cảnh cho mẫu nhà phố đẹp. Ngay trong buổi làm việc trực tiếp với chủ đầu tư, chúng tôi đã trình bày những phương án thiết kế mà chị đã yêu cầu. Sau nhiều giờ làm việc, chủ đầu tư đã chốt phương án thiết kế với sự hài lòng mà những gì kiến trúc sư đem lại.
Với mặt tiền 8m, tận dụng vị thế khu đất ngay tại mặt đường, kiến trúc sư thiết kế mặt tiền chia thành hai khối. Một phần là hệ thống cửa cổng chính ấn tượng với hệ cửa sắt phun sơn tĩnh điện cao cấp màu đen. Phần bên cạnh thiết kế khối tường rào kiên cố, đan xen phần thân tường được trang trí bằng lam sắt màu trắng, tô điểm thêm cây xanh, hoa lá phần lam và trên mái, giúp công trình tạo nên hiệu ứng thẩm mỹ lôi cuốn, tinh tế đầu tiên khi bước vào bên trong nhà.
Từ thiết kế kiến trúc mặt tiền tầng trệt ốp đá tự nhiên có vân mây, kết hợp cùng mảng khối ban công lầu 1 và lầu 2 đua ra rộng gần 1m so với tầng trệt ngay trước mặt tiền giúp tạo hiệu ứng không gian nhà phố trở nên cuốn hút và đẹp mắt hơn.
Với khối ban công đua ra rộng, việc sử dụng kính cường lực cho lan can và hệ thống cửa kính khung nhôm xingfa, kết hợp bồn cây xanh trước ban công mặt tiền cùng vách lam sắt sươn trắng, giúp thể hiện sự thanh thoát, tươi mới và trẻ trung cho công trình. Đồng thời, còn đón nhận được nhiều gió thoáng, lấy sáng tự nhiên và giúp cho mặt tiền nhà phố 8m 3 tầng trở nên sang trọng và hiện đại hơn.
Màu sắc là một trong những yếu tố tác động đến sức hút và tính chất thẩm mỹ cao của toàn bộ công trình. Sự kết hợp tài tình của gam màu trắng và màu kem của đá ốp tường tại tầng trệt, màu nâu của gỗ ốp trần nhà, màu đen của khung cửa sổ, cùng với thiết kế cảnh quan thiên nhiên trước mặt tiền, góp phần phô diễn sự mềm mại và gần gũi của căn nhà phố.
Ngắm nhìn từ xa mẫu thiết kế mặt tiền nhà phố 8m hiện đại không chỉ phô diễn những đường nét kiến trúc kiên cố, mẫu thiết kế nhà còn đem đến ấn tượng với cách phối màu sắc ăn ý và hài hòa. Hứa hẹn sẽ đem đến cho bạn những ý tưởng thiết kế độc đáo và mới mẻ.
Mặt bằng công năng nhà phố 3 tầng mặt tiền 8m
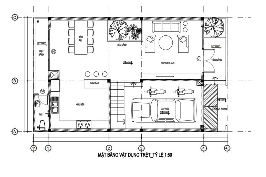
Mặt bằng tầng trệt nhà phố mặt tiền 8m 3 tầng
Mặt bằng tầng trệt thiết kế đơn giản với những công năng sinh hoạt chung như tiền sảnh, gara ô tô và xe máy, thiết kế cầu thang thông tầng đối diện gara. Từ tiền sảnh bước vào nhà là không gian phòng khách, đặt gần với cửa ra vào. Thiết kế liên thông với phòng khách là khu vực bếp + ăn, bar mini, ngăn cách hai không gian này là tiểu cảnh sân vườn nhỏ. Phía bên trong là hậu sảnh và nhà vệ sinh chung.

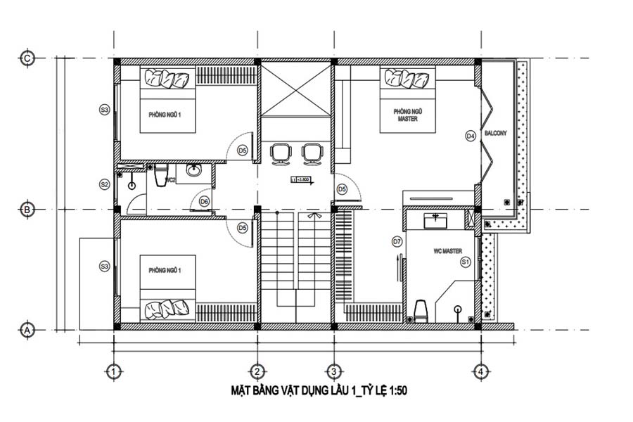
Mặt bằng lầu 1 nhà phố mặt tiền 8m 3 tầng
Công năng lầu 1 của mẫu thiết kế mặt tiền nhà phố 8m 3 tầng bao gồm 3 phòng ngủ, 1 phòng ngủ Master dành cho vợ chồng chị, thiết kế rộng và thoáng mát, hướng ra ban công mặt tiền, bố trí phòng thay đồ và nhà vệ sinh khép kín. Đối diện phòng ngủ Master là phòng ngủ 2 con, thiết kế nhà vệ sinh chính giữa 2 phòng ngủ để thuận tiện cho nhu cầu cũng như di chuyển. Trung tâm nhà là cầu thang thông tầng và khu vực học tập.

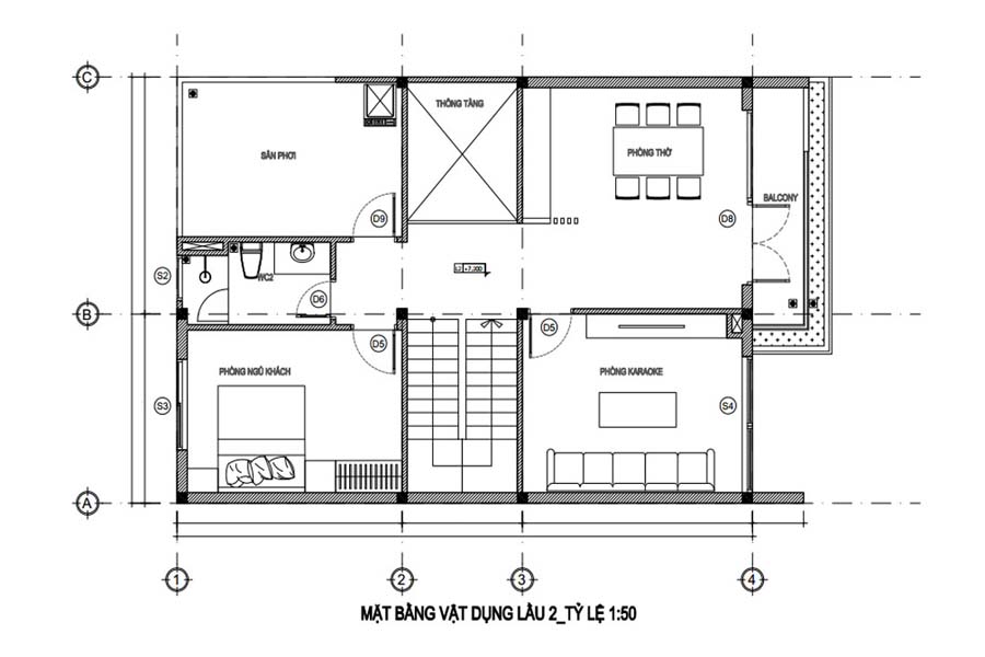
Mặt bằng lầu 2 nhà phố mặt tiền 8m 3 tầng
Lầu 2 thiết kế 1 phòng ngủ cho khách, sát bên phòng ngủ khách là khu vực giặt và sân phơi, chính giữa 2 chức năng này là nhà vệ sinh chung. Bố trí phòng karaoke và phòng thờ hướng ra mặt tiền, thiết kế phòng thờ có lối ra ban công trước nhà, đảm bảo cho sự thông thoáng, lấy sáng và lưu thông khí tốt.










