Chiêm ngưỡng mẫu biệt thự đẹp 2 tầng 2 mặt tiền với thiết kế ấn tượng, đầy thu hút. Trong bài viết này, Cường Gia Hiếu xin gửi đến bạn đọc mẫu thiết kế được lên phương án bởi đội ngũ kiến trúc sư lành nghề, căn nhà xứng đáng là mẫu nhà điển hình cho thiết kế biệt thự hiện đại. Cùng theo dõi bài viết để tìm hiểu thêm về mẫu biệt thự này ngay nhé!

Phối cảnh biệt thự hiện đại 2 tầng 2 mặt tiền tuyệt đẹp tại Nam Định
Mẫu thiết kế biệt thự đẹp 2 tầng 2 mặt tiền tại Nam Định ấn tượng, bắt mắt, độc đáo. Để đảm bảo sự an ninh dành cho căn nhà, phần cổng căn nhà được xây dựng với những khối cột ấn tượng, đẹp mắt. Gam màu tối nhằm làm nổi bật lên màu trắng chủ đạo của căn nhà, tạo sự ấn tượng, đẹp mắt.

Mẫu thiết kế hiện đại dưới góc nhìn từ trên xuống
Để tránh sự đơn điệu tại phần cổng, các hoa văn đơn giản tạo điểm nhấn dành cho căn nhà. Hơn vào đó, bồn hoa được thiết kế ngay tại cổng, để gia chủ tiện trồng cây. Điều này làm tăng mỹ quan của căn nhà.
Mái thái tối màu, độ dốc vừa phải đảm bảo thích hợp với điều kiện thời tiết khắc nghiệt của nước ta.
Tầng trệt căn nhà sử dụng đá ốp tường, vừa giúp giữ được độ sạch sẽ của căn nhà, mà còn tạo điểm nhấn riêng biệt dành cho căn biệt thự.

Căn biệt thự dưới góc nhìn chính diện
Tầng lầu căn nhà nổi bật với gam màu trắng tinh tế, đi kèm với các đường gờ dứt khoát. Cửa kính tối màu, nhằm hạn chế ánh sáng chói vào không gian căn nhà.
Tại vị trí ban công tầng lầu được thiết kế khá nhiều khu vực trồng cây cảnh và hoa. Nhờ thế mà cảnh quan của căn nhà trở nên đẹp mắt, mang tính thẩm mĩ cao.

Phối cảnh căn nhà dưới một góc nhìn khác
Các hệ thức cột vuông tại tiền sảnh căn nhà mang đến sự vững chãi, chắc chắn. Ban công sắt tối màu vừa đảm bảo sự an toàn, vừa mang đến nét đẹp riêng biệt dành cho căn nhà.
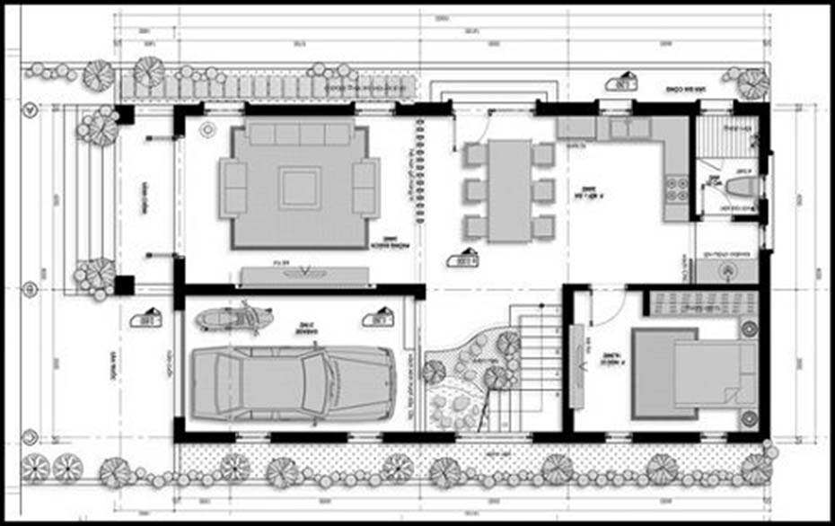
Bản vẽ mặt bằng công năng biệt thự 2 tầng 2 mặt tiền đẹp tại Nam Định
Dựa vào nhu cầu của gia đình, cũng như sở thích của các thành viên trong gia đình, các kiến trúc sư đã lên phương án thiết kế công năng cho ngôi biệt thự, đảm bảo tính khoa học, hợp lí
Bản vẽ mặt bằng công năng tầng trệt
Công năng tầng 1 bao gồm: Khu vực nhà để xe, phòng khách, phòng bếp + phòng ăn, phòng ngủ và WC.

Khu vực sân trước sử dụng một khoảng trống để làm nơi đậu xe của gia đình, thuận tiện cho việc di chuyển cũng như bảo quản xe.
Phòng khách được thiết kế cạnh nhà để xe, tuy nhiên được ngăn cách bởi tường bê tông vững chắc, đảm bảo ngăn chặn khói bụi từ phòng bên cạnh. Phòng bếp và phòng ăn cạnh phòng khách, với cách sắp xếp và bày trí nội thất đầy khoa học, gọn gàng.
Phòng ngủ cạnh cầu thang, hướng ra sân sau, giúp cho không gian trong phòng thêm thoáng đãng, mát mẻ.
Nhà vệ sinh nằm bên ngoài tại vị trí cuối nhà, đảm bảo nhu cầu sinh hoạt của các thành viên trong gia đình.
Bản vẽ mặt bằng công năng tầng hai
Công năng tầng 2 bao gồm: 3 phòng ngủ, phòng thờ, 1WC và khu vực sân phơi.

Tại vị trí bên phải cầu thang là một phòng thờ, hướng ra ban công. Căn phòng sử dụng nội thất gỗ, mang đến sự trang trọng, tôn nghiêm đối với ông bà, tổ tiên.
Đối diện phòng thờ là phòng ngủ Master, với nội thất đầy đủ, tiện nghi cùng với WC trong phòng, tạo thành một không gian khép kín.
Kế đó là 2 phòng ngủ dành cho con, hướng đến sự đơn giản trong thiết kế nhưng mang đến sự thoải mái khi nghỉ ngơi. WC cạnh cầu thang, thuận tiện sử dụng.
Khu vực phơi đồ với máy giặt và vòi nước cạnh sân phơi, phục vụ cho nhu cầu sinh hoạt của các thành viên trong gia đình.
Thiết kế nội thất biệt thự hiện đại 2 tầng 2 mặt tiền tại Nam Định
Thiết kế phòng khách biệt thự 2 tầng 2 mặt tiền
Nội thất căn nhà được thiết kế theo phong cách hiện đại, đầy trẻ trung. Không gian phòng khách thoáng mát nhờ vào hệ thống cửa kính kéo dài từ trần xuống sàn, đảm bảo nguồn ánh sáng tự nhiên của căn phòng. Không chỉ thế, nội thất trong căn phòng được bố trí một cách khoa học, giúp căn phòng mang tính thẩm mĩ cao.

Thiết kế nội thất phòng bếp
Gian phòng ăn với nội thất hiện đại, tiện nghi, cùng với cách phối màu sắc hài hòa, hợp lí giúp cho cả căn phòng như sáng bừng. Điều đó như làm tăng thêm mĩ vị cho từng bữa ăn của gia đình.

Thiết kế nội thất phòng bếp – ăn liền kề
Thiết kế nội thất phòng ngủ
Phòng ngủ được thiết kế rộng rãi, thoáng mát. Nội thất được lựa chọn tỉ mỉ, kĩ lưỡng nhằm mang đến cho căn phòng nét đẹp hiện đại, đầy phóng khoáng.

Thiết kế nội thất phòng ngủ vợ chồng
Căn phòng với thiết kế độc đáo, nổi bật với nội thất hiện đại. Màu sắc hài hòa, đầy ấn tượng. Từng chi tiết được thiết kế một cách tỉ mỉ, chỉn chu, nhằm mang đến cho căn phòng vẻ đẹp ấn tượng nhất.

Không gian một căn phòng ngủ khác với thiết kế lạ mắt
Thiết kế không gian phòng thờ
Không gian phòng thờ đầy trang trọng, tôn nghiêm. Sử dụng nội thất gỗ giúp căn phòng thêm phần nổi bật, độc đáo. Các chi tiết trang trí được lựa chọn đầy tỉ mỉ và kĩ lưỡng.

Thiết kế nội thất phòng thờ
Thiết kế phòng tắm

Gian phòng tắm với thiết kế hiện đại, đầy đủ và tiện nghi
Không gian sân vườn nhỏ đẹp

Không gian sân vườn mang tính thẩm mĩ cao

Thiết kế khu vực sân vườn
Tạm kết
Căn biệt thự hiện đại 2 tầng 2 mặt tiền xứng đáng là mẫu thiết kế đẹp ấn tượng dành cho gia chủ tham khảo xây dựng. Nếu bạn có nhu cầu thiết kế, thi công nhà, biệt thự đẹp hãy liên hệ tới công ty Kiến Trúc & Nội Thất Smallhome qua hotline: 09626.859.39 để được hỗ trợ tư vấn miễn phí.

