THIẾT KẾ NHÀ Ở KẾT HỢP VĂN PHÒNG CHO THUÊ
Một trong những loại hình xây dựng được nhiều chủ đầu tư quan tâm và đầu tư hiện nay chính là thiết kế nhà ở kết hợp với văn phòng cho thuê. Việc tích hợp này vừa tận dụng được quỹ đất, tăng mục đích sử dụng, đồng thời tạo cơ hội kinh doanh mới cho nhiều gia đình.
Loại hình nhà ở kết hợp với kinh doanh mà chúng tôi muốn giới thiệu với quý khách hàng dưới đây là công trình tổ hợp văn phòng cùng với căn hộ chung cư mini cho thuê. Được chủ đầu tư lên ý tưởng và triển khai theo hồ sơ thiết kế của Smallhome.

Phối cảnh mặ tiền mẫu nhà ở kết hợp văn phòng cho thuê
Thông tin công trình văn phòng kết hợp với nhà ở cho thuê
- Chủ đầu tư: Nguyễn Văn Thanh
- Địa điểm: Long Biên
- Năm thiết kế: 2020
- Diện tích thiết kế: 6x20m
- Loại hình kiến trúc: nhà 4 tầng, tổ hợp dịch vụ văn phòng cho thuê cùng chung cư mini
- Công năng sử dụng:
+ Tầng 1: gara để xe
+ Tầng 2: văn phòng cho thuê
+ Tầng 3 + 4: căn hộ cho thuê
Yêu cầu tư vấn thiết kế mẫu nhà ở kết hợp văn phòng cho thuê
Gia đình anh Thanh hiện đang sở hữu ô đất có mặt tiền 6m, chiều sâu 20m. Ô đất này được bố mẹ anh để lại cho hai vợ chồng làm vốn kinh doanh.
Sau nhiều lần tìm hiểu các mô hình kinh doanh bất động sản và dịch vụ cho thuê, anh có ý định sẽ xây dựng tổ hợp công trình thiết kế nhà ở kết hợp văn phòng cho thuê . Xu hướng này hiện đang được thị trường đón nhận.
Dự kiến mẫu thiết kế nhà của anh sẽ xây dựng 5 tầng, tầng 1 là không gian để xe chung của tòa nhà, tầng 2 là văn phòng cho thuê, tầng 3 và tầng 4 sẽ thiết kế căn hộ mini khép kín với đầy đủ tiện nghi cho các hộ gia đình thuê.

Góc nghiêng của công trình tổ hợp dịch vụ kinh doanh
Sau khi có ý định kinh doanh, qua người quen giới thiệu, anh chị tìm đến công ty Smallhome nhờ kiến trúc sư tư vấn, lên phương án thiết kế cho gia đình.
Vị trí ô đất ngay tại mặt đường, thuận tiện cho việc đi lại, gần trung tâm thành phố, kinh phí anh chị dự kiến đầu tư không vượt quá 3 tỷ.
Phương án mẫu thiết kế nhà ở kết hợp văn phòng cho thuê
Sau khi tiếp nhận được yêu cầu và mục đích sử dụng của gia đình, kiến trúc sư của Smallhome đã có cuộc gặp gỡ, trao đổi ý tưởng thiết kế ban đầu, ký hợp đồng để triển khai hồ sơ thiết kế theo như nhu cầu của gia đình.
Việc tích hợp mô hình không có gì mới mẻ, tuy nhiên phương án thiết kế phải đảm bảo nhiều yếu tố, từ tính thẩm mĩ, công năng cho đến kinh phí.
Sau khi tiếp nhận thông tin, kiến trúc sư đã tiến hành khảo sát hiện trạng, đưa ra phương án tư vấn thiết kế văn phòng và căn hộ sao cho khoa học nhất dành cho chủ đầu tư.
Mặt tiền rộng cùng với vị trí trung tâm, cơ hội phát triển mô hình kinh doanh nhà ở văn phòng sẽ khả quan.

Mẫu nhà ở kết hợp với văn phòng có mặt tiền hiện đại và thông thoáng
Hình khối kiến trúc công trình được tạo điểm nhấn khá rõ nét. Mặt tiền được xử lý khéo léo với hình khối đồng bộ, phân chia mặt trước thành hai mảng riêng biệt. hệ thống ban công xanh chạy thẳng xuyển suốt từ trên mái thẳng xuống dưới, mang đến sự kết nối các không gian theo cách độc đáo mà không hề cứng nhắc cho phương án thiết kế nhà ở kết hợp văn phòng cho thuê.
Hệ thống cửa sổ thiết kế đẹp mặt, đảm bảo các không gian phía trước đón nhận được ánh sáng. Đồng thời các không gian phía trong cũng không bị bí bách.
Việc sử dụng gạch ốp mặt tiền với họa tiết dọc tạo hiệu ứng, kết hợp với hệ thống cửa nhôm màu nâu cà phê đem đến sự đồng bộ và hài hòa tuyệt đối.
Hình khối mẫu nhà ống giàu tính thẩm mĩ, ấn tượng và cuốn hút, chủ đầu tư rất hài long về phương án kiến trúc mà kiến trúc sư đưa ra.
Việc kết hợp kiểu khối phẳng và hình học vuông trong không gian, sẽ dễ đem lại hiệu ứng cao, được ứng dụng rộng rãi cho các không gian kinh doanh.
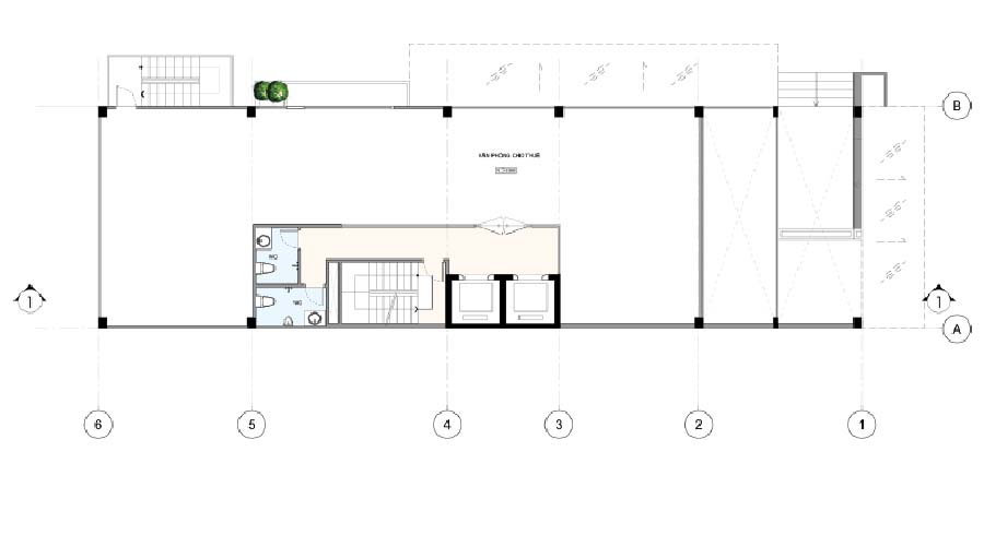
Mặt bằng công năng sử dụng của mẫu thiết kế nhà ở kết hợp văn phòng cho thuê

Mặt bằng tầng 1
Do nhu cầu làm chung cư mini và văn phòng cho thuê, do đó nhu cầu để xe khá lớn, chúng tôi lên phương án thiết kế toàn bộ tầng 1 là khu vực để xe ô tô và xe máy. Hệ thống đường vào và ra của xe máy với ô tô được thiết kế riêng biệt về hai đầu, đảm bảo cho việc sử dụng cũng như xây dựng mặt bằng. Tầng 1 được thiết kế khu vực máy phát điện và buồng phòng kỹ thuật riêng của tòa nhà, đảm bảo việc cung cấp hệ hống điện, nước, phòng cháy chữa cháy riêng.
Hệ thống thang mày thiết kế 2 buồng thang và thang bộ ở ngay cạnh thang máy được đặt ở trung tâm, việc này đảm bảo khoảng cách di chuyển thuận tiện cho cả tòa nhà.

Mặt bằng tầng 2
Toàn bộ diện tích sàn tầng 2 được sử dụng để làm văn phòng cho thuê. Diện tích đồng nhất và liên thông sàn, thuận tiện cho doanh nghiệp có quy mô vừa và nhỏ setup bộ máy. Nhà vệ sinh nam và nữ được thiết kế riêng ở tầng 2, gần với khu vực cầu thang bộ cho nên khá kín đáo khi sử dụng và không ảnh hưởng đến không gian văn phòng bên trong.

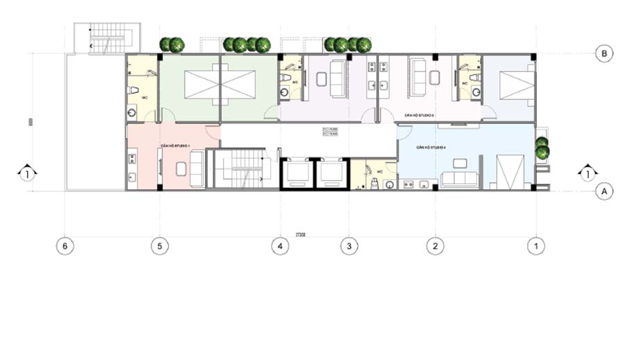
Mặt bằng tầng 3
Tầng 3 là khu vực căn hộ cho thuê. Diện tích các phòng thiết kế khác nhau, tuy nhiên công năng và tiện ích như nhau. Căn hộ mini thiết kế khép kín, có nhà vệ sinh, khách và bếp chung và có 1 phòng ngủ. Tất cả các phòng đều có thiết kế hệ thống cửa sổ, trang bị thiết kế nội thất cơ bản. Tầng 3 bố trí 5 căn hộ nhỏ, diện tích hành lang đảm bảo cho không gian sinh hoạt chung của các gia đình.

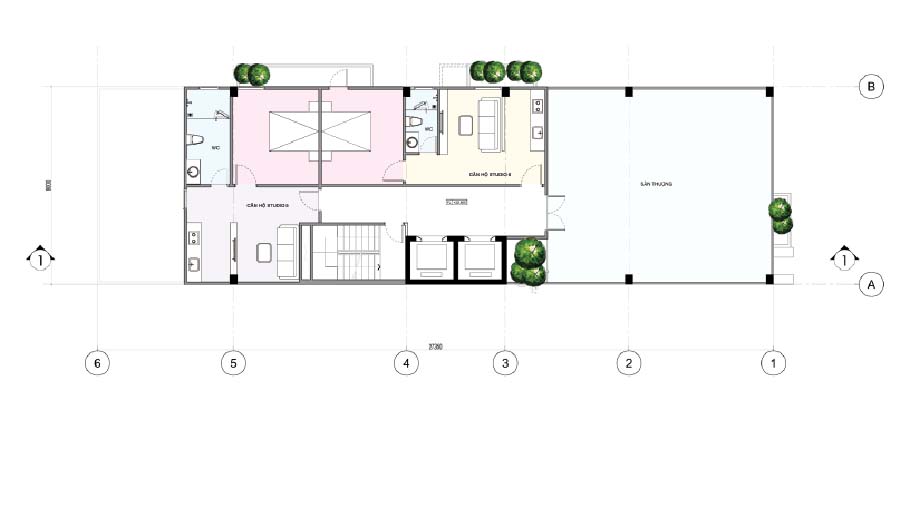
Mặt bằng tầng 4
Tầng 4 kiến trúc sư dành hơn 1/3 diện tích sàn để thiết kế sân thượng. Đảm bảo cho hệ thống lấy sáng, đón gió từ trên mái đúng tiêu chuẩn, để sử dụng cho tòa nhà. Diện tích sàn sử dụng bị thu hẹp, tầng 4 được kiến trúc sư bố trí 2 căn hộ nhỏ, công năng và tiện nghi giống như các phòng ở tầng 3.

Mặt bằng mái
Hệ thống giếng trời lấy sáng được thiết kế mái kính vuông, vừa đảm bảo sự phân bổ đồng đều hơn, vừa giúp tính thẩm mĩ hài hòa và cân đối với hình khối kiến trúc. Mái tôn chống nóng được xử lý khéo léo và thông minh cho phần sân thượng. Việc thiết kế kết hợp mái tôn và bê tông sẽ giúp tiết kiệm chi phí mà vẫn đảm bảo công năng, độ bền của công trình.
Mẫu thiết kế nhà ở kết hợp văn phòng cho thuê với sự tính toán khoa học của kiến trúc sư, đã giúp chủ đầu tư có được phương án kinh doanh mới mẻ. Hồ sơ kỹ thuật thi công nhanh chóng được triển khai, hiện công trình đang trong giai đoạn thi công xây dựng.
Mô hình kinh doanh này không mới, tuy nhiên tính toán chi phí và tạo hình mặt tiền được xem là mấu chốt của vấn đề. Nếu bạn đang quan tâm đến mô hình này, hãy liên hệ ngay với kiến trúc sư của chúng tôi để được tư vấn chi tiết và cụ thể hơn.









