Thiết kế nhà ống 5 tầng tân cổ điển ấn tượng tại Hà Nam
Kiến trúc của mẫu nhà ống 5 tầng tân cổ điển tại Hà Na, trở thành hình mẫu lý tưởng được nhiều người yêu thích nhờ mặt tiền duyên dáng cùng công năng bên trong tiện nghi. Đặc biệt, gia chủ còn sử dụng thêm thang máy để kết nối các tầng, giúp cho việc di chuyển trong mẫu mặt tiền nhà phố đẹp được thuận tiện hơn.
Mặt tiền nhà ống 5 tầng tân cổ điển ấn tượng

Điều thu hút đầu tiên khi nhìn thấy bản phối cảnh căn nhà phố này chính là sự đăng đối và hài hòa. Kết hợp với phào chỉ, phù điêu tinh xảo tạo nên nét khác biệt.
Màu sắc chính là yếu tố quan trọng giúp ngôi nhà phố tân cổ điển thu hút người nhìn. Với không gian tầng trệt ốp đá màu vàng trong khi các tầng bên trên sơn trắng. Đây là hai gam màu phổ biến thường được sử dụng trong kiến trúc tân cổ điển hiện nay. Nếu như gam màu vàng thể hiện sự sang trọng, quyền quý thì màu trắng lại cho thấy sự thanh tao, mạnh mẽ trong nhà 5 tầng.
Kiến trúc sư sử dụng cửa cuốn để bảo vệ cho phần gara để xe. Trong khi các khung cửa bên trên lại làm bằng gỗ tự nhiên được xử lý kỹ lưỡng để chống bay màu và làm giảm chất lượng cửa.
Cửa chính và cửa trên ban công nhà ống 5 tầng tân cổ điển được thiết kế rộng và làm bằng gỗ, được trang trí bằng những hoa văn nổi, đẹp mắt tạo vẻ đẹp vừa cổ điển pha chút hiện đại tạo nên sự đăng đối và hài hòa với không gian kiến trúc xung quanh.

Từ tầng 2 trở lên hệ thống ban công làm bằng sắt mỹ nghệ vừa đảm bảo phù hợp với phong cách kiến trúc vừa giúp lấy sáng, đón gió và đảm bảo sự thoáng đãng cho không gian nội thất bên trong nhà. Cạnh ban công ngôi nhà được bố trí những cây xanh tạo bầu không khí xanh mát cho ngôi nhà giữa phố phường bụi bặm.
Bậu cửa sổ và mái trang trí bằng những chi tiết hoa văn, phù điêu tinh xảo mang đến vẻ đẹp thẫm mỹ cho công trình.
Bố trí công năng nhà ống 5 tầng tân cổ điển
Vì xây theo hướng cao tầng, tận dụng các khoảng không bên trên nên ngoài thang bộ kiến trúc sư còn sắp xếp thêm hệ thang máy, giúp các thành viên trong nhà di chuyển dễ dàng.

Tầng 1 ngôi nhà được dành hoàn toàn cho khu vực để xe máy và xe ô tô.

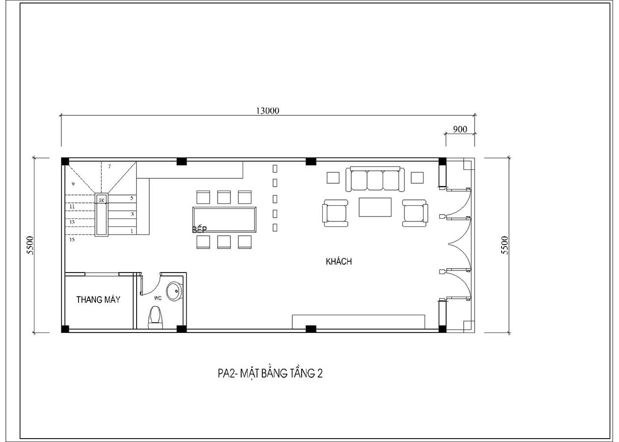
Phòng khách và bếp ăn được đưa lên khu vực tầng 2. Ngoài thang bộ khách và chủ nhà có thể lựa chọn đi thang máy.

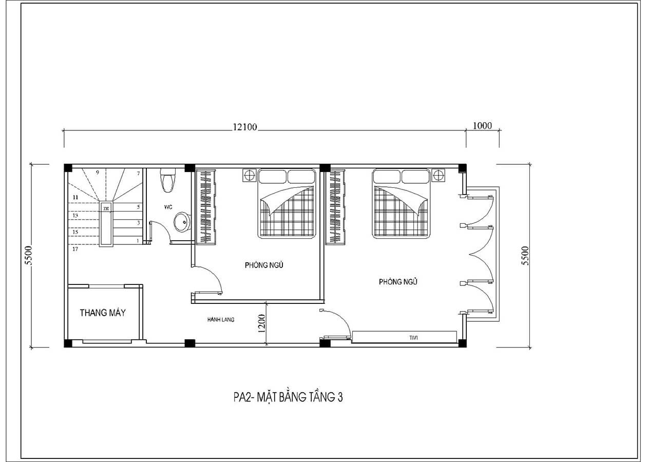
Tầng 3 sở hữu 2 phòng ngủ kích thước lớn nhỏ khác nhau. Hai phòng cùng sử dụng chung một nhà vệ sinh nhằm tiết kiệm diện tích.

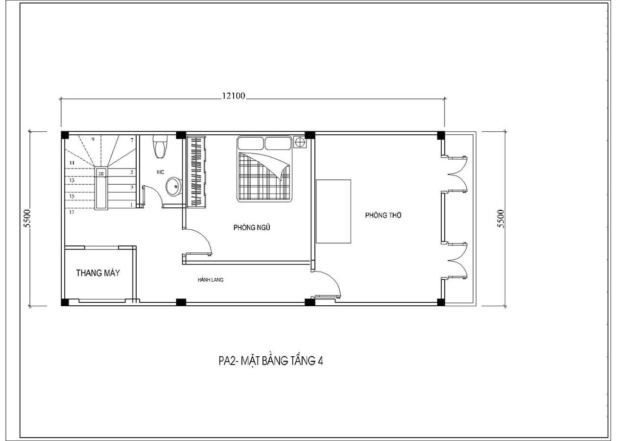
Tầng 4 được sử dụng cho phòng thờ và một phòng ngủ.
Hình ảnh nội thất sang trọng trong nhà ống 5 tầng tân cổ điển
Bố trí nhà ống khác với những kiểu nhà khác đó là nhà thường dài và hẹp nên tất cả mọi đồ đạc cần ưu tiên theo chiều ngang. Để biết các kiến trúc sư đã giải quyết bài toán này như thế nào thì hãy cùng Smallhome tham khảo tiếp những hình ảnh dưới đây nhé!

Vốn yêu thích màu trắng nên không chỉ mặt tiền bên ngoài mà cả không gian nội thất bên trong nhà cũng được gia chủ ưu tiên sử dụng. Kết hợp với các yếu tố kiến trúc mang đến một không gian nhà phố hoàn toàn đẳng cấp, thu hút ánh nhìn ngay từ lối vào.

Đèn chùm, tranh treo tường, bàn ghế sofa được bố trí với tỉ lệ và mật độ được cân đối. Cộng với đường nét kiến trúc chính là điểm nhấn làm toát lên nét sang trọng của ngôi nhà.

Sàn lát đá mang đến cảm giác sạch sẽ và dễ dàng làm sạch hàng ngày. Một chiếc đèn chùm dạy dọc theo chiều dài của bàn cung cấp ánh sáng cho khu vực bên dưới.

Nhà ống 5 tầng tân cổ điển còn sở hữu một gian bếp rộng rãi, sang trọng với những thiết bị nấu nướng hiện đại.


Phòng ngủ chính thu hút bởi gam màu trắng tinh tế phân bố với nhiều cấp độ khác nhau từ trắng sáng đến gam màu trắng sữa. Giường ngủ đóng vai trò chính là trung tâm phân phối các đồ dùng nội thất khác.
Dự toán đơn giá xây nhà ống 5 tầng tân cổ điển
Để tiện cho quý vị tham khảo cũng như có khoản dự trù hợp lý cho ngôi nhà của mình. Dưới đây công ty xây dựng nhà chuyên nghiệp xin chia sẻ tiếp cách tính chi phí xây dựng căn nhà phố này.
1. Cách tính diện tích xây dựng nhà 5,5x13m
- Móng: 5,5 x 13 x 50%= 37,75m2
- Tầng 1: 5,5 x 13 x 100%= 71,5m2
- Tầng 2: 5,5 x 13 x 100%= 71,5m2
- Tầng 3: 5,5 x 13 x 100%= 71,5m2
- Tầng 4: 5,5 x 13 x 100%= 71,5m2
- Tầng 5: 5,5 x 13 x 100%= 71,5m2
- Mái: 5,5 x 13 x 70 % = 50,05m2
===> Tổng diện tích sàn cần thi công sẽ là: 445m2
Lưu ý: 445m2 là diện tích sàn nhà ống 5 tầng tân cổ điển mà chúng tôi dự tính chưa phải là con số chính xác, bởi vì phần diện tích này được tính trên bản vẽ sơ bộ, chưa đầy đủ chi tiết. Tức là chưa gồm nhà xe, giếng trời, sân thượng…..
2. Đơn giá xây dựng chung
- Đơn giá xây dựng phần thô dao động từ 3, 4 – 3,7 triệu/m2
- Đơn giá phù điêu, đắp chỉ dao động từ 800 – 1,2 triệu/m2
- Đơn giá xây trọn gói dao động từ 8.000.000 – 12.000.000 triệu/m2
3. Tổng dự trù chi phí xây nhà ống 5 tầng tân cổ điển
- Phần thô: 445m2 x 4.200.000 = Khoảng 1 tỷ 869 triệu: Bao gồm phần thô + nhân công hoàn thiện
- Trọn gói: 445m2 x 9.000.000 = Khoảng 4 tỷ 005 triệu: Bao gồm phần thô + vật liệu hoàn thiện (chỉ chưa có đồ rời như bàn, ghế, giường vv ….).
Như vậy qua đây bạn đã biết bạn cần chuẩn bị khoảng 1,9 tỷ cho phần thô và 4 tỷ để hoàn thiện ngôi nhà phố phong cách tân cổ điển có thang máy như trên. Tuy nhiên đơn giá trên chỉ là con số tham khảo, bởi tùy vào diện tích, điều kiện thi công của từng ngôi nhà khác nhau mà có chi phí khác nhau.
Thông thường phần thô sẽ không có sự dao động nhiều do đơn giá trên được tính dựa trên giá mà nhiều công ty xây dựng đang áp dụng. Tuy nhiên phần hoàn thiện sẽ có nhiều sự thay đổi tùy vào cách gia chủ chọn vật liệu hoàn thiện. Ví như gia chủ chọn vật liệu hoàn thiện cao cấp thì tất nhiên đơn giá sẽ cao hơn.
Để biết được giá chính xác tốt nhất khi xây nhà phố hiện đại bạn nên liên hệ trực tiếp với kiến trúc sư nhờ họ đến đo đạc, bóc tách khối lượng và ra bản vẽ chi tiết thì lúc đó bạn sẽ biết được con số giá chính xác nhất.
Thiết kế Kiến trúc & Nội thất Smallhome
Smallhome chuyên trong lĩnh vực thiết kế kiến trúc, nội thất. Chúng tôi – KTS Smallhome bằng những kinh nghiệm dày dặn, khả năng sáng tạo không ngừng và kỹ năng nắm bắt xu hướng nhạy bén. Luôn luôn hướng tới sự hoàn hảo và cố gắng hết mình để tạo ra sản phẩm đáp ứng mong muốn khách hàng. Làm hài lòng đến cả những vị gia chủ khó tính nhất!
Liên hệ ngay với chúng tôi để được TƯ VẤN MIỀN PHÍ giải pháp Thiết Kế Không Gian và Nội Thất cho biệt thự của bạn.
Gọi ngay HOTLINE: 0962685939 (KTS. Trung Hiếu) hoặc để lại thông tin tại Form Đăng Ký bên dưới.









