I. Thiết kế xây nhà phố hiện đại 3 tầng diện tích 4.4 x 19,6m

Phối cảnh mặt đứng nhà phố 3 tầng hiện đại tại Nam Vân - Nam Định
Mẫu nhà phố 3 tầng đẹp phong cách hiện đại với những điểm nhấn nhá màu sắc của sơn và gạch lát tường, những đường nét mạnh mẽ ô vuông tạo nên nhà phố 3 tầng hiện đại đẹp và phá cách giữa lòng thành phố. Mẫu thiết kế xây nhà phố 3 tầng hiện đại do công ty TNHH Kiến Trúc & Nội Thất Smallhome thiết kế và thi công trọn gói cho một chủ nhân ở Nam Vân - Nam Định.

Phối cảnh góc nghiêng nhà phố 3 tầng hiện đại tại Nam Vân - Nam Định
II. Bố trí công năng nhà phố 3 tầng hiện đại tại Nam Vân - Nam Định.

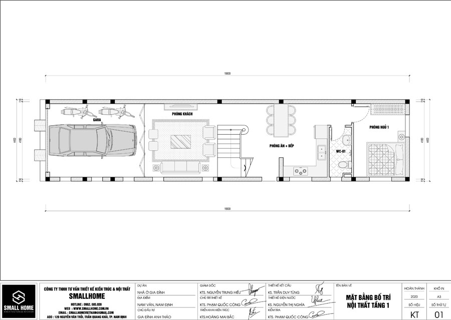
Bố trí công năng tầng 1

Bố trí công năng tầng 2 nhà phố 3 tầng hiện đại tại Nam Vân - Nam Định

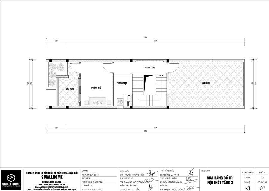
Bố trí công năng tầng 3 nhà phố 3 tầng hiện đại tại Nam Vân - Nam Định











