Thiết kế nhà phố 3 tầng nhà anh Vũ tại Vụ Bản - Nam Định
Anh Vũ - Vụ Bản - Nam Định, diện tích xây dưng 8.5 x 15m đầu tư 1.7 tỷ.
Mẫu thiết kế nhà phố 3 tầng mang phong cách hiện đại trẻ trung. Thiết kế đáp ứng mọi tiêu chí và yêu cầu của chủ nhà là anh vũ tại Vụ Bản - Nam Định. Tiếp nhận thông tin và yêu cầu từ chủ nhà làm việc theo quy trình chuyên môn hóa. Các kts Smallhome đã nhanh chóng đưa ra phương án hoàn toàn thuyết phục. Cùng Smallhome tham quan tìm hiểu thêm về thiết kế ngay dưới đây.
- Chủ đầu tư: anh Vũ
- Địa chỉ: Vụ Bản - Nam Định
- Xây dưng: 8.5 x 15m
- Diện tích tổng đất : 8.5 x 20m sau nở hậu 9.2m ( đất 3 mặt tiền)
- Chi phí đầu tư: 1.7 tỷ
- Phong thủy làm nhà: 1984
I. Tổng hợp những góc đẹp trong thiết kế nhà phố 3 tầng chủ nhà anh Vũ tại Vụ Bản - Nam Định


La bàn phong thủy tuổi gia chủ 1984

Định Vị từ trên cao nhà cũ của anh Vũ tại Vụ Bản - Nam Định

Định Vị từ trên cao nhà cũ của anh Vũ tại Vụ Bản - Nam Định

Gây ấn tưởng từ cái nhìn đầu tiên với phong cách kiến trúc đơn giãn nhẹ nhàng, sang trọng.




Phối cảnh định vì từ trên cao trong thiết kế. giúp chủ nhà dễ hình dung hơn.

II. Mặt bằng bố trí công năng sử dụng các tầng:
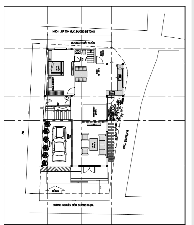
- Mặt bằng tầng 1: 1 phòng khách, 1 phòng bếp + ăn, 1 phòng ngủ, 1 phản gộ, 1 vệ sinh khép kín, 1 vệ sinh chung, 1 sân rửa.
- Mặt bằng tầng 2: 3 phòng ngủ, 1 phòng sinh hoạt chung, 2 vệ sinh khép kín, 1 vệ sinh chung, 1 ban công.
- Mặt bằng tầng 3: 1 phòng ngủ, 1 phòng thờ, 1 phòng kho, 1 khu giặt phơi, 1 nhà vệ sinh, 1 ban công sân thượng.


Mặt bằng bố trí tầng 1 trong thiết kế.
Thiết kế Kiến trúc & Nội thất Smallhome
Smallhome chuyên trong lĩnh vực thiết kế kiến trúc, nội thất. Chúng tôi – KTS Smallhome bằng những kinh nghiệm dày dặn, khả năng sáng tạo không ngừng và kỹ năng nắm bắt xu hướng nhạy bén. Luôn luôn hướng tới sự hoàn hảo và cố gắng hết mình để tạo ra sản phẩm đáp ứng mong muốn khách hàng. Làm hài lòng đến cả những vị gia chủ khó tính nhất!
Liên hệ ngay với chúng tôi để được TƯ VẤN MIỀN PHÍ giải pháp Thiết Kế Không Gian và Nội Thất cho biệt thự của bạn.
Gọi ngay HOTLINE: 0962685939 (KTS. Trung Hiếu) hoặc để lại thông tin tại Form Đăng Ký bên dưới.









