Nhà 3 tầng kinh doanh tại Ninh Bình – Có vẻ ngoài tinh tế và sang trọng, nhà phố 3 tầng hiện đại tại Ninh Bình kết hợp kinh doanh trên diện tích 5x12m một trong những mẫu nhà được nhiều khách hàng lựa chọn hiện nay.
Với ý tưởng phân chia không gian hợp lý, căn nhà đã mang lại hiệu qủa về mặt thẩm mỹ cũng như đáp ứng được nhu cầu sinh hoạt và buôn bán của gia chủ. Ngoài ra với màu sắc và kiến trúc ấn tượng, ngôi nhà đã xóa bỏ được sự đơn điệu và nhàm chán trong lối thiết kế nhà ống thông thường ở các đô thị, mang đến vẻ đẹp hiện đại sang trọng trong không gian.

Chức năng sử dụng và bản vẽ bố trí mặt bằng nhà phố 3 tầng
Nhằm đảm bảo công năng sử dụng trong sinh hoạt hàng ngày kết hợp việc kinh doanh của gia đình, các KTS đã lên phương án cho các tầng của ngôi nhà phố 3 tầng này như sau:
- Toàn bộ tầng 1 được dùng để làm shop kinh doanh.
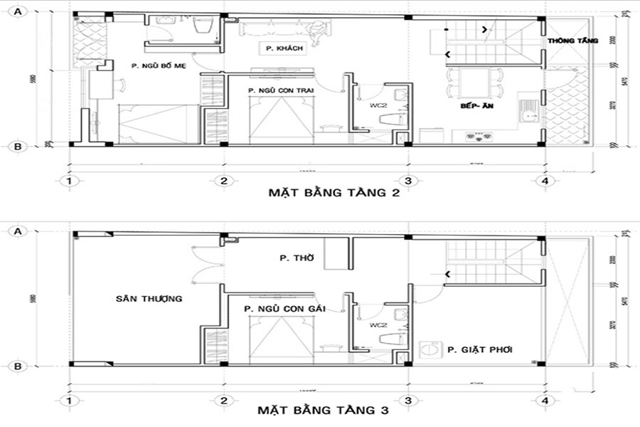
- Tầng 2 với phòng khách, khu vực bếp và phòng ăn, hai phòng ngủ dành cho bố mẹ và con trai.
- Tầng 3 bố trí phòng thờ, một phòng ngủ cho con gái, khu vực giặt phơi và một sân thượng rộng thoáng làm nơi thư giãn.
Bản vẽ bố trí mặt bằng tầng một nhà phố 3 tầng.
Toàn bộ tầng một của ngôi nhà được thiết kế làm nơi buôn bán, có thể phù hợp kinh doanh quán ăn, quán café, hoặc shop áo quần như vị chủ nhân này. Ngoài ra, một phòng vệ sinh nhỏ và khoảng sân bố trí phía sau giúp thuận tiện trong sinh hoạt cũng như tạo sự thông thoáng cho căn nhà.
Tầng hai của ngôi nhà 3 tầng này là không gian chính với phòng khách, bếp và phòng ăn dành làm nơi sinh hoạt chung cho gia đình. Cùng với đó là hai phòng ngủ được thiết kế vệ sinh riêng, đảm bảo sự tiện nghi cho mọi người.

Bản vẽ bố trí mặt bằng tầng hai và ba nhà phố kết hợp kinh doanh.
Tại tầng 3 một phòng ngủ có thiết kế tương tự dành cho con gái của chủ nhà, phía trước là một phòng thờ cùng sân thượng rộng thoáng có thể làm nơi thư giãn cuối tuần cho cả gia đình.
Phối cảnh mẫu nhà 3 tầng kết hợp kinh doanh tại Ninh Bình
Tầng một thoáng rộng với chiều ngang khoảng 4m đến 5m được sử dụng để mở một shop quần áo rất hợp lý. Điều này giúp thuận tiện trong việc trang trí và sắp đặt theo nhu cầu kinh doanh riêng.

Tầng một thoáng rộng được sử dụng để mở một shop quần áo.
Vì đã ưu tiên không gian cho việc kinh doanh, nên diện tích khu vực sinh hoạt chung có một vài điểm hạn chế. Tuy nhiên một bộ sofa hiện đại cùng đồ nội thất tinh tế được lựa chọn kỹ càng sẽ mang lại không gian phòng khách ấm cúng.

Đồ nội thất tinh tế được lựa chọn kỹ càng mang lại không gian ấm cúng.
Tiếp đến là bộ bàn ăn được đặt ngay bên cạnh khu vực ăn uống, giúp thuận tiện trong việc nấu nước và bài trí. Một căn bếp gọn gàng với tủ kệ được thiết kế sát trần nhà, nhằm tạo nhiều không gian sinh hoạt, giúp tiết kiệm diện tích.
Khu vực bếp hiện đại đầy đủ tiện nghi.
Toàn bộ không gian nhà đều được ốp bằng sàn gỗ, tạo cảm giác ấm cúng gần gũi. Gam màu trắng chủ đạo được gia chủ lựa chọn mang lại hiệu ứng không gian, tạo cảm giác rộng rãi cho ngôi nhà.
Các phòng ngủ có thiết kế khá giống nhau, nên để tránh sự nhàm chán và lặp lại, các KTS đã tập trung vào màu sắc và nội thất của căn phòng.

Gam màu nâu đất cùng tranh trang trí tinh tế phù hợp với mong muồn của chủ nhà.
Bạn có thể nhìn thấy sự sang trọng, hiện đại trong không gian phòng ngủ của bố mẹ. Gam màu nâu đất cùng tranh trang trí tinh tế phù hợp với mong muồn của chủ nhà.

Phòng vệ sinh riêng khép kín giúp gia đình thoải mái trong sinh hoạt.
Phòng ngủ của con gái với tông màu hồng pastel cá tính, vừa mang nét đáng yêu vừa có sự vui tươi sinh động phù hợp với lứa tuổi của bé.

Phòng ngủ của con gái với tông màu hồng pastel cá tính.
Riêng không gian dành cho con trai lại mang đậm nét cá tính cùng cửa sổ lớn, giúp căn phòng có hướng nhìn tốt cũng như có thể tận dụng năng lượng tích cực từ ánh sáng mặt trời vào buổi sớm.

Cửa số lớn giúp căn phòng đón được ánh sáng mặt trời vào buổi sớm.

Phòng vệ sinh với tông màu tương phản.
Để tạo thêm không gian xanh cho ngôi nhà, gia chủ đã tận dụng ban công để làm nơi thư giãn cho gia đình. Những chậu cây xanh mát cùng bộ bàn ghế uống trà được bài trí tinh tế sẽ là không gian nghỉ ngơi thật tuyệt vào buổi tối hoặc vào dịp cuối tuần.
Những chậu cây xanh mát cùng bộ bàn ghế uống trà được bài trí tinh tế.
Cuối cùng là không gian phòng thờ trang nghiêm cùng đồ nội thất gỗ nhưng cũng vô cùng hiện đại, phù hợp với các thiết kế nhà phố ngày nay.

Không gian phòng thờ trang nghiêm cùng đồ nội thất gỗ.
Chúng tôi hy vọng bài viết trên sẽ mang đến cho bạn những thông tin hữu ích, giúp bạn có thêm ý tưởng trong việc lựa chọn mẫu nhà đẹp kết hợp kinh doanh cho gia đình. Nếu bạn cần chọn thiết kế phù hợp để thi công hoặc chi tiết hơn về các mẫu nhà phố hiện đại có không gian rộng rãi, đầy đủ tiện nghi. Hãy liên hệ với chúng tôi để được tư vấn tận tình và báo giá ưu đãi nhất.










