4 MẪU BIỆT THỰ 3 TẦNG 2 MẶT TIỀN ĐẸP PHÙ HỢP XU HƯỚNG HIỆN NAY
Mẫu biệt thự 3 tầng 2 mặt tiền là một trong những kiến trúc nhà ở đang được yêu thích hiện nay. Không chỉ sở hữu những nét đẹp nổi bật, bắt mắt cả từ trong chiều sâu của ngôi nhà mà biệt thự 2 mặt tiền giúp không gian sống trở nên thông thoáng, làm tăng giá trị thẩm mỹ của ngôi biệt thự hơn. Dưới đây là một số mẫu biệt thự 3 tầng 2 mặt tiền đẹp mà SMALLHOME muốn giới thiệu để bạn có thể tham khảo.
Mẫu biệt thự 3 tầng 2 mặt tiền phong cách hiện đại bề thế
Mẫu biệt thự 3 tầng 2 mặt tiền được thiết kế với phong cách hiện đại, toát lên vẻ đẹp vô cùng thu hút và có nét cá tính riêng. Ngôi nhà có sự phối hợp hài hòa giữa các màu sắc. Với màu trắng chủ đạo kết hợp nhiều gam màu tự nhiên khác đem đến cho không gian sự khác biệt và mới mẻ. Thiết kế biệt thự sở hữu kiến trúc mở với toàn bộ hệ thống cửa và ban công bằng kính. Nhờ thế mà mọi không gian trong nhà đều đón được ánh sáng tự nhiên. Ngoại thất của biệt thự còn được tô điểm bởi hệ thống hành lang bằng kính cao cấp cùng với tiêu cảnh xanh mát mang thiên nhiên trong lành cho căn nhà.

Thiết kế biệt thự 3 tầng 2 mặt tiền luôn phải có sự hài hòa giữa kiến trúc và không gian sống xung quanh.
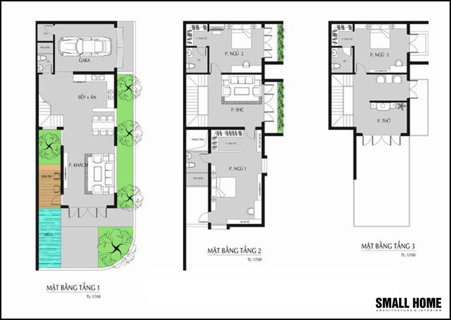
Tầng 1 của biệt thự gồm 1 phòng khách rộng rãi, 1 phòng bếp kết hợp với phòng ăn. Ngoài ra còn có khu vực để xe ô tô có cửa phụ đi vào phòng khách. Đối diện là phòng ngủ dành cho người giúp việc.

Mặt bằng công năng tầng 1
Tầng 2 của mẫu biệt thự 3 tầng 2 mặt tiền là không gian riêng của các thành viên trong gia đình. Gồm 3 phòng ngủ. 1 phòng ngủ master. Phòng ngủ master được thiết kế riêng biệt về 1 phía, có phòng thay đồ, phòng làm việc cùng nhà vệ sinh khép kín.

Mặt bằng công năng tầng 2
Tầng 3 mẫu biệt thự 3 tầng 2 mặt tiền được bố trí 3 phòng ngủ tiện nghi. 1 phòng thờ có cửa ra hướng ban công lớn trước nhà để không gian thờ cúng linh thiếng này luôn thông thoáng.

Mặt bằng công năng tầng 3
Mẫu biệt thự 3 tầng 2 mặt tiền mái thái sang trọng
Được thiết kế sang trọng với kiến trúc độc đáo, có tính thẩm mỹ riêng biệt, mẫu biệt thự 3 tầng 2 mặt tiền mang đến cái nhìn tinh tế cùng những đặc điểm hình thái riêng nâng tầm đẳng cấp. Theo đuổi phong cách tân cổ điển sang trọng, mẫu biệt thự 3 tầng phô diễn được trọn vẹn vẻ đẹp quyền uy, đài các, tôn vinh vị thế của chủ sở hữu. Các chi tiết thiết kế, hoa văn, phào chỉ được chạm khắc cầu kì, ấn tượng đem đến một tổng thể ngoại thất cuốn hút. Tiếp giáp với hàng rào bao quanh ngôi nhà đẹp là một khoảng sân vườn xanh mướt để gia chủ có thể thư giãn, tiếp khách và nghỉ ngơi khi làm vườn.

Nhà biệt thự 2 mặt tiền không chỉ đẹpmà còn tận dụng hết được “địa lợi” giúp quý gia chủ ngày càng phát đạt.
Mặt bằng nội thất tầng 1 được thiết kế với phòng khách rộng, không gian mở liên thông với không gian phòng trà và bếp ăn, hầm rượu và 1 phòng ngủ khép kín, 1 nhà vệ sinh chung. Để tạo sự nối tiếp với sân vườn, 1 chòi nghỉ được thiết kế bên cạnh hồ nước tạo không gian thơ mộng.

Mặt bằng công năng tầng 1
Công năng tầng 2 mẫu biệt thự 3 tầng 2 mặt tiền được bố trí 3 phòng ngủ. Cùng với các không gian thư giãn chung của các thành viên khác là không gian phòng sinh hoạt chung, phòng karaoke và 1 sân chơi có thể bố trí nhiều hoa và tiểu cảnh đẹp.

Mặt bằng công năng tầng 2
Không gian tầng 3 được thiết kế với phòng thờ chuẩn phong thủy của gia chủ. Trên tầng này cũng được bố trí 1 phòng ngủ khép kín, 1 khu sinh hoạt chung, sân chơi và sân phơi.

Mặt bằng công năng tầng 3
Thiết kế biệt thự 3 tầng 2 mặt tiền 4 phòng ngủ
Phối cảnh tổng thể mẫu biệt thự 3 tầng 2 mặt tiền hiện đại mang những đường nét góc cạnh nhưng tinh tế và lôi cuốn. Vật liệu chủ đạo được sử dụng là những thanh nhôm đen vẽ nên sự năng động, ấn tượng trở thành một điểm nhấn, thu hút mọi ánh nhìn của du khách và người qua đường. Tông màu được sử dụng với gam màu trắng kết hợp đá và gỗ màu nâu để tạo sự gần gũi và ấm áp cho ngôi nhà. Sở hữu 2 mặt tiền nên thuận tiện nên gia đình sẽ có khoảng đi lại và có khoảng không gian phía trước thoải mái. Xung quanh biệt thự là những mảng xanh tạo cho gia chủ không gian sống trong lành hòa hợp với thiên nhiên và đem lại cảm giác thoải mái sau một ngày làm việc mệt mỏi.

Thiết kế biệt thự 3 tầng hiện đại có kiến trúc mái nhọn với những tiện ích nội thất và thiết kế hiện đại, sang trọng.
Tầng 1 kiến trúc sư bố trí không gian sinh hoạt chính của gia đình bao gồm khu gara, phòng khách, phòng làm việc và khu sân thượng. Cuối nhà là khu nhà vệ sinh tách biệt, có lối ra khi sân vườn rộn mát.

Mặt bằng công năng tầng 1
Trên tầng 2 mẫu biệt thự 3 tầng 2 mặt tiền được bố trí 2 phòng ngủ, phòng bếp và khu nhà vệ sinh riêng cho mỗi phòng ngủ. Việc bố trí phòng bếp ở đây cũng khá hợp lý vì tầng này có khoảng ban công cùng không gian thang thoáng đãng. Do đó, không khí luôn được luân chuyển, mùi thức ăn không bị ám lại.

Mặt bằng công năng tầng 2
Tầng 3 của mẫu biệt thự 3 tầng 2 mặt tiền bao gồm 2 phòng ngủ, 1 phòng thờ có cửa ra ban công lớn trước nhà. Giúp tạo sự thông thoáng cho nơi thờ cúng linh thiêng.

Mặt bằng công năng tầng 3
Thiết kế biệt thự 3 tầng 2 mặt tiền không gian mở thoáng
Nhà biệt thự 3 tầng với 2 mặt tiền có thể phô diễn được hết nét đẹp tinh xảo trong kiến trúc. Không quá đồ sộ nhưng mẫu biệt thự này có thiết kế vô cùng hấp dẫn với các đường nét kiến trúc thẳng, phá cách. Thiết kế không gian mặt tiền theo kiến trúc mở rộng gắn kết với thiên nhiên. Vì thế mà tại mọi góc nhìn, biệt thự vẫn thể hiện được nét quyến rũ và hiện đại. Bên cạnh những sắc màu trung tính từ vật liệu đá ốp độc đáo, kiến trúc sư còn kết hợp tinh tế thêm một số màu sắc tương phản như đen, nâu gỗ để cân bằng sự hài hòa cho kiến trúc. Không nhũng thế, hệ thống đèn chiếu sáng được bố trí hợp lý khiến ngôi nhà lung linh hơn khi về đêm.

Sở hữu diện tích không quá lớn song vẻ đẹp của phong cách cổ điển biệt thự 3 tầng 2 mặt tiền được phô diễn một cách tối đa
Mặt bằng tầng 1 gồm phòng khách, bếp + phòng ăn, phòng ngủ, 2WC, sân sau. Sân trước tầng 1 khá rộng rãi và chừa một bên hông để đậu xen thuận tiện cũng như bố trí thêm cửa ra nhằm tạo sự thông thoáng cho biệt thự 3 tầng 2 mặt tiền. Từ cửa chính đi vào là phòng khách rộng rãi nối liền bếp và phòng ăn tạo ra sự liền lạc giúp tiết kiệm diện tích. Khu vực sân sau gồm có nhà vệ sinh chung tiện nghi. Kết hợp cùng khu gara để xe có cửa đi vào từ mặt tiền còn lại.
Trên tầng 2 được bố trí 2 phòng ngủ rộng rãi có nhà vệ sinh khép kín bên trong giúp cho việc nghỉ ngơi được thoải mái. Tại tầng này còn có 1 phòng sinh hoạt chung để gia đình có không gian trò chuyện vui chơi cùng nhau. Mặt bằng tầng 3 gồm phòng thờ, phòng ngủ, nhà WC. Thiết kế phòng thờ hướng cửa ra trước phù hợp với yếu tố phong thủy.

Bản vẽ mặt bằng công năng biệt thự
Nếu bạn muốn biết rõ hơn về bản vẽ thiết kế và chi tiết xây dựng những mẫu biệt thự 3 tầng 2 mặt tiền trên, hãy gọi ngay SMALLHOME theo hotline 0962.685.939 để được tư vấn nhanh nhất nhé! Chúng tôi sẽ tư vấn chi tiết từ công năng, hình dáng đến phong cách phong cách kiến trúc phù hợp nhất, tốt nhất với gia đình bạn.









