NGẮM NHÌN CÁC MẪU BIỆT THỰ 2 TẦNG MÁI THÁI TÂN CỔ ĐIỂN ĐẸP HOÀN HẢO
Sở hữu một mẫu biệt thự 2 tầng mái thái với diện mạo sang trọng, đẳng cấp chắc chắn là mơ ước của rất nhiều người. Đặc biệt, mẫu biệt thự 2 tầng mái thái tân cổ điển đang ngày càng được ưa chuộng khi có thể giúp giúp tăng địa vị của gia chủ trong xã hội. Nếu bạn quan tâm đến công trình này, hãy tham khảo ngay những phối cảnh 3D cùng mặt bằng công năng chi tiết được đông đảo chủ đầu tư săn lùng trong bài viết sau nhé.
3 yếu tố cần lưu ý để tạo nên mẫu biệt thự 2 tầng mái thái tân cổ điển đẹp
Để có thể sở hữu thiết kế biệt thự 2 tầng mái thái tân cổ điển đẹp và đẳng cấp thì chắc chắn gia chủ cần biết đến những nguyên tắc nhất định sau đây:
Thứ nhất là chọn thiết kế kiến trúc ngoại thất đồng nhất
Khi thiết kế biệt thự 2 tầng tân cổ điển đẹp cần chú ý đến cách tổ chức hình khối, màu sắc cũng như ánh sang trong thiết kế ngoại thất. Mặt tiền ngôi nhà được trang trí sao cho phù hợp và làm điểm nhấn giúp nổi bật tổng thể, tránh lạm dụng những chi tiết màu mè gây phản tác dụng.

Phong cách thiết kế nội thất biệt thự tân cổ điển đều thể hiện được sự giàu có và sang trọng.
Thứ hai là lựa chọn nội thất phù hợp cho biệt thự 2 tầng mái thái tân cổ điển
Khi thiết kế nhà thì cần phải có sự đồng nhất giữa kiến trúc bên ngoài với nội thất bên trong. Phong cách thiết kế nội thất cho biệt thự tân cổ điển sẽ đều hướng đến sự lộng lẫy, cao sang nhưng lại vừa hiện đại, sang trọng.

Thứ ba là xét về thiết kế sân vườn cùng các hạng mục khác cho biệt thự 2 tầng
Những biệt thự tân cổ điển không thể thiếu được không gian sân vườn, giúp mang đến không gian xanh mát cho cả công trình. Tùy vào khoảng không gian quanh nhà rộng hay hẹp mà kiến trúc sư sẽ lên ý tưởng quy hoạch không gian sân vườn phù hợp để tạo cảnh quan và góp phần điều hòa vi khí hậu cho căn biệt thự.

Vẻ đẹp của khoảng sân vườn lộng lẫy của biệt thự 2 tầng
Top thiết kế biệt thự 2 tầng mái thái tân cổ điển đẹp cuốn hút
Mẫu biệt thự 2 tầng mái thái tân cổ điển 2 mặt tiền
Ấn tượng đầu tiên của mẫu thiết kế biệt thự chính là sự uy nghi, cao sang. Điểm này được tạo nên từ những khối hình chắc khỏe, hoa văn nhẹ nhàng cuốn hút. Mái thái được thiết kế xếp lớp, mang tới vẻ đồ sộ lại đan xen một chút truyền thống. Bên cạnh đó, cách phối màu cho phần mặt tiền cũng vô cùng hài hòa và cân đối. Tone màu trắng chủ đạo, phối thêm các mảng màu nâu đất vào chân trụ và chóp mái giúp ngôi nhà trở nên nổi bật hơn. Hệ cửa được làm bằng gỗ mang đến sự sang trọng cho ngoại thất. Cửa gỗ kết hợp kính cường lực vừa đảm bảo sự chắc chắn, kín đáo, vừa giúp căn nhà lấy ánh sáng tự nhiên. Lan can kính bằng kính cường lực thay vì sử dụng lan can sắt nhằm tạo độ thoáng cho phần mặt tiền.

Trước nhà, kiến trúc sư bố trí thêm cây xanh xung quanh với, bồn hoa 2 bên sảnh chính. Nhằm tạo sự gần gũi cho không gian sống.
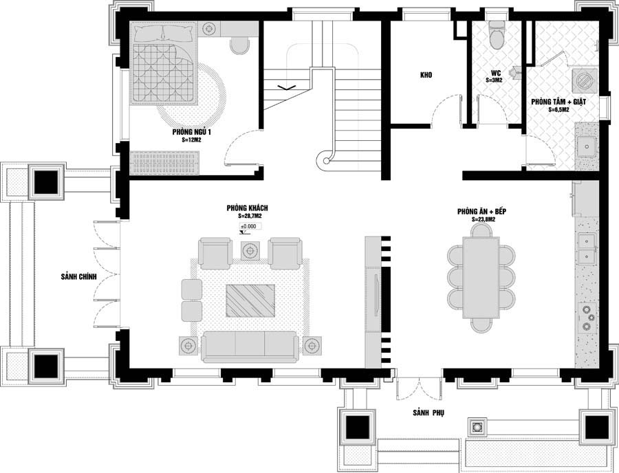
Tầng 1 mẫu biệt thự 2 tầng mái thái tân cổ điển gồm có phòng khách, phòng thờ, phòng ngủ, phòng wc chung. Phòng bếp ăn được thiết kế riêng nằm ngoài công trình. Từ cửa chính đi vào là phòng khách, bên tay phải là phòng thờ quay hướng hợp phong thủy. Phòng thờ được đặt ở tầng 1 để gia đình tiện nhang đèn. Cầu thang nằm giữa hướng thẳng ra sảnh phụ. Cuối cùng là phòng ngủ cho ông bà, phòng tắm và phòng vệ sinh chung.

Mặt bằng tầng 1
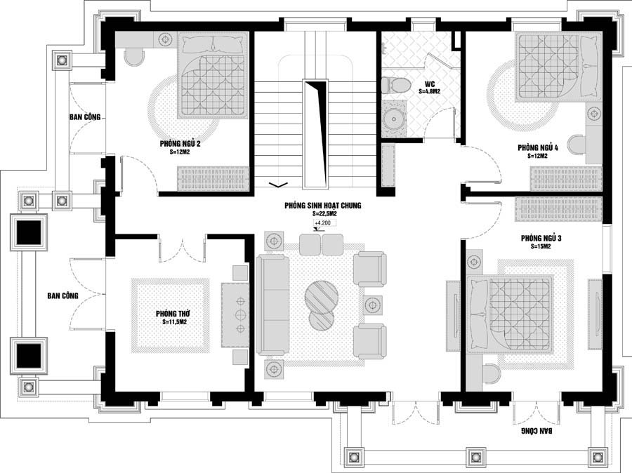
Tầng 2 là không gian nghỉ ngơi chính với 3 phòng ngủ, 1 phòng sinh hoạt chung và 1 wc chung. Từ lối cầu thang đi lên là phòng sinh hoạt chung rộng rãi có view hướng ra ban công. 1 phòng ngủ lớn khép kín đặt ở cuối nhà, 2 phòng ngủ nằm 2 bên cầu thang.

Mặt bằng tầng 2
Mẫu biệt thự 2 tầng mái thái tân cổ điển bề thế sang trọng
Kiến trúc mái của mẫu biệt thự 2 tầng mái thái tân cổ điển được thi công khối hình chữ A đẹp mắt với tông màu đỏ cam nổi bật. Thiết kế mái với độ dốc thoải hợp lý, giúp cho việc chống nóng cũng như thoát nước mưa tiện lợi. Tại mặt tiền hệ thống cửa kính kết hợp cùng ban công chính phụ phân bổ đều các mặt giúp ánh sáng và gió thoáng tự nhiên có thể phân bổ đồng đều vào bên trong. Giàn tiểu cảnh xanh được thiết kế phía hông của mẫu biệt thự tân cổ điển, vừa có tác dụng trang trí, vừa giúp không gian để xe thêm phần mát mẻ.

Khoảng không gian xanh kết hợp cùng với mái ngói đỏ tươi đẹp mắt và thiết kế tường bao kiên cố, tạo nên tổng thể công trình đẹp mắt, tràn đầy sức sống.
Mặt bằng tầng 1 mẫu biệt thự 2 tầng mái thái tân cổ điển thực sự thoải mái và khoa học. Phòng khách được thiết kế tiếp giáp với sảnh chính, liên thông với phòng bếp và bàn ăn. Từ phòng khách đến phòng bếp tạo một hành lang giao thông khá thuận tiện và khoa học. Bên trong là 1 phỏng ngủ, phân chia nhau bởi hệ thống cầu thang. Phóng ngủ có nhà vệ sinh khép kín và một nhà vệ sinh chung khác được bố trí phía dưới chân cầu thang.

Mặt bằng tầng 1
Tầng 2 thiết kế 2 phòng ngủ, sử dụng chung nhà vệ sinh ngay cạnh góc chân cầu thang. Ngoài ra còn có phòng thờ hướng ban công trước để đón nhận được nhiều ánh sáng cũng như gió thoáng tự nhiên. Khoảng không gian thông tầng và khoảng cách giữa các phòng được tính toán chi tiết và tạo khoảng trống, thuận tiện cho việc di chuyển của các thành viên trong gia đình.

Mặt bằng tầng 2
Mẫu biệt thự 2 tầng mái thái tân cổ điển thanh lịch
Với mẫu biệt thự 2 tầng mái thái tân cổ điển, kiến trúc sư đã sử dụng kiến trúc mái thái đơn giản nhưng vẫn đầy lôi cuốn. Kết hợp cùng với đường phào chỉ và cột tinh tế. Hoa văn trang trí tân cổ điển đơn giản nhưng mang nét đẹp hiện đại. Ngoài ra, chất liệu đá vân mây được sử dụng ở mặt tiền rất sang trọng và đầy ấn tượng. Cổng chính vào nhà cũng được làm từ kim loại mạ vàng với hoa văn tinh xảo bắt mắt. Tại ban công tầng 2 còn bố trí ban công thoáng mát, có lam che để trồng cây tiện lợi.

Sự giao hòa giữa hiện đại và cổ điển đã tạo nên kiến trúc uy nghi cho biệt thự 2 tầng.
Mặt bằng tầng 2 biệt thự 2 tầng mái thái tân cổ điển có 3 phòng ngủ. Mặt bằng tầng 1 có gara ô tô nhỏ gọn đơn giản. Không gian tầng 1 được dùng làm phòng khách, phòng bếp cùng 1 phòng ngủ. Cầu thang được đặt ở vị trí trung tâm có tiểu cảnh trang trí.

Mặt bằng tầng 1
Mặt bằng tầng 2 là không gian cho 2 phòng ngủ cùng phòng thờ. Gia chủ bài trí phòng thờ ở vị trí đẹp nhất trong nhà, có ban công lớn hướng ra ngoài sân. Trong phong thủy, đây là vị trí tốt để gia đình thu hút được nhiều tài lộc và may mắn. Cả 2 phòng ngủ đều có nhà vệ sinh riêng khép kín. Không gian phòng ngủ trên tầng 2 cò thêm sân thượng lớn để cả gia đình nghỉ ngơi, thư giãn.

Mặt bằng tầng 2
Mẫu thiết kế biệt thự 2 tầng tân cổ điển mái xanh đẳng cấp
Không gian ngoại thất luôn luôn được gia đình quan tâm vì nó là bộ mặt của ngôi nhà cho mọi người nhìn thẳng vào, lên phần ngoại thất luôn được kiến trúc sư chăm chút rất cận thận và tỉ mỉ từng chi tiết nhỏ. Với sự kết hợp của những hoa văn ở trên cột và hàng rào tạo nên vẻ đẹp cổ kính.

Cửa chính được làm từ gỗ tư nhiên sen khẽ là những tấm kính được tao thành những hoa văn và hình dáng đẹp mắt giúp ánh sáng có thể vào trong phòng cũng như tạo thêm điểm nhấn đẹp mắt cho cửa chính. Hệ thống của sổ hình vuông được phân bố khắp tầng 1 và tầng 2 đảm bảo được ánh sáng và gió tự nhiên có thể vào trong phòng ngôi nhà.
Chi tiết công năng tầng 1 gôm: 1 phòng khách, 1 phòng bếp, 1 phòng ăn, 1 phòng ngủ, 1 nhà tắm. Tầng 2 Với ban công, 2 phòng ngủ, 1 phòng thờ, 1 phòng tắm, 1 sân phơi. Mọi thứ đều được làm theo yêu cầu của gia đình Anh Qúy ngoài ra cũng có những góp ý của kiến trúc sư cho gia đình. về không gian sử dụng và thêm bớt những chi tiết sao để tiện nghi hơn trong sinh hoạt.

Mặt bằng tầng 1

Mặt bằng tầng 2
Mẫu thiết kế biệt thự 2 tân cổ điển mái thái đỏ hoa văn phào chỉ đặc sắc
Nhìn tổng quan từ ngoài vào trong, mẫu thiết kế biệt thự 2 tầng 8x16m tân cổ điển thể hiện sự kiên cố với quy mô kiến trúc lớn. Hình khối biệt thự 2 tầng tân cổ điển 8x16m thiết kế cao ráo và thoáng, phô diễn những đường nét phào chỉ cùng với mảng khối bố cục hoàn hảo và hoàn mĩ về từng chi tiết và hoạ tiết.

Cột được thiết kế là cột vuông tạo nét khỏe khoắn kiên cố cho ngôi nhà, các đường nét phào chỉ rất đồng nhất, cửa chính và các cửa sổ được sử dụng chất liệu gỗ tự nhiên đan xen kính nhìn vào đã thấy sự sang trọng và đẳng cấp, các cột trụ được sơn giả đá kèm các loại đèn mang phong cách cổ điển thu hút nhiều ánh nhìn.

Mặt bằng tầng 1 mẫu biệt thự 2 tầng 8x16m tân cổ điển
Sảnh chính được bố trí khá thông thoáng, phòng khách được thiết kế rộng rãi, phòng ngủ tầng 1 được bố trí gần cầu thang tiện lợi cho việc sự dụng, phòng ăn và nhà bếp được tách riêng biệt , nhà vệ sinh được sắp xếp bên hông cầu thang.

Mặt bằng tầng 2 mẫu biệt thự 2 tầng 8x16m tân cổ điển
Thiết kế biệt thự 2 tầng chữ L mái thái đẹp không tì vết

Mặt tiền chính là điểm nhấn với một gam màu trắng tinh tế, hiện đại. Tạo nên một sự sáng sủa, sạch sẽ và sang trọng cho không gian ngoại thất. Ngoài ra vì muốn tránh sự nhàm chán các kiến trúc sư đã lựa chọn thêm một gam màu xanh, của hệ thống gạch ốp chân tường. Vừa để gia tăng thẩm mỹ lại giúp bảo vệ cho phần chân tường cũng như giữ sạch sẽ và dễ dàng cho việc lau chùi của gia chủ hơn.

Biệt thự mái thái 2 tầng tân cổ điển chinh phục mọi chủ đầu tư
Sở hữu lô đất vườn rộng lớn hơn 800m2, chủ đầu tư ở Hà Nội đã hợp tác với chúng tôi để thiết kế ngôi nhà 2 tầng mặt tiền 17m diện tích 90m2 để xây dựng ở quê Hà Nội. Khác hẳn với những mẫu nhà vườn đơn giản hiện đại, mẫu thiết kế biệt thự 2 tầng đẹp kích thước 17x12m của Anh Vũ mang đậm chất tân cổ điển Châu Âu sang trọng và đầy tính nghệ thuật, thể hiện vẻ đẹp mềm mại, duyên dáng và thanh lịch.

Diện tích ngôi nhà chỉ có khoảng 90m2 (tính cả sảnh) nhưng với hình dáng kiểu nhà ngang có kích thước mặt tiền rộng mở và sự tinh tế, cầu kỳ của kiến trúc tân cổ điển, chúng tôi có thể nhìn thấy sự bề thế và diễm lệ của công trình nhà 2 tầng mặt tiền 17m, sâu 7m của chủ đầu tư ở Hà Nội. Không khó để đánh giá sự nổi bật và hoàn hảo trong đặc điểm kiến trúc của ngôi nhà biệt thự mini 2 tầng này nhưng cụ thể về những thông số, chi phí xây dựng cần tìm hiểu rõ hơn.
| 2 tầng |
| Anh Vũ |
| Hà Nội |
| 17m |
| 12m |
| 90m2 |
| Kiến trúc sư Smallhome |
| 2020 |
| Khoảng 1.6 tỷ đồng |
|
- Diện tích: 90m2/sàn - Thông số công năng: +) Tầng 1: Sảnh chính 4m2, phòng khách + thờ 22m2, sảnh tầng 4m2, phòng bếp + ăn 18m2, phòng ngủ 1 17m2, wc1 5m2 +) Tầng 2: Ban công 3m2, phòng sinh hoạt chung 22m2, sảnh tầng 4m2, phòng ngủ 2 17m2, phòng ngủ 3 17m2, wc2 5m2 |
Trên đây là những chia sẻ của chúng tôi về những mẫu biệt thự 2 tầng mái thái tân cổ điển đẹp nhất cùng những lưu ý khi thiết kế xây dựng. Nếu có nhu cầu sở hữu biệt thự đẹp, sang trọng, đẳng cấp này, hãy liên hệ ngay với SMALLHOME theo hotline / zalo : 0962.685.939 để được tư vấn cụ thể và chi tiết nhất!









