Ưu nhược điểm đi đường dây điện nổi và âm tường
Khi xây dựng nhà ở dân dụng chúng ta cần phải có sơ đồ đi dây điện trong nhà để lắp đặt điện nước. Hơn nữa, việc sử dụng, tính toán, lựa chọn mạng lưới điện khiến cho nhiều người đau đầu. Hiện nay thi công điện âm trần đang được nhiều gia đình sử dụng để hoàn thiện khi xây dựng nhà . Vậy ưu nhược điểm của cách đi dây nổi và âm trần là gì . Khi nào nên đi dây nổi khi nào nên đi âm trần – tường

Đặc điểm đi dây điện nổi :
Đây là hình thức bọc dây điện trong các ống nhựa tròn hoặc dẹt và ốp lên bề mặt tường, trần nhà. Từ đó đường dây được dẫn từ mạng điện bên ngoài vào trong nhà và phân chia tới các phòng. Đường dây nổi có thể lắp đặt sau khi ngôi nhà được xây dựng hoàn tất.

Ưu điểm :
- Chi phí lắp đặt không quá lớn
- Tiện lợi cho sửa chữa điện, khắc phục sự cố
- Dễ dàng thay đổi (loại bỏ, thêm, bớt) đường dây để phù hợp với nhu cầu gia đình.
- Không cần thiết kế sơ đồ đường dây trước khi xây dựng
Nhược điểm :
- Tính thẩm mĩ không cao
- Bố trí không hợp lý sẽ rối loạn và ảnh hưởng đến không gian sử dụng
- Lại sử dụng các đường ống dẫn hoăc dán dây trực tiếp và chôn xuống đất hoặc trong tường nhà. Hệ thống dây điện đi theo các đường ống đó tới các khu vực khác nhau. Hệ thống điện được lắp đặt ngay từ lúc bắt đầu xây dựng ngôi nhà, ngôi nhà được thi công đến đâu thì các ống dẫn đường dây được lắp đặt ngay sau đó.
Đặc điểm đi dây điện âm tường.
Đi dây điện âm tường là sử dụng các đường ống dẫn dây đường chôn chìm xuống mặt sàn hoặc trong tường. Với cách đi dây này thì cần phải có sơ đồ đi dây điện trong nhà trước khi khởi công xây dựng. Và dây thường được lắp đặt ngay sau khi xây dựng xong từng cấu trúc của ngôi nhà. Việc thiết kế sơ đồ đi dây của từng công trình là khác nhau nên việc thiết kế sơ đồ phụ thuộc nhiều vào cách bài trí và nhu cầu của chủ công trình.

Ưu điểm :
- Công trình mang tính thẩm mỹ cao
- Tiết kiệm không gian nhà ở
- Tránh được các yếu tố bên ngoài dẫn tới việc độ bền của mạng lưới điện tăng lên
Nhược điểm :
- Chi phí lắp đặt cao
- Khi xảy ra sự cố , việc sửa chữa bảo trì, nâng cấp diễn ra khá phức tạp
- Cần phải có sơ đồ thiết kế mạng lưới dây điện trước khi khởi công xây dựng
- Cần chọn lọc vật liệu xây dựng khá kỹ càng vì thường mạng lưới điện âm tường sẽ cần độ bền tương đương với công trình xây dựng.
Hướng dẫn cách đi dây điện âm trần – âm tường
Để thực hiện công việc đi dây điện âm trần – âm tường sao cho an toàn và quản lý dễ dàng. Bạn nên thực hiện chính xác từ các bước nhỏ. Hơn nữa việc đi dây điện âm tường còn ảnh hưởng đến tính thẩm mỹ cho ngôi nhà. Vậy nên bạn phải sắp xếp sao cho đường đi dây điện được đẹp, an toàn mà vẫn giữ được tính thẩm mỹ.

1. Xác định vị trí cụ thể để đặt thiết bị
Các thiết bị điện trong sinh hoạt như bóng đèn, ổ cắm điện, tivi, tủ lạnh, điều hòa,.. cần được hình dung trước vị trí lắp đặt. Để có thể xác định được đường đi của mạch điện đến vị trí đó như thế nào.

Điều này sẽ giúp cho việc bố trí các ổ cắm điện âm tường rõ ràng. Để tránh những rủi ro, trường hợp xấu nhất xảy ra các chuyên gia khuyên bạn nên tuân thủ theo nguyên tắc vàng là: “Thiết kế trên cao”. Bởi ở các khu vực thường xuyên phải hứng chịu bão lũ, một câu dao tổng được lắp đặt cao hơn với mực nước cao nhất có thể tới. Ngoài ra, tất cả các mối nối dây điện cũng cần nối ở trên cao để tránh bị ngập lụt hoặc ẩm nồm.
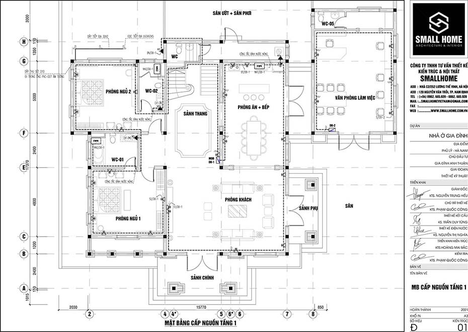
2. Lên sơ đồ đi dây điện âm tường – âm trần
Sau khi xác định được các vị trí sẽ lắp đặt các thiết bị điện. Cần phải lên sơ đồ đi dây điện âm tường – âm trần thật chi tiết của công trình. Để việc đi dây được dễ dàng và chuẩn.

Bản sơ đồ này nên được lưu lại để thuận tiện cho việc thi công cũng như thuận lợi cho việc sửa chữa sau này khi xảy ra sự cố trục trặc hư hỏng.
3. Tính toán, lựa chọn loại ống luồn dây điện – dây dẫn điện thích hợp
Tùy thuộc vào nhu cầu và đặc điểm thực tế của công trình mà lựa chọn loại ống và kích cỡ ống thép luồn dây điện cho phù hợp. Để làm sao tối ưu hóa công năng của ống thép luồn dây và tiết kiệm chi phí bỏ ra.
Bạn nên lựa chọn chất liệu, kích thước loại dây dẫn điện chất lượng & phù hợp với mạng điện của công trình.
Các loại dây đi âm tường và âm trong sàn gồm những loại dây điện nào?
Thông thường sẽ có các loại dây như sau:
- Dây điện các loại
- Dây cáp mạng ADSL + mạng nội bộ
- Dây điện thoại
- Dây cáp tivi
- Tùy theo số lượng đèn và máy móc cũng như thiết bị bạn cần sử dụng để tính toán số lượng cũng như đưa ra quy cách dây cho phù hợp và an toàn.

4. Quy trình cách đấu nối dây điện âm tường – âm trần
Đào rãnh tường
Dùng phấn để định vị sơ đồ đường đi của dây điện đã được xác định ở khâu thiết kế. Ở bước này cần thực hiện chính xác để đảm bảo hệ thống đường dây được đi hợp lý trong công trình và đảm bảo tính thẩm mỹ.

Cắt tường
Dùng máy cắt tường để cắt theo các đường vẽ định vị ở trên. Sau đó dùng máy khoan, máy đục để đục tường theo đường cắt có sẵn. Ở bước này, độ rộng – hẹp; nông – sâu của rãnh cắt phụ thuộc vào kích cỡ ống thép luồn dây điện được lựa chọn.
Đi ống luồn dây điện
Để chọn được loại đường ống phù hợp, ta căn cứ vào nhu cầu về chất lượng và kinh phí bỏ ra. Dây điện âm tường gồm có dây điện các loại, dây cáp điện thoại, ti vi, dây cáp mạng…Các ống dây được đưa vào rãnh đã đục sẵn và được cố định bằng dây kẽm hoặc kẹp giữ ống.

Luồn dây điện âm tường
Có thể thực hiện việc luồn dây điện vào ống thép trước hoặc sau khi hoàn thiện. Tuy nhiên, nên luồn dây vào trước để tránh trường hợp dây điện gặp vật cản không luồn được phải đục ra làm lại rất mất thời gian và không thẩm mỹ.

Hoàn thiện thi công
Sau khi đã lắp đặt hoàn thiện đường ống và luồn dây điện vào trong. Dùng hồ trám lại các vết rãnh đã đục trong lúc thi công để đảm bảo đường ống luồn dây điện được cố định chắc chắn và thẩm mỹ.

10 kỹ thuật đi dây điện âm tường – âm trần của chuyên gia
Đi dây điện âm tường sẽ tránh được nhiều tai nạn về điện và an toàn với trẻ nhỏ, đảm bảo tính thẩm mỹ cho ngôi nhà. Tuy nhiên nếu bạn làm không đúng kỹ thuật sẽ gây rò điện, thậm chí gây cháy chập điện rất nguy hiểm đến tính mạng. Theo các chuyên gia trong ngành sửa chữa điện thì bạn nên:
1. Tính toán số lượng và quy cách dây cho phù hợp
Tùy theo số lượng đèn và máy móc cũng như thiết bị bạn cần sử dụng để tính toán số lượng cũng như đưa ra quy cách dây cho phù hợp và an toàn.
Trục dây chính từ đồng hồ đi lên hết các tầng theo kiểu xương sống sẽ có tiết diện cáp từ 6mm → 11mm (tuỳ thuộc vào tổng công suất sử dụng các thiết bị) đến từng tầng có CB ngắt tầng. Từ CB ngắt tầng chia ra các phòng và mỗi phòng lại có CB ngắt phòng riêng.
Quy cách dây nối từ CB tầng cho các CB phòng phải từ cáp 4mm, dây cấp cho bóng đèn là dây 1,5mm , dây cấp cho ổ cắm là 2.5mm. Ngoài ra còn có dây te hay dây mát (dây khử điện rò, chống giật) đi vào từng ổ cắm và nối với cọc đồng chôn trong đất (cọc te) tiết diện dây này từ 1.5mm → 4mm.
2. Nên chia thành nhiều nhánh để dễ thay lắp & sửa chữa
Đường điện đi bên trong tường nên chia thành nhiều nhánh khác nhau để dễ thao tác, ngắt điện cục bộ từng khi vực, như vậy bạn có thể dễ dàng thay lắp hay sửa chữa khi cần thiết.
3. Chọn ống gen dây điện đảm bảo
Nên luồn dây điện trong các ống nhựa, các ống này phải đảm bảo độ cứng, có khả năng chịu lực và thấm nước tốt, như vậy sẽ không dẫn đến tình trạng chập điện hay ảnh hưởng đến chất lượng của dây điện trong quá trình sử dụng. Và bạn nên nhớ mật độ chiếm chỗ của dây so với tiết diện ống dưới 75%.
4. Đi dây điện ở nơi khô ráo
Khi bạn đi dây điện trong tường, bạn nên chọn những nơi khô ráo. Tránh xác các nguồn nhiệt lớn hơn 70 độ C để đảm bảo an toàn khi sử dụng.
5. Chọn ống gen đàn hồi với trần thạch cao, trần la phông
Với những không gian như trần la phông, trần thạch cao, tường gạch ống. Bạn nên chọn ống luồn đàn hồi với hệ thống dẫn điện lắp đặt, như vậy sẽ an toàn hơn.
6. Đồng nhất cách chọn màu dây điện
Bạn nên dùng màu giống nhau đối với các dây nóng của cùng một đường điện phân phối, khác nhau với hai đường điện phân phối (dây nóng của đường phân phối 1 có màu đỏ, dây nóng đường phân phối 2 có màu vàng).
7. Không đặt dây điện ở vị trí có thể tác động
Tuyệt đối không được đặt dây điện trong tường ở những vị trí có thể đóng đinh hay khoan lỗ. Như vậy sẽ ảnh hưởng đến toàn bộ hệ thống điện của nhà bạn cũng như gây nguy hiểm khi sử dụng. Đặc biệt không được có mối nối khi đi dây điện âm trần – âm tường.
8. Không nên đặt dây điện sâu quá 1/3 độ dày của tường
Không nên đặt dây điện sâu quá 1/3 độ dày của tường, như vậy sẽ tiện lợi hơn khi cần sửa chữa nếu gặp sự cố. Tuy nhiên nếu đặt nông quá sẽ ảnh hưởng đến thẩm mỹ của tường cũng như toàn bộ không gian ngôi nhà của bạn.
9. Không sử dụng chung với đường điện thoại, cáp
Không sử dụng chung đường điện thoại, cáp truyền hình trong thiết kế phòng khách. Vì đây là hai đường điện riêng, cần thay đổi cũng như sửa chữa thường xuyên, tốt nhất bạn nên để ngoài tường.
10. Không đi dây điện âm trần ở nơi có độ lún không ổn định
Đi âm trong nền của tầng trệt, mà không đảm bảo cố định với tường khi bị lún.
Trên đây là tổng hợp thông tin chi tiết cách đi dây điện âm trần – âm tường hy vọng kiến thức này sẽ có ích cho bạn trong việc xây dựng nhà cửa. Nếu có nhu cầu về thiết kế kiến trúc nội thất hoặc cần hỗ trợ về thi công xây dựng có thể liên hệ với chúng tôi qua hotline : 0962.685.939









