HƯỚNG DẪN CÁCH ĐỌC BẢN VẼ XÂY DỰNG NHÀ Ở ĐƠN GIẢN, DỄ HIỂU NHẤT

Biết đọc bản vẽ xây dựng là một trong những yêu cầu cần thiết và tối thiểu của bất kỳ ai đó khi bắt tay vào thực hiện, thi công công trình. Biết cách đọc bản vẽ xây dựng giúp kiến trúc sư hiểu rõ hơn về sản phẩm của mình, chủ nhà có thể trao đổi cùng kiến trúc sư về các vấn đề liên quan. Chính vì vậy, trong bài viết dưới đây SMALLHOME sẽ hướng dẫn các bạn các bước cơ bản nhất để biết cách đọc một bản vẽ xây dựng cho nhà ở.
Khái niệm bản vẽ xây dựng
Nếu bạn không phải là người trong ngành, chắc chắn bạn sẽ thắc mắc không biết bản vẽ xây dựng là gì. Bản vẽ xây dựng là một tổ hợp mặt bằng, mặt bên, mặt đứng và mặt cắt của các vật thể trong công trình. Hay nói cách khác theo chuyên ngành đó là bản vẽ mà người thiết kế minh họa lại bằng các ký hiệu bản vẽ theo tiêu chuẩn xây dựng Việt Nam.

Hình ảnh : Nắm được ký hiệu cơ bản khi đọc bản vẽ xây dựng
Mục đích của bản vẽ xây dựng đó là cung cấp hình ảnh để bắt tay vào thực hiện thi công, tránh sai sót, sự mô hồ hay nhầm lẫn. Bản vẽ xây dựng có thể được chuẩn bị bằng tay, nhưng thông thường hơn là chúng phải được chuẩn bị bằng phần mềm thiết kế hỗ trợ máy tính (CAD).
Hiện nay bản vẽ xây dựng có nhiều loại khác nhau như :
Bản vẽ phác thảo: Bản vẽ phác thảo hay còn gọi là bản vẽ khái niệm. Đây là kiểu bản vẽ tự do, sử dụng nhanh chóng và đơn giản để khám phá những ý tưởng ban đầu cho thiết kế. Mục đích chỉ đơn thuần là điều tra và truyền đạt các nguyên tắc thiết kế cũng như khái niệm thẩm mỹ.
Bản vẽ thi công là bản vẽ làm việc hoặc bản vẽ xây dựng cung cấp thông tin về kích thước, đồ họa có thể sử dụng cho công trình. Sau đó, chúng có thể được sử dụng để phát triển và truyền đạt tóm tắt, điều tra các trang web tiềm năng và đánh giá các tùy chọn, phát triển ý tưởng đã được phê duyệt thành một thiết kế mạch lạc và phối hợp.
Bản vẽ kỹ thuật: Một bản vẽ kỹ thuật là một loại bản vẽ kỹ thuật dùng để xác định các yêu cầu về kỹ thuật sản phẩm hoặc các thành phần. Thông thường, mục đích của bản vẽ kỹ thuật là nắm bắt rõ ràng và chính xác tất cả các đặc điểm hình học của sản phẩm hoặc thành phần để nhà sản xuất hoặc kỹ sư có thể sản xuất vật phẩm cần thiết.
Vì sao nên có bản vẽ xây dựng?
Bạn đã bao giờ thắc mắc tại sao nên có bản vẽ xây dựng trước khi bắt tay vào thực hiện chưa. Thực tế cho thấy, có bản vẽ xây dựng sẽ giúp ích rất nhiều cho bạn trong quá trình thi công đó.

Tiết kiệm chi phí: Chi phí là một trong những vấn đề được nhiều khách hàng quan tâm khi bắt tay vào xây nhà hay thực hiện một công trình nào đó. Vì vậy có bản vẽ xây dựng sẽ giúp bạn ước chừng được chi phí cần bỏ ra, tính toán được số lượng vật liệu cần thiết cũng như toàn bộ chi phí chi tiết trong ngôi nhà. Nếu khoản này có phát sinh thì cũng không đáng kể, vẫn trong tầm kiểm soát của bạn. Vì vậy đó là lý do đầu tiên bạn nên có bản vẽ xây dựng trước khi thực hiện.
Ước lượng khối lượng vật tư: Một công trình đó cần những vật tư gì, khối lượng như thế nào. Bạn có thể dựa vào bản vẽ xây dựng để chuẩn bị vật tư cần thiết, đảm bảo việc thi công được diễn ra được thuận lợi và đúng giai đoạn. Đồng thời có được khối lượng vật tư này, bạn sẽ tính toán được phần nào chi phí cho ngôi nhà hay công trình của bạn.
Đảm bảo tính thẩm mỹ: Dựa vào bản vẽ xây dựng, chủ nhà sẽ phần nào hình dung được sản phẩm sau khi hoàn thiện như thế nào. Sản phẩm đó có đảm bảo tính thẩm mỹ, công năng khi sử dụng hay không. Từ đó chủ đầu tư có thể thay đổi hay sửa theo mong muốn dựa trên góp ý của kiến trúc sư để không gian sống cũng như công trình được hoàn thiện nhất.
Các quy định, ký hiệu thường gặp trong khi đọc bản vẽ xây dựng

Quy định về khung bản vẽ và khung tên trong bản vẽ thiết kế
Trong bản vẽ xây dựng, khung bảng vẽ là hình chữ nhật dùng để giới hạn phần giấy và thông tin trên đó. Khung bên ngoài là nét liền đậm, cách mép từ giấy sau khi xén 10mm đối với khổ A0 và A1, hoặc 5mm đối với khổ giấy A2, A3 và A4. Đối với hồ sơ của SMALLHOME, các bản vẽ sẽ được đóng thành tập, cạnh trái của khung bản vẽ cách mép tờ giấy 25mm để đóng gáy.

Hình ảnh : Khung bản vẽ sử dụng tại SMALLHOME
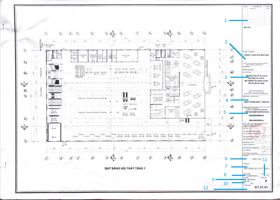
Khung tên bản vẽ kỹ thuật có thể được đặt theo chiều dọc hoặc chiều ngang phụ thuộc vào cách trình bày của người thiết kế. Đa số khung tên được đặt cạnh dưới và góc phải của bản vẽ. Trong đó khung tên của mỗi bản vẽ phải được đặt sao cho các chữ ghi trên khung tên có dấu hướng lên trên hay hướng sang trái đối với bản vẽ để thuận tiện cho việc tìm kiếm bản vẽ và giữ cho bản vẽ không bị thất lạc.
Bản vẽ thiết kế SMALLHOME được đặt trên khổ giấy A3 và khung tên được bố trí bên phải của trang giấy nằm ngang. Nội dung ở khung tên gồm các thông tin sau:
| Số thứ tự | Nội dung cần ghi |
| 1 | Phần ghi chú gồm: Lần nộp, nội dung điều chỉnh và ngày nộp. |
| 2 | Tên chủ đầu tư và địa chỉ, chức danh nếu có |
| 3 | Tên dự án và địa chỉ của dự án |
| 4 | Tên công trình |
| 5 | Tên đơn vị tư vấn thiết kế, địa chỉ, chức danh, ký, ghi rõ họ tên, đóng dấu công ty |
| 6 | Hạng mục thực hiện: Kiến trúc, kết cấu hay điện nước |
| 7 | Tên bản vẽ |
| 8 | Số hợp đồng |
| 9 | Giai đoạn thực hiện |
| 10 | Năm hoàn thành |
| 11 | Tỉ lệ bản vẽ |
| 12 | Ký hiệu bản vẽ |
Tỷ lệ trong cách đọc bản vẽ thiết kế
Tỷ lệ của bản vẽ là tỷ số giữa kích thước đo trên hình biểu diễn và kích thước tương ứng đo trên vật thể ngoài thực tế. Tùy theo khổ bản vẽ, kích thước và mức độ phức tạp của đối tượng cần biểu diễn mà lựa chọn một trong các tỷ lệ: 1:5, 1:10, 1:50, 1:100, 1:200, 1:500, 1:1000 hay 1:2000. Vậy tỉ lệ này tương ứng với các thông số như thế nào trong bản thiết kế.

Hình ảnh : Tỷ lệ trong cách đọc bản vẽ thiết kế
- Tỉ lệ 1:50.000 đến 1:2000 là phạm vi tỉ lệ bản vẽ nhỏ, được thu nhỏ lại rất nhiều so với thực tế. Tỉ lệ này thường áp dụng với những kích thước lớn như bản vẽ bản đồ, bản đồ đô thị, vùng hay thậm chí là các thị trấn nhỏ. Loại tỉ lệ này cũng được sử dụng trong các quy hoạch đô thị, quy hoạch vùng, chẳng hạn như quy hoạch tổng thể hay các khảo sát quang trắc trên không.
- Tỉ lệ 1:1000 đến 1:500 này thường thấy khi cần tổng quan về công trình và vị trí của nó trong mạng lưới đô thị như khu phố. Đặc điểm của tỉ lệ này là làm nổi bật các cơ sở hạ tầng và các thành phần khác. Tỉ lệ này hữu ích cho các cuộc khảo sát về chiều cao công trình cũng như khu đất sử dụng.
- Tỉ lệ 1:250 đến 1:200 thường tập trung cho mặt bằng, mặt cắt và mặt đứng trong các tòa nhà lớn. Thậm chí có thể xem xét đến các thành phần không gian và bố cục.
- Tỉ lệ từ 1: 150 đến 1: 100 cũng có thể sử dụng cho các phương pháp tiếp cận đầu tiên của các tác phẩm và các công trình nhỏ. Trong trường hợp các tòa nhà lớn hơn, kiến trúc sư sẽ dự tính các bản vẽ và mô hình chi tiết hơn, bao gồm các yếu tố cấu trúc và bố cục được xác định rõ hơn.
- Tỉ lệ 1:75 đến 1:25 với kết cấu, bố cục và sự liên hệ giữa các tầng hoặc cũng có thể phóng to các phòng để chi tiết hơn các thành phần cụ thể, chẳng hạn như hệ thống ống nước, điện hoặc kết cấu.
- Tỷ lệ 1:20 và 1:10 là đại diện cho đồ nội thất, trình bày hoạt động của các thành phần cũng như cấu trúc, thể hiện chi tiết bản vẽ.
- Tỉ lệ 1:5 đến 1:1 đòi hỏi việc truyền đạt các chi tiết kỹ thuật với độ chính xác cao hơn.
Tùy vào quy mô công trình cũng như yêu cầu thực tế khi thiết kế để chọn tỉ lệ phù hợp. Tỉ lệ thường dùng nhất là 1:100 cho các hồ sơ thiết kế nhà, biệt thự hay nhà phố hiện đại.
Ký hiệu thường gặp trong khi đọc bản vẽ xây dựng
Quy định về các nét vẽ trong thiết kế
Trong bản vẽ xây dựng sẽ có quy định về nét vẽ, dựa vào đó kiến trúc sư cũng như người thực hiện thi công có thể hiểu được chi tiết thông tin liên quan đến bản vẽ.

Nếu trong bản vẽ có nhiều nét vẽ trùng nhau, kiến trúc sư sẽ ưu tiên thứ tự sau:
- Nét liền đậm (đường bao thấy, cạnh thấy)
- Nét đứt (đường bao khuất, cạnh khuất)
- Nét chấm gạch mảnh (giới hạn mặt phẳng cắt có hai nét đậm ở hai đầu)
- Nét chấm gạch mảnh (đường tâm, trục đối xứng)
- Nét liền mảnh (đường kích thước)
Quy định ghi kích thước trong khi đọc bản vẽ
Trong bản vẽ thiết kế xây dựng, kích thước sẽ có 3 thành phần đó là đường dóng, đường kích thước và con số kích thước. Các kiến trúc sư khi biểu diễn một kích thước trên bản vẽ cần thực hiện theo thứ tự đó là: vẽ đường dóng, vẽ được kích thước sau với đến ghi con số kích thước.

Trong phần kích thước này cũng có những quy định chung đó là:
- Kích thước ghi trên bản vẽ là kích thước thật của vật thể, không phụ thuộc vào tỷ lệ của hình biểu diễn
- Đơn vị đo kích thước dài là mm, không ghi đơn vị sau con số kích thước
- Đơn vị đo cao trình là m, không ghi đơn vị sau con số kích thước
- Đơn vị đo kích thước góc là độ, phút, giây và phải ghi đơn vị sau con số kích thước
Các ký hiệu thường gặp trong bản vẽ xây dựng
Cửa sổ, lỗ trống trong bản vẽ cũng có những ký hiệu riêng. Dưới đây là những ký hiệu mà bạn thường gặp trong quá trình đọc bản vẽ xây dựng, bạn nên nắm được.



Ký hiệu cửa đi: Những ký hiệu này biểu thị các loại cửa đi như cửa đơn, cửa kép… và cách mở cánh cửa. Những ký hiệu này sẽ không liên quan đến vật liệu cũng như cấu tạo của cánh cửa hay kỹ thuật ghép, lắp dựng vào tường.


Ký hiệu cầu thang và đường dốc: Các ký hiệu này thể hiện cho tất cả các loại cầu thang và đường dốc thoải, không liên quan đến vật liệu xây dựng. Nếu bản vẽ có tỉ lệ 1:100 hoặc lớn hơn, ký hiệu cầu thang phải thể hiện chi tiết cả vật liệu cũng như cấu tạo theo đúng tỉ lệ tính toán của kết cấu.

Ký hiệu vách ngăn: Ký hiệu này được thể hiện bằng nét liền đậm và kèm theo đó là chú thích về vật liệu. Trong trường hợp nếu bản vẽ tỉ lệ 1:50 và lớn hơn, ký hiệu vách ngăn sẽ cần thể hiện chi tiết vật liệu cũng như cấu tạo theo tỉ lệ tính toán của kết cấu.

Ký hiệu các bộ phận cần sửa: Bộ phận nào cần sửa, bạn có thể sử dụng những ký hiệu này và gắn thêm chú thích giải thích các thông số cần thiết nhất.

Ký hiệu vật liệu xây dựng: Những ký hiệu vật liệu xây dựng này giúp bạn nắm được vật liệu nào sử dụng trong công trình đang thi công, từ đó bạn có thể giám sát được phần nào tiến độ công việc đang thực hiện.

Ký hiệu bản vẽ thiết kế nội thất: Đây là những ký hiệu đồ dùng nội thất cơ bản sử dụng trong nhà. Ngoài ra còn rất nhiều đồ dùng nội thất khác được sử dụng, bạn có thể dựa trên hình dáng của đồ vật để biết được đồ đó là gì. Các kí hiệu này được vẽ trên nguyên lí mặt bằng tức là hình chiếu từ phía trên nhìn xuống với mặt cắt cao độ 900mm.



Cách đọc bản vẽ xây dựng theo trình tự, đơn giản và dễ hiểu

Chắc chắn nhiều khách hàng sẽ băn khoăn không biết đọc như thế nào với bản vẽ xây dựng, làm thế nào để hiểu cũng như tránh được sai sót trong quá trình thi công. Kiến trúc sư SMALLHOME sẽ hướng dẫn các bạn trình tự cách đọc bản vẽ xây dựng như sau:
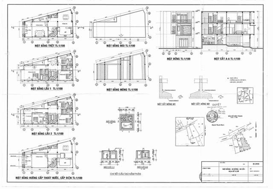
Bước 1: Khi bạn nhận được hồ sơ thiết kế hoàn chỉnh của một công trình, bạn cần đọc bản vẽ tổng mặt bằng trước. Đọc phần này để biết mối liên hệ giữa các hạng mục trong ngôi nhà với nhau cũng như không gian cảnh quan xung quanh của công trình. Cách đọc đơn giản là đọc lần lượt, đọc từ mặt bằng tầng 1, tầng 2… rồi xem đến chức năng bên trong của ngôi nhà như phòng khách, phòng ngủ, phòng bếp, phòng thờ, nhà vệ sinh, khu hành lang, cửa chính, cửa phụ.
Bước 2: Đọc bản vẽ phối cảnh để hiểu cũng như hình dung được tổng thể của ngôi nhà sau khi hoàn thiện.
Bước 3: Đọc bản vẽ mặt đứng để nắm được sơ bộ hình dáng kiến trúc bên ngoài của công trình.
Bước 4: Đọc bản vẽ mặt cắt để hiểu rõ không gian mỗi tầng trong công trình cần xây dựng.
Bước 5: Đọc bản vẽ kết cấu, chú ý đến các thông số như móng, cột, dầm, sàn, cầu thang…
Cách đọc bản vẽ mặt bằng
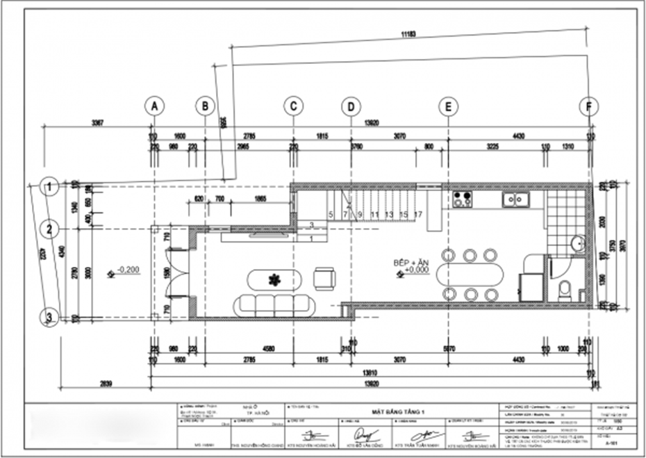
Trong hồ sơ thiết kế, bản vẽ đầu tiên là bản vẽ quy hoạch tổng mặt bằng. Mặt bằng ngôi nhà chính là hình cắt bằng của các tầng với các mặt phẳng cắt tưởng tượng nằm ngang và cách mặt sàn khoảng 1,5m. Mặt bằng của công trình thể hiện các khoảng không gian như phòng ngủ, phòng khách, phòng bếp, phòng sinh hoạt chung, phòng vệ sinh, cửa đi, hành lang, cầu thang…
Bạn cần lưu ý những điều sau về dãy kích thước khi đọc bản vẽ mặt bằng:
Dãy kích thước sát đường bao củ mặt bằng ghi kích thước các mảng tường và các lỗ cửa
Dãy thứ 2 ghi kích thước khoảng cách các trục tường, trục cột,…
Dãy ngoài cùng ghi kích thước giữa các trục tường biên theo chiều dọc hay ngang ngôi nhà

Hình ảnh : Bản vẽ mặt bằng tầng 1
Cách đọc chính xác bản vẽ thiết kế mặt bằng gồm:
- Kích thước chiều dài, chiều rộng thông thủy mỗi phòng
- Các kích thước để xác định vị trí và chiều rộng các lỗ cửa nằm trên các tường hoặc vách ngăn trong nhà, chiều rộng các cánh thang,…
- Kích thước và chiều dày các tường, vách ngăn, kích thước mặt cắt các cột
- Kích thước ghi diện tích từng phòng dùng đơn vị diện tích là m2 nhưng không ghi đơn vị sau con số kích thước và có nét gạch dưới con số chỉ diện tích
Trong bản vẽ mặt bằng này bạn sẽ thấy các ký hiệu đồ dùng nội thất như bàn, ghế sofa, tủ, giường ngủ, chậu rửa, bồn tắm… Trên mặt bằng cũng có cầu thang chỉ hướng đi lên bằng đường gấp khúc nếu đó là nhà cao tầng.
Cách đọc bản vẽ mặt đứng
Bản vẽ mặt đứng là hình cắt dùng mặt phẳng cắt song song với mặt phẳng hình chiếu đứng. Đối với các công trình kiến trúc thì mặt đứng là hình chiếu thẳng góc thể hiện hình dáng bên ngoài của ngôi nhà. Bản vẽ này thể hiện vẻ đẹp về nghệ thuật, hình dáng, tỉ lệ cân đối giữa các kích thước cũng như từng không gian của ngôi nhà.
Mặt đứng của ngôi nhà là hình dáng bên ngoài của ngôi nhà, có thể nhìn từ trước, từ sau hay từ trái hoặc từ bên phải. Để có cách đọc bản vẽ mặt đứng chính xác cần lưu ý mặt đứng hướng ra phía nhiều người qua lại.

Trong bản vẽ mặt đứng không cần ghi kích thước, nếu cần thiết kế ghi thêm tên các trục tường biên phù hợp với các trục ghi trên mặt bằng. Ví dụ mặt đứng trục A-C là hướng nhìn vào mặt tiền của ngôi nhà, mặt đứng trục 5-1 là hướng nhìn vào phía bên phải ngôi nhà, mặt đứng trục 1-5 là hướng nhìn vào phía bên trái ngôi nhà, và hướng trục C-A là hướng nhìn từ phía sau ngôi nhà. Đây là những điểm cần chú ý để có cách đọc bản vẽ xây dựng đơn giản, chính xác.
Cách đọc bản vẽ mặt cắt
Bản vẽ mặt cắt của ngôi nhà là các hình cắt thu được khi dùng một hay nhiều mặt cắt tưởng tượng thẳng đứng, song song với các mặt phẳng hình chiếu cơ bản cắt ngang qua không gian trống của ngôi nhà. Nếu mặt cắt bố trí dọc theo chiều dài thì gọi đó là hình cắt dọc, nếu bố trí theo chiều ngang ngôi nhà thì gọi là hình cắt ngang.

Mặt cắt này cho bạn biết chiều cao của các tầng, các lỗ cửa sổ và cửa ra vào, kích thước tường, cầu thang… cũng như vị trí và hình dáng chi tiết kiến trúc ngang trang trí bên trong các phòng.
Cách đọc bản vẽ xây dựng phối cảnh
Bản vẽ phối cảnh sẽ cho bạn hình ảnh giống như thực tế về công trình cần xây dựng, giúp bạn hình dung được ngôi nhà của mình sẽ như thế nào sau khi hoàn thiện.

Hình ảnh : Phối cảnh giúp bạn hình dung về ngôi nhà của mình

Hình ảnh : Phối cảnh nhiều góc khác nhau cho một công trình
Hiện nay với công nghệ hiện đại cũng như sử dụng nhiều phần mềm khác nhau, kiến trúc sư có thể tạo bản vẽ phối cảnh với màu sắc tự nhiên, giống như ngôi nhà thật của bạn.
Cách đọc bản vẽ kết cấu
Trong bản vẽ kết cấu sẽ sử dụng các nét vẽ chủ đạo như sau:
Cốt chịu lực vẽ bằng nét liền đậm (s đến 2s)
Cốt phân bố, cốt đai vẽ bằng nét liền đậm vừa (2s)
Đường bao quanh cấu kiện vẽ bằng nét liền mảnh (3s)

Con số ghi trước ký hiệu φ chỉ số lượng thanh thép. Nếu chỉ dùng một thanh thì không cần ghi
Ở dưới đoạn đường dóng nằm ngang, con số đứng sau chữ L chỉ chiều dài thanh thép kể cả đoạn uốn móc ở đầu nếu có. Con số đứng sau chữ a chỉ khoảng cách giữa hai trục thanh thép kế tiếp cùng loại.
Chỉ cần ghi đầy đủ đường kính, chiều dài…của thanh thép tại hình biểu diễn nào gặp thanh cốt thép đó lần đầu tiên. Các lần sau gặp lại, những thanh cốt thép đó chỉ cần ghi số ký hiệu mà thôi.
Khi đọc bản vẽ kết cấu, bạn cần chú ý:
Đầu tiên đó là xem bố trí cốt thép trên hình chiếu chính, từ đó căn cứ vào số hiệu thanh thép, tìm vị trí của chúng trên các mặt mắt để biết vị trí cốt thép cũng hình khai triển trong bảng kê.
Tiếp theo đó là các mặt cắt nên bố trí gần hình chiếu chính. ếu mặt cắt vẽ theo một tỉ lệ khác với tỉ lệ của hình chiếu chính thì cần ghi rõ tỷ lệ của mặt cắt đó. Thường bản vẽ kết cấu bê tông cốt thép vẽ theo tỷ lệ 1:20, 1:50, 1:100.
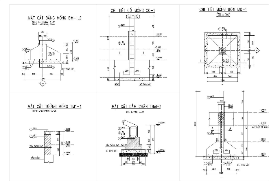
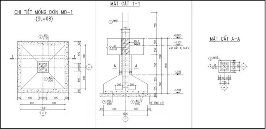
Cách đọc bản vẽ xây dựng móng trong nhà ở
Trong bản vẽ này bạn sẽ thấy được 5 chi tiết, 5 mặt cắt của các loại móng như sau:
- Mặt cắt móng móng
- Chi tiết cổ móng
- Mặt cắt tường móng
- Mặt cắt dầm chân thang
- Chi tiết móng đơn

Cách đọc bản vẽ mặt cắt móng băng
Bản vẽ mặt cắt móng băng sẽ nhìn thấy cao độ của móng là 600 trong đó 250mm là thân móng và 250 là phần vuốt móng lên, cao độ 100 là cổ móng. Chiều rộng của móng là 1200 mm.

Được bố trí với 6 thanh thép phi 20 trong đó 3 thanh thép lớp trên và 3 thanh thép lớp dưới. Ở dưới cùng sẽ là lớp thép phi 12 đan cách nhau là 200 mm. Dưới cùng của móng là lớp lót bằng bê tông mác 100 hay thông thường mọi người thường lót bằng gạch để đổ bê tông.
Bản vẽ chi tiết cổ móng

Phần cổ móng này thường có trong móng băng nên sẽ hay được thể hiện trong bản vẽ nhà nào làm móng băng, móng bè. Cổ móng thể hiện bẻ mỏ liên kết với đế móng, khoảng cách mỏ là 200mm, mỗi cổ cột sẽ có 4 thanh thép phi 20, đai cột được bẻ bằng sắt 6 khoảng cách của mỗi đai là 150mm
Bản vẽ mặt cắt tường móng

Mặt cắt tường móng này thể hiện phần xây từ móng trở lên hoặc dầm trở lên (cho móng cốc) và xây tường 220 cao tới cốt không sẽ đổ giằng bê tông chống thấm. Và thông thường xây dưới cốt không chúng ta nên xây gạch đặc để chống thấm tốt hơn. Giằng cốt không ngoài tác dụng chống thấm ra thì không còn tác dụng gì khác nhé các bạn cho nên các bạn đừng lãng phí nhiều tiền vào phần đó làm gì.
Mặt cắt dầm chân thang

Phần này thể hiện có lót bằng bê tông mác 100, xây gạch đặc đỡ và có dầm liên kết với thang bằng 4 thanh sắt phi 16, 2 trên 2 dưới và đai sắt bằng sắt 6 cách nhau 15cm. Chiều dài và số lượng của dầm chân thang được thể hiện và ghi rất rõ ràng trong bản vẽ.
Chi tiết móng đơn

Chi tiết móng đơn cũng không quá khó, thể hiện rất rõ ràng chiều rộng, chiều dài của móng, số lượng sắt cột là 4 thanh phi 18, đáy được đan bằng sắt phi 12 khoảng cách mỗi thanh là 17cm. Trong phần chi tiết dưới thì có thể hiện vị trí dầm liên kết vào móng nữa nhé.
Trên đây là các thông tin cơ bản cũng như các bước cần thiết giúp bạn biết cách đọc bản vẽ xây dựng, đặc biệt là bản vẽ nhà ở, hiểu rõ hơn về thiết kế cũng như phần nào giám sát được công trình đang ở tiến độ nào. Nếu bạn cần tư vấn về thiết kế cũng như các vấn đề liên quan đến xây dựng, bạn có thể liên hệ tới SMALLHOME qua Hotline/Zalo 0962.685.939 để được đội ngũ kiến trúc sư hỗ trợ chi tiết nhất.









