MẪU NHÀ CẤP 4 CHỮ L ĐẸP CHUẨN THEO PHONG THỦY
Đối với những gia chủ sở hữu diện tích đất chiều ngang rộng hơn chiều dài thì mẫu nhà cấp 4 chữ L đẹp tại Nam Định là sự lựa chọn hoàn hảo nhất. Tuy nhiên mẫu nhà này theo góc nhìn phong thủy thì không được tốt lắm. Nhưng bạn vẫn có thể khắc phục điều này nếu xây dựng mẫu nhà được Kiến Trúc & Nội Thất Smallhome gợi ý sau:
Thông tin công trình mẫu nhà cấp 4 chữ L đẹp tại Nam Định.

Mẫu nhà cấp 4 chữ L đẹp chuẩn theo phong thủy
- Thông tin công trình: Nhà cấp 4 chữ L 2 phòng ngủ tại Nam Định
- Chủ đầu tư: Anh Hiếu
- Diện tích: 13 x 16m
- Công năng sử dụng: Phòng khách + thờ, Phòng bếp + ăn, 2 phòng ngủ, 2 wc.
Yêu cầu thiết kế của chủ nhà khi được gặp các kiến trúc sư smallhome.

Yêu cầu thiết kế của gia chủ tại Nam Định
Anh Thái và gia đình đều yêu thích vẻ đẹp truyền thống nhưng vẫn thể hiện được sự hiện đại và trẻ trung. Chủ đầu tư mong muốn ngôi nhà mang lại cảm giác rộng và thoáng mát cho các thành viên. Sau khi lắng nghe ý kiến từ gia chủ, đội ngũ, kiến trúc sư quyết định thiết kế nhà cấp 4 chữ L 2 ngủ cho gia đình anh. Tuy nhiên vì mẫu nhà này theo phong thủy không được tốt nên chúng tôi đã cân nhắc và lựa chọn thiết kế như sau:
Ngoại thất mẫu nhà cấp 4 chữ L đẹp tại Nam Định
Nhà cấp 4 này được thiết kế theo phong cách truyền thống như phần mái thái xanh giúp ngôi nhà trở nên thời thượng. Nét hiện đại của ngôi nhà được thể hiện qua vật liệu như kính cường lực, giúp không gian bên trong tràn ngập ánh sáng tự nhiên.

Ngoại thất mẫu nhà cấp 4 chữ L đẹp
Mẫu nhà cấp 4 mái thái ngoài ưu điểm thoát nước tốt vào mùa mưa, tránh ẩm mốc gây xấu phần ngoại thất của ngôi nhà mà còn tạo được sự độc đáo. Gia chủ có thể trồng thêm cây xanh xung quanh nhà giúp thanh lọc không khí và làm mát không gian căn nhà trong mùa hè nóng bức.

Phối cảnh nhà cấp 4 chữ L tại Nam Định
Sảnh chính và sảnh phụ của ngôi nhà đều được thiết kế bậc tam cấp tạo liên kết giữa sân vườn và ngôi nhà. Giúp các thành viên trong gia đình có thể di chuyển dễ dàng hơn. Ngoài ra, hệ thống bậc này còn giúp tăng thêm vẻ đẹp bề thế cho ngôi nhà.
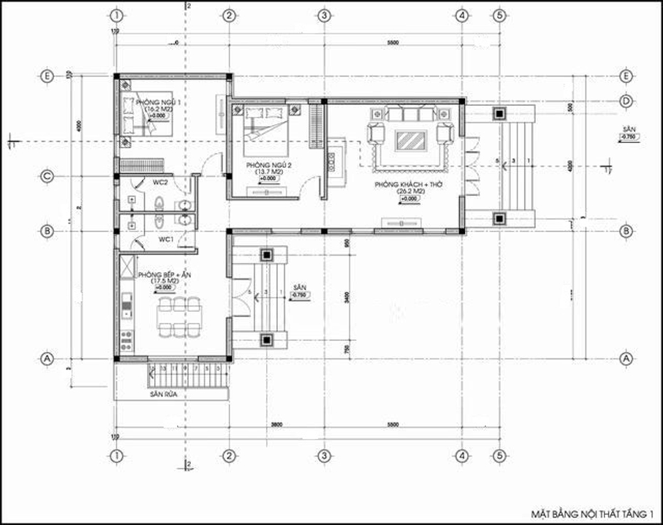
Bản vẽ mặt bằng công năng nhà cấp 4 chữ L tại Nam Định
Mặt bằng công năng gồm: Phòng khách + thờ, Phòng bếp + ăn, 2 phòng ngủ, 2 wc.

Bản vẽ mặt bằng công năng nhà cấp 4 chữ L tại Nam Định
Mẫu nhà cấp 4 chữ L đẹp được đội ngũ kiến trúc sư bố trí công năng hợp lý. Ngay từ phòng khách bước vào là không gian phòng khách rộng rãi để đón tiếp khách đến thăm nhà và là nơi các thành viên trong gia đình có thể sinh hoạt cùng nhau sau ngày dài mệt mỏi.
Phòng thờ được bố trí ngay tại không gian phòng khách. Tuy nhiên các kiến trúc sư đã sử dụng một vách gỗ ngăn cách không gian tạo nên sự trang nghiêm cho nơi thờ cúng, cũng như thể hiện lòng kính trọng của con cháu với tổ tiên.
Phòng bếp + ăn được đặt gần cửa phụ của ngôi nhà giúp lấy gió và điều hòa không khí cho căn phòng. Ngoài ra, còn có ô cửa sổ lớn kết hợp với tiểu cảnh mang không gian thiên nhiên vào trong căn bếp và giúp mùi thức ăn thoát ra ngoài tốt hơn.
Tiếp đến là 2 phòng ngủ được bố trí cuối của ngôi nhà, tất cả các phòng đều có cửa sổ lớn để đón ánh sáng cho ngôi nhà. Phòng ngủ bố mẹ được thiết kế đầy đủ công năng với nhà vệ sinh khép kín. Ngoài ra còn có 1 nhà vệ sinh chung bên ngoài tạo sự thuận tiện cho việc sinh hoạt chung của các thành viên.
Thiết kế nội thất ấn tượng cho ngôi nhà
Nội thất phòng khách mẫu nhà cấp 4 chữ L đẹp tại Nam Định.

Nội thất phòng khách mẫu nhà cấp 4 chữ L đẹp
Phòng khách là một không gian quan trọng quyết định đến thẩm mỹ tổng thể ngôi nhà. Vì vậy, việc thiết kế phòng khách đẹp cho nhà cấp 4 phải phù hợp với thói quen cũng như sở thích của gia chủ. Qua trao đổi chúng tôi quyết định lựa chọn những mẫu nội thất có kiểu dáng đơn giản nhưng không kém phần tinh tế. Kết hợp với không gian mở sẽ khiến căn phòng trở nên sinh động, gọn gàng đẹp mắt.
Thiết kế nội thất phòng ngủ nhà cấp 4 chữ L tại Nam Định.

Thiết kế nội thất phòng ngủ nhà cấp 4 chữ L
Phòng ngủ là không gian riêng tư để chúng ta nghỉ ngơi sau những ngày làm việc mệt mỏi. Giúp chúng ta lấy lại tinh thần bắt đầu một ngày mới. Vì thế SMALLHOME lựa chọn những nội thất đơn giản, nhưng đầy đủ tiện nghi nhưng vẫn phải hài hòa về màu sắc nhằm mang đến không gian nghỉ ngơi tuyệt vời nhất.
Bố trí nội thất phòng bếp mẫu nhà cấp 4 chữ L đẹp tại Nam Định

Bố trí nội thất phòng bếp nhà chữ L đẹp tại Nam Định
Nhằm mang lại sự thoải mái nhất cho chủ căn bếp để tạo ra món ăn ngon, các dụng cụ nhà bếp được bố trí gọn gàng. Đồ nội thất chủ yếu bằng gỗ với màu sắc ưa nhìn tự nhiên dễ chịu giúp gia đình có thể thưởng thức những bữa cơm ngon cùng nhau.
Thiết kế mẫu nhà cấp 4 chữ L đẹp theo phong thủy tại Nam Định
Nếu gia đình bạn muốn xây nhà hình chữ L thì có thể hóa giải phong thủy ngôi nhà theo 2 cách sau:
Hóa giải phong thủy nhà hình chữ L theo góc

Hóa giải phong thủy nhà hình chữ L theo góc
Đầu tiên gia chủ phải xác định góc khuyết của mẫu nhà cấp 4 chữ L đẹp vì đây là vị trí đại hung. Sau đó tiến hành phương pháp hóa giải phù hợp. Phương pháp này còn tùy thuộc theo tuổi và mệnh của gia chủ như sau:
– Với góc khuyết, gia chủ nên đặt một chiếc gương soi áp sát tường. Khi đó hình ảnh phía trước gương sẽ được dẫn ra sau gương để bù đắp góc khuyết.
– Tại khu vực hình lưỡi dao, không nên bố trí phòng ngủ của các thành viên. Vì nó sẽ khiến cho tinh thần các thành viên bị ảnh hưởng, sức khỏe bị giảm sút. Trường hợp gia chủ đã bố trí phòng ngủ hoặc bắt buộc phải đặt phòng ngủ tại vị trí này thì bạn nên đặt thêm cây xanh, hồ nước, hệ thống đèn chiếu sáng để tạo sự cân bằng.
Hóa giải phong thủy nhà chữ L theo hướng

– Với góc khuyết ở phía Đông, người con trai cả sẽ là người bị ảnh hưởng nhiều nhất. Để hóa giải, gia chủ nên treo đôi uyên hương, đặt chậu hoa hoặc treo chữ “Chấn” tại vị trí này.
– Đối với góc khuyết ở phía Đông Nam, không gian sống sẽ bị suy giảm dương khí. Các thành viên trong gia đình công việc sẽ không thuận lợi. Gia chủ cần hóa giải bằng cách đặt chậu cây và treo hình con Rồng.
– Nếu nhà chữ L khuyết góc Tây Nam sẽ ảnh hưởng đến nữ chủ nhà. Bạn nên đặt đồ gốm màu tím để hóa giải
– Với không gian khuyết góc phía Tây, người con gái út sẽ bị chịu ảnh hưởng. Bạn nên đặt hình ảnh con gà tại đây.
– Nhà khuyết góc phía Bắc sẽ ảnh hưởng đến con trai giữa. Lúc này đặt bể cá cảnh sẽ là phù hợp nhất.
– Nhà khuyết góc phía Nam sẽ ảnh hưởng đến con gái thứ. Hãy hóa giải bằng cách đặt ngựa đá hoặc các đồ vật có gam màu đỏ tại vị trí này.
Trên đây là mẫu nhà cấp 4 chữ L đẹp tại Nam Định phù hợp với phong thủy. Nếu bạn đang sở hữu mảnh đất hình vuông hay chữ nhật hãy liên hệ với SMALLHOME để được tư vấn mẫu nhà đẹp, đầy đủ công năng mà vẫn đảm bảo yếu tố phong thủy cho ngôi nhà.
Liên hệ với chúng tôi tại hotline 0962.685.939 để được tư vấn thiết kế. Chúng tôi sẽ giúp bạn thực hiện ước mơ có một ngôi nhà đẹp









