THIẾT KẾ NHÀ 3 TẦNG MÁI BẰNG CÓ GA RA Ở PHỐ
Song song với kiến trúc mái thái, kiến trúc mái bằng đã và đang nhận được nhiều sự quan tâm của khách hàng. Mẫu thiết kế nhà 3 tầng mái bằng hiện đại và khoa học, được kiến trúc sư chúng tôi thiết kế cho anh Thái tại Nam Định. Mẫu thiết kế được hoàn thiện ý tưởng chỉ trong vòng 2 tháng, dự toán thi công được bóc tách chi tiết sau khi có hồ sơ thiết kế để chuẩn bị cho kế hoạch thi công.

Mẫu thiết kế nhà 3 tầng mái bằng hiện đại
Thông tin công trình nhà 3 tầng mái bằng hiện đại và khoa học
Chủ đầu tư: Trần Minh Thái
Địa điểm: Vụ Bản – Nam Định
Năm thiết kế: 2020
Diện tích thiết kế: 100m2 x 3 tầng
Công trình: nhà phố 3 tầng
Kiến trúc: hiện đại
Kinh phí đầu tư: 2 tỷ
Công năng sử dụng:
+ Tầng 1: phòng khách, phòng bếp ăn, phòng ngủ 1, nhà vệ sinh chung
+ Tầng 2: phòng ngủ master, phòng ngủ 2, phòng sinh hoạt chung
+ Tầng 3: phòng ngủ 3, phòng thờ, nhà vệ sinh, sân phơi
Ý tưởng thiết kế mẫu nhà phố 3 tầng mái bằng hiện đại của chủ đầu tư
May mắn sở hữu ô đất khá vuông vức và đẹp mắt, tọa lạc ngay tại mặt đường lớn tại thị trấn, sau nhiều lần băn khoăn về mẫu thiết kế nhà, cuối cùng vợ chồng anh Thái đã lựa chọn cho mình mẫu thiết kế nhà 3 tầng mái bằng hiện đại để làm mẫu thi công.

Mẫu thiết kế nhà 3 tầng hiện đại mái bằng
Ý tưởng thiết kế nhà được hình thành từ sở thích và ưu ái với kiến trúc hiện đại, sự đơn giản nhưng tinh tế, từ đó anh chị đã ấp ủ sẽ xây dựng một công trình khang trang ở phố theo cách riêng của mình. Diện tích đất rộng, nếu thi công theo phong cách hiện đại sẽ có nhiều cơ hội để sở hữu và trải nghiệm không gian sống theo cách mới hơn. Đưa những vật liệu mới như kính, sắt, lam nhôm nhựa vào không gian, sẽ giúp hình thành nên ngoại thất công trình theo cách mới mẻ nhất.
Mặt tiền phải làm sao xử lý giải quyết được vấn đề đón sáng, đón thoáng và thiết kế tạo ấn tượng mạnh mẽ cho không gian. Hình khối thiết kế men theo ý tưởng giật khối, từ khối tường cho đến khối ban công đều được thiết kế theo kiểu cấp độ tăng dần tịnh tiến để gây dựng hình ảnh kiến trúc lạ mắt.
Công năng sử dụng đơn giản, bố trí 4 phòng ngủ, 1 phòng thờ, thiết kế phòng sinh hoạt chung cho các thành viên. Tầng 1 bố trí không gian để xe, 1 phòng ngủ cho người giúp việc. Thiết kế bể cá để cân bằng các yếu tố phong thủy. Tiến độ thi công hoàn thiện công trình trong vòng 6 tháng, tổng kinh phí đầu tư không quá 2 tỷ đồng.
Khám phá yêu cầu tư vấn thiết kế mẫu nhà 3 tầng hiện đại

Phối cảnh thiết kế nhà ống 3 tầng hiện đại và khoa học có gara ô tô
Thiết kế mặt tiền nhà 3 tầng hiện đại với việc sử dụng các vật liệu thi công mới, cùng với hệ thống tường bao và cửa cổng thoáng mát, sử dụng họa tiết chéo đan xen bằng sắt phun sơn tĩnh điện đem đến hiệu ứng thẩm mỹ tổng quan cho toàn bộ công trình.
Hình khối kiến trúc của mẫu nhà phố khá hiện đại và kiên cố. Mặt tiền rộng , họa tiết trang trí ấn tượng giúp cho mẫu mặt tiền thêm ấn tượng cũng như nổi bật hơn hẳn.
Khối mặt tiền trước được xử lý theo kiểu giật cấp, khối ban công kính cường lực hiện đại và rộng tạo nên không gian mở. Khối ban công kết hợp bồn hoa tiểu cảnh trên tầng 3, thiết kế lệch so với tầng 2 và khối mảng được ốp lam nhựa giả gỗ, điểm tô thêm sự tinh tế, những nét mộc hài hòa và sức sống mạnh mẽ cho toàn bộ không gian thiết kế.
Ngoại thất màu sắc tươi sáng, sử dụng gam màu trắng chủ đạo, chất liệu kính và khối mái thiết kế theo dạng lam, mang đến sức sống mạnh mẽ. Kiến trúc mái bằng cùng với phong cách kiến trúc hiện đại, hệ thống cửa kính khung nhôm với tính thẩm mỹ cao được lắp đặt tạo nên những cảm quan khá mới lạ và tràn ngập sức sống cho tổng thể mặt bằng nhà phố.
Với cách xử lý mặt tiền thoáng và thông minh, kiến trúc sư đã kiến tạo nên một không gian sống tràn ngập ánh sáng. Hình khối được xử lý tinh tế, màu sắc hài hòa thanh thoát, ngay sau nhìn thấy phối cảnh thiết kế, chủ đầu tư hoàn toàn đồng ý và hài lòng với phương án thiết kế nhà ống 3 tầng mà chúng tôi đưa ra.
Mặt bằng công năng sử dụng mẫu thiết kế nhà ống 3 tầng mái bằng

Mặt bằng công năng sử dụng của tầng 1 thiết kế khoa học, phân chia linh hoạt không gian sinh hoạt chung và riêng. Khoảng sân vườn phía trước được thiết kế khá thoáng và rộng, không gian gara được thiết kế riêng về phía góc trước nên khá thuận tiện cho việc sử dụng và hoạt động.
Phòng khách được bố trí ngay cạnh cửa chính, thiết kế gần với bể cá trưng bày, làm cân bằng không gian cả về cấp độ diện tích cũng như cấp độ phong thủy. Phòng bếp được thiết kế phía trong, thuận tiện cho việc sinh hoạt. Nhà vệ sinh chung được bố trí ở giữa, khá thuận tiện cho việc sử dụng. Phòng ngủ nhỏ cho người giúp việc được bố trí ở góc, đối diện với phòng ăn, tạo nên hành lang giao thông di chuyển khá thuận tiện.

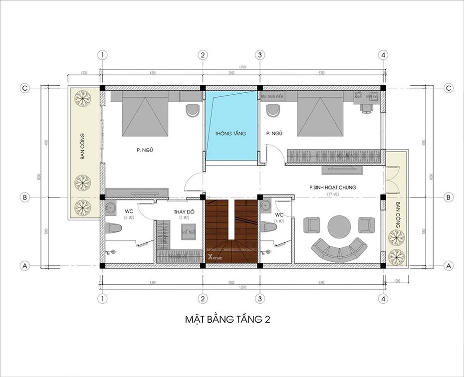
Tầng 2 mẫu thiết kế nhà 3 tầng mái bằng bố trí không gian sinh hoạt riêng, phòng ngủ master thiết kế hướng ban công trước đón nhận được nhiều ánh sáng cũng như gió thoáng phân bổ đồng đều cho không gian phía trong. Phòng ngủ master thiết kế phòng thay đồ ngay phía ngoài nhà vệ sinh, một khoảng cách rất hợp lý và thuận tiện cho việc sử dụng. Bên kia cầu thang là phòng sinh hoạt chung có ban công cửa sau và 1 phòng ngủ nhỏ cho cậu con trai.

Tầng 3 thiết kế 1 phòng thờ rộng và trang nghiêm hướng phía trước, thông với sân vườn tầng thượng. Khoảng không gian xanh này sẽ đảm nhận vài trò cung cấp không gian xanh và thoáng khí cho toàn bộ công trình. Phía bên kia cầu thang thông tầng, nhà vệ sinh chung được thiết kế ngay chân cầu thang, phía ngoài là sân phơi rộng, phía trên là phòng ngủ của cậu con trai.
Mẫu thiết kế nhà 3 tầng mái bằng hiện đại và khoa học, công năng tối ưu hóa với một mặt tiền không gian rộng mở. Mẫu thiết kế nhà hứa hẹn mang đến những cảm quan sống tích cực cho mỗi gia đình. Hãy liên hệ với chúng tôi nếu gia đình các bạn đang tìm kiếm mẫu thiết kế nhà hiện đại và tiết kiệm chi phí nhé.






