Mẫu nhà phố 3 tầng mặt tiền 5m cực kỳ tiện nghi cho gia đình trẻ
Thiết kế nhà phố 3 tầng mặt tiền 5m với đầy đủ công năng như nhà xe, sân thượng, phòng thờ, phòng chơi dành cho con cùng với kiến trúc tinh tế, phù hợp với những gia đình trẻ, có cuộc sống bận rộn hiện nay.
Nếu như gia đình bạn đang tìm kiếm thiết kế nhà phố có gara cùng công năng bố trí hiện đại và khoa học thì hãy cùng chúng tôi khám phá công trình dưới đây, để có thêm ý tưởng sáng tạo cho “tổ ấm” riêng tư của mình nhé!
Ngoại thất nhà phố 3 tầng mặt tiền 5m phong cách hiện đại

Chủ nhân của ngôi nhà là một gia đình còn rất trẻ: gồm 2 vợ chồng, một cậu con trai và một cô con gái. Sau một thời gian tích cóp, hai vợ chồng quyết định tìm đến công ty thiết kế chuyên nghiệp để nhờ thiết kế thi công trọn gói căn nhà, giúp vợ chồng có nơi “an cư lạc nghiệp.”
Kiến trúc sư sau khi tiếp nhận yêu cầu của chủ đầu tư, đã tiến hành khảo sát hiện trạng thực tế, từ đó lên kế hoạch thiết kế sơ bộ cho công trình. Kết hợp giữa kinh nghiệm thực tế cùng với yêu cầu và sở thích của gia chủ. Sau gần một tháng, bản phối cảnh mặt tiền căn nhà phố 3 tầng đã kịp lên để bàn giao cho chủ nhà.
Mẫu nhà phố được xây dựng tại Đà Nẵng, nơi có khí hậu khá khắc nghiệt, một mùa nắng kéo dài và thường có lũ. Vậy nên khi thiết kế, hình khối kiến trúc nhà phố hiện lên khá kiên cố, đảm bảo công trình sẽ bền vững theo thời gian.
Ngoài ra, nhà phố 3 tầng mặt tiền 5m với sự phá vỡ những nguyên tắc thiết kế cân đối và chuẩn mực của kiến trúc truyền thống, với những nét vẽ lôi cuốn và tự do phù hợp với tính cách và sở thích của những người trẻ tuổi.

Thiết kế nhà phố 3 tầng mặt tiền 5m cũng ưu tiên sử dụng những vật liệu hiện đại, có sẵn tại địa phương như đá marble, đá giả gỗ, gỗ tự nhiên và kính cường lực….nhằm tiết kiệm tối đa chi phí cho chủ nhà.
Khối ban công tầng 2 lệch ra ngoài so với tầng 1 và tầng 3 mang đến sự khác biệt, khiến khách qua đường dù đứng gần hay xa vẫn cảm thấy bị thu hút. gần 1.5m. Cửa gỗ lá sách cùng với tiểu cảnh xanh mát, tạo nên hiệu ứng cuốn hút, tinh tế và đầy sức hút cho mẫu thiết kế công trình.
Ngôi nhà nằm hướng Nam, nhận được nhiều gió mát nên những phần đặt gần hướng Tây sẽ được ốp bằng gạch thẻ để đảm bảo giữ cho nhiệt độ trong nhà luôn ổn định. Đồng thời đảm bảo vẽ đẹp thẫm mỹ bền bỉ cho công trình.
Để thuận thiện cho việc sử dụng, kiến trúc sư thiết kế nhà phố 3 tầng mặt tiền 5m lắp đặt hệ thống cửa cuốn điện tử ở cổng, tiếp đến là lớp cửa gỗ vừa đảm bảo tính thẩm mĩ, vừa đảm bảo công năng sử dụng.
Thay vì để trống, bên dưới mái ban công các tầng, kiến trúc sư đều sử dụng lam gỗ, đồng bộ với màu sắc của cửa gỗ, đem đến sức cuốn hút mạnh mẽ cho không gian thiết kế.
Ngoại thất được ưu tiên sử dụng gam màu sáng, nhấn nhá bằng các loại đèn tường, cây xanh tạo chiều sâu nhưng vẫn không thiếu sự tươi mới, trẻ trung khiến chủ đầu tư hết sức hài lòng.

Thiết kế nhà mặt phố kinh doanh
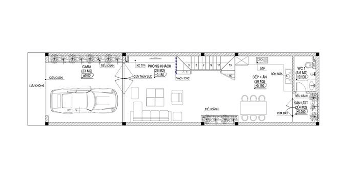
Mặt bằng công năng nhà phố 3 tầng mặt tiền 5m
Khoảng mặt tiền công trình thiết kế khá hiện đại nhưng vẫn có điểm nhấn với chiều sâu và sức hút lớn. Bên cạnh đó thiết kế nhà phố hiện đại còn ghi điểm nhờ cách sắp xếp mặt bằng công năng tiện nghi, phù hợp với lối sống của những gia đình trẻ bận rộn.

- Một nhà xe rộng 23m được bảo vệ bằng lớp cửa cuốn vững chãi. Bên cạnh đó cây xanh còn được bố trí ở trong khoảng nhà xe để hút khói bụi và mùi xăng xe.
- Phòng khách, nhà bếp và phòng ăn sắp xếp khoa học. Tiểu cảnh và nhà tắm đặt bên ngoài nhằm tránh mùi uế khí.

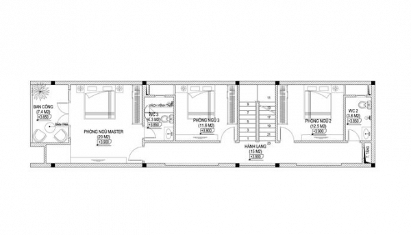
- Ở khu vực tầng 2 kiến trúc sư sắp xếp một phòng ngủ master rộng 20m2 dành cho vợ chồng gia chủ. Phòng ngủ của hai con đặt bên cạnh để bố mẹ tiện chăm sóc các bé. Đồng thời bên trong mỗi phòng cũng có nhà vệ sinh và phòng tắm riêng nhằm để các bé tập đức tính tự lập.

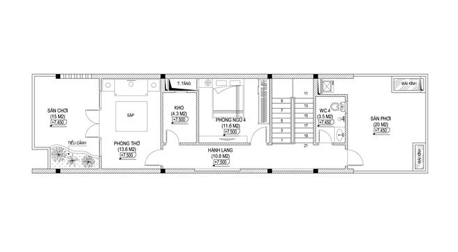
- Lầu 2 gồm một phòng thờ rộng 7,5m; nhà kho và phòng ngủ rộng gần 12m dành cho khách đến nghỉ lại. Những lúc không có khách, căn phòng này trở thành sân chơi dành cho các bé.
Thiết kế nội thất nhà phố 3 tầng mặt tiền 5m

Kiến trúc sư đã căn cứ trên tổng thể nhu cầu, điều kiện thực tế và điều kiện đầu tư để đưa ra phương án thiết kế nhà để xe hợp lý.

Vì gia đình có con nhỏ nên việc tính toán các khoảng cách, cự ly cũng như các chi tiết xuất hiện như bàn, ghế sofa, kệ tivi, kệ trang trí, được tính toán một cách chi tiết và cẩn thận.


Phòng ngủ cậu con trai được sắp xếp theo sở thích của bé, qua đó cũng cho thấy sự đầu tư bài bản của bậc làm cha làm mẹ.

Phòng ngủ cô con gái nương theo sắc hồng dễ thương cùng với màn che làm từ vương miện công chúa.
Dự trù chi phí xây nhà phố 3 tầng mặt tiền 5m
Để tiện cho quý vị tham khảo cũng như có khoản dự trù hợp lý cho ngôi nhà của mình. Dưới đây công ty xây dựng nhà đẹp xin chia sẻ tiếp cách tính chi phí xây dựng căn nhà phố này.
1. Cách tính diện tích xây dựng nhà 5x18m
- Móng: 5 x 18 x 50%= 45m2
- Tầng trệt: 5 x 18 x 100%= 90m2
- Lầu 1: 5 x 18 x 100%= 90m2
- Lầu 2: 5 x 18 x 100%= 90m2
- Mái: 5 x 18 x 50 % = 45m2
===> Tổng diện tích sàn cần thi công sẽ là: 360m2
Lưu ý: Lưu ý 360m2 là diện tích sàn nhà phố 3 tầng mặt tiền 5m mà chúng tôi dự tính chưa phải là con số chính xác, bởi vì phần diện tích này được tính trên bản vẽ sơ bộ, chưa đầy đủ chi tiết. Tức là chưa gồm nhà xe, giếng trời, sân thượng…..
2. Đơn giá xây dựng chung
Đơn giá xây dựng phần thô dao động từ 3, 4 – 3,7 triệu/m2
Đơn giá xây trọn gói dao động từ 8.000.000 – 12.000.000 triệu/m2
3. Tổng dự trù chi phí xây nhà phố 3 tầng mặt tiền 5m
- Phần thô: 360m2 x 3.400.000 = Khoảng 1 tỷ 224 triệu: Bao gồm phần thô + nhân công hoàn thiện
- Trọn gói: 360m2 x 8.000.000 = Khoảng 2 tỷ 880 triệu: Bao gồm phần thô + vật liệu hoàn thiện (chỉ chưa có đồ rời như bàn, ghế, giường vv ….).
Như vậy qua đây bạn đã biết bạn cần chuẩn bị khoảng 1,2 tỷ cho phần thô và 2,9 tỷ cho phần hoàn thiện. Tuy nhiên đơn giá trên chỉ là con số tham khảo, bởi tùy vào diện tích, điều kiện thi công của từng ngôi nhà khác nhau mà có chi phí khác nhau.
Thông thường phần thô sẽ không có sự giao động nhiều do đơn giá trên được tính dựa trên giá mà nhiều công ty xây dựng đang áp dụng. Tuy nhiên phần hoàn thiện sẽ có nhiều sự thay đổi tùy vào cách gia chủ chọn vật liệu hoàn thiện. Ví như gia chủ chọn vật liệu hoàn thiện cao cấp thì tất nhiên đơn giá sẽ cao hơn.
Để biết được giá chính xác tốt nhất khi xây nhà phố hiện đại bạn nên liên hệ trực tiếp với kiến trúc sư nhờ họ đến đo đạc, bóc tách khối lượng và ra bản vẽ chi tiết thì lúc đó bạn sẽ biết được con số giá chính xác nhất.
Có thể bạn quan tâm

Phối cảnh căn nhà phố dành cho gia đình trẻ này đã nhận được nhiều lời khen ngợi, không chỉ của chủ đầu tư mà còn của nhiều khách hàng khác. Không gian kiến trúc hiện đại, linh hoạt và tiện nghi trở nên nổi bật và thu hút hơn trong nhiều ý tưởng thiết kế.
Nếu quý vị yêu thích nhà phố 3 tầng mặt tiền 5m hay muốn tham khảo thêm nhiều mẫu nhà phố đẹp đừng ngần ngại gọi tới SMALLHOME qua hotline 0962.685.939 để được tư vấn miễn phí nhé!









