Hiện nay, trong lĩnh vực thiết kế và thi công, biệt thự tân cổ điển 3 tầng 11x12m được xem như loại hình được rất nhiều khách hàng ưa chuộng. Trong đó, không thể không kể đến những ưu điểm về sự đa dạng trong kiến trúc, cũng như cách bố trí công năng khoa học. hợp lí. Đó là một trong số lí do giúp loại hình này được các chủ đầu tư tìm kiếm và xây dựng nhiều trong năm 2021.

Phối cảnh căn biệt thự của gia đình đẹp ấn tượng
Trong bài viết này, Smallhome giới thiệu đến bạn đọc tham khảo mẫu biệt thự của gia đình , với phong cách kiến kiến trúc ngoại thất đầy sang trọng, thích hợp với các gia chủ yêu thích sự tinh tế, đẳng cấp của loại hình biệt thự tân cổ điển. Cùng theo dõi bài viết để tìm hiểu thêm về công trình này nhé!
Phối cảnh biệt thự tân cổ điển 3 tầng 11×12 hoành tráng lộng lẫy
Mang nét đẹp tân cổ điển, biệt thự nổi bật với gam màu trắng thời thượng, đẹp mắt. Tiền sảnh đẹp ấn tượng với các mảng tường vuông vức.
Căn biệt thự hầu như tập trung vào các khối cột, tạo nên một tổng thể vững chắc. Hệ thống cửa với thiết kế đẹp mắt, kính trong suốt mang đến không gian thoáng đãng.

Phối cảnh biệt thự tân cổ điển 3 tầng 11x12m dưới góc nhìn khác
Tại vị trí ban công mỗi tầng đều được thiết kế ban công đẹp mắt. Hàng rào với thiết kế hoa văn ấn tượng, chắc chắn nhưng không làm mất đi vẻ đẹp mềm mại vốn có của biệt thự. Ban công tối màu làm nổi bật màu sắc.

Góc nhìn chính diện
Hàng rào tối màu, mảnh mai nhưng không hề kém chắc chắn. Hệ thống cột trụ hàng rào chắc chắn, màu sắc hài hòa, đồng nhất.
Hơn thế nữa, tại ban công mỗi tầng và sân vườn được thiết kế khá nhiều khu vực trồng cây cảnh, hoa cỏ dành cho gia chủ.
Bản vẽ mặt bằng công năng biệt thự tân cổ điển 3 tầng 11x12m chi tiết
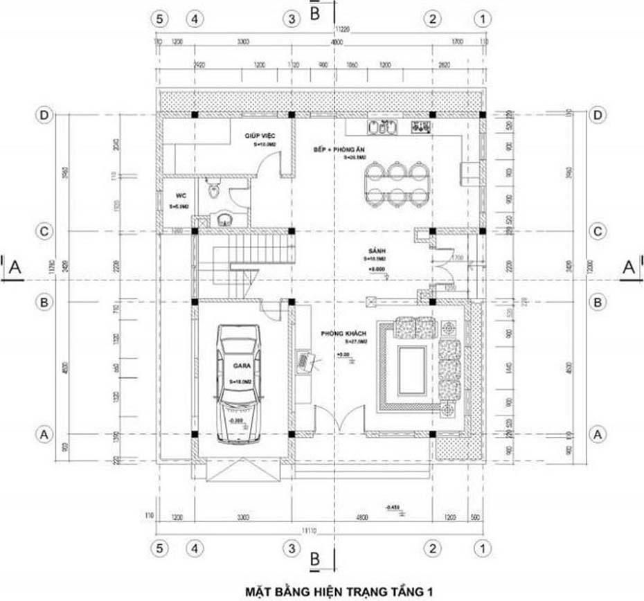
Bản vẽ công năng tầng một
Mặt bằng công năng tầng 1 bao gồm: 1 phòng khách, khu vực sảnh, 1 phòng bếp + phòng ăn, phòng giúp việc, 1WC.

Ngay tại vị trí cửa chính đi vào là khu vực phòng khách, với thiết kế tiện nghi, sang trọng. Phòng bếp và phòng ăn được ngăn cách với phòng khách vởi không gian sảnh thông thoáng. Phòng của người giúp việc được bố trí đối diện phòng ăn. 1 WC được đặt tại vị trí gần phòng giúp việc, thuận lợi cho việc sinh hoạt.
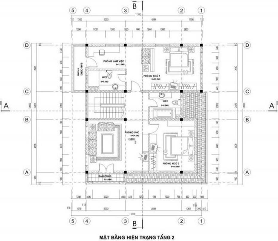
Bản vẽ công năng tầng hai
Công năng tầng 2 bao gồm: 1 phòng làm việc, 2 phòng ngủ,1 phòng sinh hoạt chung, 2WC.

Tại vị trí bên trái cầu thang là phòng ngủ master, với không gian khép kín, tiện nghi nội thất. Phòng làm việc được bố trí đối diện phòng ngủ Master, không gian yên tĩnh. Phòng sinh hoạt chung bên phải cầu thang, với nội thất sang trọng, tạo không gian ấm cúng dành cho căn phòng. 1 phòng ngủ khác được thiết kế đối diện phòng sinh hoạt chung, hướng tới sự đơn giản, tiện nghi.
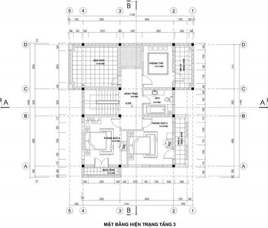
Bản vẽ công năng tầng ba
Công năng tầng 3 bao gồm: 1 phòng thờ, 2 phòng ngủ, 1WC.

Phòng thờ được thiết kế bên tay trái cầu thang đi lên. WC được bố trí đối diện cầu thang, thuận tiện cho việc sinh hoạt.
2 phòng ngủ được bố trí bên tay phải cầu thang, với thiết kế đơn giản nhưng vẫn đầy đủ tiện nghi.
Thiết kế nội thất biệt thự tân cổ điển 3 tầng 11x12m đẹp từng cm
Không gian biệt thự với thiết kế sang trọng, mang tính thẩm mĩ cao.

Không gian để xe bên trong biệt thự đầy rộng rãi
Khu vực để xe của căn biệt thự được thiết kế trong nhà. Không gian xây dựng ấn tượng, rộng rãi.

Không gian phòng khách thoáng đãng sang trọng hiện đại bậc nhất
Phòng khách với thiết kế sang trọng, tiện nghi. Khu vực tiếp khách sử dụng thảm 3D, hoa văn đơn giản nhưng làm nổi bật lên sự xa hoa của căn phòng. Bộ sofa tối màu, nổi bật với gam màu trắng. Các chi tiết trang trí sử dụng được lựa chọn tỉ mỉ, kĩ lưỡng.

Khu vực phòng bếp được thiết kế đầy đủ tiện nghi giúp người nội trợ tạo những món ăn ngon cho gia đình
Phòng bếp với thiết kế tiện nghi nhưng vẫn toát lên nét đẹp ấn tượng. Nội thất sử dụng gam màu trắng, đồng nhất với màu sắc căn biệt thự, tạo nét đẹp hài hòa.

Không gian phòng ăn ấn tượng, ánh sáng từ bên ngoài chiếu vào giúp căn phòng thêm thoáng đãng.
Khu vực phòng ăn với bộ bàn ghế được bọc mềm mại, tạo cảm giác thoải mái dành cho các thành viên trong gia đình. Hơn thế nữa, là cảm giác ấm cúng trong từng bữa ăn.

Phòng ngủ Master với thiết kế sang trọng tiện nghi, màu sắc căn phòng hài hòa, mang tính thẩm mĩ cao

Phòng tắm rộng rãi ngăn cách bởi kính cường lực, chổ rửa tay sang trọng

Khu vực sân sau được kê bộ bàn ghế thưởng thức Trà Long Tĩnh thật là tuyệt

Tiểu cảnh sân vườn được thiết kế khá độc đáo, đẹp mắt

Lối đi được lát gạch sạch sẽ. Cây cảnh, hoa cỏ được trồng khá nhiều
Tạm kết
Hi vọng mẫu biệt thự tân cổ điển 3 tầng 11x12m của gia đình sẽ là một tài liệu tham khảo hữu ích dành cho các chủ đầu tư trong việc lựa chọn mẫu thiết kế cho mình. Nếu bạn có nhu cầu thiết kế, thi công nhà, biệt thự đẹp hãy liên hệ tới công ty Kiến Trúc & Nội Thất Smallhome qua hotline: 09626.859.39 để được hỗ trợ tư vấn miễn phí.



