MẪU THIẾT KẾ NHÀ PHỐ 2 TẦNG 1 TUM HIỆN ĐẠI TẠI HẢI DƯƠNG.

MẪU THIẾT KẾ NHÀ PHỐ 2 TẦNG 1 TUM HIỆN ĐẠI TẠI HẢI DƯƠNG.
PHÂN CẤP – PHÂN LOẠI NHÀ Ở TẠI HẢI DƯƠNG.
PHÂN CẤP:
- Nhà cấp II: Chiều cao tầng: 20 – 29 tầng; Tổng diện tích sàn: 10.000 -< 15.000m2.
- Nhà cấp II: Chiều cao tầng: 9 – 19 tầng; Tổng diện tích sàn: 5.000 -< 10.000m2.
- Nhà cấp III: Chiều cao tầng: 4 – 8 tầng; Tổng diện tích sàn: 1.000 -< 5.000m2.
- Nhà cấp IV: Chiều cao tầng: 3 tầng; Tổng diện tích sàn: 1.000 -< 5.000m2.
PHẦN LOẠI:
- Nhà ở nông thôn.
- Nhà biệt thự phố.
- Nhà ở liền kề (liền kề).
- Nhà ở chung cư.
MÔ TẢ CHI TIẾT MẪU THIẾT KẾ BIỆT THỰ 4 TẦNG TÂN CỔ ĐIỂN TẠI HẢI DƯƠNG
TÊN CHỦ NHÀ: Anh Hoàng
ĐỊA CHỈ: Hải Dương.
PHONG CÁCH: Mẫu thiết kế nhà phố 2 tầng 1 tum tại Hải Dương.
KÍCH THƯỚC: 6m x 12m.
CÔNG NĂNG:
- TẦNG 1: Sân trước + Phòng Khách + Sảnh – Tiểu cảnh + Phòng bếp – ăn + Wc.
- TẦNG 2: Phòng ngủ master – wc + Phòng ngủ + Wc.
- TẦNG TUM: Sân thượng – sân chơi + Phòng Thờ + Giặt – Phơi + Phòng ngủ + wc chung + Thông tầng.
MÔ TẢ CHI TIẾT CÔNG TRÌNH.
Phong cách hiện đại, một trong những xu hướng thiết kế nhà ở phổ biến hiện nay được nhiều gia đình ở thành thị áp dụng đặc biệt là đối với những vợ chồng trẻ.

MẪU THIẾT KẾ NHÀ PHỐ 2 TẦNG 1 TUM HIỆN ĐẠI TẠI HẢI DƯƠNG.
Anh Hoàng là người yêu thích kiến trúc hiện đại, bạn thân đang sở hữu khu đất với diện tích 6x12m. Anh đã tìm đến với chúng tôi mong muốn có ngôi nhà lý tưởng. KTS đã tư vấn thiết kế nhà phố 2 tầng 1 tum tại Hải Dương đẹp vuông vức, mái bằng cộng hưởng những đường nét khỏe khoắn theo phong cách hiện đại đã tạo sự bề thế cho công trình.
NÉT ĐẸP MẶT TIỀN MẪU THIẾT KẾ NHÀ PHỐ 2 TẦNG 1 TUM HIỆN ĐẠI TẠI HẢI DƯƠNG.
Mẫu thiết kế nhà phố 2 tầng 1 tum hiện đại tại Hải Dương có đường nét hình khối trụ cột khỏe khoắn, tự do trong cách phân chia bố cục mang lại dáng vẻ trẻ trung cho công trình. Hình thức bên ngoài của nhà phố khá đơn giản, cô đọng trong từng chi tiết. Những khoảng giật cấp tạo nên các hình khối vuông vức. Nhà phố được thiết kế cửa kính rộng mở tạo góc view ra khuôn viên đẹp bên ngoài. Những ô cửa kính đơn thuần trở nên duyên dáng hơn khi đi kèm với bộ rèm lớn điều chỉnh ánh sáng như mong muốn.

MẪU THIẾT KẾ NHÀ PHỐ 2 TẦNG 1 TUM HIỆN ĐẠI TẠI HẢI DƯƠNG.
Màu trắng làm chủ đạo kết hợp với những hệ cửa kính rộng tăng cường ánh sáng vào bên trong cùng với đó là cây xanh mang đến một không gian sống trong lành, thoáng mát. Với tường rào và cổng được thiết kế đơn giản nhưng tinh tế đóng vai trò không nhỏ tô điểm thêm nét đẹp hiện đại, thanh lịch cho toàn bộ tổng thể công trình. Thiết kế một bờ tường rộng với màu xám chạy thẳng từ tầng trệt lên tầng 3 ngôi nhà cũng là điểm nhấn quan trọng, tạo nét độc đáo khiến mẫu thiết kế nhà phố 2 tầng 1 tum hiện đại tại Hải Dương càng trở nên ấn tượng và thu hút hơn.

MẪU THIẾT KẾ NHÀ PHỐ 2 TẦNG 1 TUM HIỆN ĐẠI TẠI HẢI DƯƠNG.
Nhìn từ trên cao xuống mẫu nhà phố mặt tiền 6m với các đường nét, hình khối tuân theo tỉ lệ phù hợp, vừa vặn mang đến sự uy nghi, bề thế cho mẫu thiết kế nhà đẹp quyện hòa với thiên nhiên trong lành.
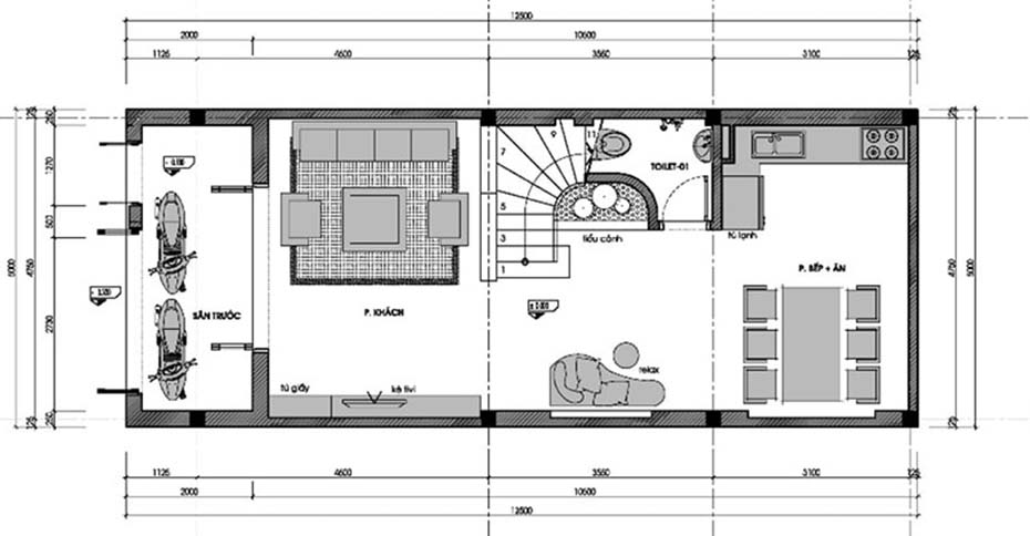
TẦNG 1.
Phía trước mặt bằng tầng trệt với chỗ đậu xe thuận tiện, việc thiết kế gara để xe phía trước sẽ thuận tiện hơn rất nhiều cho việc di chuyển cũng như tiết kiệm chi phí xây dựng thay vì phương án có tầng hầm.

MẪU THIẾT KẾ NHÀ PHỐ 2 TẦNG 1 TUM HIỆN ĐẠI TẠI HẢI DƯƠNG.
Phòng khách được bố trí gần cửa chính hợp phong thủy, bộ bàn ghế được sắp xếp gọn gàng, khoa học theo chiều dọc của ngôi nhà tạo ra mối lối đi rộng rãi, thông thoáng. Khu vực cầu thang được bố trí ở vị trí trung tâm và KTS bố trí hợp lý khi tạo ra tiểu cảnh bên trong tận dụng ở bên dưới cầu thang một cách hợp lý nhất. Cùng với đó là nhà vệ sinh chung cho thành viên và khách tới chơi thuận tiện sử dụng, có ghế thư giãn nghỉ ngơi.
Phòng Bếp – ăn được bố trí phía sau tạo điều kiện cho việc nấu nướng riêng tư, hạn chế việc bám mùi thức ăn, quá trình trao đổi không khí được tốt hơn. Bàn ăn 6 ghế để ở lối đi vào rộng thoáng thuận tiện cho việc đi lại và khi có khách. Không gian mở tạo sự liên kết giữa các phòng phù hợp với nhu cầu sử dụng trong cuộc sống hiện đại.
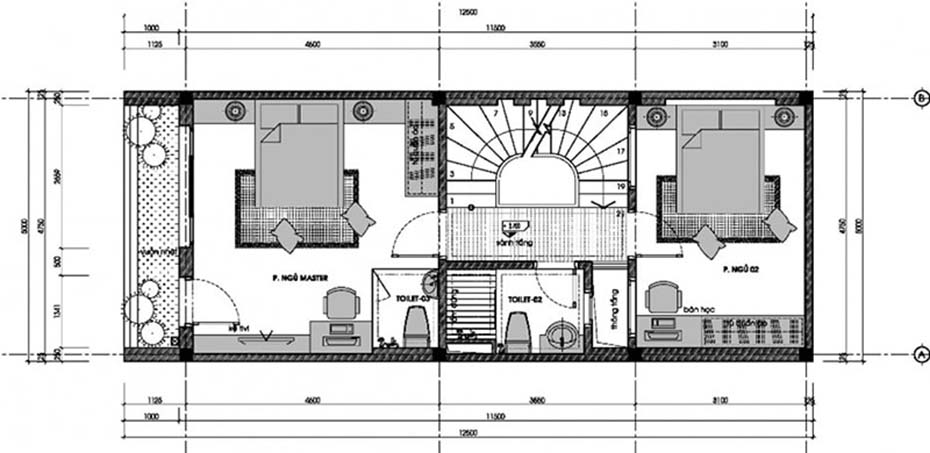
TẦNG 2.
Thiết kế tầng 2 gồm có 2 phòng ngủ đầy đủ tiện nghi, 1 phòng ngủ master với WC bên trong rộng rãi mang đến sự riêng tư nhất định giúp cho việc thư giãn nghỉ ngơi được thoải mái nhất, có cửa đi ra ban công giúp gia chủ thư giãn, nghỉ ngơi sau ngày làm việc.

MẪU THIẾT KẾ NHÀ PHỐ 2 TẦNG 1 TUM HIỆN ĐẠI TẠI HẢI DƯƠNG.
Khu vực sảnh thang được bố trí nhà vệ sinh, thiết kế thông tầng và hành lang thuận nghỉ ngơi, thông thoáng. Cầu thang với thiết kế vòm khá đẹp mắt. Nội thất bên trong được bố trí ngăn nắp theo những tỉ lệ phù hợp, cân xứng hài hài với nhau, tiết kiệm diện tích phục vụ cho việc nghỉ ngơi thư giãn cho từng thành viên trong gia đình.
TẦNG TUM.
Một góc sân thượng dùng để bố trí cây xanh và bố trí bàn ghế để gia đình gia chủ thư giãn, nghỉ ngơi tận hưởng không khí trong lành ngày cuối tuần. Kiểu thiết kế này được rất nhiều gia chủ ưa chuộng khi mang không gian xanh, thoáng mát vào nhà.

MẪU THIẾT KẾ NHÀ PHỐ 2 TẦNG 1 TUM HIỆN ĐẠI TẠI HẢI DƯƠNG.
Phòng thờ nhỏ hướng ra phía trước liền kề với khu vực giặt sấy được ngăn cách vừa không ảnh hưởng, vừa thông thoáng đảm bảo yếu tố phong thủy. Khu vực sảnh thang với nhà vệ sinh, thông tầng với góc nhỏ để bố trí cây xanh. Thiết kế phòng ngủ nhỏ với nội thất giường, tủ, bộ bàn ghế, cây xanh được bố trí đầy đủ tiện nghi.
Bắt nhịp cùng thế giới kiến trúc, Công ty TK&XD nhà đẹp Smallhome luôn nỗ lực và sáng tạo hết mình để kiến tạo ra những sản phẩm mang cả giá trị tinh thần và giá trị vật chất cao. Hãy đồng hành cùng Smallhome nhé.









