MẪU THIẾT KẾ BIỆT THỰ CỔ ĐIỂN ĐẸP ĐẲNG CẤP TẠI QUẢNG NINH

MẪU THIẾT KẾ BIỆT THỰ CỔ ĐIỂN ĐẸP ĐẲNG CẤP TẠI QUẢNG NINH
THÔNG TIN CHI TIẾT CÔNG TRÌNH.
TÊN CHỦ NHÀ: Anh Vinh.
ĐỊA CHỈ: Quảng Ninh.
PHONG CÁCH: Biệt thự 3 tầng cổ điển tại Quảng Ninh.
KÍCH THƯỚC: 12,5m x 16m.
CÔNG NĂNG:
- TẦNG 1: Sảnh + Phòng Khách + Phòng Làm việc + Phòng Bếp – ăn + Phòng ngủ + Phòng vệ sinh chung.
- TẦNG 2: Phòng sinh hoạt chung + Phòng ngủ Master – wc – Thay đồ + 2 Phòng Ngủ – wc.
- TẦNG 3: Phòng Thờ + Phòng ngủ khách + Phòng karaoke + Sân thượng + Phòng giặt – wc + Sân phơi.
MÔ TẢ CHI TIẾT CÔNG TRÌNH.
Sở hữu mảnh đất đắt giá tại thành phố Quảng Ninh, Anh Vinh yêu cầu có được một biệt thự khang trang mang đến sự đẳng cấp, tinh tế và hoàn mĩ. Đáp ứng nhu cầu của chủ đầu tư, KTS Smallhome thiết kế biệt thự 3 tầng cổ điển đẹp đẳng cấp tại Quảng Ninh mang đến sự cuốn hút, tinh tế và sang trọng nhờ các chi tiết hoa văn kiến trúc vô cùng tỉ mỉ, biệt thự khẳng định sự đẳng cấp bởi vẻ đẹp nghệ thuật, đầy quyến rũ.

MẪU THIẾT KẾ BIỆT THỰ CỔ ĐIỂN ĐẸP ĐẲNG CẤP TẠI QUẢNG NINH
NÉT ĐẸP MẶT TIỀN MẪU THIẾT KẾ BIỆT THỰ CỔ ĐIỂN ĐẸP ĐẲNG CẤP TẠI QUẢNG NINH.
Phía trước mặt tiền biệt thự là không gian sân vườn mang âm hưởng phong cách cổ điển nguy nga, sang trọng. Qua cách bố trí ở bồn cây được ốp đá granite trắng thanh khiết, tôn lên nét đẹp sang trọng, hay đài phun nước giữa khoảng sân chính đẹp mắt, tạo nên cái duyên dáng trong tổng thể tuyệt mỹ khu vườn.

MẪU THIẾT KẾ BIỆT THỰ CỔ ĐIỂN ĐẸP ĐẲNG CẤP TẠI QUẢNG NINH
Như một tòa lâu đài mang phong cách cổ điển Châu Âu, mẫu thiết kế biệt thự cổ điển đẹp đẳng cấp tại Quảng Ninh nổi bật với đường nét hoa văn, phào chỉ tinh tế, bắt mắt, trông vô cùng nguy nga, tráng lệ. Cùng với hệ thống cột trụ hình tròn vững chãi, đều được tạo điểm nhấn bằng các gờ dọc đẹp mắt, phá cách với đá màu vàng hổ phách mang nét đẹp vương giả cho ngôi nhà. Các cụm pháo chỉ hoa văn trang trí ốp nổi xung quanh cửa sổ…, và đặc biệt là cụm hoa văn trên mái nhà đã được tính toán cặn kẽ để tôn lên vẻ đẹp chung của biệt thự.

MẪU THIẾT KẾ BIỆT THỰ CỔ ĐIỂN ĐẸP ĐẲNG CẤP TẠI QUẢNG NINH
Cửa gỗ theo phong cách cổ điển chú trọng, thiết kế ở chính giữa, với nguyên liệu từ gỗ tự nhiên, màu sắc nâu trầm sang trọng, kết hợp cùng hệ thống cửa sổ kính khung gỗ với tạo hình cổ kính, mang lại tổng thể thể hiện sự quyền quý, đẳng cấp. Bậc cầu thang hay chân cột tầng 2 ốp đá vàng hoa cương làm chắc chắn, đẹp mắt.

MẪU THIẾT KẾ BIỆT THỰ CỔ ĐIỂN ĐẸP ĐẲNG CẤP TẠI QUẢNG NINH
Ngoại thất của biệt thự sử dụng gam màu trắng, biểu trưng cho vẻ đẹp tinh khiết, quyền quý đầy sang trọng, dễ dàng liên tưởng tới một cung điện nguy nga, tráng lệ. Phần mái vòm cao và rộng, làm nổi bật được sự cao sang, sử dụng sắc xanh đậm quyền uy khiến công trình tạo điểm nhấn cá tính riêng đầy thú vị. Lan can giọt nước bê tông sơn trắng nhẹ nhàng hơn. Mẫu thiết kế biệt thự 3 tầng cổ điển đẹp đẳng cấp tại Quảng Ninh sự tinh tế hơn trong việc sắp xếp và bố cục các hoa văn, tạo nên một ngôi nhà đẹp cả về thẩm mỹ lẫn công năng sử dụng trong nó.
Mặt bằng mẫu biệt thự 3 tầng cổ điển đẹp đẳng cấp tại Quảng Ninh do KTS công ty Smallhome thiết kế, Quý khách tham khảo và tìm hiểu chi tiết công trình:

MẪU THIẾT KẾ BIỆT THỰ CỔ ĐIỂN ĐẸP ĐẲNG CẤP TẠI QUẢNG NINH
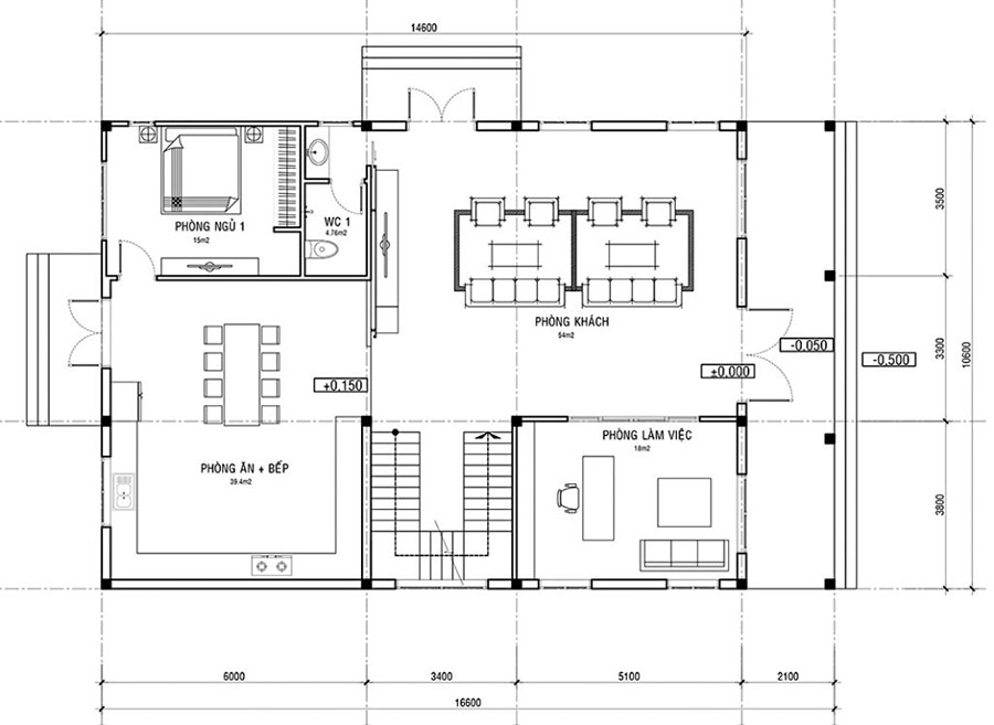
TẦNG 1.
Đầu tiên là sảnh đón khách đi từ bậc tam cấp lên vào trong biệt thự. KTS Smallhome thiết kế phòng khách rộng rãi, lịch sự với các cửa sổ kính giúp không gian thoáng mát, với view đẹp nhìn ra sân vườn bên ngoài và khu tiểu cảnh. Bên cạnh là phòng làm việc tiện nghi của anh Vinh. Phòng ăn bố trí cùng bếp nằm phía sau nhà thuận tiện sử dụng và mang không gian thoải mái cho gia đình. Cuối cùng là một phòng ngủ trang bị đầy đủ nội thất nhìn ra khoảng sân lớn của ngôi nhà. Có phòng vệ sinh chung ngay cạnh phòng khách.

MẪU THIẾT KẾ BIỆT THỰ CỔ ĐIỂN ĐẸP ĐẲNG CẤP TẠI QUẢNG NINH
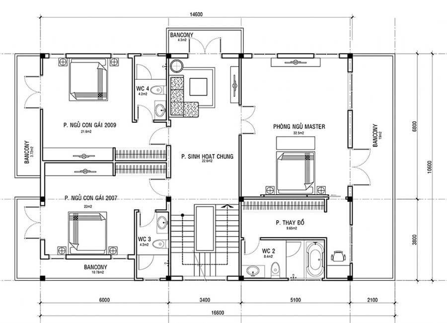
TẦNG 2.
Đi lên cầu thang tầng 2 là phòng sinh hoạt chung, nơi cả gia đình quây quần, trò chuyện cùng nhau. Bên cạnh là phòng ngủ lớn của Anh chị và hai phòng ngủ của hai bé gái, với đồ nội thất phù hợp với các thành viên trong gia đình, bố trí nội thất theo sở thích, mong muốn gia chủ. Các phòng ngủ có vệ sinh khép kín giúp đem lại cảm giác thoải mái, riêng tư nhất khi nghỉ ngơi.

MẪU THIẾT KẾ BIỆT THỰ CỔ ĐIỂN ĐẸP ĐẲNG CẤP TẠI QUẢNG NINH
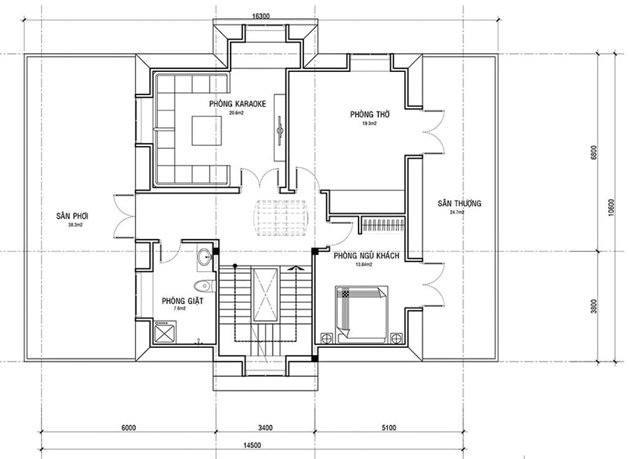
TẦNG 3.
Phòng thờ được bố trí trên tầng 3 có tủ thờ đặt ngay ngắn, là nơi thờ phụng của gia đình chủ nhà. Có một phòng ngủ dành cho khách có lối thông với sân thượng giúp mang không khí tự nhiên vào trong. Phía sau nhà là sân phơi kiêm sảnh thư giãn riêng nhìn ra cây cối phía sau nhà. Phòng vệ sinh và giặt chung một không gian, tiết kiệm diện tích mà hợp lý.

MẪU THIẾT KẾ BIỆT THỰ CỔ ĐIỂN ĐẸP ĐẲNG CẤP TẠI QUẢNG NINH
Mẫu thiết kế biệt thự cổ điển đẹp đẳng cấp tại Quảng Ninh do KTS Smallhome thiết kế với niềm đam mê với phong cách cổ điển. Các họa tiết trang trí tinh xảo, cầu kỳ thể hiện cái đẹp, đẳng cấp của biệt thự, nơi đây trở thành tổ ấm, là niềm tự hào, mãn nguyện của gia chủ. Anh Vinh vô cùng hài lòng với thiết kế biệt thự tân cổ tại Hà Nội của Công ty Smallhome.









