MẪU THIẾT KẾ NHÀ PHỐ ĐỘC ĐÁO 5X13M TẠI THANH HÓA

MẪU THIẾT KẾ NHÀ PHỐ ĐỘC ĐÁO 5X13M TẠI THANH HÓA
THÔNG TIN CHI TIẾT CÔNG TRÌNH.
TÊN CHỦ NHÀ: Anh Thái.
ĐỊA CHỈ: Thanh Hóa.
PHONG CÁCH: Nhà phố 3 tầng hiện đại tại Thanh Hóa.
KÍCH THƯỚC: 5m x 13m.
CÔNG NĂNG:
TẦNG 1: Sảnh + Phòng Khách + Phòng Bếp – ăn + Phòng vệ sinh chung.
TẦNG 2: Phòng ngủ master – wc + Phòng Ngủ + Phòng vệ sinh chung.
TẦNG 3: Sân thượng + Phòng Thờ.
MÔ TẢ CHI TIẾT NÉT ĐẸP MẶT TIỀN CÔNG TRÌNH
Mẫu thiết kế nhà phố độc đáo 5x13m tại Thanh Hóa toát lên vẻ đẹp xu hướng của thời đại hiện đại, sự đột phá về sáng tạo, công nghệ và hơn hết là tài năng của KTS Smallhome. Mặt tiền của nhà phố mang đến sự ấn tượng với vẻ đẹp độc đáo, hiện đại của mình. Với hệ cổng chính chắc chắn, đơn giản với khung cổng xây hình chữ U ngược sơn trắng có phần đế chân ốp gạch, cánh cổng là những thanh sắt sơn nâu vàng xếp ngang tạo thành bốn cánh cửa chắc chắn, đẹp mắt. Mặt tiền tầng 1 phần khung trước được ốp đá kim sa đen làm nổi bật hệ cửa kính trong suốt khung sắt sơn đen tĩnh điện.

MẪU THIẾT KẾ NHÀ PHỐ ĐỘC ĐÁO 5X13M TẠI THANH HÓA
Tầng hai, ba của nhà phố độc đạo thiết kế đưa ra phần khung làm hiên cho tầng 1. Hệ khung hình khối liên kết sơn màu trắng viền đen, bên trong được ốp gỗ làm nổi bật không gian. Một bên mặt tiền thiết kế hệ khung sơn đen chạy dọc thẳng, bên ngoài tầng hai trông cây xanh thoáng mát, bắt mắt. Ban công thiết kế lan can khung sơn đen đồng bộ thông nhất nổi bật phong cách hiện đại. Thêm đó là hàng cây xanh xinh sắn tạo nét phía trước, cửa ra ban công là hệ cửa kính cường lực trong suốt, dễ dàng nhìn ra ngoài với tầm view đẹp. Tầng ba thiết kế khối tường sơn trăng trông cây xanh rủ xuống vừa tạo điểm độc đáo vừa làm lan can. KTS thiết kế sáng tạo để khoảng không có mái là sân thượng, nơi thư giãn, trồng rau cho gia đình được tự nhiên phát triển. Tổng thể không gian mặt tiền hài hòa, đẹp mắt với vật liệu hiện đại đơn giản.
TẦNG 1.
Từ cổng chính đi vào là hệ cửa chính bốn cánh cửa kính hiện đại, bên trên có mái hiên tránh bị nắng hay mưa hất vào nhà phố. Vào trong là phòng khách được thiết kế rộng thoáng với sự bố trí bộ sofa sang trọng, lịch sự ngay trung tâm, đây là nơi gia chủ tiếp khách khi tới nhà. Bên trong là không gian chủ yếu sinh hoạt của gia đình được ngăn bằng vách ngăn trang trí bên cạnh là cầu thang lên tầng hai. Ở chân cầu thang được trang trí tiểu cảnh vừa giúp thanh lọc không khí vừa tạo điểm nhấn đẹp mắt cho không gian. Phòng bếp bố trí với bàn bếp chữ L giúp dễ di chuyển nấu nướng, bàn ăn đặt đối diện dễ dàng sinh hoạt ăn uống. Phòng vệ sinh chung bố trí cuối nhà thuận tiện sử dụng của thành viên và khách tới nhà.

MẪU THIẾT KẾ NHÀ PHỐ ĐỘC ĐÁO 5X13M TẠI THANH HÓA
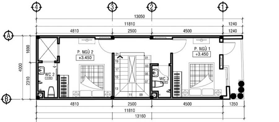
TẦNG 2.
Từ cầu thang chữ U đi lên tầng hai là không gian nghỉ ngơi, sinh hoạt riêng tư của thành viên trong gia đình, phù hợp với nhu cầu sử dụng của từng người. Ngay bên cầu thang là phòng ngủ bố mẹ thiết kế với đồ nội thất phù hợp, có phòng vệ sinh khép kín vào khoảng không thông tầng giúp phòng thoáng mát, nhưng vẫn riêng tư khi sinh hoạt. Phòng ngủ con bên đối diện thiết kế có ban công giúp đón ánh sáng, không khí vào trong phòng. Bên ngoài phòng ngay cạnh có vệ sinh với đầy đủ thiết bị sử dụng.

MẪU THIẾT KẾ NHÀ PHỐ ĐỘC ĐÁO 5X13M TẠI THANH HÓA
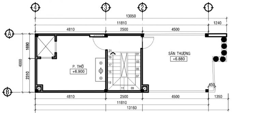
TẦNG 3.
Lên tầng 3 của nhà phố là phòng thờ của gia đình được bố trí trên tầng cao nhất yên tĩnh, lịch sự với đồ nội thất như tủ thờ thiết kế sang trọng. Trong phòng có khoảng thông tầng giúp trao đổi không khí, thoáng mát. Phía đối diện phòng thờ là sân thượng, nơi mọi người thư giãn, trồng rau hoặc nghỉ ngơi ngắm cảnh vào buổi chiều cuối tuần.

MẪU THIẾT KẾ NHÀ PHỐ ĐỘC ĐÁO 5X13M TẠI THANH HÓA
Mẫu thiết kế nhà phố độc đáo mặt tiền 5x13m tại Thanh Hóa là một trong mẫu nhà phố đẹp độc đáo của công ty Nhà Đẹp Smallhome. Với đường nét thiết kế hiện đại, các hình khối không gian thẩm mỹ cao, giàu hình tượng nghệ thuật, có sức hấp dẫn ánh mắt người nhìn. Quý khách muốn sở hữu một ngôi nhà phố độc đáo này. Hãy liên hệ ngay với chúng tôi – KTS Smallhome sẽ tư vấn thiết kế kiến trúc cho nhà bạn.









