Thiết kế biệt thự tân cổ điển 4 tầng tại Nam Định
Mẫu thiết kế biệt thự tân cổ điển 4 tầng mang vẽ đẹp của kiến trúc nổi bật với các đường gờ, phào chỉ đẹp mắt, căn biệt thự thu hút mọi ánh nhìn. Không những thế, nội thất căn biệt thự cũng mang nét đẹp khá độc đáo, tiện nghi. Cùng chiêm ngưỡng mẫu thiết kế ngay nhé.

Phối cảnh thiết kế biệt thự tân cổ điển 4 tầng cực đẹp
Căn biệt thự nổi bật với gam màu trắng sang trọng. Mặt tiền căn biệt thự với các chi tiết hoa văn, phào chỉ đẹp mắt – đặc điểm đặc trưng của kiến trúc tân cổ điển. Cổng của căn nhà đảm bảo yếu tố an ninh. Không những thế, yếu tố thẩm mĩ cũng khá được chú trọng với các chi tiết được nhấn nhá, trang trí. Các thanh chông được lắp chắc chắn, vừa mang tính thẩm mĩ lại vừa đem đến cảm giác an toàn dành cho ngôi biệt thự.

Dưới góc nhìn chính diện cho thấy vẽ đẹp xa hoa lộng lẫy hoành tráng
Ngôi biệt thự nổi bật với hệ thức cột vuông và tròn. Hệ thống cửa kính giúp không gian trong căn biệt thự thoáng đãng, mát mẻ. Tại tiền sảnh căn nhà sử dụng khá nhiều đèn trang trí. Về đem, ngôi biệt thự thêm phần lung linh, lộng lẫy và nổi bật.

Nét đẹp khác biệt với một góc nhìn khác
Ban công mỗi tầng đều được xây dựng chắc chắn, đẹp mắt. Ngoài ra, khuôn viên căn nhà cũng được thiết kế khá nhiều vị trí để gia chủ có một không gian xanh trong không gian sống của mình.
Bản vẽ mặt bằng công năng biệt thự tân cổ điển 4 tầng chi tiết
Mặt bằng công năng tầng trệt bao gồm: 1 phòng khách, 1 phòng bếp+ăn, 1 phòng làm việc, 1 WC.

Mặt bằng tổng thể căn biệt thự
Ngay tại vị trí cửa chính đi vào là phòng khách, với nội thất tiện nghi, sang trọng. Không gian phòng ăn và bếp được ngăn cách bởi cầu thang. Khu vực phòng bếp với thiết kế ấm cúng, tiện lợi. Phòng làm việc được bố trí đối diện phòng khách, không gian yên tĩnh, mát mẻ. 1 WC được đặt tại vị trí chung, đảm bảo yếu tố thuận tiện khi sử dụng.
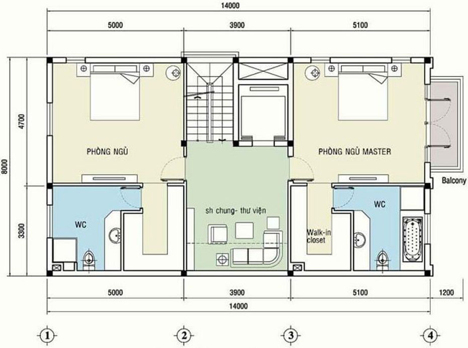
Công năng mặt bằng tầng lầu bao gồm: 2 phòng ngủ, 2 WC, 1 phòng sinh hoạt chung-thư viện.

Phòng ngủ Master được xây dựng bên phải của cầu thang. Nội thất trong phòng tiện nghi, sang trọng và không kém phần thoải mái. Bên trái cầu thang là một phòng ngủ khác hướng tới sự thoải mái và tiện nghi. Phòng sinh hoạt chung và thư viện được thiết kế chính giữa căn nhà, không gian rộng rãi.
Công năng tầng sân thượng bao gồm: 1 phòng thờ, 1 phòng tập gym, 1 WC và khu vực sân thượng.

Mặt bằng công năng tầng thượng
Trên tầng tum căn biệt thự được thiết kế công năng khá hợp lí. Phòng thờ với thiết kế đơn giản nhưng vẫn đem đến cảm giác trang trọng, tôn nghiêm. 1 phòng gym với các thiết bị phòng tập thiết yếu. WC được đặt tại cuối nhà, tiện lợi cho nhu cầu sử dụng.
Thiết kế nội thất biệt thự tân cổ điển 4 tầng anh Trình
Không gian phòng khách với thiết kế sang trọng, tiện nghi, nổi bật với gam màu trắng. Bộ sofa phòng khách đơn giản với gam màu trắng ấn tượng. Cửa kính cùng hệ thống rèm cửa giúp căn phòng thoáng đãng, mát mẻ. Thêm vào đó, đèn trang trí và đèn chùm cũng được lựa chọn khá tỉ mỉ, tinh tế, đem lại không gian mang tính thẩm mĩ cao dành cho căn phòng.

Nội thất phòng khách sang trọng
Phòng bếp cũng sử dụng gam màu trắng làm gam màu chủ đạo của căn phòng. Hệ thống tủ bếp, quầy bar và các nội thất khác đều sử dụng màu sắc vô cùng hài hòa, đẹp mắt.

Nội thất phòng bếp với gam màu trắng hiện đại
Không gian phòng ăn sử dụng đèn chùm độc đáo, thiết kế trên cao rũ xuống, kết hợp cùng hệ thống cửa kính, mang đến không gian thoáng mát dành cho căn phòng.

Gian phòng ăn với gam màu trắng nổi bật

Phòng ngủ với thiết kế nội thất đơn giản, tiện nghi nhưng không kém phần tinh tế nhưng vẫn mang tính thẩm mĩ cao

Căn phòng ngủ khác với không gian ấn tượng, cách bài trí độc đáo, đẹp mắt.
Tạm kết
Hi vọng với căn biệt thự 4 tầng tân cổ điển mà Kiến Trúc & Nội Thất Smallhome thiết kế cho gia đình tại Nam Định sẽ là tư liệu tham khảo hữu ích, giúp mọi người dễ dàng hơn trong việc lựa chọn kiểu dáng và thiết kế dành cho căn nhà của mình.
Nếu bạn có nhu cầu thiết kế, thi công nhà, biệt thự đẹp hãy liên hệ tới công ty Kiến Trúc & Nội Thất Smallhome qua hotline: 09626.859.39 để được hỗ trợ tư vấn miễn phí nhé!






