Hiện nay, trong số các mẫu nhà ống được ưa chuộng hiện nay, thì mẫu nhà ống 2 tầng 3 phòng ngủ là được quan tâm hơn cả. Bởi lẽ, đối với các gia đình trẻ thì đây là phương án tối ưu nhất khi chi phí thiết kế cũng như xây dựng không cao, đáp ứng đầy đủ công năng sử dụng.

Trong bài viết này, Smallhome gửi đến bạn đọc một số mẫu thiết kế cùng bản vẽ công năng của loại hình này. Cùng đọc và tham khảo ngay nhé!
Top các mẫu nhà ống 2 tầng 3 phòng ngủ đẹp tại Nam Định năm 2020
Smallhome giới thiệu đến bạn đọc một số mẫu nhà ống 2 tầng 3 phòng ngủ đẹp, hoàn chỉnh năm 2020. Mỗi mẫu thiết kế đều có một nét đẹp riêng biệt, màu sắc cũng như công năng khác nhau, giúp bạn đọc dễ dàng có thêm ý tưởng dành cho tổ ấm của mình.
Mẫu thiết kế nhà ống 2 tầng 3 phòng ngủ 1 phòng thờ
Mặt tiền công trình đơn giản với gam màu trắng chủ đạo. Thiết kế cổng đơn giản, với các khoảng thở, giúp cho ngôi nhà thông thoáng hơn. Ngoài ra, tại tầng 1 cũng như tầng 2 sử dụng các viên gạch giả gỗ, có màu tối giúp ngoại thất ngôi nhà trở nên nổi bật và thu hút hơn.

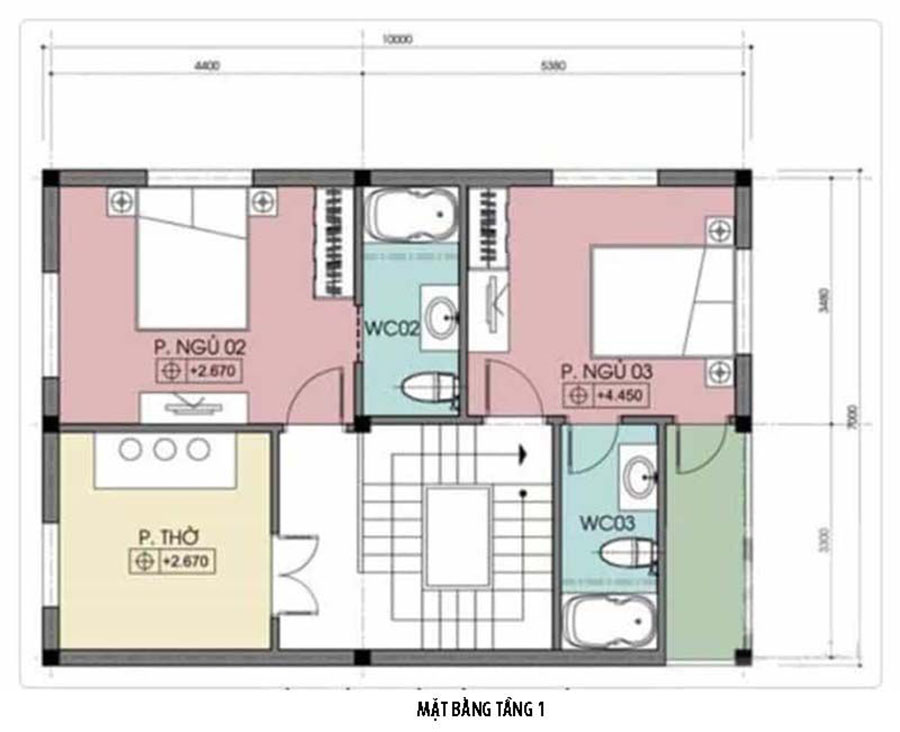
Bản vẽ mặt bằng công năng nhà ống 2 tầng 3 phòng ngủ 1 phòng thờ chi tiết
Tầng 1 được chia ra làm 2 khoang để thuận tiện cho việc thiết kế.
Khoang đầu tiên là phòng khách, khu vực giếng trời và 1WC. Phòng khách sử dụng nội thất hiện đại. Giếng trời và WC được bố trí cạnh cầu thang, thuận tiện cho việc sinh hoạt.
Khoang thứ 2 là phòng bếp và 1 phòng ngủ. Phòng bếp và phòng ăn được sắp xếp gọn gàng, có cửa sổ thông gió, giúp hạn chế mùi đồ ăn. Phòng ngủ được bố trí tại vị trí cuối nhà, cạnh khu vực sân sau, thoáng gió và mát mẻ.

Công năng tầng 2 bao gồm: 2 phòng ngủ, 1 sân phơi, 1WC và 1 phòng thờ.
Tại tầng 2, khu vực sân phơi hướng ánh sáng, thuận tiện cho việc giặt và phơi đồ. 1 phòng ngủ được thiết kế cạnh sân, WC được bố trí cạnh cầu thang. Căn phòng ngủ còn lại nằm cạnh cầu thang, bên cạnh là phòng thờ. Các phòng ngủ đều hướng đến sự đơn giản nhưng đều hướng đến sự tiện nghi, thoải mái dành cho các thành viên trong gia đình.
Mẫu nhà ống 2 tầng 3 phòng ngủ có gara ôtô tại Nam Định
Mặt tiền ngôi nhà gây ấn tượng với thiết kế đầy khỏe khoắn, kết hợp với mái bằng theo phong cách hiện đại với nhiều cửa kính đón gió và ánh sáng.

Cổng công trình là các thanh nan chạy dọc, tạo nên các khoảng thở cho nội thất bên trong căn nhà.
Bản vẽ công năng nhà ống 2 tầng 3 phòng ngủ có gara oto
Tại tầng trệt, một khoảng không gian rộng rãi được sử dụng làm gara oto cũng như cho các phương tiện khác. Phòng khách được thiết kế ngay tại cửa ra vào, gây ấn tượng với việc bố trí các cây xanh phù hợp với phong thủy của gia chủ.

Phòng khách và phòng bếp được ngăn cách bởi nhau bởi một vách ngăn, hạn chế mùi đồ ăn. Phòng ngủ Master có WC trong phòng, hướng nhìn ra sân sau.

Tại tầng 2, 2 phòng ngủ dành cho con đều được thiết kế với một diện tích 15m2 . Cách bày trí các phòng đều dựa vào sở thích của các thành viên, tạo sự thoải mái nhất khi sử dụng.
Phòng thờ được đặt cạnh ban công, với tầm nhìn đẹp và vị trí phong thủy tốt. Diện tích giữa tầng 2 còn được tận dụng để làm khu vực đọc sách.
Nhà ống 2 tầng 3 phòng ngủ 5×18 m
Ngoại thất ngôi nhà là sự lên ngôi của các khối hình vuông vức, khỏe khoắn cùng với các khối ban công đua rộng, giật cấp. Hệ thống khung ngoại sử dụng gam màu tối, nổi bật trên gam màu trắng chủ đạo của căn nhà.

Chi tiết cổng sử dụng các viên đá có kích thước nhỏ cùng với hoa văn lạ mắt, mang tới cảm giác bắt mắt hơn dành cho tổng thể công trình.
Bản vẽ công năng nhà ống 2 tầng 3 phòng ngủ 5×18 m

Dù việc bố trí một diện tích rộng để làm nơi để xe, thế nhưng các kiến trúc sư vẫn thiết kế công năng lầu 1 được tối ưu nhất với 1 phòng khách, 1 phòng ngủ và khu vực phòng ăn + bếp.

Tại tầng 2, 2 phòng ngủ được thiết kế tại 2 bên cầu thang, với 1WC gần cầu thang, thuận tiện cho việc sinh hoạt. Phòng thờ và phòng sinh hoạt chung với ban công thoáng mát, giúp cho nội thất gỗ bên trong căn phòng không bị ẩm mốc.
Đối diện cầu thang là phòng kho và nơi để máy giặt. Vì gia chủ muốn có một không gian thoáng mát để phơi đồ và là sân chơi cho con cái, nên các kiến trúc sư đã bố trí một diện tích mát mẻ dành cho khu vực này, cũng như thuận tiện cho việc trồng và chăm sóc cây trồng.
Mẫu thiết kế nhà ống 2 tầng 3 phòng ngủ 80m2 tại Nam Định
Ngôi nhà gây ấn tượng bởi kiến trúc hiện đại, với các khối ban công đua rộng. Ban công được thiết kế hướng gió, giúp cho gia chủ có thể trồng hoa, cây cảnh hoặc bố trí một bộ bàn ghế, thuận tiện cho việc thưởng trà vào cuối ngày.

Các bậc tam cấp giúp cho công trình trở nên cao ráo hơn, giúp hạn chế tình trạng bụi bẩn, rêu mốc.
Bản vẽ công năng nhà ống 2 tầng 3 phòng ngủ 80m2
Không gian tầng trệt được chia làm 2 khoang.

Khoang đầu tiên là phòng khách, WC và nơi để xe. Ngay tại vị trí cổng đi vào là một không gian rộng rãi, thuận tiện cho việc đậu xe. Tiếp đến là phòng khách, sử dụng nội thất tiện nghi, hiện đại. Sau phòng khách là 1WC, giúp cho việc sinh hoạt trở nên dễ dàng hơn.
Khoang thứ hai là 1 phòng ngủ, phòng bếp và khu vực ăn. Phòng bếp và bàn ăn được bố trí gọn gàng trên các kệ và tủ bếp. Phòng ngủ thứ nhất hướng đến sự đơn giản và tiện nghi, tuy nhiên vẫn đảm bảo nhu cầu sinh hoạt của các thành viên khi sử dụng.

Tầng 2 cũng được chia làm 2 khoang, tạo sự thống nhất trong lối kiến trúc.
Khoang đầu tiên là 1 phòng ngủ và 2WC. Ban công rộng rãi được sử dụng cho việc ngắm cảnh, thưởng trà của gia chủ.
Khoang thứ hai là 1 phòng ngủ và gian phòng thờ. Phòng thờ đặt bên tay trái cầu thang, được thiết kế nhằm mang đến cảm giác trang trọng, tôn nghiêm đối với ông bà, tổ tiên.
Mẫu nhà 2 tầng 3 phòng ngủ 5×20 m
Việc sử dụng cửa kính cho căn nhà mang đến không gian trong nhà sự thoáng đãng, hạn chế tình trạng ẩm thấp. Công trình sử dụng gam màu trắng làm màu chủ đạo, giúp nổi bật hệ thống khung ngoại làm từ chất liệu gỗ.

Các hệ thức cột vuông được sử dụng tại mặt tiền sảnh giúp cho ngôi nhà ống 2 tầng 3 phòng ngủ 5x20m trở nên vững chãi và chắc chắn hơn.
Bản vẽ công năng nhà 2 tầng 3 phòng ngủ 5×20 m
Ngay tại vị trí cửa chính đi vào là phòng khách, bên cạnh là phòng sinh hoạt chung. Phòng sinh hoạt chung như một không gian khép kín, giúp cho không gian sinh hoạt của cả gia đình trở nên ấm cúng hơn.

Cạnh cầu thang là một phòng ngủ, với thiết kế đơn giản và tiện nghi. Phòng bếp và phòng ăn được bố trí đơn giản, đảm bảo nhu cầu của gia chủ. Cuối nhà là WC, đảm bảo cho quá trình sinh hoạt của các thành viên trong gia đình.

Từ cầu thang tầng trệt đi lên, 2 phòng ngủ được bố trí 2 bên cầu thang, Ngoài ra, trên cầu thang còn bố trí bàn thờ nhằm tối ưu hóa không gian một cách triệt để. Sân phơi đồ có ánh sáng chiếu vào, giúp cho việc giặt giũ và phơi đồ dễ dàng hơn.
WC được thiết kế cạnh ban công, giúp cho việc sinh hoạt trở nên thuận tiện.
Mẫu nhà ống 2 tầng 3 phòng ngủ 4×16 m tại Nam Định
Mặt tiền ngôi nhà gây ấn tượng bởi lối kiến trúc hiện đại, với các khối hình chắc chắn, được đánh giá cao bởi thiết kế đẹp mắt tại tầng 2.

Ban công sử dụng chất liệu kính trong suốt, vừa đảm bảo sự an toàn, vừa mang lại tính thẩm mĩ cao dành cho ngôi nhà.
Bản vẽ công năng nhà ống 2 tầng 3 phòng ngủ 4×16 m
Tại tầng trệt, từ cổng đi vào là một khoảng sân trước rộng rãi. Phòng khách bố trí nội thất đơn giản, đầy tiện nghi. Kế cầu thang là một phòng ngủ với sự tối giản các chi tiết rườm rà.

Phòng bếp được bố trí cạnh sân sau, thích hợp cho việc nấu ăn và hạn chế mùi bay ra các phòng khác.

Tại tầng 2, bên trái cầu thang là gian phòng thờ hướng ra ban công mát mẻ. Bên phải là 2 căn phòng ngủ và 1WC. Các phòng ngủ đều được bày trí đẹp mắt, phù hợp với diện tích ngôi nhà.
Mẫu nhà 2 tầng 3 phòng ngủ 5×15 m tại Nam Định
Ngôi nhà được lấy ý tưởng từ sự đơn giản và hiện đại. Hình khối ngôi nhà nhỏ nhắn với những khối tường vuông vức, cao ráo. Sàn tầng hai với khối ban công đua rộng giúp che nắng, che mưa cũng như khiến cho hình khối của ngôi nhà trở nên cân đối hơn.

Tầng hai có mặt tiền lồi, được trang trí bằng những viên gạch tối màu, kết hợp với các đường chỉ lõm, tạo nên sự tinh tế dành cho công trình.
Bản vẽ công năng nhà 2 tầng 3 phòng ngủ 5×15 m
Phía trước sảnh chính được trồng các loại cây xanh, phù hợp với phong thủy của gia chủ. Phòng khách được thiết kế rộng rãi, khoa học. Khu vực cầu thang bố trí tiểu cảnh dưới chân cầu thang, tạo nên vẻ đẹp đầy ấn tượng cho ngôi nhà 2 tầng 3 phòng ngủ 5×15 m.

WC cạnh chân cầu thang, thuận tiện cho nhu cầu sử dụng. Phòng bếp và phòng ăn ngăn cách với các phòng khác bởi không gian sảnh giữa nhà rộng rãi. Phòng ngủ được thiết kế dối diện phòng bếp, hướng ra sân sau.
Sân phơi nằm ở phía sau, đầy ánh sáng thuận tiện cho việc giặt phơi đồ.

Phòng thờ được thiết kế hướng ra ban công, được trồng khá nhiều cây cảnh, hoa cỏ. Bên tay trái cầu thang là một phòng ngủ, cũng hướng ra ban công rộng rãi. Phòng sinh hoạt chung đối diện với cầu thang đầy thoáng mát.
Cạnh phòng sinh hoạt chung là phòng tập gym và bida, đáp ứng nhu cầu của các thành viên trong gia đình. Đối diện là WC và 1 phòng ngủ.
Bản thiết kế nhà ống 2 tầng 1 tum 3 phòng ngủ tại Nam Định
Ngôi nhà gây ấn tượng với thiết kế ban công đua rộng, không gian ban công rộng rãi, thích hợp để gia chủ dành thời gian cho thú vui cây kiểng của mình. Các khối kính trong suốt vừa mang giá trị thẩm mĩ cao, vừa đảm bảo an toàn cho các thành viên trong gia đình.

Màu sắc công trình đầy hài hòa với các gam màu được phối hợp khéo léo, đầy tinh tế.
Bản vẽ nội thất thiết kế nhà ống 2 tầng 1 tum 3 phòng ngủ
Tầng 1 bố trí không gian sân trước để xe. Phòng khách ngay tại vị trí cửa chính đi vào, với nội thất đơn giản. Giếng trời giúp mang đến không gian đầy độc đáo dành cho ngôi nhà.

Kế cầu thang là phòng ngủ 1 và 2WC, phục vụ cho quá trình sinh hoạt của gia đình. Bếp ăn tại vị trí cuối nhà, hướng ra sân sau đầy ánh sáng, thoáng mát.

Bên tay trái cầu thang tại tầng 2 là phòng sinh hoạt chung và WC, với không gian khép kín, mang đến sự ấm cúng dành cho gia đình.
Bên phải cầu thang tầng 2 là 2 phòng ngủ còn lại và 1WC. Các phòng đều sử dụng nội thất tiện nghi, tạo sự thoải mái khi sử dụng.

Tầng tum với phòng kho, phòng thờ, khu vực sân phơi cũng như giếng trời nhằm lấy ánh sáng dành cho căn nhà.
Về chúng tôi
Smallhome là đơn vị thiết kế và thi công với hơn 10 năm kinh nghiệm tại thành phố Nam Định. Chúng tôi tự hào khi mang đến vẻ đẹp cho hàng trăm công trình mang giá trị thẩm mĩ cao cùng với nét đẹp riêng biệt.
Nếu bạn đang tìm một đơn vị thiết kế và thi công dành cho công trình của mình, hãy liên hệ với chúng tôi theo hotline: 09626.859.39 để được tư vấn một cách nhanh chóng nhất nhé!









