MẪU THIẾT KẾ NHÀ PHỐ HIỆN ĐẠI 2 MẶT TIỀN 6X17M TẠI HƯNG YÊN

MẪU THIẾT KẾ NHÀ PHỐ HIỆN ĐẠI 2 MẶT TIỀN 6X17M TẠI HƯNG YÊN
THÔNG TIN CHI TIẾT CÔNG TRÌNH.
TÊN CHỦ NHÀ: Chị Hoài.
ĐỊA CHỈ: Hưng Yên.
PHONG CÁCH: Nhà phố 2 tầng 1 tum hiện đại tại Hưng Yên.
KÍCH THƯỚC: 6m x 17.3m.
CÔNG NĂNG:
- TẦNG HẦM: Sân trước + Kho hầm thang + Gara – Bếp phụ + Kho
- TẦNG 1: Phòng khách + Phòng bếp – ăn + Phòng vệ sinh chung.
- TẦNG 2: Phòng ngủ lớn – làm việc + Phòng ngủ + Vệ sinh chung.
- TẦNG TUM: Sân chơi – phơi + Phòng ngủ + Vệ sinh chung – Giặt.
MÔ TẢ CHI TIẾT MẶT TIỀN CÔNG TRÌNH.
Khung cảnh trước mặt tiền nhà phố giáp với hai mặt tiền đường lớn là hệ cổng thiết kế hiện đại, Một bên tường được ốp gạch chạy dọc lên cao, bên tường cổng được sơn trắng kết hợp hình khối nối liền có khoảng ô nhỏ vừa che trước lối vào nhà khuất tầm nhìn, vừa thoáng có không khí vào trong. Phần cửa cổng là cánh gỗ khung sắt chắc chắn, sang trọng lại kín đáo.

MẪU THIẾT KẾ NHÀ PHỐ HIỆN ĐẠI 2 MẶT TIỀN 6X17M TẠI HƯNG YÊN
Đối diện cổng vào là cửa cuốn vào tầng hầm, bên cạnh bậc thang ốp đá màu vàng hoa cương viền đen lên tầng 1. Sảnh chính là không không gian vừa đủ, trên trần ốp gỗ dưới là cửa kính khung gỗ, có sự đồng điệu, sang trọng, hiện đại. Tông màu chủ đạo của cả hai tầng là gam màu trắng. Kiến trúc tầng 1 là hình khối được thiết kế ra ngoài mặt tiền, có cửa sổ diện tích lớn khung nhôm đen, điểm thêm gỗ ốp tạo điểm nhấn cho tầng một.

MẪU THIẾT KẾ NHÀ PHỐ HIỆN ĐẠI 2 MẶT TIỀN 6X17M TẠI HƯNG YÊN
Mặt tiền tầng hai thiết kế nổi bật với khối kiến trúc hộp rỗng ôm khối nhà phố bên trong, khoảng cách ở giữa là ban công có lan can kính thêm gạch ốp, đặt thêm chậu cây xanh mang không gian hiện đại, độc đáo. Hệ cửa sổ kính khung nhôm đen được KTS bố trí hài hòa, lấy ánh sáng bên ngoài vào trong. Tầng tum trên tầng có hệ mái bằng ốp gỗ rất dễ làm và đẹp, có cột vuông sơn trắng cùng bức tường bên cạnh chịu lực, để khoảng không thông thoáng làm sân thượng, phơi có lan can kính chắc chắn. Trang trí cây xanh tiểu cảnh là nơi lý tưởng để cả gia đình sum họp thư giãn.

MẪU THIẾT KẾ NHÀ PHỐ HIỆN ĐẠI 2 MẶT TIỀN 6X17M TẠI HƯNG YÊN
TẦNG HẦM
Từ cổng sân trước của nhà phố hiện đại hai mặt tiền 6×17.3m tại Hưng Yên là hầm gara của gia đình. Tầng hầm của ngôi nhà được được thiết kế khá rộng với diện tích khoảng 70m2 đủ để chứa ô tô và các phương tiện đi lại của gia đình, thêm đó là khu bếp phụ dùng để nấu nướng khi nhà có việc. Bên trong sẽ là một phòng kho rộng 6,5m2 kín đáo, tạo sự gọn gàng tối đa và một kho dưới gầm cầu thang lên sảnh. Có cầu thang đi từ hầm lên tầng 1.

MẪU THIẾT KẾ NHÀ PHỐ HIỆN ĐẠI 2 MẶT TIỀN 6X17M TẠI HƯNG YÊN
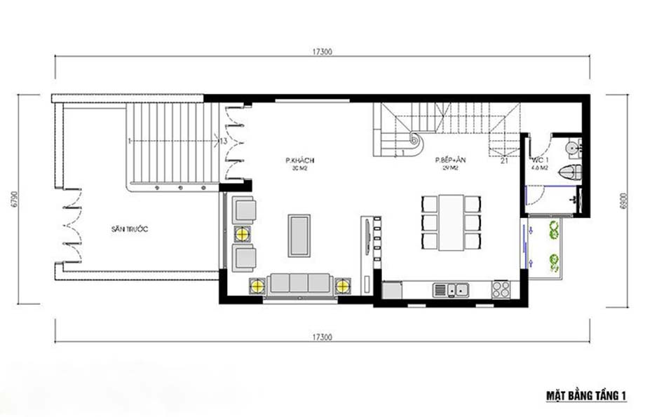
TẦNG 1.
Đi từ sảnh chính vào tầng một là phòng khách của nhà phố, với bộ bàn ghế sofa hình chữ L phía bên phải cửa rộng thoáng nhờ có cửa sổ lớn hai bên hiện đại. Tivi được bố trí có vách ngăn tạo hai không gian riêng giữa nơi tiếp khách và nấu nướng nhưng có sự liên kết nhất định. Phòng bếp – ăn thiết kế hình chữ l có cửa sổ tránh mùi và bàn ăn sáu chỗ. Đối diện cầu thang hình chữ U bên tường tiếp kiệm diện tích, có thêm lối ra sau vệ sinh chung sinh hoạt của tầng 1.

MẪU THIẾT KẾ NHÀ PHỐ HIỆN ĐẠI 2 MẶT TIỀN 6X17M TẠI HƯNG YÊN
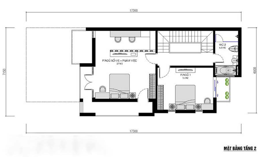
TẦNG 2.
Từ cầu thang tầng 2, bên tay phải là phòng ngủ dành cho bố mẹ có diện tích rộng. Có vách ngăn ngăn không gian làm việc và nghỉ ngơi, hai lối ra ban công chữ L bao quanh phòng. Phòng ngủ con gái thiết kế với 16m2 có đầy đủ đồ nội thất. Được sắp xếp hợp lý, phù hợp với sinh hoạt, có cửa ra ban công phía sau thoáng mát. Cả hai phòng sẽ chung một phòng vệ sinh và đều có thiết kế cửa sổ ngay cạnh ban công.

MẪU THIẾT KẾ NHÀ PHỐ HIỆN ĐẠI 2 MẶT TIỀN 6X17M TẠI HƯNG YÊN
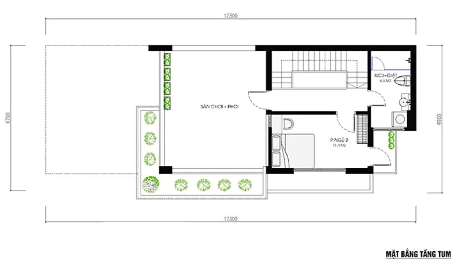
TẦNG TUM.
Đi cầu thang lên đối diện có phòng ngủ con trai lớn 11.4m2. Với đầy đủ công năng, có giường, tủ, bàn học và một phòng vệ sinh riêng kết hợp phòng giặt tại đây. Phía bên ngoài sẽ là khu sân thượng để trồng rau xanh, sân phơi và làm nơi ngắm cảnh cho tất cả các thành viên gia đình.

MẪU THIẾT KẾ NHÀ PHỐ HIỆN ĐẠI 2 MẶT TIỀN 6X17M TẠI HƯNG YÊN
Quý khách mong muốn sở hữu ngôi nhà đẹp. Mẫu thiết kế nhà phố hiện đại hai mặt tiền 6x17m tại Hưng Yên? Hãy liên hệ ngay với công ty thiết kế nhà đẹp Smallhome để được tư vấn thiết kế.









